Weesperstraat 51 1018 DN Amsterdam
- Verhuurd onder voorbehoud
€ 275 /m²/jaar
Omschrijving
Weesperstraat 51
Weesperflat
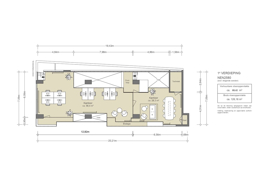
De Weesperstraat is gelegen tussen het Waterlooplein en de Plantagebuurt. Op nummer 51, ter hoogte van Hortus Botanicus Amsterdam en Hermitage Amsterdam, is een kantoorruimte van circa 228 m² voor de verhuur beschikbaar. Het betreft de begane grond en eerste verdieping van de Weesperflat.
De kantoorruimte heeft een speelse indeling met verschillende hoogtes. Opvallend is de ‘kijkdoos’ die in de gevel van de kantoorruimte is verwerkt. Naast gebruik als kantoorruimte leent deze ruimte zich uitermate als showroomruimte vanwege de uitstekende zichtbaarheid vanaf de Weesperstraat.
Creatieve ondernemers die veel waarde hechten aan een eigen identiteit en een goede bereikbaarheid zullen deze ruimte waarderen.
Gebouw
De Weesperflat is de oudste studentenflat van Amsterdam. In 1966 is deze flat gebouwd naar het winnende ontwerp van de studenten Herman Hertzberger en Tjakko Hazewinkel. De studentenflat is voortgekomen vanuit het grote tekort aan studentenkamers. Er was woonruimte voor 250 studenten. De feestzaal op de begane grond naar ontwerp van Hertzberger is inmiddels weg en hier zijn kantoren voor in de plaats gekomen. Kenmerkend is de ‘kijkdoos’ die ontworpen is in de gevel. Het doel van de architect hiermee was om belangrijk ontmoetingen te stimuleren. Het gebouw is een internationaal architectuursymbool en heeft bovendien in 2005 de status van gemeentelijk monument verkregen.
Buurt + hotspots
De Weesperflat is gelegen aan het begin van de Weesperstraat ter hoogte van Hortus Botanicus Amsterdam en Hermitage Amsterdam. Nabijgelegen is ook dierentuin ARTIS en de Roeterseilandcampus van de Universiteit van Amsterdam. De grachtengordel en het Rembrandtplein zijn op een steenworp afstand gelegen aan de overzijde van de Amstel. Verschillende restaurants zoals Dignita Hoftuin, Eetcafé de Magere Brug, Café-Restaurant De Plantage en Petit Lou liggen op loopafstand vanaf de Weesperflat. De omgeving rondom de Weesperstraat biedt huisvesting aan onder andere overheidsinstellingen, de Hogeschool van Amsterdam, zakelijke dienstverleners en creatieve bedrijven.
Bereikbaarheid
De Weesperflat is per openbaar vervoer is uitstekend bereikbaar. De kantoorruimte ligt nabij het tram- en metrostation Waterlooplein waarvandaan metrolijnen 51, 53 en 54 en tramlijn 14 een directe verbinding met het Centraal Station bieden.
De ligging aan het begin van de Weesperstraat zorgt ook voor een uitstekende bereikbaarheid met eigen vervoer waardoor binnen enkele minuten rijden met de auto de IJtunnel is te bereiken. Hiervandaan is via de S116 de ringweg A10 Noord te bereiken. Ook de ringweg A10 Zuid is goed aan te rijden via de S112.
Parkeergelegenheid
Parkeren is mogelijk op de openbare weg middels betaling of een vergunningensysteem. Informatie over voorwaarden en mogelijkheden voor verkrijging van een (bedrijfs-) vergunning en eventuele wachttijd is op te vragen via de gemeente Amsterdam.
Tevens is betaald parkeren mogelijk bij Q-Park Waterlooplein welke op zes minuten loopafstand is gelegen.
Huurtermijn
Vijf jaar met aansluitende verlengingsperioden van vijf jaar.
Bijzonderheden
• gemeentelijk monument
• speelse indeling met verschillende hoogtes
• zicht locatie vanaf de Weesperstraat
• goed bereikbaar met auto en openbaar vervoer
• bijzondere kijkdoos in de gevel van de Weesperflat
Weesperflat
De Weesperstraat is gelegen tussen het Waterlooplein en de Plantagebuurt. Op nummer 51, ter hoogte van Hortus Botanicus Amsterdam en Hermitage Amsterdam, is een kantoorruimte van circa 228 m² voor de verhuur beschikbaar. Het betreft de begane grond en eerste verdieping van de Weesperflat.
De kantoorruimte heeft een speelse indeling met verschillende hoogtes. Opvallend is de ‘kijkdoos’ die in de gevel van de kantoorruimte is verwerkt. Naast gebruik als kantoorruimte leent deze ruimte zich uitermate als showroomruimte vanwege de uitstekende zichtbaarheid vanaf de Weesperstraat.
Creatieve ondernemers die veel waarde hechten aan een eigen identiteit en een goede bereikbaarheid zullen deze ruimte waarderen.
Gebouw
De Weesperflat is de oudste studentenflat van Amsterdam. In 1966 is deze flat gebouwd naar het winnende ontwerp van de studenten Herman Hertzberger en Tjakko Hazewinkel. De studentenflat is voortgekomen vanuit het grote tekort aan studentenkamers. Er was woonruimte voor 250 studenten. De feestzaal op de begane grond naar ontwerp van Hertzberger is inmiddels weg en hier zijn kantoren voor in de plaats gekomen. Kenmerkend is de ‘kijkdoos’ die ontworpen is in de gevel. Het doel van de architect hiermee was om belangrijk ontmoetingen te stimuleren. Het gebouw is een internationaal architectuursymbool en heeft bovendien in 2005 de status van gemeentelijk monument verkregen.
Buurt + hotspots
De Weesperflat is gelegen aan het begin van de Weesperstraat ter hoogte van Hortus Botanicus Amsterdam en Hermitage Amsterdam. Nabijgelegen is ook dierentuin ARTIS en de Roeterseilandcampus van de Universiteit van Amsterdam. De grachtengordel en het Rembrandtplein zijn op een steenworp afstand gelegen aan de overzijde van de Amstel. Verschillende restaurants zoals Dignita Hoftuin, Eetcafé de Magere Brug, Café-Restaurant De Plantage en Petit Lou liggen op loopafstand vanaf de Weesperflat. De omgeving rondom de Weesperstraat biedt huisvesting aan onder andere overheidsinstellingen, de Hogeschool van Amsterdam, zakelijke dienstverleners en creatieve bedrijven.
Bereikbaarheid
De Weesperflat is per openbaar vervoer is uitstekend bereikbaar. De kantoorruimte ligt nabij het tram- en metrostation Waterlooplein waarvandaan metrolijnen 51, 53 en 54 en tramlijn 14 een directe verbinding met het Centraal Station bieden.
De ligging aan het begin van de Weesperstraat zorgt ook voor een uitstekende bereikbaarheid met eigen vervoer waardoor binnen enkele minuten rijden met de auto de IJtunnel is te bereiken. Hiervandaan is via de S116 de ringweg A10 Noord te bereiken. Ook de ringweg A10 Zuid is goed aan te rijden via de S112.
Parkeergelegenheid
Parkeren is mogelijk op de openbare weg middels betaling of een vergunningensysteem. Informatie over voorwaarden en mogelijkheden voor verkrijging van een (bedrijfs-) vergunning en eventuele wachttijd is op te vragen via de gemeente Amsterdam.
Tevens is betaald parkeren mogelijk bij Q-Park Waterlooplein welke op zes minuten loopafstand is gelegen.
Huurtermijn
Vijf jaar met aansluitende verlengingsperioden van vijf jaar.
Bijzonderheden
• gemeentelijk monument
• speelse indeling met verschillende hoogtes
• zicht locatie vanaf de Weesperstraat
• goed bereikbaar met auto en openbaar vervoer
• bijzondere kijkdoos in de gevel van de Weesperflat
Kenmerken
Overdracht
- Huurprijs
- € 275 per vierkante meter per jaar
- Servicekosten
- € 105 per maand (21% BTW van toepassing)
- Aangeboden sinds
-
- Status
- Verhuurd onder voorbehoud
- Aanvaarding
- In overleg
Bouw
- Hoofdfunctie
- Kantoor
- Soort bouw
- Bestaande bouw
- Bouwperiode
- 1960-1970
Oppervlakten
- Oppervlakte
- 228 m²
- Perceel
- 228 m²
Indeling
- Aantal bouwlagen
- 2 bouwlagen
- Voorzieningen
- Toilet, pantry, verwarming en kamerindeling
Energie
- Energielabel
- G
Omgeving
- Ligging
- Kantorenpark en stationslocatie
NVM makelaar
Foto's