Portsmuiden 39 1046 AH Amsterdam
€ 2.150 /mnd
Omschrijving
Ruime, lichte kantoorruimte in Amsterdam!
Maar liefst 327m² VVO met grote ramen over 2 zijden: met deze kantoorruimte in Amsterdam kun je alle kanten op.
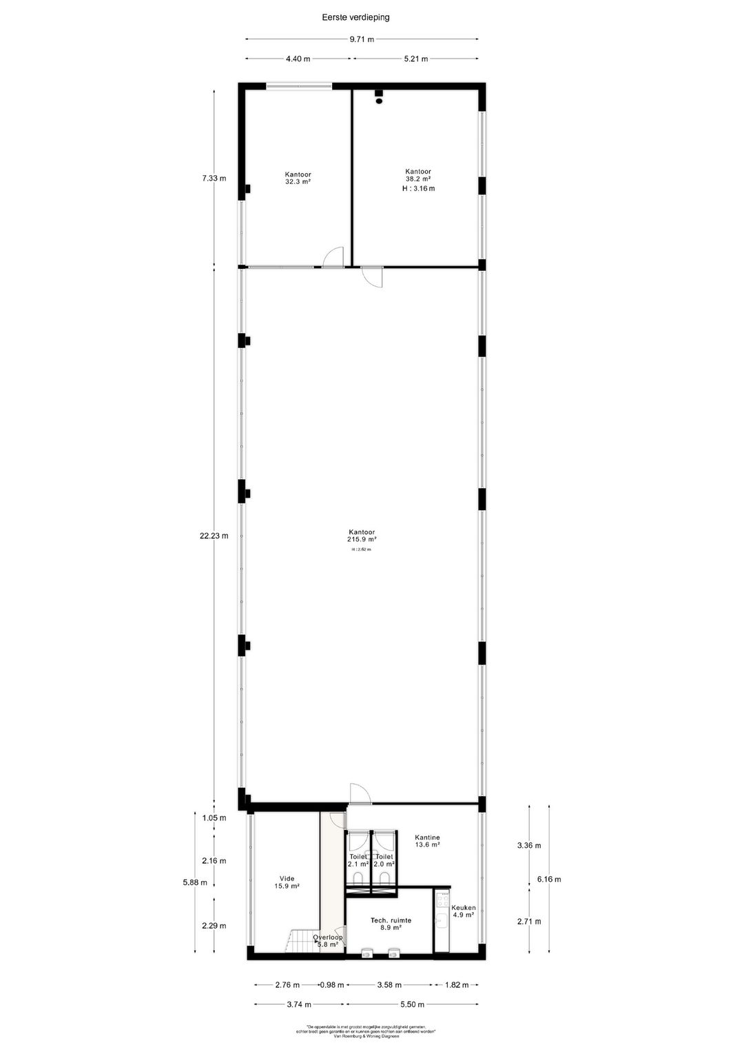
Het betreft een ruim, rechthoekig kantoor van ca. 216m², met tevens 2 kleinere kantoor-/opslagruimten van ca. 32m² en 38m², een personeelsruimte met pantry en 2 toiletten. De ruimte is voorzien van centrale verwarming, airconditioning én te openen ramen.
De ruimte ligt op de verdieping van een pand op bedrijventerrein Sloterdijk III in het gebied Westpoort: 1 van de grootste bedrijventerreinen van Nederland, in het Westelijk Havengebied van Amsterdam. De bereikbaarheid is uitstekend: je bent in 2 minuten rijden op de snelweg A5 en 8 minuten rijden op de ring A10. Parkeren is het grootste deel van de dag gratis en ook met het OV kom je hier gemakkelijk: de dichtstbijzijnde bushalte ligt op 2 slechts minuten lopen.
VOORZIENINGEN/BIJZONDERHEDEN
- Cv-installatie
- Airco's
- Grote ramen aan 2 zijden
- 2 Toiletten
- Pantry
BESTEMMING
Bedrijven die vallen in categorieën 2 tot en met 4 van de van Staat van Inrichtingen Sloterdijk III.
PARKEREN
Openbaar parkeren, het grootste deel van de dag gratis.
HUURTERMIJN
T/m 31 oktober 2027, daarna steeds met 5 jaar verlengd (onderhuur).
HUURSOM
€ 2.150,- excl. BTW per maand
SERVICEKOSTEN
€ 250,- excl. BTW per maand, t.b.v. gas, water en elektra.
WAARBORGSOM
3 Maanden totale betaalverplichting, incl. servicekosten en BTW.
AANVAARDING/OPLEVERING
Per direct.
KADASTRALE INFORMATIE
Gemeente Sloten Noord-Holland, sectie A, nummer 1237.
BTW
Uitgangspunt is dat huurder het gehuurde voor tenminste 90% zal gebruiken voor prestaties die recht geven op aftrek van omzetbelasting. Indien huurder niet BTW-plichtig is zal de BTW-compensatie nader worden vastgesteld.
De op deze website getoonde vrijblijvende informatie is met zorg door ons samengesteld op basis van gegevens van de verhuurder (en/of derden). Wij staan niet in voor de juistheid of volledigheid daarvan. Wij adviseren u en/of uw makelaar om contact met ons op te nemen bij interesse in een van onze bedrijfspanden.
Wij zijn niet verantwoordelijk voor de inhoud van de websites waarnaar verwezen wordt.
Maar liefst 327m² VVO met grote ramen over 2 zijden: met deze kantoorruimte in Amsterdam kun je alle kanten op.
Het betreft een ruim, rechthoekig kantoor van ca. 216m², met tevens 2 kleinere kantoor-/opslagruimten van ca. 32m² en 38m², een personeelsruimte met pantry en 2 toiletten. De ruimte is voorzien van centrale verwarming, airconditioning én te openen ramen.
De ruimte ligt op de verdieping van een pand op bedrijventerrein Sloterdijk III in het gebied Westpoort: 1 van de grootste bedrijventerreinen van Nederland, in het Westelijk Havengebied van Amsterdam. De bereikbaarheid is uitstekend: je bent in 2 minuten rijden op de snelweg A5 en 8 minuten rijden op de ring A10. Parkeren is het grootste deel van de dag gratis en ook met het OV kom je hier gemakkelijk: de dichtstbijzijnde bushalte ligt op 2 slechts minuten lopen.
VOORZIENINGEN/BIJZONDERHEDEN
- Cv-installatie
- Airco's
- Grote ramen aan 2 zijden
- 2 Toiletten
- Pantry
BESTEMMING
Bedrijven die vallen in categorieën 2 tot en met 4 van de van Staat van Inrichtingen Sloterdijk III.
PARKEREN
Openbaar parkeren, het grootste deel van de dag gratis.
HUURTERMIJN
T/m 31 oktober 2027, daarna steeds met 5 jaar verlengd (onderhuur).
HUURSOM
€ 2.150,- excl. BTW per maand
SERVICEKOSTEN
€ 250,- excl. BTW per maand, t.b.v. gas, water en elektra.
WAARBORGSOM
3 Maanden totale betaalverplichting, incl. servicekosten en BTW.
AANVAARDING/OPLEVERING
Per direct.
KADASTRALE INFORMATIE
Gemeente Sloten Noord-Holland, sectie A, nummer 1237.
BTW
Uitgangspunt is dat huurder het gehuurde voor tenminste 90% zal gebruiken voor prestaties die recht geven op aftrek van omzetbelasting. Indien huurder niet BTW-plichtig is zal de BTW-compensatie nader worden vastgesteld.
De op deze website getoonde vrijblijvende informatie is met zorg door ons samengesteld op basis van gegevens van de verhuurder (en/of derden). Wij staan niet in voor de juistheid of volledigheid daarvan. Wij adviseren u en/of uw makelaar om contact met ons op te nemen bij interesse in een van onze bedrijfspanden.
Wij zijn niet verantwoordelijk voor de inhoud van de websites waarnaar verwezen wordt.
Kenmerken
Overdracht
- Huurprijs
- € 2.150 per maand
- Servicekosten
- € 250 per maand (21% BTW van toepassing)
- Aangeboden sinds
-
- Status
- Beschikbaar
- Aanvaarding
- Per direct beschikbaar
Bouw
- Hoofdfunctie
- Kantoor
- Soort bouw
- Bestaande bouw
- Bouwjaar
- 1975
Oppervlakten
- Oppervlakte
- 327 m²
Indeling
- Aantal bouwlagen
- 1 bouwlaag
- Voorzieningen
- Airconditioning, inbouwarmaturen, te openen ramen, systeemplafond, toilet, pantry, verwarming en kamerindeling
Energie
- Energielabel
- C
Omgeving
- Ligging
- Bedrijventerrein en havengebied
- Bereikbaarheid
- Bushalte op minder dan 500 m, metrohalte op 1000 m tot 1500 m, NS Intercitystation op 1500 m tot 2000 m, snelwegafrit op minder dan 500 m en Tramhalte op 1000 m tot 1500 m
Foto's
Plattegrond
Eerste verdieping