Paleisstraat 1-5 1012 RB Amsterdam
€ 350 /m²/jaar
Omschrijving
HET GEBOUW
Gelegen op een prominente locatie in het Centrum van Amsterdam, direct aan de Dam, naast het Paleis op de Dam en de Kalverstraat. Alle voorzieningen zoals horeca, hotels, openbaar vervoer en parkeergelegenheid in de directe omgeving op loopafstand gelegen.
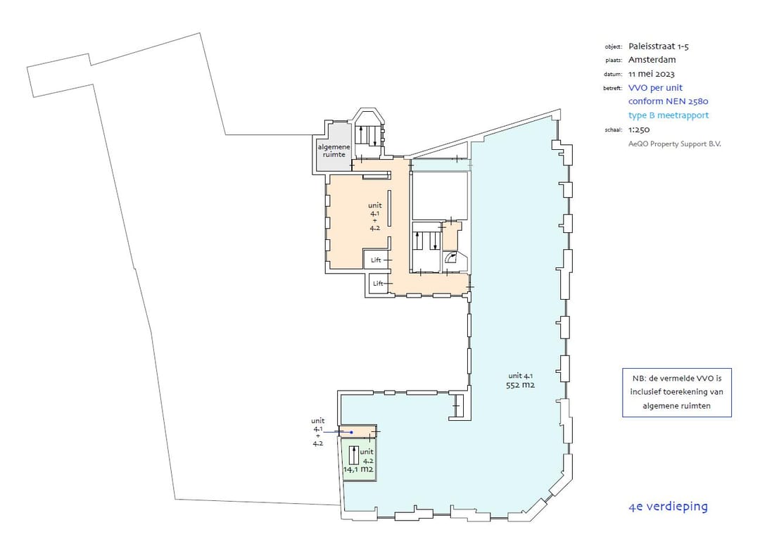
Representatieve kantoorruimten van ca. 566 m² gelegen op de 4e verdieping. De gemeenschappelijke ruimten en de voor verhuur beschikbare kantoorruimte zijn onlangs geheel gerenoveerd.
VERHUURBARE OPPERVLAKTE
Het betreft hier ca. 566 m² totaal gerenoveerde kantoorruimte gelegen op de 4de verdieping.
AANVANGHUURPRIJS
€ 350- per m² per jaar te vermeerderen met servicekosten en BTW.
SERVICEKOSTEN
P.M.
HUURINGANGSDATUM/OPLEVERING
Per direct.
BESTEMMING
De publiek-/privaatrechtelijke bestemming is kantoorruimte.
VOORZIENINGEN
Het object zal worden opgeleverd met de volgende
voorzieningen:
• zeer representatieve entree met fraai stucwerk, ornamenten en glas in lood koepel. De entree beschikt over een sfeervolle wachtruimte;
• bemande receptie op werkdagen tussen 08:00 uur en 16:00 uur;
• stijlvolle verlichting in de gemeenschappelijke ruimten;
• Nieuwe sanitaire voorzieningen;
• luxe afgewerkte personenliften;
• koeling van de diverse kantoorruimten;
• kabelgoten;
• gemeenschappelijk dakterras;
• Nieuwe luxe pantry.
HUURPRIJSINDEXERING
De huurprijs wordt jaarlijks geïndexeerd, voor het eerst één jaar na huuringangsdatum, overeenkomstig het consumentenprijsindex (CPI), reeks alle huishoudens (2015 = 100).
HUURTERMIJN
5 (vijf) jaren plus een verlengingsmogelijkheid van 5 (vijf) jaren; opzegtermijn 12 maanden. Kortere huurperioden zijn bespreekbaar.
ZEKERHEIDSSTELLING
Huurder dient een bankgarantie te stellen ter grootte van een bedrag van vier maanden huur inclusief BTW en servicekosten, afhankelijk van de te verkrijgen kredietinformatie.
VOORWAARDEN & CONDITIES
Er zal gewerkt worden langs de lijnen van een standaard huurcontract, zoals opgesteld door de Raad voor Onroerende Zaken (ROZ), model feb 2015.
BTW
Er zal geopteerd worden voor BTW-belaste verhuur. Huurder dient derhalve voor meer dan 90% BTW-belaste leveringen en diensten blijvend te leveren. BTW vrij huren is bespreekbaar, er zal alsdan een nader overeen te komen opslag percentage worden doorberekend.
BEREIKBAARHEID
Auto
Met de auto bereikbaar via de ringweg A10 middels diversen afslagen.
Parkeren
In de nabijheid van het object zijn diverse openbare parkeergarages gelegen, te weten:
- de Kolk
- Centraal Station
- de Bijenkorf
- Parkeergarage Rokin
Openbaar vervoer
Zeer goed bereikbaar met openbaar vervoer. Tramlijnen 2, 4, 9, 12, 13, 14 17, 24 en 25 stoppen op de hoek. Vanaf het Centraal Station is het ongeveer 10 minuten lopen naar de Paleisstraat.
Gelegen op een prominente locatie in het Centrum van Amsterdam, direct aan de Dam, naast het Paleis op de Dam en de Kalverstraat. Alle voorzieningen zoals horeca, hotels, openbaar vervoer en parkeergelegenheid in de directe omgeving op loopafstand gelegen.
Representatieve kantoorruimten van ca. 566 m² gelegen op de 4e verdieping. De gemeenschappelijke ruimten en de voor verhuur beschikbare kantoorruimte zijn onlangs geheel gerenoveerd.
VERHUURBARE OPPERVLAKTE
Het betreft hier ca. 566 m² totaal gerenoveerde kantoorruimte gelegen op de 4de verdieping.
AANVANGHUURPRIJS
€ 350- per m² per jaar te vermeerderen met servicekosten en BTW.
SERVICEKOSTEN
P.M.
HUURINGANGSDATUM/OPLEVERING
Per direct.
BESTEMMING
De publiek-/privaatrechtelijke bestemming is kantoorruimte.
VOORZIENINGEN
Het object zal worden opgeleverd met de volgende
voorzieningen:
• zeer representatieve entree met fraai stucwerk, ornamenten en glas in lood koepel. De entree beschikt over een sfeervolle wachtruimte;
• bemande receptie op werkdagen tussen 08:00 uur en 16:00 uur;
• stijlvolle verlichting in de gemeenschappelijke ruimten;
• Nieuwe sanitaire voorzieningen;
• luxe afgewerkte personenliften;
• koeling van de diverse kantoorruimten;
• kabelgoten;
• gemeenschappelijk dakterras;
• Nieuwe luxe pantry.
HUURPRIJSINDEXERING
De huurprijs wordt jaarlijks geïndexeerd, voor het eerst één jaar na huuringangsdatum, overeenkomstig het consumentenprijsindex (CPI), reeks alle huishoudens (2015 = 100).
HUURTERMIJN
5 (vijf) jaren plus een verlengingsmogelijkheid van 5 (vijf) jaren; opzegtermijn 12 maanden. Kortere huurperioden zijn bespreekbaar.
ZEKERHEIDSSTELLING
Huurder dient een bankgarantie te stellen ter grootte van een bedrag van vier maanden huur inclusief BTW en servicekosten, afhankelijk van de te verkrijgen kredietinformatie.
VOORWAARDEN & CONDITIES
Er zal gewerkt worden langs de lijnen van een standaard huurcontract, zoals opgesteld door de Raad voor Onroerende Zaken (ROZ), model feb 2015.
BTW
Er zal geopteerd worden voor BTW-belaste verhuur. Huurder dient derhalve voor meer dan 90% BTW-belaste leveringen en diensten blijvend te leveren. BTW vrij huren is bespreekbaar, er zal alsdan een nader overeen te komen opslag percentage worden doorberekend.
BEREIKBAARHEID
Auto
Met de auto bereikbaar via de ringweg A10 middels diversen afslagen.
Parkeren
In de nabijheid van het object zijn diverse openbare parkeergarages gelegen, te weten:
- de Kolk
- Centraal Station
- de Bijenkorf
- Parkeergarage Rokin
Openbaar vervoer
Zeer goed bereikbaar met openbaar vervoer. Tramlijnen 2, 4, 9, 12, 13, 14 17, 24 en 25 stoppen op de hoek. Vanaf het Centraal Station is het ongeveer 10 minuten lopen naar de Paleisstraat.
Kenmerken
Overdracht
- Huurprijs
- € 350 per vierkante meter per jaar
- Servicekosten
- Geen servicekosten bekend
- Aangeboden sinds
-
- Status
- Beschikbaar
- Aanvaarding
- Per direct beschikbaar
Bouw
- Hoofdfunctie
- Kantoor
- Soort bouw
- Bestaande bouw
- Bouwjaar
- 1912
Oppervlakten
- Oppervlakte
- 566 m²
Indeling
- Aantal bouwlagen
- 1 bouwlaag
Energie
- Energielabel
- Niet beschikbaar
Foto's