Lauriergracht 37-39 1016 RG Amsterdam

€ 5.250.000 k.k.

Omschrijving

Lauriergracht 37-39

De Voorzienigheid

Verscholen achter een onopvallend ogende gevel aan de Lauriergracht schuilt een zeer bijzondere plek die groter is dan je van buiten vermoedt; een voormalige kapel en hostiebakkerij getransformeerd tot kantoorruimte. Hier is geschiedenis geschreven en zijn er volop mogelijkheden voor een koper om de toekomst te bepalen.

In 1882 lieten de Arme Zusters van het Goddelijk Kind een kapel bouwen als onderdeel van hun liefdadigheidsgesticht: De Voorzienigheid. Ruim een eeuw later zag reclamebureau KesselsKramer in dezelfde muren iets nieuws. Wat ooit een plek van geloof, zorg en orde was, werd een huis voor verbeelding, experiment en eigenzinnigheid.

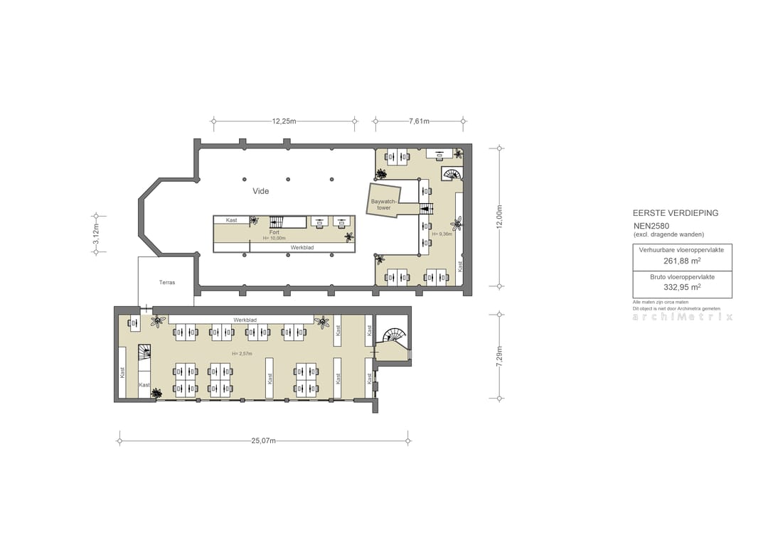
De inmiddels rijksmonumentale kapel heeft sinds 1990 geen religieuze functie meer, maar nog altijd zijn het orgel en het marmeren altaar aanwezig. Het Londense ontwerpbureau Fashion Architecture Taste (FAT) heeft het huidige interieur ontwikkeld, waarbij bijzondere items zijn ontworpen zoals een fort met duikplank, strandhuis en schapenhekjes. In het interieur zijn onder meer gietijzeren kolommen, hoge spitsboogvensters met traceringen en de (oorspronkelijke) glas-in-lood ramen behouden gebleven. In directe verbinding met de kapel staat de voormalige hostiebakkerij. Het twee-laagse gebouw is rond 1950 gebouwd, betreft geen monument en heeft zicht op het binnenterrein gelegen aan de Konijnenstraat.

De Voorzienigheid, bestaande uit een kantoorruimte van ruim 1.000 m² (vier appartementsrechten) en twee parkeerplaatsen op afgesloten terrein (twee appartementsrechten), wordt leeg, vrij van huur en gebruik te koop aangeboden. Op zowel de voormalige kapel als hostiebakkerij zit een dubbele bestemming; wonen is ook mogelijk. De appartementsrechten zijn gelegen op eigen grond en maken onderdeel uit van het historische complex en de daar bijhorende VvE rond de Lauriergracht, Konijnenstraat en Elandsstraat.

Het gehele pand bevindt zich aan de binnen- en buitenzijde in algemene zin in een goede staat van onderhoud. Een nieuwe eigenaar zal het waarschijnlijk moderniseren om aan de huidige wensen en eisen qua luxe en duurzaamheid te voldoen.

De Voorzienigheid is geen doorsnee object en daarom zal het werken in de kapel ook nooit voelen als een doorsnee kantoordag. KesselsKramer heeft het besluit om deze kapel los te laten niet licht genomen. De wens is dat een nieuwe eigenaar de ruimte niet alleen gebruikt, maar ook koestert, zoals het bureau dat deed.

Historie
De kapel werd in 1882 gebouwd als onderdeel van een groter katholiek complex voor de Congregatie der Arme Zusters van het Goddelijk Kind, van het ‘Gesticht De Voorzienigheid’ gewijd aan zorg, opvoeding en onderwijs. Het ontwerp was van Adrianus Bleijs, leerling van Pierre Cuypers en ook bekend van de Amsterdamse Nikolaaskathedraal. Bleijs was vooruitstrevender dan zijn leermeester: minder streng neogotisch, met durf om gietijzer en lichtere materialen in religieuze architectuur toe te passen. Dankzij het grotere draagvermogen van ijzer zijn de zuilen slank, wat je voelt aan de openheid en het licht in de ruimte.

Het gebouw maakte deel uit van een veel groter geheel: een weeshuis, leslokalen, een kweekschool, een hostiebakkerij, interne woningen voor de zusters, en een kapel waar dagelijks werd gezongen en gebeden. De hostiebakkerij op Lauriergracht 37 (het adres waar Multatuli de koffiehandelaar Last & Co situeerde) produceerde circa 200.000 hosties per week, voor meer dan 300 parochies in het land. Het kloostercomplex kwam bekend te staan als het ‘Vaticaan van de Jordaan’. De hostiebakkerij werd rond 1858 opgestart door de zusters van de congregatie als één van de werkactiviteiten van het gesticht. Het twee-laagse gebouw is rond 1950 gebouwd, betreft geen monument en heeft zicht op en toegang tot het binnenterrein gelegen aan de Konijnenstraat.

De naam ‘De Voorzienigheid’ verwijst naar het geloof dat God waakt over het levenspad. De laatste zusters verlieten het pand in 1990. De buurt en het Cuypersgenootschap wisten ternauwernood sloop te voorkomen en een rijksmonumentstatus af te dwingen — een redding die het gebouw tot vandaag heeft beschermd en waar honderden mensen op afkomen tijdens Open Monumentendag.

Gebouw
In 1997 werd KesselsKramer eigenaar van de kapel. Het internationaal gerenommeerde reclamebureau durft te werken buiten de conventionele paden. Voor de herinrichting werd dan ook gekozen voor het Londense architectencollectief FAT — Fashion Architecture Taste. De ontwerpers kregen als uitdaging om de ruimte niet bouwkundig te veranderen, vanwege de monumentale status.

FAT ontwierp een houten fort midden in de ruimte, met werkplekken, trappen, picknicktafels, een duikplank, spiegelwanden en een bibliotheek als ruggengraat. Alles staat los, als een toneeldecor waarin mensen zich vrij kunnen bewegen. Het ontwerp werd vaak gepubliceerd en geldt tot op de dag van vandaag nog steeds als zeldzaam voorbeeld van postmodern, multidisciplinair interieurontwerp in Nederland.

De kapel vormt het hart en daaromheen liggen gangen, voormalige kloosterruimtes, een hostiebakkerij en woonvertrekken die door de jaren heen hun functie hebben veranderd. De hoogte van de kapel blijft voelbaar, maar het houten fort brengt intimiteit: open en besloten tegelijk. Op het orgelbalkon boven de entree zijn werkplekken ingericht met uitzicht over de hele kapel.

Naast het altaar ligt de sacristie, vroeger het domein van de priester, nu een vergaderruimte en een lunchruimte. De oorspronkelijke doorgang naar het altaar is dichtgezet, maar de gewelfde vorm en oude kastdeuren herinneren aan de vroegere functie.

Aan de zijkant van de kapel ligt de voormalige hostiebakkerij, die begin jaren 2000 bij het complex is getrokken. Waar ooit honderdduizenden hosties per week werden gebakken, bevinden zich nu studio’s en werkruimtes. De lange ruimte met betonnen vloer en hoge ramen heeft een industriële helderheid die contrasteert met de kapel zelf.

In het voorgebouw aan de grachtzijde zijn vergaderruimtes gecreëerd. De oorspronkelijke gangen en kloostercellen zijn grotendeels intact. Achter dikke muren en smalle deuren liggen nu opslagruimtes en kleine werkplekken.

Buitenruimte
Vanaf de tweede verdieping van de voormalige hostiebakkerij is toegang tot een dakterras mogelijk. Bijzonder is de ligging direct naast de zuilen van de kapel. Het afgesloten binnenterrein direct naast de voormalige hostiebakkerij biedt ruimte voor het parkeren van auto’s en fietsen.

Buurt + hotspots
De Lauriergracht is gelegen in het hart van de Jordaan. Hier komen de Amsterdamse denimindustrie, mode, kunst en design samen met de historische combinatie van wonen en werken die deze buurt al eeuwenlang kenmerkt. Een breed aanbod van leisure, sportfaciliteiten, yoga, en culinaire voorzieningen is hieraan toegevoegd.

De Jordaan vormt een oase van rust binnen de bruisende binnenstad en de Lauriergracht is een rustige gracht binnen een dynamisch stuk van de Jordaan. Op steenworp afstand zijn diverse galerieën, eigentijdse conceptstores en het grenst bovendien aan de Negen Straatjes waar handel, ambacht en cultuur als vanouds de boventoon voeren.

Bereikbaarheid
Het object is goed bereikbaar met eigen vervoer dankzij de ligging nabij de Rozengracht. Via de S105 is in circa 10 minuten de ringweg A10 West te bereiken. Zowel aan de Rozengracht als aan de Marnixstraat zijn tramhaltes voor de lijnen 5, 7, 19. Aan de Marnixstraat is ook busstation Elandsgracht gelegen wat een startpunt is voor diverse buslijnen.

Parkeergelegenheid
Er worden twee parkeerplaatsen te koop aangeboden op het afgesloten parkeerterrein direct naast de hostiebakkerij. Tevens is betaald parkeren mogelijk bij Q-Park Europarking aan de Marnixstraat of op de openbare weg middels betaling of een vergunningensysteem.
Vraagprijs parkeerplaats: € 150.000,- kosten koper per parkeerplaats.

Bijzonderheden
• rijksmonument
• bijzonder interieur ontwerp
• kapelhoogte circa 13 meter
• twee parkeerplaatsen
• gelegen op eigen grond
• dubbele bestemming, wonen is ook mogelijk
• uniek in soort

Kenmerken

Overdracht

Vraagprijs
€ 5.250.000 kosten koper
Servicekosten
Geen servicekosten bekend
Aangeboden sinds
Status
Beschikbaar
Aanvaarding
In overleg

Bouw

Hoofdfunctie
Kantoor
Soort bouw
Bestaande bouw
Bouwjaar
Voor 1906

Oppervlakten

Oppervlakte
1.001 m²

Indeling

Aantal bouwlagen
2 bouwlagen
Voorzieningen
Toilet, pantry, verwarming en kamerindeling

Energie

Energielabel
Niet beschikbaar

Omgeving

Ligging
Stadscentrum/dorpskern, in woonwijk, stationslocatie en aan vaarwater

Parkeergelegenheid

Parkeerplaatsen
2 niet-overdekte parkeerplaatsen

Kaart

Kaart laden...

Kadastrale grens Bebouwing

Reistijd

Krijg inzicht in de bereikbaarheid van dit object vanuit bijvoorbeeld een openbaar vervoer station of vanuit een adres.

Lauriergracht 37-39

€ 5.250.000 k.k.