Damrak 89-90 1012 LP Amsterdam

€ 275 /m²/jaar

Omschrijving

Het Gebouw

Het kantoorpand is gunstig gesitueerd aan het Damrak, vroeger het economische middelpunt van de stad. Tegenwoordig onderdeel van de Rode Loper. Het kantoorpand is gelegen op een ware zichtlocatie en wordt omringt door recent gevestigde namen als Guerilla , Bestseller, Adyen en Usabilla. Het gaat om twee aaneengesloten panden waardoor het object beschikt over zeer ruime vloeren. De vele raampartijen aan weerszijden zorgen voor grootschalige daglichttoetreding . Het object is gelegen in hartje Amsterdam. In de directe omgeving bevinden zich het Centraal Station en de prachtige Dam. De directe omgeving kenmerkt zich door een combinatie van wonen, werken en recreëren. Tevens is de grote diversiteit aan voorzieningen (o.a. winkels, hotels en restaurants) een hoogtepunt.

Beschikbaar metrage
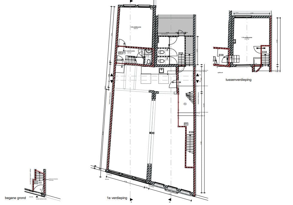
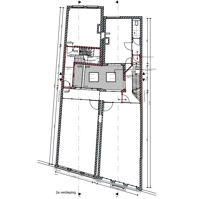
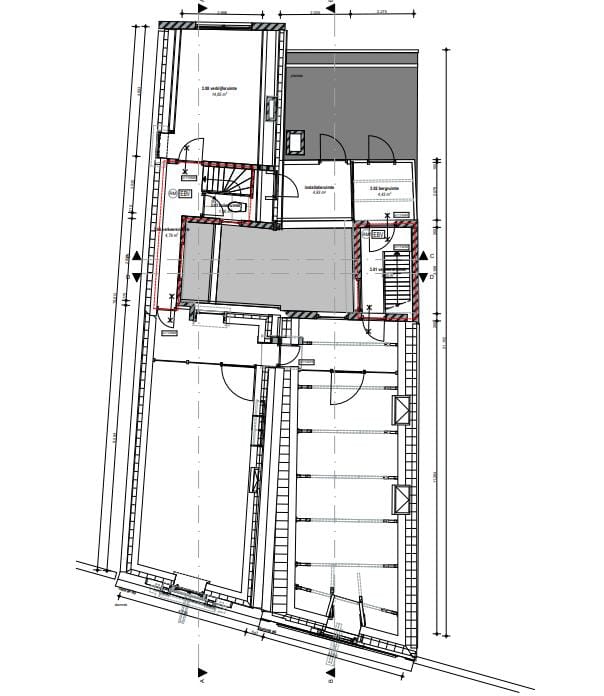
435 m², als volgt verdeeld:
1e verdieping: 175 m² v.v.o.
2e & 3e verdieping: 260 m² v.v.o.

Bovenstaande metrages zijn inclusief toeslag algemene ruimte.

Huurtermijn
5 jaar.

Aanvaarding
Per direct.

Huurprijs
1e verdieping: € 300,- m² v.v.o. per jaar, excl BTW.
2e & 3e verdieping: € 275,- m² v.v.o. per jaar, excl BTW.

Servicekosten
€ 25,- m² v.v.o. per jaar, excl BTW.

Bereikbaarheid

Per OV
Het object is zeer goed bereikbaar met het openbaar vervoer. Het object ligt op vijf minuten loopafstand van Centraal Station Amsterdam, welke in uitstekende verbinding staat met omliggende steden.

Per Auto
Door de gunstige ligging naast de verbindingsweg S100 is het object ook goed bereikbaar met de auto. Zo zijn de Ringwegen A10, A1 en A2 binnen enkele minuten te bereiken.

Kenmerken

Overdracht

Huurprijs
€ 275 per vierkante meter per jaar
Servicekosten
€ 25 per vierkante meter per jaar (21% BTW van toepassing)
Aangeboden sinds
Status
Beschikbaar
Aanvaarding
Per direct beschikbaar

Bouw

Hoofdfunctie
Kantoor
Soort bouw
Bestaande bouw
Bouwjaar
1728

Oppervlakten

Oppervlakte
435 m² (in units vanaf 175 m²)

Indeling

Aantal bouwlagen
3 bouwlagen

Energie

Energielabel
Niet beschikbaar

Kaart

Kaart laden...

Kadastrale grens Bebouwing

Reistijd

Krijg inzicht in de bereikbaarheid van dit object vanuit bijvoorbeeld een openbaar vervoer station of vanuit een adres.