Haarlemmer Houttuinen 23 1013 GL Amsterdam
€ 57.500 /jr
Omschrijving
Omschrijving
Het monumentale gebouw heeft recentelijk een zeer grondige renovatie ondergaan, welke heeft geresulteerd in een ruime met elegante werkplekken op de begane grond, gekenmerkt door een verfijnde combinatie van glas en zwart staal. Deze ruimte biedt de ideale omgeving voor creativiteit, nadenken en groei.
De verdieping is met uitsluitend hoogwaardige materialen en installaties afgewerkt en uitgerust waaronder een houten vloer en een pantry. Verder heeft de ruimte de beschikking over een sfeervolle patio en grote openslaande deuren naar de straat toe.
Daarnaast vormt het een perfect vertrekpunt voor snelle toegang tot het centraal station of de iconische grachten, waardoor je moeiteloos kunt genieten van de cafés, restaurants en bezienswaardigheden die de stad te bieden heeft.
Metrage
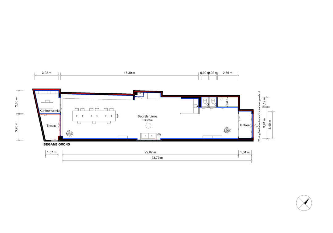
De gehele begane grond verdieping, zijnde een oppervlakte van circa 150 m², inclusief patio.
Huurprijs
De aanvangshuurprijs bedraagt € 57.500 per jaar, te vermeerderen met BTW.
Servicekosten
Een voorschotbedrag ter grootte van € 25,- per m² per jaar, te vermeerderen met BTW. Op basis van jaarlijkse nacalculatie.
Ligging en bereikbaarheid
Op loopafstand van Amsterdam Centraal, Jordaan en Grachtengordel.
Huurcondities
5 jaar.
Aanvaarding
1 december 2026, een eerdere aanvaarding is eventueel in overleg mogelijk.
Opzegtermijn
12 maanden.
Zekerheidstelling
Waarborgsom ter grootte van 3 maanden huur inclusief BTW.
Huurindexering
Jaarlijks overeenkomstig het maand prijsindexcijfer volgens het consumentenprijsindexcijfer (CPI) reeks CPI alle huishoudens (2015=100) gepubliceerd door het Centraal Bureau voor de Statistiek (CBS). De huurprijs zal nimmer minder bedragen dan de huurprijs van het voorafgaande jaar. Indexatie voor het eerst 12 maanden na huur ingangsdatum en zo vervolgens jaarlijks.
BTW
Ja, is van toepassing
Energielabel
Het gebouw heeft energielabel A.
Opleveringsniveau
Turnkey, onder andere voorzien van:
- Een stijlvolle houten vloer
- Een pantry, compleet met vaatwasser
- Databekabeling voor optimale connectiviteit
- Een energiezuinig LED-verlichtingsplan
- Een karakteristieke patio
- Een energiezuinige luchtverversing met warmtewisselaar
Voorbehoud
Deze informatie is geheel vrijblijvend en houdt slechts een uitnodiging in tot het doen van een voorstel.
Het monumentale gebouw heeft recentelijk een zeer grondige renovatie ondergaan, welke heeft geresulteerd in een ruime met elegante werkplekken op de begane grond, gekenmerkt door een verfijnde combinatie van glas en zwart staal. Deze ruimte biedt de ideale omgeving voor creativiteit, nadenken en groei.
De verdieping is met uitsluitend hoogwaardige materialen en installaties afgewerkt en uitgerust waaronder een houten vloer en een pantry. Verder heeft de ruimte de beschikking over een sfeervolle patio en grote openslaande deuren naar de straat toe.
Daarnaast vormt het een perfect vertrekpunt voor snelle toegang tot het centraal station of de iconische grachten, waardoor je moeiteloos kunt genieten van de cafés, restaurants en bezienswaardigheden die de stad te bieden heeft.
Metrage
De gehele begane grond verdieping, zijnde een oppervlakte van circa 150 m², inclusief patio.
Huurprijs
De aanvangshuurprijs bedraagt € 57.500 per jaar, te vermeerderen met BTW.
Servicekosten
Een voorschotbedrag ter grootte van € 25,- per m² per jaar, te vermeerderen met BTW. Op basis van jaarlijkse nacalculatie.
Ligging en bereikbaarheid
Op loopafstand van Amsterdam Centraal, Jordaan en Grachtengordel.
Huurcondities
5 jaar.
Aanvaarding
1 december 2026, een eerdere aanvaarding is eventueel in overleg mogelijk.
Opzegtermijn
12 maanden.
Zekerheidstelling
Waarborgsom ter grootte van 3 maanden huur inclusief BTW.
Huurindexering
Jaarlijks overeenkomstig het maand prijsindexcijfer volgens het consumentenprijsindexcijfer (CPI) reeks CPI alle huishoudens (2015=100) gepubliceerd door het Centraal Bureau voor de Statistiek (CBS). De huurprijs zal nimmer minder bedragen dan de huurprijs van het voorafgaande jaar. Indexatie voor het eerst 12 maanden na huur ingangsdatum en zo vervolgens jaarlijks.
BTW
Ja, is van toepassing
Energielabel
Het gebouw heeft energielabel A.
Opleveringsniveau
Turnkey, onder andere voorzien van:
- Een stijlvolle houten vloer
- Een pantry, compleet met vaatwasser
- Databekabeling voor optimale connectiviteit
- Een energiezuinig LED-verlichtingsplan
- Een karakteristieke patio
- Een energiezuinige luchtverversing met warmtewisselaar
Voorbehoud
Deze informatie is geheel vrijblijvend en houdt slechts een uitnodiging in tot het doen van een voorstel.
Kenmerken
Overdracht
- Huurprijs
- € 57.500 per jaar
- Servicekosten
- Geen servicekosten bekend
- Aangeboden sinds
-
- Status
- Beschikbaar
- Aanvaarding
- In overleg
Bouw
- Hoofdfunctie
- Kantoor
- Soort bouw
- Bestaande bouw
- Bouwjaar
- 1600
Oppervlakten
- Oppervlakte
- 150 m²
Indeling
- Aantal bouwlagen
- 1 bouwlaag
- Voorzieningen
- Airconditioning, mechanische ventilatie, inbouwarmaturen, te openen ramen, kabelgoten, toilet, pantry, verwarming en kamerindeling
Energie
- Energielabel
- A
Omgeving
- Ligging
- Stadscentrum/dorpskern
Foto's