Baarnsche dijk 21 3741 LP Baarn
€ 119.000 /jr
Omschrijving
ALGEMEEN
Dit kantoorgebouw is gelegen in het hart van Nederland, tussen Hilversum en Amersfoort. In de directe omgeving bevindt zich het centrum van Baarn, dat een gevarieerd en aantrekkelijk aanbod biedt van winkels, horecagelegenheden en overige voorzieningen. Het vrijstaande kantoorgebouw sluit hier uitstekend op aan en kenmerkt zich door een representatieve uitstraling.
BEREIKBAARHEID
De locatie ligt onderaan afslag 11 van de A1. Per auto prima bereikbaar, maar ook met openbaar vervoer. De nabijgelegen bushalte “De Drie Eiken” bied een directe verbinding naar onder andere NS-station Baarn en is binnen 10 minuten per fiets bereikbaar.
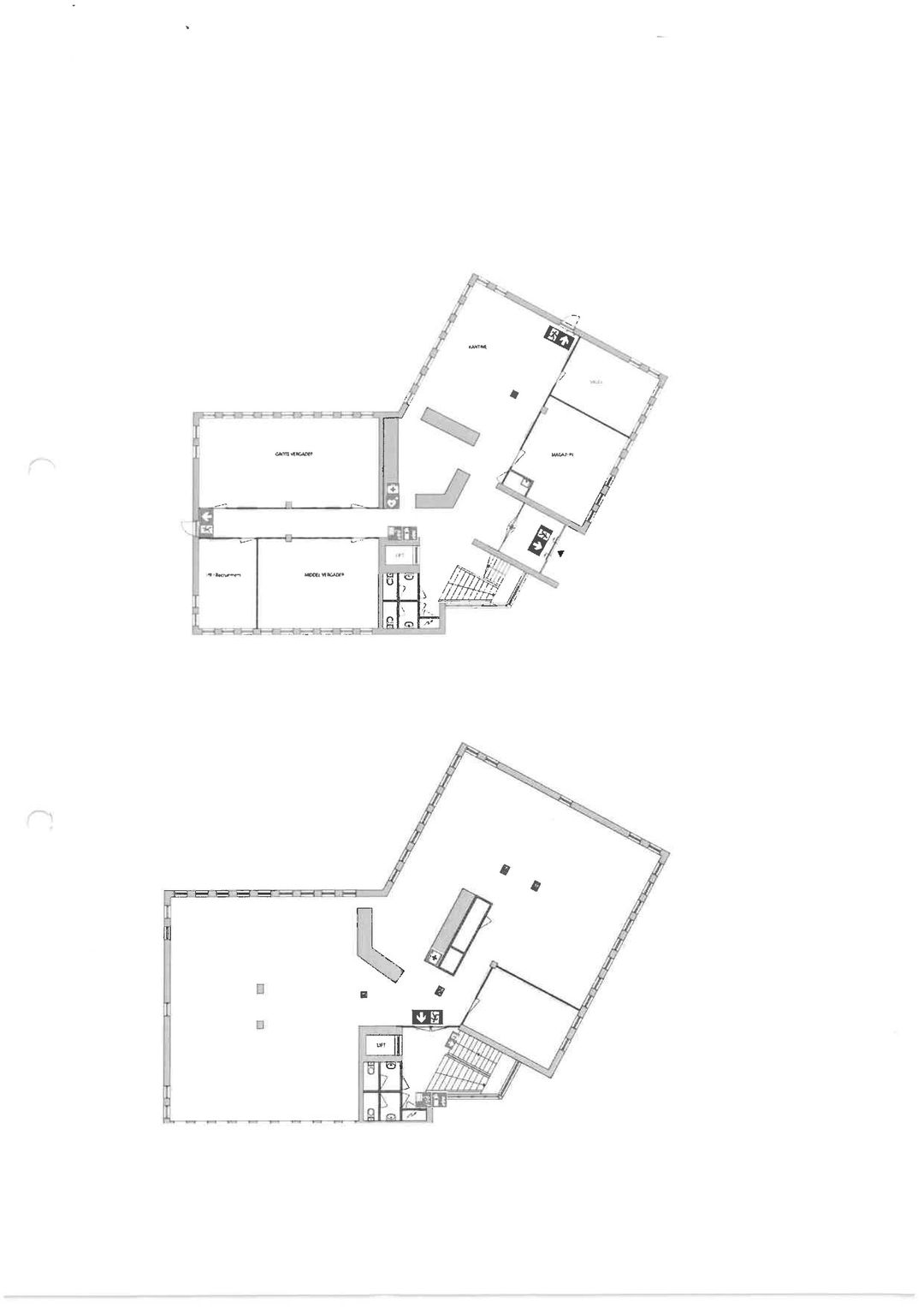
VLOEROPPERVLAKTE
Deze kantoorruimte heeft een verhuurbaar vloeroppervlak ter grootte van 892 m², verdeeld over drie bouwlagen en als volgt verdeeld:
- 321 m² op de begane grond;
- 366 m² op de 1e verdieping;
- 205 m² op de 2e verdieping.
Van het object is een NEN2580 meetcertificaat beschikbaar.
OPLEVERINGSNIVEAU
De onroerende zaak zal worden geleverd in de huidige staat, derhalve inclusief o.a.:
- systeemplafonds met (ingebouwde) verlichtingsarmaturen;
- vloerbedekking;
- scheidingswanden;
- sanitair per verdieping;
- pantry per verdieping voorzien van Quooker, vaatwasser en koelkast;
- c.v. installatie;
- liftinstallatie;
- dubbele beglazing;
- alarminstallatie;
- kabelgoten voor elektra, data en telefoonbekabeling; elektra;
- wandcontactdozen, inclusief databekabeling (Cat 5E);
- airconditioning v.v. afstandsbediening (gedeeltelijk);
- brandmeldinstallatie;
- 2 dubbele laadpalen;
- 60 zonnepanelen op het dak.
Afgegeven energielabel conform de Regeling energieprestatie gebouwen: A.
PARKEREN
Tot het object behoren in totaal 10 parkeerplaatsen op eigen terrein, waarbij ook ruime beschikbaarheid parkeerplaatsen op de openbare weg.
BESTEMMING
Kantoorruimte
Informatie inzake gebruiksmogelijkheden en voorschriften is te verkrijgen via ons kantoor, bij de gemeente of via de website van ruimtelijke plannen.
HUURPRIJS
€ 119.000,00 per jaar te vermeerderen met de geldende BTW.
BTW
Uitgangspunt is een met BTW belaste huurprijs. Indien een huurder niet voldoet aan de voor belaste verhuur gestelde criteria zal de huurprijs zodanig worden verhoogd dat het voor verhuurder ontstane financiële nadeel volledig wordt gecompenseerd.
SERVICEKOSTEN
Nader overeen te komen.
HUURTERMIJN
Huurperiode van 5 jaar gevolgd door verlengingstermijnen van telkens 5 jaar.
OPZEGTERMIJN
12 maanden.
HUURBETALING
De totale betalingsverplichting dient per kwartaal vooruit te worden voldaan.
ZEKERHEIDSTELLING
Een bankgarantie ter grootte van drie maanden betalingsverplichting en servicekosten te vermeerderen met de geldende BTW.
HUURINDEXATIE
De huurprijs zal jaarlijks, voor het eerst 1 jaar na de huuringangsdatum, worden verhoogd op basis van de consumentenprijsindex (CPI) zoals wordt gepubliceerd door het Centraal Bureau voor de Statistiek (CBS).
HUUROVEREENKOMST
De huurovereenkomst zal zijn gebaseerd op het model zoals is vastgesteld door de Raad voor Onroerende Zaken (ROZ) 2025, inclusief de algemene bepalingen.
AANVAARDING
In overleg.
Dit kantoorgebouw is gelegen in het hart van Nederland, tussen Hilversum en Amersfoort. In de directe omgeving bevindt zich het centrum van Baarn, dat een gevarieerd en aantrekkelijk aanbod biedt van winkels, horecagelegenheden en overige voorzieningen. Het vrijstaande kantoorgebouw sluit hier uitstekend op aan en kenmerkt zich door een representatieve uitstraling.
BEREIKBAARHEID
De locatie ligt onderaan afslag 11 van de A1. Per auto prima bereikbaar, maar ook met openbaar vervoer. De nabijgelegen bushalte “De Drie Eiken” bied een directe verbinding naar onder andere NS-station Baarn en is binnen 10 minuten per fiets bereikbaar.
VLOEROPPERVLAKTE
Deze kantoorruimte heeft een verhuurbaar vloeroppervlak ter grootte van 892 m², verdeeld over drie bouwlagen en als volgt verdeeld:
- 321 m² op de begane grond;
- 366 m² op de 1e verdieping;
- 205 m² op de 2e verdieping.
Van het object is een NEN2580 meetcertificaat beschikbaar.
OPLEVERINGSNIVEAU
De onroerende zaak zal worden geleverd in de huidige staat, derhalve inclusief o.a.:
- systeemplafonds met (ingebouwde) verlichtingsarmaturen;
- vloerbedekking;
- scheidingswanden;
- sanitair per verdieping;
- pantry per verdieping voorzien van Quooker, vaatwasser en koelkast;
- c.v. installatie;
- liftinstallatie;
- dubbele beglazing;
- alarminstallatie;
- kabelgoten voor elektra, data en telefoonbekabeling; elektra;
- wandcontactdozen, inclusief databekabeling (Cat 5E);
- airconditioning v.v. afstandsbediening (gedeeltelijk);
- brandmeldinstallatie;
- 2 dubbele laadpalen;
- 60 zonnepanelen op het dak.
Afgegeven energielabel conform de Regeling energieprestatie gebouwen: A.
PARKEREN
Tot het object behoren in totaal 10 parkeerplaatsen op eigen terrein, waarbij ook ruime beschikbaarheid parkeerplaatsen op de openbare weg.
BESTEMMING
Kantoorruimte
Informatie inzake gebruiksmogelijkheden en voorschriften is te verkrijgen via ons kantoor, bij de gemeente of via de website van ruimtelijke plannen.
HUURPRIJS
€ 119.000,00 per jaar te vermeerderen met de geldende BTW.
BTW
Uitgangspunt is een met BTW belaste huurprijs. Indien een huurder niet voldoet aan de voor belaste verhuur gestelde criteria zal de huurprijs zodanig worden verhoogd dat het voor verhuurder ontstane financiële nadeel volledig wordt gecompenseerd.
SERVICEKOSTEN
Nader overeen te komen.
HUURTERMIJN
Huurperiode van 5 jaar gevolgd door verlengingstermijnen van telkens 5 jaar.
OPZEGTERMIJN
12 maanden.
HUURBETALING
De totale betalingsverplichting dient per kwartaal vooruit te worden voldaan.
ZEKERHEIDSTELLING
Een bankgarantie ter grootte van drie maanden betalingsverplichting en servicekosten te vermeerderen met de geldende BTW.
HUURINDEXATIE
De huurprijs zal jaarlijks, voor het eerst 1 jaar na de huuringangsdatum, worden verhoogd op basis van de consumentenprijsindex (CPI) zoals wordt gepubliceerd door het Centraal Bureau voor de Statistiek (CBS).
HUUROVEREENKOMST
De huurovereenkomst zal zijn gebaseerd op het model zoals is vastgesteld door de Raad voor Onroerende Zaken (ROZ) 2025, inclusief de algemene bepalingen.
AANVAARDING
In overleg.
Kenmerken
Overdracht
- Huurprijs
- € 119.000 per jaar
- Servicekosten
- Geen servicekosten bekend
- Aangeboden sinds
-
- Status
- Beschikbaar
- Aanvaarding
- In overleg
Bouw
- Hoofdfunctie
- Kantoor
- Soort bouw
- Bestaande bouw
- Bouwjaar
- 1992
Oppervlakten
- Oppervlakte
- 892 m²
- Perceel
- 892 m²
Indeling
- Aantal bouwlagen
- 3 bouwlagen
- Voorzieningen
- Airconditioning, inbouwarmaturen en liften
Energie
- Energielabel
- A
Omgeving
- Ligging
- Bedrijventerrein
Parkeergelegenheid
- Parkeerplaatsen
- 10 niet-overdekte parkeerplaatsen
Foto's