Omschrijving
TE HUUR
Op zichtlocatie aan de doorgaande weg gelegen KANTOORRUIMTE. De kantoorruimte is gelegen op de begane grond en de verdieping en zijn gelegen aan de voorzijde van het pand.
De kantoren zijn in aanbouw en worden voorzien van eigen aansluitingen op de NUTS voorzieningen (gas middels een tussenmeter), glasvezel, systeemplafonds, led-verlichting, vloer- en wandafwerking, luchtbehandelingssysteem met warmteterugwinning, airco, HR++ zonwerende beglazing en buitenzonwering op de verdieping.
Het betreft een gedeelte van een oudere bedrijfsgebouw welke geheel gerestyled wordt en voorzien wordt van de nieuwste voorzieningen waarbij gelet wordt op de duurzaamheid.
Het object is direct gelegen aan de doorgaande hoofdweg van het industriegebied de Harselaar. Dichtbij de op- en afrit Voorthuizen van de snelweg A1 (Amsterdam - Hengelo). Door de aansluiting van de A1 via de A30 met de A12 is het object vanuit alle richtingen goed bereikbaar. Station Barneveld-Noord is gelegen op loopafstand, waardoor het object ook goed te bereiken is middels het openbaar vervoer.
In de omgeving van het station licht ook het landgoed ‘De Wolfskamer’ voor een wandeling tussen de middag.
Objectomschrijving
Kantoorruimte gelegen aan de Harselaarseweg 22 (3771 MB) te Barneveld.
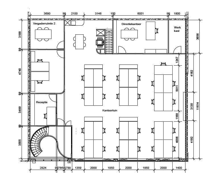
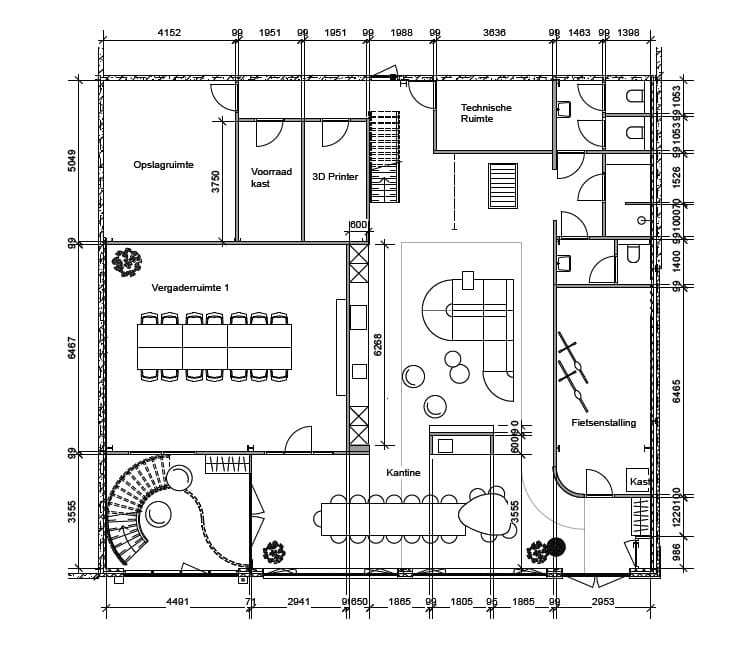
Beschikbare bruto vloeroppervlakte
Begane grond circa 260 m²
Eerste verdieping circa 260 m²
Opleveringsniveau
- Eén hoofdingang en een tweede toegang voor de fietsenberging
- Ontvangsthal met trap naar verdieping
- Systeemplafonds met verlichtingsarmaturen (led-verlichting)
- Alarm
- Data- en elektra aansluitpunten
- Verwarming middels cv-installatie en vloerverwarming
- Vloerafwerking middels tapijt, laminaat en tegels
- Split-unit airconditioning
- Luchtbehandelingssysteem met warmteterugwinning
- Elektrische bedienbare zonwering buitenzijde op de verdieping
- Toiletvoorzieningen
- Douchevoorziening
- Keukenblok met apparatuur op de begane grond
- Pantry op de verdieping
- Interne fietsenberging
- Interne opslagruimte
Aanwezige zaken / inventaris worden door verhuurder ter beschikking gesteld.
Parkeervoorzieningen
Voor het object kun je parkeren op eigen terrein, aantal circa 8. Eventueel worden er 2 laadpalen geplaatst met elk 2 punten.
Energielabel
Is aangevraagd, naar verwachting minimaal A.
Huurvoorwaarden
Huurprijs
€ 125,- per m² per jaar, exclusief BTW en verbruiks-/servicekosten.
Onder verbruiks-/servicekosten vallen in ieder geval, regulier onderhoud en schoonmaak aan de buitenzijde en de installaties, levering gas etc. De werkelijke kosten worden aan het einde van een termijn verrekend.
Huurtermijn
In overleg.
Huurbetaling
Per maand vooruit.
Zekerheidstelling
Ter grootte van 3 maanden huur, te vermeerderen met BTW.
Huurovereenkomst
Volgens ROZ-Model.
Huurprijsindexering
Jaarlijks, voor het eerst één jaar na huur ingangsdatum, op basis van de wijziging van het maand prijsindexcijfer volgens de consumentenprijsindex (CPI) reeks CPI-Alle huishoudens (2025 = 100), gepubliceerd door het Centraal Bureau voor de Statistiek (CBS).
Aanvaarding
In overleg.
DOWNLOAD DE COMPLETE BROCHURE VIA VSOMAKELAARS.NL
ALLE INFORMATIE IS GEHEEL VRIJBLIJVEND EN ONDER VOORBEHOUD. HIERAAN KUNNEN GEEN RECHTEN WORDEN ONTLEEND.
Op zichtlocatie aan de doorgaande weg gelegen KANTOORRUIMTE. De kantoorruimte is gelegen op de begane grond en de verdieping en zijn gelegen aan de voorzijde van het pand.
De kantoren zijn in aanbouw en worden voorzien van eigen aansluitingen op de NUTS voorzieningen (gas middels een tussenmeter), glasvezel, systeemplafonds, led-verlichting, vloer- en wandafwerking, luchtbehandelingssysteem met warmteterugwinning, airco, HR++ zonwerende beglazing en buitenzonwering op de verdieping.
Het betreft een gedeelte van een oudere bedrijfsgebouw welke geheel gerestyled wordt en voorzien wordt van de nieuwste voorzieningen waarbij gelet wordt op de duurzaamheid.
Het object is direct gelegen aan de doorgaande hoofdweg van het industriegebied de Harselaar. Dichtbij de op- en afrit Voorthuizen van de snelweg A1 (Amsterdam - Hengelo). Door de aansluiting van de A1 via de A30 met de A12 is het object vanuit alle richtingen goed bereikbaar. Station Barneveld-Noord is gelegen op loopafstand, waardoor het object ook goed te bereiken is middels het openbaar vervoer.
In de omgeving van het station licht ook het landgoed ‘De Wolfskamer’ voor een wandeling tussen de middag.
Objectomschrijving
Kantoorruimte gelegen aan de Harselaarseweg 22 (3771 MB) te Barneveld.
Beschikbare bruto vloeroppervlakte
Begane grond circa 260 m²
Eerste verdieping circa 260 m²
Opleveringsniveau
- Eén hoofdingang en een tweede toegang voor de fietsenberging
- Ontvangsthal met trap naar verdieping
- Systeemplafonds met verlichtingsarmaturen (led-verlichting)
- Alarm
- Data- en elektra aansluitpunten
- Verwarming middels cv-installatie en vloerverwarming
- Vloerafwerking middels tapijt, laminaat en tegels
- Split-unit airconditioning
- Luchtbehandelingssysteem met warmteterugwinning
- Elektrische bedienbare zonwering buitenzijde op de verdieping
- Toiletvoorzieningen
- Douchevoorziening
- Keukenblok met apparatuur op de begane grond
- Pantry op de verdieping
- Interne fietsenberging
- Interne opslagruimte
Aanwezige zaken / inventaris worden door verhuurder ter beschikking gesteld.
Parkeervoorzieningen
Voor het object kun je parkeren op eigen terrein, aantal circa 8. Eventueel worden er 2 laadpalen geplaatst met elk 2 punten.
Energielabel
Is aangevraagd, naar verwachting minimaal A.
Huurvoorwaarden
Huurprijs
€ 125,- per m² per jaar, exclusief BTW en verbruiks-/servicekosten.
Onder verbruiks-/servicekosten vallen in ieder geval, regulier onderhoud en schoonmaak aan de buitenzijde en de installaties, levering gas etc. De werkelijke kosten worden aan het einde van een termijn verrekend.
Huurtermijn
In overleg.
Huurbetaling
Per maand vooruit.
Zekerheidstelling
Ter grootte van 3 maanden huur, te vermeerderen met BTW.
Huurovereenkomst
Volgens ROZ-Model.
Huurprijsindexering
Jaarlijks, voor het eerst één jaar na huur ingangsdatum, op basis van de wijziging van het maand prijsindexcijfer volgens de consumentenprijsindex (CPI) reeks CPI-Alle huishoudens (2025 = 100), gepubliceerd door het Centraal Bureau voor de Statistiek (CBS).
Aanvaarding
In overleg.
DOWNLOAD DE COMPLETE BROCHURE VIA VSOMAKELAARS.NL
ALLE INFORMATIE IS GEHEEL VRIJBLIJVEND EN ONDER VOORBEHOUD. HIERAAN KUNNEN GEEN RECHTEN WORDEN ONTLEEND.
Kaart
Kaart laden...
Kadastrale grens
Bebouwing
Reistijd
Krijg inzicht in de bereikbaarheid van dit object vanuit bijvoorbeeld een openbaar vervoer station of vanuit een adres.