Omschrijving
TE HUUR:
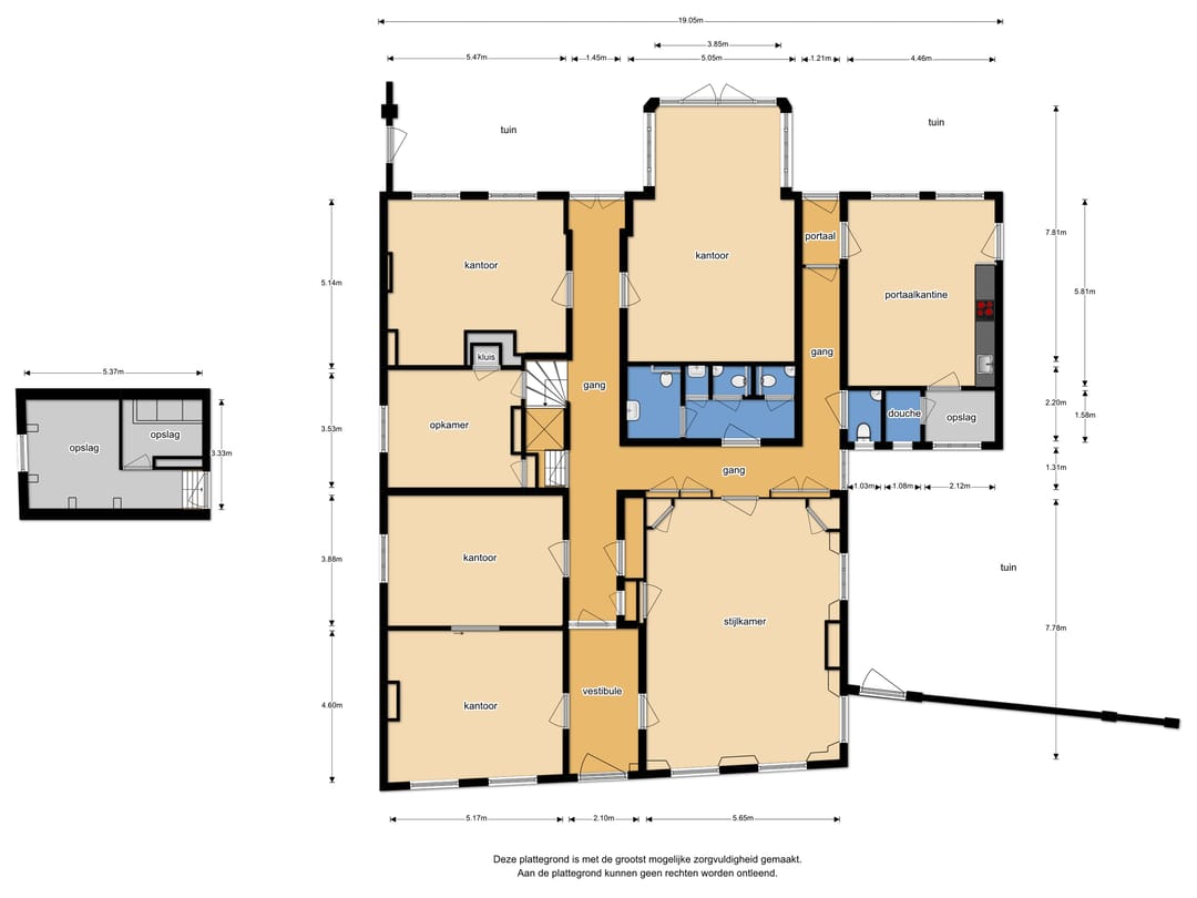
Een kantoorruimte (kamer 0.04) gelegen op de begane grond van een karakteristiek 18e-eeuws herenhuis in het centrum van Beverwijk. Het betreft één zelfstandige kamer op de begane grond met een oppervlakte van ca. 34,5 m² BVO, vermeerderd met ca. 12,9 m² aandeel in de algemene ruimte. Het object is geschikt voor diverse zakelijke doeleinden, waaronder kantoor en dienstverlening conform bestemming.
INDELING / OPLEVERINGSNIVEAU:
De kamer is gelegen op de begane grond en bereikbaar via een gezamenlijke entree. Huurder maakt gebruik van gezamenlijke voorzieningen, waaronder keuken, pantry, toiletten en achtertuin. Het pand is voorzien van een alarmsysteem. In het pand zijn onder meer marmeren vloeren, paneeldeuren en een balkenplafond aanwezig. Oplevering geschiedt in huidige staat.
GROOTTE:
Ca. 34,5 m² (BVO)
Ca. 34,5 m² (VVO)
LOCATIE EN BEREIKBAARHEID:
Gelegen aan de Breestraat in het centrum van Beverwijk, provincie Noord-Holland. De locatie bevindt zich op loopafstand van het treinstation en nabij winkels en overige voorzieningen. De bereikbaarheid per auto is goed via de A9 en A22.
PARKEREN:
Betaald parkeren of parkeren via parkeervergunning in de directe omgeving.
BESTEMMING:
Bestemmingsplan “Breestraat e.o.” met bestemming “Centrumdoeleinden-1”. Binnen deze bestemming zijn detailhandel, dienstverlening en kantoor toegestaan. Huurder dient zelf te onderzoeken of het voorgenomen gebruik binnen het bestemmingsplan past. Voor nadere informatie wordt verwezen naar
en de Gemeente Beverwijk.
OPLEVERING:
In huidige staat. In verband met de rijksmonumentstatus is geen energielabel verplicht.
KADASTRALE GEGEVENS:
Gemeente: Beverwijk
HUURPRIJS:
€ 470,- per maand (exclusief btw)
SERVICEKOSTEN:
€ 156,55 per maand (exclusief btw)
HUURBETALING:
Per maand bij vooruitbetaling.
ZEKERHEIDSSTELLING:
Waarborgsom of bankgarantie ter grootte van drie maanden huurverplichting.
HUURTERMIJN:
In overleg.
VOORBEHOUD
– Goedkeuring en toestemming verhuurder;
– Positieve uitkomst krediettoets ter beoordeling van verhuurder.
VOORWAARDEN
Alle door Teer Bedrijfsmakelaars verstrekte informatie is uitsluitend bedoeld als uitnodiging tot nader overleg en het uitbrengen van een voorstel en is geheel vrijblijvend. Hoewel de informatie met zorg is samengesteld, kunnen hieraan geen rechten worden ontleend. Gegevens kunnen gebaseerd zijn op mondelinge informatie. Kandidaten hebben een eigen onderzoeksplicht.
Voor nadere informatie of het inplannen van een bezichtiging kunt u contact opnemen via telefoonnummer 0251-212102.
Een kantoorruimte (kamer 0.04) gelegen op de begane grond van een karakteristiek 18e-eeuws herenhuis in het centrum van Beverwijk. Het betreft één zelfstandige kamer op de begane grond met een oppervlakte van ca. 34,5 m² BVO, vermeerderd met ca. 12,9 m² aandeel in de algemene ruimte. Het object is geschikt voor diverse zakelijke doeleinden, waaronder kantoor en dienstverlening conform bestemming.
INDELING / OPLEVERINGSNIVEAU:
De kamer is gelegen op de begane grond en bereikbaar via een gezamenlijke entree. Huurder maakt gebruik van gezamenlijke voorzieningen, waaronder keuken, pantry, toiletten en achtertuin. Het pand is voorzien van een alarmsysteem. In het pand zijn onder meer marmeren vloeren, paneeldeuren en een balkenplafond aanwezig. Oplevering geschiedt in huidige staat.
GROOTTE:
Ca. 34,5 m² (BVO)
Ca. 34,5 m² (VVO)
LOCATIE EN BEREIKBAARHEID:
Gelegen aan de Breestraat in het centrum van Beverwijk, provincie Noord-Holland. De locatie bevindt zich op loopafstand van het treinstation en nabij winkels en overige voorzieningen. De bereikbaarheid per auto is goed via de A9 en A22.
PARKEREN:
Betaald parkeren of parkeren via parkeervergunning in de directe omgeving.
BESTEMMING:
Bestemmingsplan “Breestraat e.o.” met bestemming “Centrumdoeleinden-1”. Binnen deze bestemming zijn detailhandel, dienstverlening en kantoor toegestaan. Huurder dient zelf te onderzoeken of het voorgenomen gebruik binnen het bestemmingsplan past. Voor nadere informatie wordt verwezen naar
en de Gemeente Beverwijk.
OPLEVERING:
In huidige staat. In verband met de rijksmonumentstatus is geen energielabel verplicht.
KADASTRALE GEGEVENS:
Gemeente: Beverwijk
HUURPRIJS:
€ 470,- per maand (exclusief btw)
SERVICEKOSTEN:
€ 156,55 per maand (exclusief btw)
HUURBETALING:
Per maand bij vooruitbetaling.
ZEKERHEIDSSTELLING:
Waarborgsom of bankgarantie ter grootte van drie maanden huurverplichting.
HUURTERMIJN:
In overleg.
VOORBEHOUD
– Goedkeuring en toestemming verhuurder;
– Positieve uitkomst krediettoets ter beoordeling van verhuurder.
VOORWAARDEN
Alle door Teer Bedrijfsmakelaars verstrekte informatie is uitsluitend bedoeld als uitnodiging tot nader overleg en het uitbrengen van een voorstel en is geheel vrijblijvend. Hoewel de informatie met zorg is samengesteld, kunnen hieraan geen rechten worden ontleend. Gegevens kunnen gebaseerd zijn op mondelinge informatie. Kandidaten hebben een eigen onderzoeksplicht.
Voor nadere informatie of het inplannen van een bezichtiging kunt u contact opnemen via telefoonnummer 0251-212102.
Kaart
Kaart laden...
Kadastrale grens
Bebouwing
Reistijd
Krijg inzicht in de bereikbaarheid van dit object vanuit bijvoorbeeld een openbaar vervoer station of vanuit een adres.