Omschrijving
Op zoek naar een zelfstandig kantoorgebouw van circa 1.559 m² of een eigen bouwlaag van circa 720 m², gelegen op een prominente zichtlocatie aan de A2? Lees snel verder.
Locatie
Dit kantoorgebouw is gelegen in dé kantorenzone van Tradepark De Herven; daarnaast ligt het gebouw ook nog eens op een absolute zichtlocatie aan de A2. Per etmaal passeren hier, naar verluid, gemiddeld 150.000 voertuigen, dit geeft aan hoe uniek deze locatie is.
De Herven is een modern bedrijventerrein, waar overwegend zakelijke dienstverleners zijn gehuisvest, al dan niet in combinatie met showroom-, opslag- en/of distributiefuncties. Met eigen vervoer is het kantoor zeer goed bereikbaar, de op- en afritten van en naar de A2 zijn op slechts 2 autominuten afstand gelegen. Bereikbaarheid per openbaar vervoer is eveneens goed, op 4 minuten loopafstand is een bushalte gesitueerd met een directe verbinding naar onder andere het Centraal Station en Station Oost.
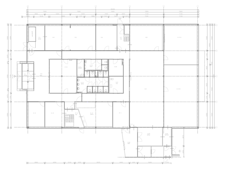
Object & oppervlakte
Dit zelfstandige kantoorgebouw bestaat uit twee bouwlagen en heeft een totale oppervlakte van circa 1.559 m². Het gebouw is voorzien van 152 zonnepanelen wat eveneens bijdraagt aan het goede energielabel, zijnde een label C.
Aan zowel de voor- als achterzijde is een entree gesitueerd. De begane grond (circa 839 m²) bestaat uit een ontvangsthal, meerdere kantoor-/spreekkamers en twee kantoortuinen. Er is een royale kantine, twee heren toiletten, drie dames toiletten en een mindervalide toilet aanwezig.
De eerste verdieping (circa 720 m²) bestaat eveneens uit meerdere kantoor-/spreekkamers, één kantoortuin en een volwaardig bedrijfsrestaurant met officiële bedrijfskeuken. Op deze verdieping zijn twee dubbele toiletgroepen aanwezig en een pantry opstelling. Een leuke feature op deze verdieping is de patio in het midden van de verdieping, dit zorgt niet alleen voor een prettige extra lunchplek bij lekker weer, maar ook voor veel daglicht in de kantoren rondom.
Opleveringsniveau
De kantoorruimtes worden in de huidige staat opgeleverd en zijn onder andere voorzien van:
- systeemplafond voorzien van ledverlichting;
- vloerafwerking (tapijt en pvc);
- wandafwerking (metal stud en glazenpuien);
- verwarming middels radiatoren;
- airconditioning;
Verhuurder gaat graag in overleg met de kandidaat huurder over het eventueel op maat en naar wens aanpassen van het inbouwpakket.
Parkeren
Op het parkeerterrein rondom het kantoor zijn ruim voldoende parkeerplaatsen aanwezig. In totaal zijn er 65 parkeerplaatsen, deze zijn veelal aan de achterzijde gelegen. Aan de voorzijde zijn nog een negental parkeerplaatsen voor bezoekers gesitueerd.
Locatie
Dit kantoorgebouw is gelegen in dé kantorenzone van Tradepark De Herven; daarnaast ligt het gebouw ook nog eens op een absolute zichtlocatie aan de A2. Per etmaal passeren hier, naar verluid, gemiddeld 150.000 voertuigen, dit geeft aan hoe uniek deze locatie is.
De Herven is een modern bedrijventerrein, waar overwegend zakelijke dienstverleners zijn gehuisvest, al dan niet in combinatie met showroom-, opslag- en/of distributiefuncties. Met eigen vervoer is het kantoor zeer goed bereikbaar, de op- en afritten van en naar de A2 zijn op slechts 2 autominuten afstand gelegen. Bereikbaarheid per openbaar vervoer is eveneens goed, op 4 minuten loopafstand is een bushalte gesitueerd met een directe verbinding naar onder andere het Centraal Station en Station Oost.
Object & oppervlakte
Dit zelfstandige kantoorgebouw bestaat uit twee bouwlagen en heeft een totale oppervlakte van circa 1.559 m². Het gebouw is voorzien van 152 zonnepanelen wat eveneens bijdraagt aan het goede energielabel, zijnde een label C.
Aan zowel de voor- als achterzijde is een entree gesitueerd. De begane grond (circa 839 m²) bestaat uit een ontvangsthal, meerdere kantoor-/spreekkamers en twee kantoortuinen. Er is een royale kantine, twee heren toiletten, drie dames toiletten en een mindervalide toilet aanwezig.
De eerste verdieping (circa 720 m²) bestaat eveneens uit meerdere kantoor-/spreekkamers, één kantoortuin en een volwaardig bedrijfsrestaurant met officiële bedrijfskeuken. Op deze verdieping zijn twee dubbele toiletgroepen aanwezig en een pantry opstelling. Een leuke feature op deze verdieping is de patio in het midden van de verdieping, dit zorgt niet alleen voor een prettige extra lunchplek bij lekker weer, maar ook voor veel daglicht in de kantoren rondom.
Opleveringsniveau
De kantoorruimtes worden in de huidige staat opgeleverd en zijn onder andere voorzien van:
- systeemplafond voorzien van ledverlichting;
- vloerafwerking (tapijt en pvc);
- wandafwerking (metal stud en glazenpuien);
- verwarming middels radiatoren;
- airconditioning;
Verhuurder gaat graag in overleg met de kandidaat huurder over het eventueel op maat en naar wens aanpassen van het inbouwpakket.
Parkeren
Op het parkeerterrein rondom het kantoor zijn ruim voldoende parkeerplaatsen aanwezig. In totaal zijn er 65 parkeerplaatsen, deze zijn veelal aan de achterzijde gelegen. Aan de voorzijde zijn nog een negental parkeerplaatsen voor bezoekers gesitueerd.
Kaart
Kaart laden...
Kadastrale grens
Bebouwing
Reistijd
Krijg inzicht in de bereikbaarheid van dit object vanuit bijvoorbeeld een openbaar vervoer station of vanuit een adres.