Het Zuiderkruis 35-47 5215 MV Den Bosch

€ 150 /m²/jaar
Onderdeel van BrAnts, Den Bosch

Omschrijving

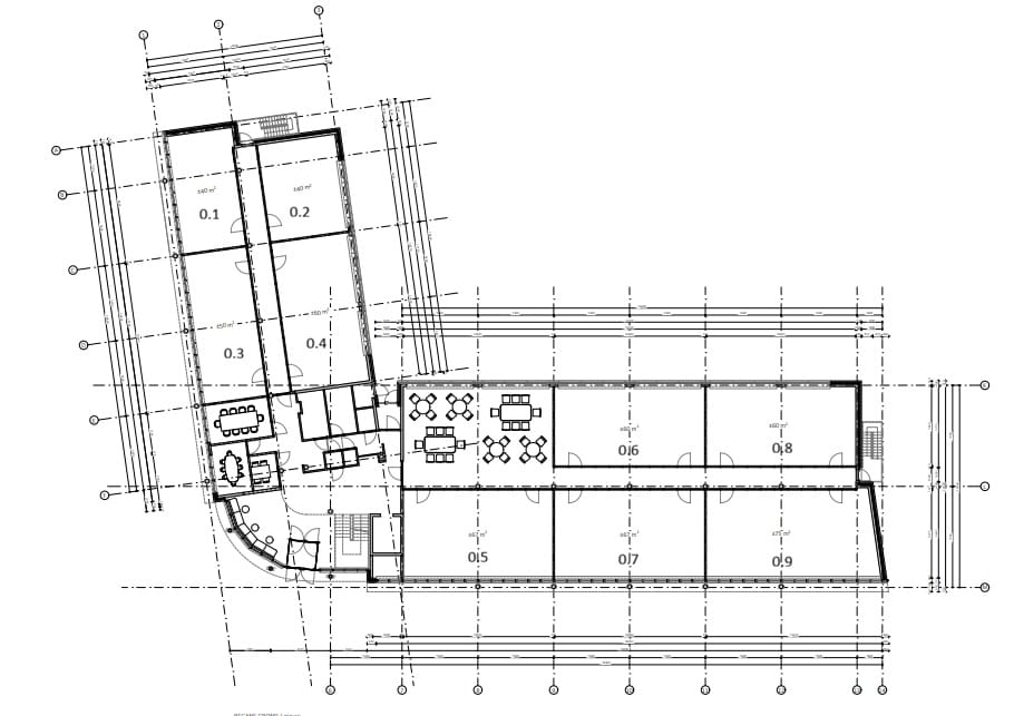
Ruimte 0.1 (40 m²) bevindt zich op de begane grond – ca. 828 m². Ideaal voor meerdere kleinere huurders.

Op de begane grond bevinden zich 9 kantoorunits van verschillende groottes. Daarnaast zijn er een gezamenlijke kantine en drie vergaderruimtes voor algemeen gebruik.

Beschikbare ruimtes:

Ruimte 0.1 / 0.2 – 40 m²
Ruimte 0.3 – 50 m²
Ruimte 0.4 / 0.6 / 0.8 – 60 m² (2 onder optie)
Ruimte 0.5 / 67 m² (1 onder optie)
Ruimte 0.9 – 75 m²

Huurprijs: €150 tot €160 per m² per jaar (excl. servicekosten)

De begane grond is perfect voor ondernemers die zelfstandig willen werken, maar ook willen profiteren van gedeelde faciliteiten en een professionele uitstraling.

--------------------------------------------------------------------------------------------------------------------------------------------------
Algemeen

TE HUUR | Het Zuiderkruis 35–47, ’s-Hertogenbosch

Op het bedrijventerrein De Brand is het moderne kantoorverzamelgebouw BrAnts gelegen. Dit representatieve kantoorgebouw wordt momenteel volledig gerenoveerd en vernieuwd en biedt daardoor volop flexibiliteit in indeling en afwerking. Een unieke kans voor huurders om mee te denken over de inrichting van hun toekomstige kantoorruimte.

Het gebouw telt vier bouwlagen met een totale vloeroppervlakte van circa 2.984 m².

We hebben een eerste indeling van de bouwlagen van het pand gemaakt. Echter mocht er een huurder zijn die meerdere bouwlagen wilt huren (begane grond, verdieping 1 & 2) dan is dit in overleg ook mogelijk. De indeling kan dan naar wens van de huurder aangepast worden.

Indeling
De eerste opzet van de verdeling van de bouwlagen is als volgt:

Begane grond – ca. 828 m²: Geschikt voor meerdere kleinere huurders. Beschikt over een gezamenlijke kantine, vergaderruimtes en 9 kantoorunits (waarvan 3 onder optie) variërend van circa 40 m² tot 75 m².
Eerste verdieping – ca. 830 m²: Geschikt voor meerdere huurders. Beschikt over 7 vergaderruimtes en 5 ruimtes van verschillende groottes variërend van circa 97 m² tot 150 m².
Tweede verdieping – ca. 872 m² geschikt voor 1 à 2 grotere huurders.
Derde verdieping – ca. 454 m² Reeds verhuurd aan een huurder.
Locatie & bereikbaarheid

BrAnts is uitstekend bereikbaar. De snelwegen A2, A59 en N279 bevinden zich op slechts enkele minuten rijden. Daarnaast ligt er op loopafstand een bushalte met een directe verbinding naar het Centraal Station van ’s-Hertogenbosch.

Kenmerken

Overdracht

Huurprijs
€ 150 per vierkante meter per jaar
Servicekosten
Geen servicekosten bekend
Aangeboden sinds
Status
Beschikbaar
Aanvaarding
In overleg

Bouw

Hoofdfunctie
Kantoor
Soort bouw
Bestaande bouw
Bouwjaar
1948

Oppervlakten

Oppervlakte
40 m²

Indeling

Aantal bouwlagen
1 bouwlaag
Voorzieningen
Te openen ramen, toilet, verwarming en kamerindeling

Energie

Energielabel
C 1,26

Omgeving

Ligging
Bedrijventerrein, kantorenpark en stationslocatie

Kaart

Kaart laden...

Kadastrale grens Bebouwing

Reistijd

Krijg inzicht in de bereikbaarheid van dit object vanuit bijvoorbeeld een openbaar vervoer station of vanuit een adres.

Het Zuiderkruis 35-47

€ 150 /m²/jaar