Pettelaarpark 110 5216 PS Den Bosch
Huurprijs op aanvraag
Omschrijving
TE HUUR I Pettelaarpark 110 te 's-Hertogenbosch
PARK110
“Park110” is onderdeel van de ComfortZone Offices portefeuille, de ultieme plek voor zorgeloos huren. Met “The Office that suits you” wordt voor huurders een maatkostuum gecreëerd dat na jaren nog naadloos past doordat ComfortZone Offices een verdieping of deel van een verdieping (1 unit) kant- en klaar kan opleveren in de huisstijl van huurders.
OPPERVLAKTEN
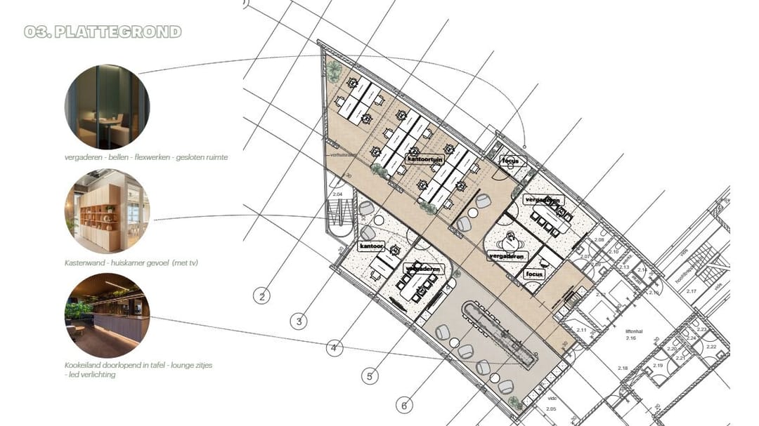
Het object bestaat uit circa 5.440 m² v.v.o. kantoorruimte verdeeld over 6 bouwlagen.
Voor de verhuur zijn momenteel nog twee kantoorunits beschikbaar:
Begane grond, kantoorruimte unit 0.1: circa 44 m² v.v.o. (inclusief toebedeling algemene ruimte)
Tweede verdieping, kantoorruimte unit 2.1: circa 225 m² v.v.o. (inclusief toebedeling algemene ruimte)
LOCATIE EN BEREIKBAARHEID
De kantoorlocatie is uitstekend gelegen op kantorenpark "Pettelaarpark", nabij de op- en afritten van de A2, met een directe aansluiting op de A59 en A50. Verder bevindt zich aan de overzijde een bushalte met verbindingen van en naar het Centraal Station waardoor de bereikbaarheid met openbaar vervoer goed te noemen is.
Pettelaarpark is dé kantorenlocatie van 's-Hertogenbosch, aan de A2 en naast onder andere het Provinciehuis van Noord- Brabant. In de directe omgeving zijn vele zakelijke dienstverleners gevestigd, zoals Euler Hermes B.V., Enci B.V., Ctac B.V., Volksbank en Canon Nederland. Een transferium, 9-holes golfbaan en een hotel maken de kantorenlocatie compleet.
OPLEVERINGSNIVEAU
Kantoorruimte:
- Representatief ''social heart'' met bemande receptie/ lunchgelegenheid en sfeervolle lobby;
- Gemeenschappelijke vergaderfaciliteiten met modern boekingssysteem, belcellen en aanlandplekken;
- Meerdere liftinstallaties en trappenhuizen;
- Toegangscontrolesysteem;
- Patchruimte per verdieping;
- Vernieuwde dames- en herentoiletgroepen per verdieping;
- Nieuwe systeemplafonds voorzien van LED-verlichting (evt. deels te vervangen voor akoestische plafonds);
- Klimaatsysteem met topkoeling en moderne airconditioning;
- Dubbele beglazing, ondersteund door zonnewering aan de buitenzijde;
- Geëgaliseerde vloeren, voorbereid voor gietvloer, vloerbedekking en/ of PVC;
- Wandkabelgoten t.b.v. elektra, data en telefoonbekabeling;
- Zonnepanelen, waarvan opbrengst huurders geheel kosteloos toekomt;
- Energiezuinige gebouwinstallaties conform energielabel A;
- Alarm en brandmeldinstallatie;
- Slagboom met intercominstallatie;
- Brandblusvoorzieningen;
- Parkeerterrein met voldoende verblijfsruimte voor de lunch of koffiebreak;
- 16 laadpaalplekken.
PARKEREN
Er zijn voldoende parkeermogelijkheden beschikbaar (113 parkeerplaatsen) op eigen terrein. Aan de voorzijde bevindt zich ook een transferium. De parkeernorm bedraagt 1:49 m².
HUURGEGEVENS
Kantoorruimte unit 0.1: € 950,00 per maand, te vermeerderen met de geldende btw.
Kantoorruimte unit 2.1: prijs op aanvraag.
Huurprijs parkeerplaats
€ 500,00 per plaats per jaar, te vermeerderen met btw.
Huurtermijn
Vijf (5) jaren en telkens verlengingsperioden van vijf (5) jaren.
Opzegtermijn
Twaalf (12) maanden voorafgaande aan de expiratiedatum, wederzijds opzegbaar.
BTW
Er wordt geopteerd voor een met btw belaste verhuur.
Indexering
Jaarlijks, voor het eerst één jaar na huuringangsdatum, op basis van de wijziging van het maandprijsindexcijfer volgens de consumentenprijsindex (CPI), reeks CPI voor alle huishoudens (2015=100), gepubliceerd door het Centraal Bureau voor de Statistiek (CBS). De huurprijs zal nimmer minder bedragen dan de huurprijs van het voorafgaande jaar.
Servicekosten
Verrekenbaar voorschot van € 57,50 per m² per jaar, te vermeerderen met btw. Het exacte voorschot voor de servicekosten zal later bepaald worden en is afhankelijk van de alsdan geldende energiekosten ten tijde van het aangaan van een eventuele huurovereenkomst.
Betalingen
Per drie (3) maanden vooruit.
Zekerheidsstelling
Doorlopende bankgarantie of waarborgsom ter grootte van 3 maanden huur inclusief servicekosten.
Aanvaarding
In overleg.
Volledige ontzorging, van verhuisplan en PVE t/m sleuteloverhandiging, wij kunnen en willen dat graag verzorgen.
Het bovenstaande behelst geen aanbod doch slechts vrijblijvende en globale informatie met betrekking tot het daarbij genoemde onroerend goed. Wij kunnen niet instaan voor de juistheid
van of volledigheid van deze gegevens.
PARK110
“Park110” is onderdeel van de ComfortZone Offices portefeuille, de ultieme plek voor zorgeloos huren. Met “The Office that suits you” wordt voor huurders een maatkostuum gecreëerd dat na jaren nog naadloos past doordat ComfortZone Offices een verdieping of deel van een verdieping (1 unit) kant- en klaar kan opleveren in de huisstijl van huurders.
OPPERVLAKTEN
Het object bestaat uit circa 5.440 m² v.v.o. kantoorruimte verdeeld over 6 bouwlagen.
Voor de verhuur zijn momenteel nog twee kantoorunits beschikbaar:
Begane grond, kantoorruimte unit 0.1: circa 44 m² v.v.o. (inclusief toebedeling algemene ruimte)
Tweede verdieping, kantoorruimte unit 2.1: circa 225 m² v.v.o. (inclusief toebedeling algemene ruimte)
LOCATIE EN BEREIKBAARHEID
De kantoorlocatie is uitstekend gelegen op kantorenpark "Pettelaarpark", nabij de op- en afritten van de A2, met een directe aansluiting op de A59 en A50. Verder bevindt zich aan de overzijde een bushalte met verbindingen van en naar het Centraal Station waardoor de bereikbaarheid met openbaar vervoer goed te noemen is.
Pettelaarpark is dé kantorenlocatie van 's-Hertogenbosch, aan de A2 en naast onder andere het Provinciehuis van Noord- Brabant. In de directe omgeving zijn vele zakelijke dienstverleners gevestigd, zoals Euler Hermes B.V., Enci B.V., Ctac B.V., Volksbank en Canon Nederland. Een transferium, 9-holes golfbaan en een hotel maken de kantorenlocatie compleet.
OPLEVERINGSNIVEAU
Kantoorruimte:
- Representatief ''social heart'' met bemande receptie/ lunchgelegenheid en sfeervolle lobby;
- Gemeenschappelijke vergaderfaciliteiten met modern boekingssysteem, belcellen en aanlandplekken;
- Meerdere liftinstallaties en trappenhuizen;
- Toegangscontrolesysteem;
- Patchruimte per verdieping;
- Vernieuwde dames- en herentoiletgroepen per verdieping;
- Nieuwe systeemplafonds voorzien van LED-verlichting (evt. deels te vervangen voor akoestische plafonds);
- Klimaatsysteem met topkoeling en moderne airconditioning;
- Dubbele beglazing, ondersteund door zonnewering aan de buitenzijde;
- Geëgaliseerde vloeren, voorbereid voor gietvloer, vloerbedekking en/ of PVC;
- Wandkabelgoten t.b.v. elektra, data en telefoonbekabeling;
- Zonnepanelen, waarvan opbrengst huurders geheel kosteloos toekomt;
- Energiezuinige gebouwinstallaties conform energielabel A;
- Alarm en brandmeldinstallatie;
- Slagboom met intercominstallatie;
- Brandblusvoorzieningen;
- Parkeerterrein met voldoende verblijfsruimte voor de lunch of koffiebreak;
- 16 laadpaalplekken.
PARKEREN
Er zijn voldoende parkeermogelijkheden beschikbaar (113 parkeerplaatsen) op eigen terrein. Aan de voorzijde bevindt zich ook een transferium. De parkeernorm bedraagt 1:49 m².
HUURGEGEVENS
Kantoorruimte unit 0.1: € 950,00 per maand, te vermeerderen met de geldende btw.
Kantoorruimte unit 2.1: prijs op aanvraag.
Huurprijs parkeerplaats
€ 500,00 per plaats per jaar, te vermeerderen met btw.
Huurtermijn
Vijf (5) jaren en telkens verlengingsperioden van vijf (5) jaren.
Opzegtermijn
Twaalf (12) maanden voorafgaande aan de expiratiedatum, wederzijds opzegbaar.
BTW
Er wordt geopteerd voor een met btw belaste verhuur.
Indexering
Jaarlijks, voor het eerst één jaar na huuringangsdatum, op basis van de wijziging van het maandprijsindexcijfer volgens de consumentenprijsindex (CPI), reeks CPI voor alle huishoudens (2015=100), gepubliceerd door het Centraal Bureau voor de Statistiek (CBS). De huurprijs zal nimmer minder bedragen dan de huurprijs van het voorafgaande jaar.
Servicekosten
Verrekenbaar voorschot van € 57,50 per m² per jaar, te vermeerderen met btw. Het exacte voorschot voor de servicekosten zal later bepaald worden en is afhankelijk van de alsdan geldende energiekosten ten tijde van het aangaan van een eventuele huurovereenkomst.
Betalingen
Per drie (3) maanden vooruit.
Zekerheidsstelling
Doorlopende bankgarantie of waarborgsom ter grootte van 3 maanden huur inclusief servicekosten.
Aanvaarding
In overleg.
Volledige ontzorging, van verhuisplan en PVE t/m sleuteloverhandiging, wij kunnen en willen dat graag verzorgen.
Het bovenstaande behelst geen aanbod doch slechts vrijblijvende en globale informatie met betrekking tot het daarbij genoemde onroerend goed. Wij kunnen niet instaan voor de juistheid
van of volledigheid van deze gegevens.
Kenmerken
Overdracht
- Huurprijs
- Huurprijs op aanvraag
- Servicekosten
- Geen servicekosten bekend
- Aangeboden sinds
-
- Status
- Beschikbaar
- Aanvaarding
- In overleg
Bouw
- Hoofdfunctie
- Kantoor
- Soort bouw
- Bestaande bouw
- Bouwjaar
- 1991
Oppervlakten
- Oppervlakte
- 269 m² (in units vanaf 44 m²)
Indeling
- Aantal bouwlagen
- 6 bouwlagen
- Voorzieningen
- Airconditioning, topkoeling, inbouwarmaturen, liften, systeemplafond en toilet
Energie
- Energielabel
- A
Foto's