Omschrijving
TE HUUR: Hoogwaardig Kantoor/bedrijfsobject aan de A15
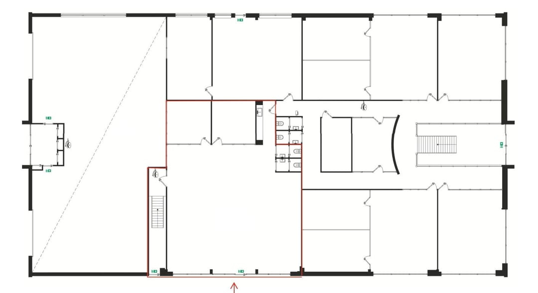
Het betreft hier een gedeelte van de eerste verdieping van Edisonring 6, 6669 NB Dodewaard met eigen entree.
Een unieke kans — een pand als dit komt maar zelden beschikbaar.
Op het moderne bedrijventerrein De Bonegraaf in Dodewaard, direct gelegen aan de op- en afritten van de A15 verschijnt komend voorjaar een aan de buitenzijde compleet gerestyled en toekomstbestendig bedrijfscomplex op de markt. Het object zal in eigendom komen van Emarkab!e E-commerce, die zelf het grootste deel van de bovenverdieping gaat gebruiken. De overige ruimtes worden aangeboden voor verhuur, compleet vernieuwd en met een frisse moderne uitstraling.
Beschikbare ruimtes:
Totaal van ca. 198 m² onderverdeeld in de volgende ruimtes:
- Eigen representatieve entree aan de oostzijde van het pand op de begane grond van 10,5 m² met trapopgang naar de eerste verdieping.
- Kantoorruimte op de 1e Verdieping van ca. 145,6 m²
- 2 Spreekkamers van ieder ca. 15,8 m²
- Toiletgroep met voorportaal en 2 toiletten, ca. 6,3 m²
- Pantry van ca. 4 m²
Voorzieningen & Afwerking:
Het gehele pand is modern, uitstekend onderhouden en licht door de vele raampartijen.
• Energielabel A++
• Systeemplafonds met inbouwverlichting
• Airconditioning
• Mechanische ventilatie
• Alarminstallatie
• Tegelvloeren in centrale hal, elders vloerbedekking of betonvloeren
• Luxe volledig betegelde toiletgroepen
• Pantry met moderne inbouwkeuken
• Volledig voorzien van dubbele beglazing
• Ruime parkeergelegenheid op eigen terrein
Bestemming
Volgens het bestemmingsplan Bedrijventerrein, Neder-Betuwe (27-06-2013) en het omgevingsplan (19-02-2024) heeft het pand over de bestemming Bedrijventerrein, met diverse gebruiksmogelijkheden.
Huurprijzen
Kantoorruimte: € 1.675,= per maand, excl. BTW, excl. nutsverbruik
Servicekosten: Er wordt een nog een plan opgesteld voor de servicekosten, deze komen bovenop de huurprijs.
Huurvoorwaarden
Aanvaarding in overleg, naar verwachting medio mei 2026
Huurovereenkomst: ROZ-model bedrijfsruimte
Huurtermijn: in overleg
Zekerheidsstelling: waarborgsom van 3 maanden huur exclusief omzetbelasting.
Omzetbelasting: : Indien huurder niet aan het zgn. ‘90%-criterium’ voldoet, zal er van rechtswege sprake zijn van omzetbelasting vrijgestelde verhuur. Alsdan wordt de overeengekomen kale huurprijs, exclusief omzetbelasting, zodanig verhoogd, dat het voor verhuurder ontstane financiële nadeel wordt gecompenseerd.
Alle vermelde maten en vierkante meters zijn circa.
Restyle buitenkant o.v.v. definitieve goedkeuring.
We hopen binnenkort graag wat van u te horen of te zien!
Het betreft hier een gedeelte van de eerste verdieping van Edisonring 6, 6669 NB Dodewaard met eigen entree.
Een unieke kans — een pand als dit komt maar zelden beschikbaar.
Op het moderne bedrijventerrein De Bonegraaf in Dodewaard, direct gelegen aan de op- en afritten van de A15 verschijnt komend voorjaar een aan de buitenzijde compleet gerestyled en toekomstbestendig bedrijfscomplex op de markt. Het object zal in eigendom komen van Emarkab!e E-commerce, die zelf het grootste deel van de bovenverdieping gaat gebruiken. De overige ruimtes worden aangeboden voor verhuur, compleet vernieuwd en met een frisse moderne uitstraling.
Beschikbare ruimtes:
Totaal van ca. 198 m² onderverdeeld in de volgende ruimtes:
- Eigen representatieve entree aan de oostzijde van het pand op de begane grond van 10,5 m² met trapopgang naar de eerste verdieping.
- Kantoorruimte op de 1e Verdieping van ca. 145,6 m²
- 2 Spreekkamers van ieder ca. 15,8 m²
- Toiletgroep met voorportaal en 2 toiletten, ca. 6,3 m²
- Pantry van ca. 4 m²
Voorzieningen & Afwerking:
Het gehele pand is modern, uitstekend onderhouden en licht door de vele raampartijen.
• Energielabel A++
• Systeemplafonds met inbouwverlichting
• Airconditioning
• Mechanische ventilatie
• Alarminstallatie
• Tegelvloeren in centrale hal, elders vloerbedekking of betonvloeren
• Luxe volledig betegelde toiletgroepen
• Pantry met moderne inbouwkeuken
• Volledig voorzien van dubbele beglazing
• Ruime parkeergelegenheid op eigen terrein
Bestemming
Volgens het bestemmingsplan Bedrijventerrein, Neder-Betuwe (27-06-2013) en het omgevingsplan (19-02-2024) heeft het pand over de bestemming Bedrijventerrein, met diverse gebruiksmogelijkheden.
Huurprijzen
Kantoorruimte: € 1.675,= per maand, excl. BTW, excl. nutsverbruik
Servicekosten: Er wordt een nog een plan opgesteld voor de servicekosten, deze komen bovenop de huurprijs.
Huurvoorwaarden
Aanvaarding in overleg, naar verwachting medio mei 2026
Huurovereenkomst: ROZ-model bedrijfsruimte
Huurtermijn: in overleg
Zekerheidsstelling: waarborgsom van 3 maanden huur exclusief omzetbelasting.
Omzetbelasting: : Indien huurder niet aan het zgn. ‘90%-criterium’ voldoet, zal er van rechtswege sprake zijn van omzetbelasting vrijgestelde verhuur. Alsdan wordt de overeengekomen kale huurprijs, exclusief omzetbelasting, zodanig verhoogd, dat het voor verhuurder ontstane financiële nadeel wordt gecompenseerd.
Alle vermelde maten en vierkante meters zijn circa.
Restyle buitenkant o.v.v. definitieve goedkeuring.
We hopen binnenkort graag wat van u te horen of te zien!
Kaart
Kaart laden...
Kadastrale grens
Bebouwing
Reistijd
Krijg inzicht in de bereikbaarheid van dit object vanuit bijvoorbeeld een openbaar vervoer station of vanuit een adres.