Omschrijving
Representatieve kantoorruimte beschikbaar aan de Lardinoisstraat 16 in Eindhoven. Het betreft een kantoorruimte gelegen op de derde verdieping, voorzien van alle benodigde faciliteiten zoals meerdere pantry’s en toiletruimtes waardoor de ruimte direct te gebruiken is. Momenteel is de ruimte in gebruik als kantoorruimte, maar door de brede bestemming zijn er diverse gebruiksmogelijkheden denkbaar.
Het object is 24/7 toegankelijk en te betreden via een gezamenlijke entree, wat zorgt voor flexibiliteit in gebruik en werktijden.
Een belangrijk pluspunt van deze locatie is de ligging midden in het centrum van Eindhoven. Hierdoor bevinden winkels, horecagelegenheden en overige voorzieningen zich op loopafstand, wat zorgt voor een levendige en goed bereikbare werkomgeving.
De bereikbaarheid is uitstekend. De locatie ligt op korte afstand van de uitvalswegen en biedt een snelle aansluiting op onder andere de A2, A67 en A58. Daarnaast bevinden zich diverse bushaltes en het NS-station Eindhoven Centraal op korte afstand, waardoor het object goed bereikbaar is met zowel de auto als het openbaar vervoer.
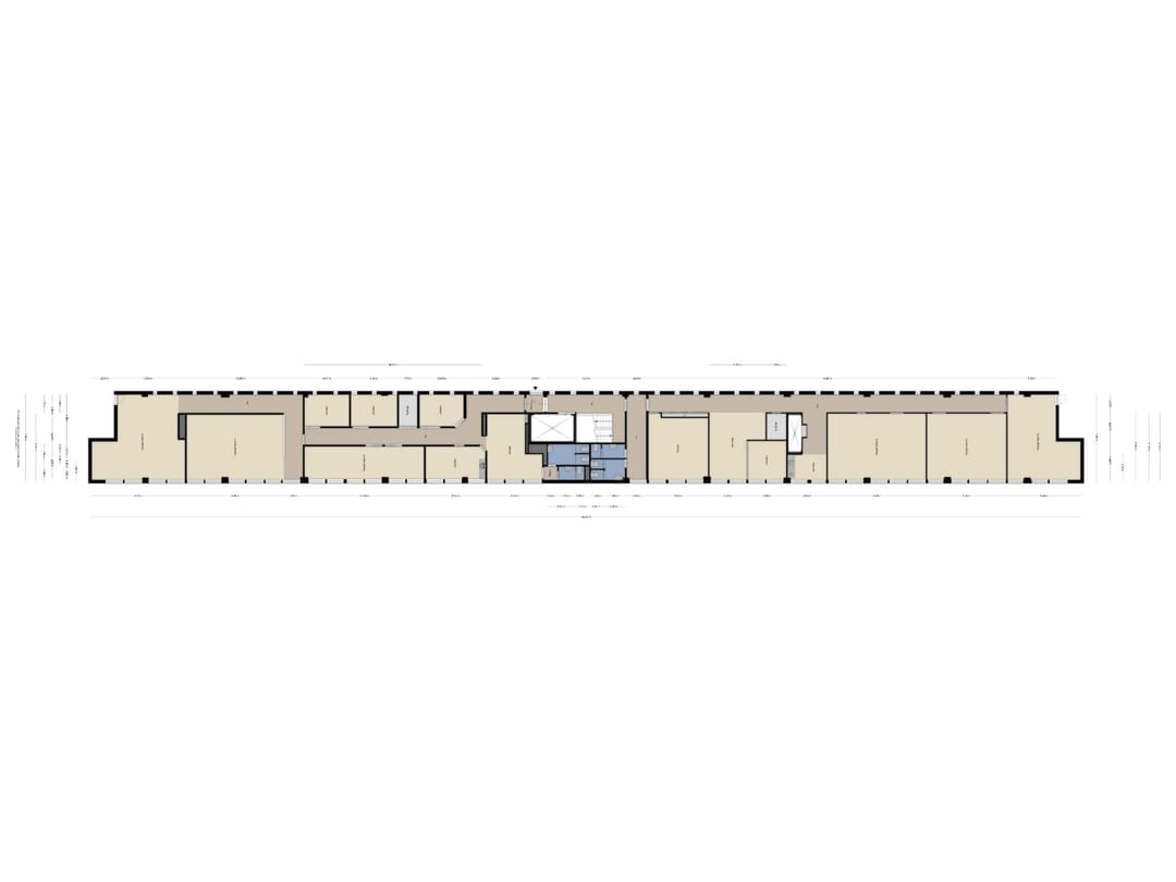
METRAGES (VVO)
Totale oppervlakte: circa. 693 m2, in units vanaf 345 m2.
PARKEREN
De kantoor-/praktijkruimte beschikt niet over een eigen parkeerterrein, maar in de direct omgeving is meer dan voldoende (betaalde) parkeergelegenheid aanwezig.
OMGEVINGSPLAN
Volgens het actuele omgevingsplan heeft het gebouw een "Gemengd” bestemming waardoor dienstverlening, maatschappelijke voorzieningen en kantoren zijn toegestaan.
Als gebruiker bent u zelf verantwoordelijk om navraag te doen naar het actuele bestemmingsplan bij de gemeente. Aan deze omschrijving kunnen geen rechten worden ontleend.
OPLEVERINGSNIVEAU
- Brandpreventiemiddelen
- Deels parket en deels vloerbedekking
- Glasvezel aanwezig
- Kunststof kozijnen met te openen ramen en dubbele beglazing
- Pantry’s inclusief vaatwasser
- Scheidingswanden
- Serverruimte
- Systeemplafond met inbouwverlichting
- Toiletruimtes
- Wandradiatoren
HUURCONDITIES
Huurprijs: € 125,- per m2 per jaar excl. BTW.
Servicekosten: € 39,- per m2 per jaar excl. BTW..
Huurtermijn: Vast termijn tot en met 31 december 2029.
Opzegtermijn: 6 maanden.
Aanvaarding: Per direct.
Zekerheidstelling: Waarborgsom: ter grootte van drie maanden huur.
Huurindexering: Jaarlijks overeenkomstig het maand prijsindexcijfer volgens het consumentenprijsindexcijfer (CPI) reeks CPI alle huishoudens (2015=100) gepubliceerd door het Centraal Bureau voor de Statistiek (CBS). De huurprijs zal nimmer minder bedragen dan de huurprijs van het voorafgaande jaar. Indexatie voor het eerst 12 maanden na huur ingangsdatum en zo vervolgens jaarlijks.
BTW: Indien huurder niet aan het "90%-criterium”(aandeel belaste prestaties) voldoet, zal er van rechtswege sprake zijn van omzetbelasting vrijgestelde verhuur. Als dan wordt de overeengekomen kale huurprijs, exclusief omzetbelasting, zodanig verhoogd, dat het voor verhuurder ontstane financiële nadeel wordt gecompenseerd.
Huurcontract: R.O.Z.-model, huurovereenkomst kantoorruimte en andere bedrijfsruimte in de zin van artikel 7:230a BW met de benodigde aanvullingen.
GOEDKEURING
Het bovenstaande is onder finaal voorbehoud van de eigenaar.
Disclaimer: Ondanks dat deze publicatie met de grootst mogelijke zorgvuldigheid is samengesteld is de Online Bedrijfsmakelaar BV niet aansprakelijk te stellen voor onjuiste of onvolledige informatie die in deze publicatie vermeld staan. Aan deze gegevens kunnen geen rechten worden ontleend.
====================
Alle beschikbare informatie ontvangen?
Benieuwd naar alle beschikbare informatie over dit pand? Vraag dan nu, onder de grote contactbutton, de gratis objectbrochure van de Lardinoisstraat 16 Eindhoven aan. Uiteraard kunt u ook direct een geheel vrijblijvende bezichtiging met de beheerder van het pand inplannen.
Het object is 24/7 toegankelijk en te betreden via een gezamenlijke entree, wat zorgt voor flexibiliteit in gebruik en werktijden.
Een belangrijk pluspunt van deze locatie is de ligging midden in het centrum van Eindhoven. Hierdoor bevinden winkels, horecagelegenheden en overige voorzieningen zich op loopafstand, wat zorgt voor een levendige en goed bereikbare werkomgeving.
De bereikbaarheid is uitstekend. De locatie ligt op korte afstand van de uitvalswegen en biedt een snelle aansluiting op onder andere de A2, A67 en A58. Daarnaast bevinden zich diverse bushaltes en het NS-station Eindhoven Centraal op korte afstand, waardoor het object goed bereikbaar is met zowel de auto als het openbaar vervoer.
METRAGES (VVO)
Totale oppervlakte: circa. 693 m2, in units vanaf 345 m2.
PARKEREN
De kantoor-/praktijkruimte beschikt niet over een eigen parkeerterrein, maar in de direct omgeving is meer dan voldoende (betaalde) parkeergelegenheid aanwezig.
OMGEVINGSPLAN
Volgens het actuele omgevingsplan heeft het gebouw een "Gemengd” bestemming waardoor dienstverlening, maatschappelijke voorzieningen en kantoren zijn toegestaan.
Als gebruiker bent u zelf verantwoordelijk om navraag te doen naar het actuele bestemmingsplan bij de gemeente. Aan deze omschrijving kunnen geen rechten worden ontleend.
OPLEVERINGSNIVEAU
- Brandpreventiemiddelen
- Deels parket en deels vloerbedekking
- Glasvezel aanwezig
- Kunststof kozijnen met te openen ramen en dubbele beglazing
- Pantry’s inclusief vaatwasser
- Scheidingswanden
- Serverruimte
- Systeemplafond met inbouwverlichting
- Toiletruimtes
- Wandradiatoren
HUURCONDITIES
Huurprijs: € 125,- per m2 per jaar excl. BTW.
Servicekosten: € 39,- per m2 per jaar excl. BTW..
Huurtermijn: Vast termijn tot en met 31 december 2029.
Opzegtermijn: 6 maanden.
Aanvaarding: Per direct.
Zekerheidstelling: Waarborgsom: ter grootte van drie maanden huur.
Huurindexering: Jaarlijks overeenkomstig het maand prijsindexcijfer volgens het consumentenprijsindexcijfer (CPI) reeks CPI alle huishoudens (2015=100) gepubliceerd door het Centraal Bureau voor de Statistiek (CBS). De huurprijs zal nimmer minder bedragen dan de huurprijs van het voorafgaande jaar. Indexatie voor het eerst 12 maanden na huur ingangsdatum en zo vervolgens jaarlijks.
BTW: Indien huurder niet aan het "90%-criterium”(aandeel belaste prestaties) voldoet, zal er van rechtswege sprake zijn van omzetbelasting vrijgestelde verhuur. Als dan wordt de overeengekomen kale huurprijs, exclusief omzetbelasting, zodanig verhoogd, dat het voor verhuurder ontstane financiële nadeel wordt gecompenseerd.
Huurcontract: R.O.Z.-model, huurovereenkomst kantoorruimte en andere bedrijfsruimte in de zin van artikel 7:230a BW met de benodigde aanvullingen.
GOEDKEURING
Het bovenstaande is onder finaal voorbehoud van de eigenaar.
Disclaimer: Ondanks dat deze publicatie met de grootst mogelijke zorgvuldigheid is samengesteld is de Online Bedrijfsmakelaar BV niet aansprakelijk te stellen voor onjuiste of onvolledige informatie die in deze publicatie vermeld staan. Aan deze gegevens kunnen geen rechten worden ontleend.
====================
Alle beschikbare informatie ontvangen?
Benieuwd naar alle beschikbare informatie over dit pand? Vraag dan nu, onder de grote contactbutton, de gratis objectbrochure van de Lardinoisstraat 16 Eindhoven aan. Uiteraard kunt u ook direct een geheel vrijblijvende bezichtiging met de beheerder van het pand inplannen.
Kaart
Kaart laden...
Kadastrale grens
Bebouwing
Reistijd
Krijg inzicht in de bereikbaarheid van dit object vanuit bijvoorbeeld een openbaar vervoer station of vanuit een adres.