Stavorenweg 8 2803 PT Gouda
Huurprijs op aanvraag
Omschrijving
Aan de Stavorenweg 8 in Bedrijvencentrum Gouda, gelegen op het bedrijventerrein Goudse Poort, vindt u kantoorruimte in een herkenbaar kantoorpark bestaande uit vier gebouwen (Jupiter, Mercurius, Neptunus en Saturnus).
De locatie is direct bereikbaar via de afrit van de A12 en heeft een bushalte op loopafstand. De ruimtes worden turn-key opgeleverd: u hoeft in principe alleen uw meubels mee te nemen. Het is een solide, representatieve werkomgeving, strak en praktisch, geschikt voor ondernemers die waarderen dat alles werkt en geregeld is.
BEREIKBAARHEID
Het Bedrijvencentrum Gouda ligt op bedrijventerrein Goudse Poort, direct bij de afrit van de Rijksweg A12 (Den Haag – Utrecht – Arnhem).
Goudse Poort is centraal gelegen midden in de Randstad en het terrein kenmerkt zich door zijn goede bereikbaarheid, verzorgde uitstraling en herkenbare bebouwing.
GEBRUIKSMOGELIJKHEDEN:
Het object is geschikt voor diverse kantoordoeleinden.
VLOEROPPERVLAKTE
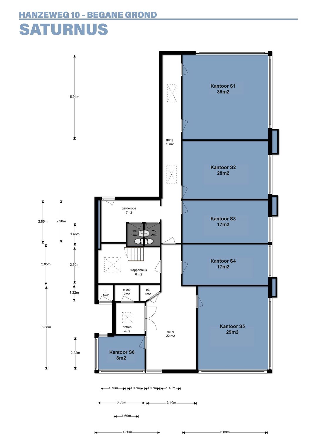
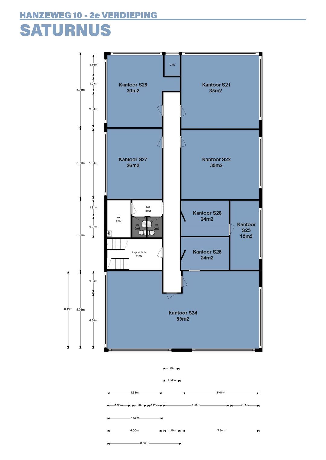
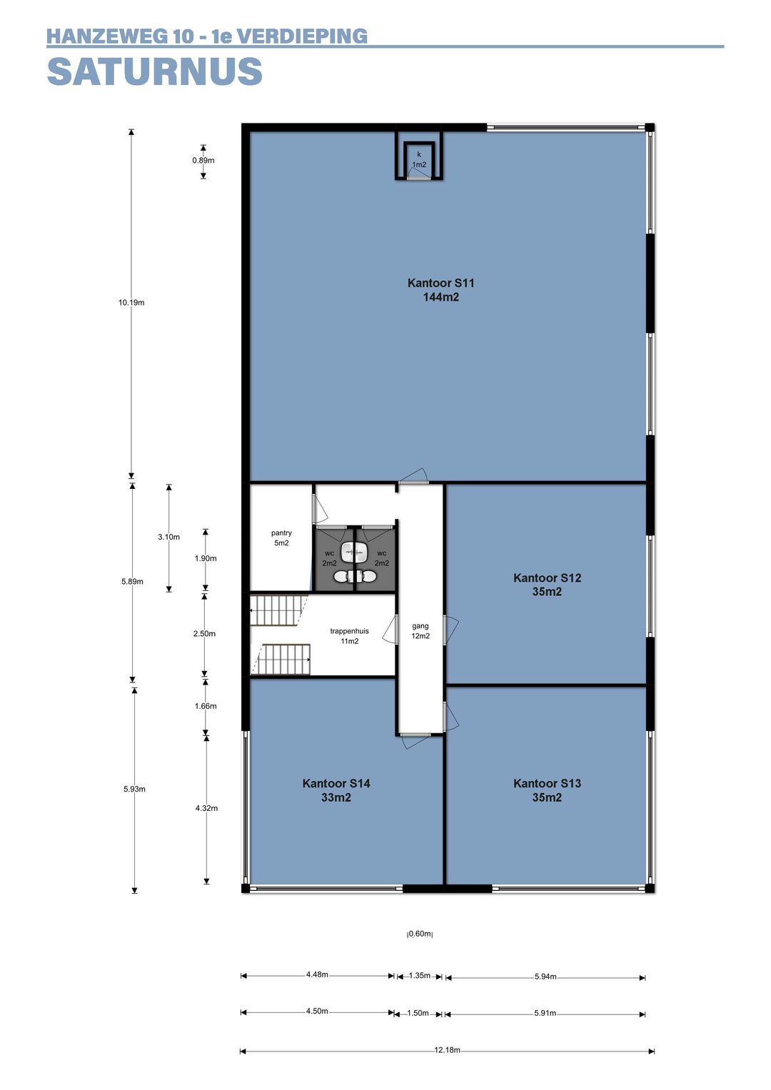
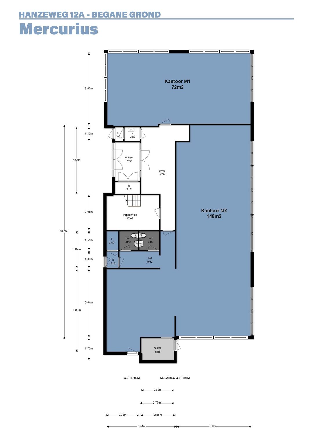
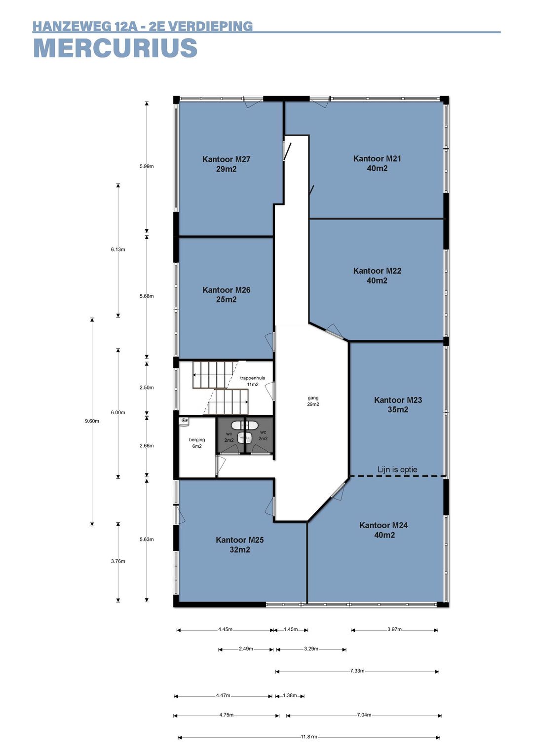
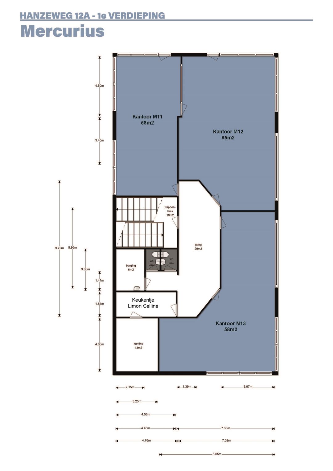
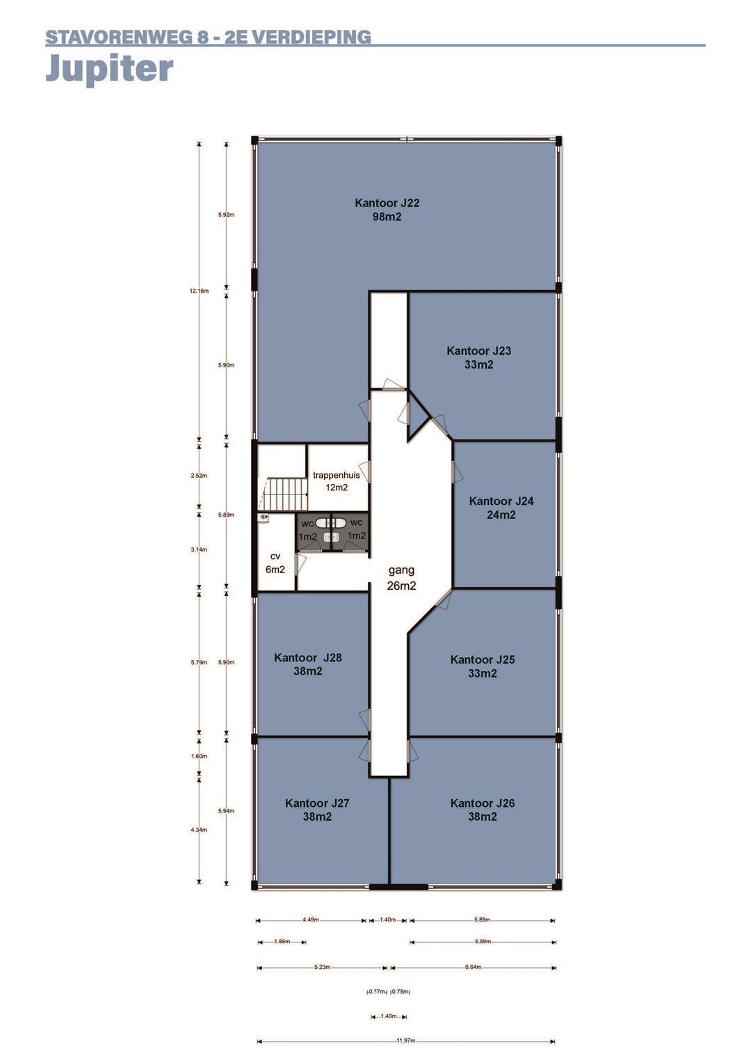
De beschikbare kantoorruimten variëren in grootte van circa 15 m² tot 100 m² per kamer.
Daarnaast is er een complete kantoorverdieping beschikbaar met een totale vloeroppervlakte van circa 259 m², gelegen op de eerste verdieping. (meer informatie te vinden via )
KADASTRALE GEGEVENS
Gemeente Gouda, Sectie M, nummer 4041.
Perceeloppervlakte 7.043 m²
PARKEREN
In overleg kunnen er parkeerplaatsen bij de kantoorruimtes worden gehuurd. De kosten per parkeerplaats bedragen € 350,- excl. BTW per jaar. Mogelijk gebruik van laadpalen.
VOORZIENINGEN
Alle kantoorruimtes zijn turn-key uitgerust. U hoeft alleen uw bureau mee te nemen en dat kunnen wij zelfs voor u regelen.
HUURPRIJS
Vanaf € 137,50 per maand te vermeerderen met BTW.
Indien de BTW niet kan worden verrekend dan zal de huurprijs met een nader vast te stellen bedrag worden verhoogd.
SERVICEKOSTEN
€ 35,- per m² per jaar, te vermeerderen met BTW.
HUURPRIJSAANPASSING
Jaarlijks voor het eerst één jaar na datum ingebruikname, zal de huurprijs worden aangepast op basis van de wijziging van het maandindexcijfer volgens consumentenprijsindex (CPI), 2025=100, reeks alle huishoudens.
BETALINGEN
Huur en BTW per maand vooruit.
ZEKERHEIDSSTELLING
Bankgarantie ter grootte van twee maanden huur, inclusief servicekosten en BTW.
HUURTERMIJN
Nader overeen te komen.
VERLENGINGSTERMIJN
Nader overeen te komen.
OPZEGTERMIJN
Nader overeen te komen.
OVERIGE CONDITIES
Huurovereenkomst op basis van het standaardmodel van de Raad voor Onroerende Zaken (ROZ).
AANVAARDING
In overleg.
VOORBEHOUD
Elke transactie behoeft de nadrukkelijke goedkeuring van eigenaar.
DISCLAIMER
Al het bovenstaande betreft informatie omtrent de verhuur van Bedrijvencentrum Gouda aan de Hanzeweg 10, Hanzeweg 12A, Hanzeweg 12BCD en Stavorenweg 8 te Gouda. De informatie is met zorg samengesteld, maar voor de juistheid ervan kan door Bij Abram Bedrijfsmakelaardij geen aansprakelijkheid worden aanvaard noch aan de vermelde gegevens enig recht worden ontleend. Nadrukkelijk is vermeld dat deze informatieverstrekking niet als een aanbieding of offerte mag worden beschouwd.
De locatie is direct bereikbaar via de afrit van de A12 en heeft een bushalte op loopafstand. De ruimtes worden turn-key opgeleverd: u hoeft in principe alleen uw meubels mee te nemen. Het is een solide, representatieve werkomgeving, strak en praktisch, geschikt voor ondernemers die waarderen dat alles werkt en geregeld is.
BEREIKBAARHEID
Het Bedrijvencentrum Gouda ligt op bedrijventerrein Goudse Poort, direct bij de afrit van de Rijksweg A12 (Den Haag – Utrecht – Arnhem).
Goudse Poort is centraal gelegen midden in de Randstad en het terrein kenmerkt zich door zijn goede bereikbaarheid, verzorgde uitstraling en herkenbare bebouwing.
GEBRUIKSMOGELIJKHEDEN:
Het object is geschikt voor diverse kantoordoeleinden.
VLOEROPPERVLAKTE
De beschikbare kantoorruimten variëren in grootte van circa 15 m² tot 100 m² per kamer.
Daarnaast is er een complete kantoorverdieping beschikbaar met een totale vloeroppervlakte van circa 259 m², gelegen op de eerste verdieping. (meer informatie te vinden via )
KADASTRALE GEGEVENS
Gemeente Gouda, Sectie M, nummer 4041.
Perceeloppervlakte 7.043 m²
PARKEREN
In overleg kunnen er parkeerplaatsen bij de kantoorruimtes worden gehuurd. De kosten per parkeerplaats bedragen € 350,- excl. BTW per jaar. Mogelijk gebruik van laadpalen.
VOORZIENINGEN
Alle kantoorruimtes zijn turn-key uitgerust. U hoeft alleen uw bureau mee te nemen en dat kunnen wij zelfs voor u regelen.
HUURPRIJS
Vanaf € 137,50 per maand te vermeerderen met BTW.
Indien de BTW niet kan worden verrekend dan zal de huurprijs met een nader vast te stellen bedrag worden verhoogd.
SERVICEKOSTEN
€ 35,- per m² per jaar, te vermeerderen met BTW.
HUURPRIJSAANPASSING
Jaarlijks voor het eerst één jaar na datum ingebruikname, zal de huurprijs worden aangepast op basis van de wijziging van het maandindexcijfer volgens consumentenprijsindex (CPI), 2025=100, reeks alle huishoudens.
BETALINGEN
Huur en BTW per maand vooruit.
ZEKERHEIDSSTELLING
Bankgarantie ter grootte van twee maanden huur, inclusief servicekosten en BTW.
HUURTERMIJN
Nader overeen te komen.
VERLENGINGSTERMIJN
Nader overeen te komen.
OPZEGTERMIJN
Nader overeen te komen.
OVERIGE CONDITIES
Huurovereenkomst op basis van het standaardmodel van de Raad voor Onroerende Zaken (ROZ).
AANVAARDING
In overleg.
VOORBEHOUD
Elke transactie behoeft de nadrukkelijke goedkeuring van eigenaar.
DISCLAIMER
Al het bovenstaande betreft informatie omtrent de verhuur van Bedrijvencentrum Gouda aan de Hanzeweg 10, Hanzeweg 12A, Hanzeweg 12BCD en Stavorenweg 8 te Gouda. De informatie is met zorg samengesteld, maar voor de juistheid ervan kan door Bij Abram Bedrijfsmakelaardij geen aansprakelijkheid worden aanvaard noch aan de vermelde gegevens enig recht worden ontleend. Nadrukkelijk is vermeld dat deze informatieverstrekking niet als een aanbieding of offerte mag worden beschouwd.
Kenmerken
Overdracht
- Huurprijs
- Huurprijs op aanvraag
- Servicekosten
- Geen servicekosten bekend
- Aangeboden sinds
-
- Status
- Beschikbaar
- Aanvaarding
- In overleg
Bouw
- Hoofdfunctie
- Kantoor
- Soort bouw
- Bestaande bouw
- Bouwjaar
- 1987
Oppervlakten
- Oppervlakte
- 1.116 m² (in units vanaf 15 m²)
- Perceel
- 7.043 m²
Indeling
- Aantal bouwlagen
- 1 bouwlaag
- Voorzieningen
- Airconditioning, mechanische ventilatie, inbouwarmaturen, liften, te openen ramen, kabelgoten, systeemplafond, toilet, pantry, verwarming en kamerindeling
Energie
- Energielabel
- B
Omgeving
- Ligging
- Bedrijventerrein
- Bereikbaarheid
- Snelwegafrit op minder dan 500 m
Foto's