Laan Corpus den Hoorn 300 9728 JT Groningen
€ 190 /m²/jaar
Omschrijving
Meerdere kantoorunits beschikbaar in dit moderne kantoorgebouw de Meerwold. Het gebouw ligt op een unieke locatie, op het snijpunt van de grootste verkeersaders van de stad Groningen (A7 – A28) en direct aan het mooie natuurgebied Hoornse Meer. Rust, ruimte, ontspanning en gemakkelijk bereikbaar.
Meerwold is de thuisbasis van een hotel (Best Western PLUS Hotel Groningen Plaza) en van een kleine twintig organisaties, die hun kantoor hier hebben gevestigd. Huurders van Meerwold roemen, in het recent gehouden klanttevredenheidsonderzoek vooral de uitgebreide standaardvoorzieningen, de ruim bemeten parkeerplaats en de aanwezigheid van hun 'collega' –huurders, wat zorgt voor "een plezierige synergie”.
Metrages
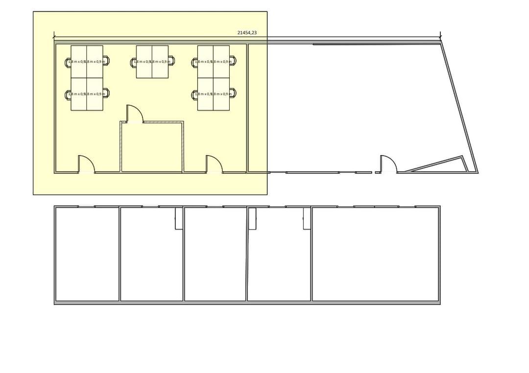
circa. 203 m² kantoorruimte, in units vanaf 33 m².
Voor meer informatie omtrent de mogelijkheden en actuele beschikbaarheid kunt u contact opnemen met de Online Bedrijfsmakelaar.
Parkeren
Op het terrein zijn ruim 400 parkeerplaatsen aanwezig.
Gemeenschappelijke voorzieningen
- centrale receptie
- postverwerking
- schoonmaak
- personeelsrestaurant
Tegen meerprijs zijn ook verschillende extra voorzieningen mogelijk, zoals:
- vergaderzalen
- catering
- congresfaciliteiten
- ICT, telefonie, facilitaire diensten
- binnenzwembad
Opleveringsniveau kantoorunits
De kantoorunit worden hoogwaardig opgeleverd onder andere voorzien van;
- Alarminstallatie
- Aluminium kozijnen met dubbele beglazing
- Internet- en telefonieaansluitingen
- Glasvezelverbinding is op aanvraag beschikbaar
- Systeemplafond met inbouwverlichting
- Pantry
- Deur met elektronische toegangscode
- Mechanische ventilatie
- Topkoeling
- Vloerbedekking
- Wandradiatoren
Huurcondities
Huurprijs: € 190,- per m2 per jaar excl. BTW. (op basis van een huurcontract van 3 jaar)
Huurtermijn: In overleg, minimaal één jaar.
Servicekosten: € 50,- per m2 per jaar excl. BTW.
Aanvaarding: In overleg.
Opzegtermijn: 6 maanden.
Zekerheidstelling: Waarborgsom: ter grootte van drie maanden huur.
Huurindexering: Jaarlijks overeenkomstig het maand prijsindexcijfer volgens het consumentenprijsindexcijfer (CPI) reeks CPI alle huishoudens (2015=100) gepubliceerd door het Centraal Bureau voor de Statistiek (CBS). De huurprijs zal nimmer minder bedragen dan de huurprijs van het voorafgaande jaar. Indexatie voor het eerst 12 maanden na huur ingangsdatum en zo vervolgens jaarlijks.
BTW: Indien huurder niet aan het "90%-criterium”(aandeel belaste prestaties) voldoet, zal er van rechtswege sprake zijn van omzetbelasting vrijgestelde verhuur. Als dan wordt de overeengekomen kale huurprijs, exclusief omzetbelasting, zodanig verhoogd, dat het voor verhuurder ontstane financiële nadeel wordt gecompenseerd.
Huurcontract: R.O.Z.-model, huurovereenkomst kantoorruimte en andere bedrijfsruimte in de zin van artikel 7:230a BW met de benodigde aanvullingen.
Goedkeuring
Het bovenstaande is onder finaal voorbehoud van de eigenaar.
Disclaimer: Ondanks dat deze publicatie met de grootst mogelijke zorgvuldigheid is samengesteld is de Online Bedrijfsmakelaar BV niet aansprakelijk te stellen voor onjuiste of onvolledige informatie die in deze publicatie vermeld staan. Aan deze gegevens kunnen geen rechten worden ontleend.
====================
Alle beschikbare informatie ontvangen?
Benieuwd naar alle beschikbare informatie over dit pand? Vraag dan nu, onder de grote contactbutton, de gratis objectbrochure van de Laan Corpus den Hoorn 300 in Groningen aan en ontvang de objectbrochure binnen 5 minuten in uw mailbox. Uiteraard kunt u ook direct een geheel vrijblijvende bezichtiging met de beheerder van het pand inplannen.
Meerwold is de thuisbasis van een hotel (Best Western PLUS Hotel Groningen Plaza) en van een kleine twintig organisaties, die hun kantoor hier hebben gevestigd. Huurders van Meerwold roemen, in het recent gehouden klanttevredenheidsonderzoek vooral de uitgebreide standaardvoorzieningen, de ruim bemeten parkeerplaats en de aanwezigheid van hun 'collega' –huurders, wat zorgt voor "een plezierige synergie”.
Metrages
circa. 203 m² kantoorruimte, in units vanaf 33 m².
Voor meer informatie omtrent de mogelijkheden en actuele beschikbaarheid kunt u contact opnemen met de Online Bedrijfsmakelaar.
Parkeren
Op het terrein zijn ruim 400 parkeerplaatsen aanwezig.
Gemeenschappelijke voorzieningen
- centrale receptie
- postverwerking
- schoonmaak
- personeelsrestaurant
Tegen meerprijs zijn ook verschillende extra voorzieningen mogelijk, zoals:
- vergaderzalen
- catering
- congresfaciliteiten
- ICT, telefonie, facilitaire diensten
- binnenzwembad
Opleveringsniveau kantoorunits
De kantoorunit worden hoogwaardig opgeleverd onder andere voorzien van;
- Alarminstallatie
- Aluminium kozijnen met dubbele beglazing
- Internet- en telefonieaansluitingen
- Glasvezelverbinding is op aanvraag beschikbaar
- Systeemplafond met inbouwverlichting
- Pantry
- Deur met elektronische toegangscode
- Mechanische ventilatie
- Topkoeling
- Vloerbedekking
- Wandradiatoren
Huurcondities
Huurprijs: € 190,- per m2 per jaar excl. BTW. (op basis van een huurcontract van 3 jaar)
Huurtermijn: In overleg, minimaal één jaar.
Servicekosten: € 50,- per m2 per jaar excl. BTW.
Aanvaarding: In overleg.
Opzegtermijn: 6 maanden.
Zekerheidstelling: Waarborgsom: ter grootte van drie maanden huur.
Huurindexering: Jaarlijks overeenkomstig het maand prijsindexcijfer volgens het consumentenprijsindexcijfer (CPI) reeks CPI alle huishoudens (2015=100) gepubliceerd door het Centraal Bureau voor de Statistiek (CBS). De huurprijs zal nimmer minder bedragen dan de huurprijs van het voorafgaande jaar. Indexatie voor het eerst 12 maanden na huur ingangsdatum en zo vervolgens jaarlijks.
BTW: Indien huurder niet aan het "90%-criterium”(aandeel belaste prestaties) voldoet, zal er van rechtswege sprake zijn van omzetbelasting vrijgestelde verhuur. Als dan wordt de overeengekomen kale huurprijs, exclusief omzetbelasting, zodanig verhoogd, dat het voor verhuurder ontstane financiële nadeel wordt gecompenseerd.
Huurcontract: R.O.Z.-model, huurovereenkomst kantoorruimte en andere bedrijfsruimte in de zin van artikel 7:230a BW met de benodigde aanvullingen.
Goedkeuring
Het bovenstaande is onder finaal voorbehoud van de eigenaar.
Disclaimer: Ondanks dat deze publicatie met de grootst mogelijke zorgvuldigheid is samengesteld is de Online Bedrijfsmakelaar BV niet aansprakelijk te stellen voor onjuiste of onvolledige informatie die in deze publicatie vermeld staan. Aan deze gegevens kunnen geen rechten worden ontleend.
====================
Alle beschikbare informatie ontvangen?
Benieuwd naar alle beschikbare informatie over dit pand? Vraag dan nu, onder de grote contactbutton, de gratis objectbrochure van de Laan Corpus den Hoorn 300 in Groningen aan en ontvang de objectbrochure binnen 5 minuten in uw mailbox. Uiteraard kunt u ook direct een geheel vrijblijvende bezichtiging met de beheerder van het pand inplannen.
Kenmerken
Overdracht
- Huurprijs
- € 190 per vierkante meter per jaar
- Oorspronkelijke huurprijs
- € 160 per vierkante meter per jaar
- Servicekosten
- € 50 per vierkante meter per jaar (21% BTW van toepassing)
- Aangeboden sinds
-
- Status
- Beschikbaar
- Aanvaarding
- In overleg
Bouw
- Hoofdfunctie
- Kantoor
- Soort bouw
- Bestaande bouw
- Bouwjaar
- 1992
Oppervlakten
- Oppervlakte
- 203 m² (in units vanaf 33 m²)
Indeling
- Aantal bouwlagen
- 1 bouwlaag
- Voorzieningen
- Airconditioning, mechanische ventilatie, inbouwarmaturen, liften, kabelgoten, systeemplafond, toilet, pantry, verwarming en kamerindeling
Energie
- Energielabel
- C
Foto's