Gasthuisstraat 21-A 6411 KD Heerlen

€ 11.000 /jr

Omschrijving

Gasthuisstraat 21a, Heerlen – hoogwaardige kantoorruimte op een unieke (recent herontwikkelde) locatie

Aan de Gasthuisstraat in Heerlen ontstaat een bijzonder nieuw kantoorconcept binnen de herontwikkeling van het voormalige Coriovallum College. Dit iconische complex, waarin reeds het Clarahuys is gevestigd, wordt momenteel verder getransformeerd tot een eigentijdse woon- en werkomgeving met in totaal 61 nieuwe appartementen.

Binnen deze dynamische ontwikkeling bieden wij hoogwaardige kantoorruimte aan in een onderscheidend concept. Twee van de drie units zijn reeds verhuurd, een duidelijk bewijs van de aantrekkingskracht van deze locatie. De laatste beschikbare unit wordt exclusief aangeboden door De Bock Vastgoedadviseurs.

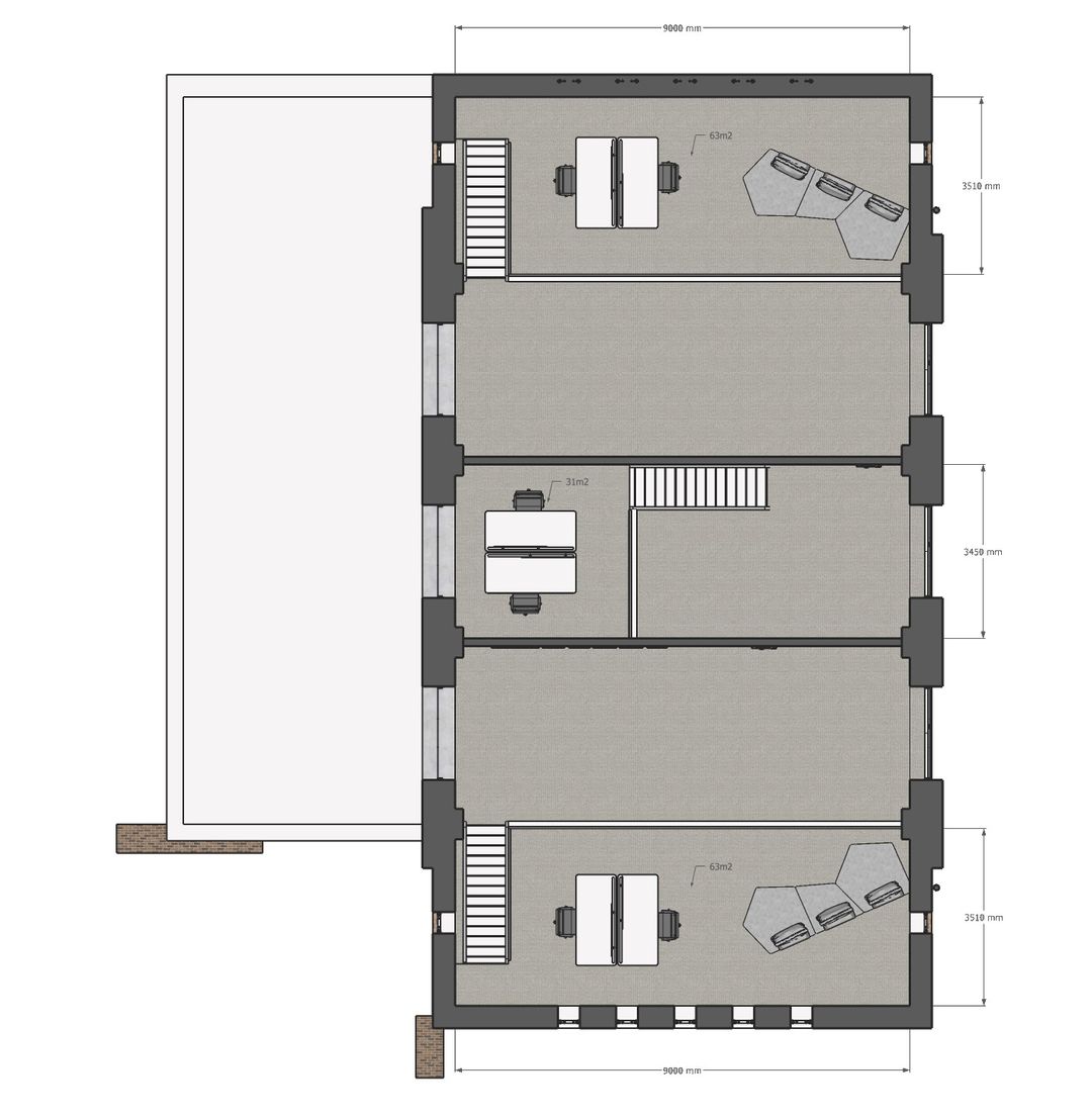
De beschikbare kantoorunit heeft een totale oppervlakte van circa 43,3 m² v.v.o., aangevuld met circa 12,05 m² aandeel in algemene voorzieningen, waaronder een moderne pantry, toiletgroep en vergaderruimte.

Deze kantoorruimte is volledig nieuw gerealiseerd in een getransformeerde voormalige sporthal en kenmerkt zich door een strakke, hoogwaardige en moderne afwerking. De unit beschikt over uitstekende daglichttoetreding, wat zorgt voor een inspirerende en productieve werkomgeving. Volledig verduurzaamd en klaar voor de toekomst, dit is kantoorruimte op topniveau.
Gebruikers profiteren van vernieuwde, representatieve gemeenschappelijke voorzieningen en entree. Desgewenst is een eigen entree realiseerbaar, waarmee extra exclusiviteit en zelfstandigheid wordt gecreëerd.

De ligging is absoluut onderscheidend. Gesitueerd aan de Groene Boord, één van de belangrijkste verkeersaders van Heerlen, profiteert u hier van maximale zichtbaarheid en uitstekende bereikbaarheid. Binnen enkele minuten bevindt u zich in het centrum van Heerlen, terwijl uitvalswegen richting Landgraaf, Maastricht, Eindhoven en Aachen naadloos aansluiten. Parkeren is ruim voorhanden.

De aanwezigheid van professionele medehuurders, waaronder een projectontwikkelaar en een kantoorfunctie gelieerd aan het Clarahuys, zorgt voor een hoogwaardige en zakelijke uitstraling van het geheel.

Parkeren & huurcondities
Bij deze unit behoort exclusief één parkeerplaats. De huurprijs bedraagt een scherpe all-in huurprijs van € 11.000,- per jaar (excl. btw), te vermeerderen met € 660,- per jaar voor de parkeerplaats.

Zoekt u een compacte, hoogwaardige en onderscheidende kantoorruimte op een zichtlocatie, direct nabij het centrum van Heerlen? Dan is dit dé kans om uw organisatie te positioneren op een locatie met uitstraling, bereikbaarheid en kwaliteit.

Neem voor meer informatie of een bezichtiging contact op met De Bock Vastgoedadviseurs.

Overige zaken

Zekerheidsstelling
Waarborgsom of bankgarantie ter grootte van drie maanden huur.

Huurovereenkomst
ROZ-model huurovereenkomst bedrijfsruimte (2015).

Huurindexatie
Jaarlijkse indexatie op basis van CPI (CBS).

Verhuur van dit object is te allen tijde onder voorbehoud van schriftelijke goedkeuring door eigenaar.

Alle maten en afmetingen zijn bij benadering weergegeven. Deze aanbieding mag slechts worden gezien als een uitnodiging tot bezichtiging.

Kenmerken

Overdracht

Huurprijs
€ 11.000 per jaar
Servicekosten
Geen servicekosten bekend
Aangeboden sinds
Status
Beschikbaar
Aanvaarding
In overleg

Bouw

Hoofdfunctie
Kantoor
Soort bouw
Bestaande bouw
Bouwjaar
1935

Oppervlakten

Oppervlakte
55 m²

Indeling

Aantal bouwlagen
1 bouwlaag
Voorzieningen
Inbouwarmaturen, toilet, pantry en verwarming

Energie

Energielabel
A

Omgeving

Ligging
Stadscentrum/dorpskern

Parkeergelegenheid

Parkeerplaatsen
1 overdekte parkeerplaats

Kaart

Kaart laden...

Kadastrale grens Bebouwing

Reistijd

Krijg inzicht in de bereikbaarheid van dit object vanuit bijvoorbeeld een openbaar vervoer station of vanuit een adres.

Gasthuisstraat 21-A

€ 11.000 /jr