Omschrijving
Zuid-Koninginnewal 2-4 te Helmond
Het betreft het kantoorgebouw aan de Zuid-Koninginnewal 2-4 ook wel bekend als het ’T Cour. ’T Cour is gebouwd in 1998 en is voorheen in gebruik geweest door de gemeente Helmond ten behoeve van de huisvesting van de Burgermeesters en Wethouders. Het gebouw kenmerkt zich door de schuine zijden, hoge statische gevels en strakke lijnen aan de buitenzijde. Ook het fraaie metselwerk is karakteristiek voor het gebouw.
‘T Cour heeft een breed aanbod aan verschillende kantoormogelijkheden. Het is al mogelijk om vanaf circa 26 m² flexibel kantoorruimte te huren.
Bereikbaarheid
Door de centrale ligging is het pand zowel per openbaar vervoer als per auto goed te bereiken. Op loopafstand bevindt zich het station van Helmond. De Zuid- Koninginnewal grenst aan de welbekende N270. Deze verbindingsweg verbindt Eindhoven met Helmond en loopt over in de N279 die Helmond met Deurne verbindt. Vanwege de centrale ligging is het stadcentrum van Helmond met al haar voorzieningen zoals winkels en horeca gemakkelijk en lopend te bereiken.
Energielabel
Het object beschikt over een energielabel B.
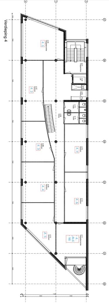
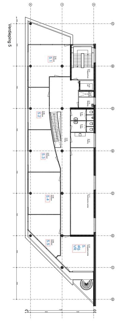
Kantoorunits
Meerdere kantoorruimtes kunnen separaat of gecombineerd verhuurd worden, ook is het mogelijk om een atelierruimte te huren op begane grond vanaf circa 32 m² of kantoorunits te huren vanaf 19 m² op de vierde en vijfde verdieping.
Verdieping unit Metrage all-in huurprijs per maand
Begane grond 0.1 ca. 32 m2 € 425,00
Vierde verdieping 4.1 ca. 49 m2 € 625,00
Vierde verdieping 4.2 ca. 42 m2 € 525,00
Vierde verdieping 4.4 ca. 42 m2 € 525,00
Vierde verdieping 4.5 ca. 40 m2 € 525,00
Vierde verdieping 4.6 ca. 35 m2 € 450,00
Vijfde verdieping 5.3 ca. 34 m2 € 500,00
Vijfde verdieping 5.4 ca. 40 m2 € 585,00
* alle bovenstaande huurprijzen dienen te worden vermeerderd met btw.
Aanvaarding
Per direct.
Huurtermijn
Flexibele termijnen.
Opzegtermijn
Nader te bepalen.
Zekerheidstelling
Waarborgsom ter grootte van drie maanden huur inclusief servicekosten en btw.
All- in huurprijs kantoorunit
Vanaf € 400,00 per maand te vermeerderen met btw.
Huurprijs parkeerplaats
Inclusief één parkeerplaats, elke extra parkeerplaats kost € 50,00 per parkeerplaats per maand, te vermeerderen met btw.
Kantoorruimte
- Centrale entree;
- Tourniquet;
- Digitale aanmeldzuil;
- Sfeervolle ontvangstruimte;
- Algemene verblijf-, ontspanning- en ontmoetingsruimte met balkon op de 5e verdieping;
- Voetbaltafel voor vermaak tijdens pauzes;
- Gescheiden dames- en herentoiletten, per verdieping;
- Centrale luchtbehandeling met topkoeling;
- Cv-installatie met verwarming middels radiatoren;
- Spreekkamers;
- Pantry per verdieping;
- Systeemplafond met TL-inbouwarmaturen;
- Liftinstallatie;
- Afsluitbare kiepramen;
- Automatische buitenzonwering.
Het betreft het kantoorgebouw aan de Zuid-Koninginnewal 2-4 ook wel bekend als het ’T Cour. ’T Cour is gebouwd in 1998 en is voorheen in gebruik geweest door de gemeente Helmond ten behoeve van de huisvesting van de Burgermeesters en Wethouders. Het gebouw kenmerkt zich door de schuine zijden, hoge statische gevels en strakke lijnen aan de buitenzijde. Ook het fraaie metselwerk is karakteristiek voor het gebouw.
‘T Cour heeft een breed aanbod aan verschillende kantoormogelijkheden. Het is al mogelijk om vanaf circa 26 m² flexibel kantoorruimte te huren.
Bereikbaarheid
Door de centrale ligging is het pand zowel per openbaar vervoer als per auto goed te bereiken. Op loopafstand bevindt zich het station van Helmond. De Zuid- Koninginnewal grenst aan de welbekende N270. Deze verbindingsweg verbindt Eindhoven met Helmond en loopt over in de N279 die Helmond met Deurne verbindt. Vanwege de centrale ligging is het stadcentrum van Helmond met al haar voorzieningen zoals winkels en horeca gemakkelijk en lopend te bereiken.
Energielabel
Het object beschikt over een energielabel B.
Kantoorunits
Meerdere kantoorruimtes kunnen separaat of gecombineerd verhuurd worden, ook is het mogelijk om een atelierruimte te huren op begane grond vanaf circa 32 m² of kantoorunits te huren vanaf 19 m² op de vierde en vijfde verdieping.
Verdieping unit Metrage all-in huurprijs per maand
Begane grond 0.1 ca. 32 m2 € 425,00
Vierde verdieping 4.1 ca. 49 m2 € 625,00
Vierde verdieping 4.2 ca. 42 m2 € 525,00
Vierde verdieping 4.4 ca. 42 m2 € 525,00
Vierde verdieping 4.5 ca. 40 m2 € 525,00
Vierde verdieping 4.6 ca. 35 m2 € 450,00
Vijfde verdieping 5.3 ca. 34 m2 € 500,00
Vijfde verdieping 5.4 ca. 40 m2 € 585,00
* alle bovenstaande huurprijzen dienen te worden vermeerderd met btw.
Aanvaarding
Per direct.
Huurtermijn
Flexibele termijnen.
Opzegtermijn
Nader te bepalen.
Zekerheidstelling
Waarborgsom ter grootte van drie maanden huur inclusief servicekosten en btw.
All- in huurprijs kantoorunit
Vanaf € 400,00 per maand te vermeerderen met btw.
Huurprijs parkeerplaats
Inclusief één parkeerplaats, elke extra parkeerplaats kost € 50,00 per parkeerplaats per maand, te vermeerderen met btw.
Kantoorruimte
- Centrale entree;
- Tourniquet;
- Digitale aanmeldzuil;
- Sfeervolle ontvangstruimte;
- Algemene verblijf-, ontspanning- en ontmoetingsruimte met balkon op de 5e verdieping;
- Voetbaltafel voor vermaak tijdens pauzes;
- Gescheiden dames- en herentoiletten, per verdieping;
- Centrale luchtbehandeling met topkoeling;
- Cv-installatie met verwarming middels radiatoren;
- Spreekkamers;
- Pantry per verdieping;
- Systeemplafond met TL-inbouwarmaturen;
- Liftinstallatie;
- Afsluitbare kiepramen;
- Automatische buitenzonwering.
Kaart
Kaart laden...
Kadastrale grens
Bebouwing
Reistijd
Krijg inzicht in de bereikbaarheid van dit object vanuit bijvoorbeeld een openbaar vervoer station of vanuit een adres.