Kruisweg 643-647 2132 NC Hoofddorp
€ 100 /m²/jaar
Omschrijving
Twee kantoorruimten van ca. 271/199 m² gelegen op de begane grond en 2e verdieping van dit kleinschalige kantoorgebouw.
Het pand ligt op een zichtlocatie langs de doorgaande weg (N196) en heeft een ruim eigen parkeerterrein aan de achterzijde. De ruim opgezette lichte en met moderne materialen afgewerkte entreehal heeft een representatieve uitstraling.
In de directe nabijheid zijn onder andere een NH Hotel en een Hyatt Hotel gevestigd en het pand ligt naast het Hotel NinetyNine. De hotels bieden diverse faciliteiten zoals vergaderaccommodaties en restaurants, fitnessruimten, etc.
De eigenaren en gebruikers van de gebouwen op Airport Business Park De Hoek hebben een Park-management organisatie opgericht, die zorg draagt voor onder meer de beveiliging van het terrein en het onderhoud van wegen en groenvoorzieningen.
Ligging/bereikbaarheid
Het pand ligt aan de rand van Airport Business Park De Hoek, op een zichtlocatie aan de N196. De bereikbaarheid is zonder meer uitstekend te noemen door de ligging aan de voet van de afrit van de A4 (Amsterdam-Den Haag-Rotterdam) en A5 (Haarlem).
De vrije verhoogde busbaan R-Net heeft een halte (De Hoek Boven) op loopafstand. Deze supersnelle busverbinding rijdt tussen Haarlem via Schiphol naar Amsterdam-Zuidoost (lijn 300) en tussen Nieuw-Vennep via Schiphol naar Amsterdam Zuid WTC (lijn 341) of Amsterdam Centrum (lijn 397) garandeert een perfecte bereikbaarheid per openbaar vervoer.
Nadere informatie kunt u vinden op connexxion.nl
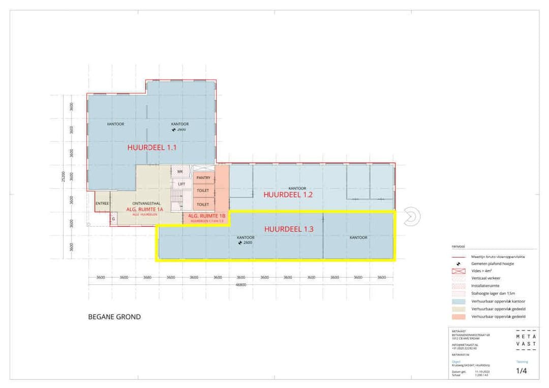
Vloeroppervlak
Momenteel zijn de navolgende ruimten beschikbaar voor verhuur:
begane grond: ca. 271 m² (unit 1.3);
2e verdieping: ca. 199 m² (unit 2.3).
Parkeren
Voor de aangeboden kantoorruimte zijn parkeerplaatsen beschikbaar welke zijn gelegen op het eigen parkeerterrein achter het gebouw. De parkeerplaatsen zijn beschikbaar op basis van een parkeernorm van 1 plaats per ca. 30 m² gehuurde kantoorruimte.
Opleveringsniveau
Het gebouw c.q. de kantoorruimte is onder meer voorzien van:
- representatieve ruime entree;
- lift en ruime trap;
- systeemplafonds met inbouw-verlichtingsarmaturen;
- verwarming door middel van radiatoren;
- luchtbehandelingsinstallatie met topkoeling;
- te openen ramen;
- kabelgoten;
- automatisch bedienbare zonwering aan de buitenzijde;
- dubbele sanitaire faciliteiten per verdieping;
- pantry per verdieping.
Het pand heeft een glasvezelverbinding, waarbij huurder zelf zorg dient te dragen voor het afsluiten van een abonnement met een leverancier.
Het gebouw is voorzien van energielabel C.
Huurprijs
De huurprijs voor de kantoorruimte bedraagt € 100,-- per m² per jaar te vermeerderen met BTW en servicekosten.
De huurprijs voor de parkeerplaatsen bedraagt € 1.000,-- per plaats per jaar te vermeerderen met BTW.
Bij het vaststellen van de huurprijs is uitgangspunt dat huurder het gehuurde voor ten minste het bij de wet vastgestelde of nader vast te stellen minimum percentage blijvend zal gebruiken voor prestaties die recht geven op aftrek van BTW, zodanig dat kan worden geopteerd voor een belaste verhuur.
Servicekosten
De servicekosten bedragen € 40,- per m² per jaar te vermeerderen met BTW op basis van een voorschot met jaarlijkse nacalculatie.
Aanvaarding
Op korte termijn.
Alle door BT Makelaars verstrekte informatie is met zorg samengesteld. Aan de juistheid van de vrijblijvend verstrekte informatie kunnen echter geen rechten worden ontleend.
Het pand ligt op een zichtlocatie langs de doorgaande weg (N196) en heeft een ruim eigen parkeerterrein aan de achterzijde. De ruim opgezette lichte en met moderne materialen afgewerkte entreehal heeft een representatieve uitstraling.
In de directe nabijheid zijn onder andere een NH Hotel en een Hyatt Hotel gevestigd en het pand ligt naast het Hotel NinetyNine. De hotels bieden diverse faciliteiten zoals vergaderaccommodaties en restaurants, fitnessruimten, etc.
De eigenaren en gebruikers van de gebouwen op Airport Business Park De Hoek hebben een Park-management organisatie opgericht, die zorg draagt voor onder meer de beveiliging van het terrein en het onderhoud van wegen en groenvoorzieningen.
Ligging/bereikbaarheid
Het pand ligt aan de rand van Airport Business Park De Hoek, op een zichtlocatie aan de N196. De bereikbaarheid is zonder meer uitstekend te noemen door de ligging aan de voet van de afrit van de A4 (Amsterdam-Den Haag-Rotterdam) en A5 (Haarlem).
De vrije verhoogde busbaan R-Net heeft een halte (De Hoek Boven) op loopafstand. Deze supersnelle busverbinding rijdt tussen Haarlem via Schiphol naar Amsterdam-Zuidoost (lijn 300) en tussen Nieuw-Vennep via Schiphol naar Amsterdam Zuid WTC (lijn 341) of Amsterdam Centrum (lijn 397) garandeert een perfecte bereikbaarheid per openbaar vervoer.
Nadere informatie kunt u vinden op connexxion.nl
Vloeroppervlak
Momenteel zijn de navolgende ruimten beschikbaar voor verhuur:
begane grond: ca. 271 m² (unit 1.3);
2e verdieping: ca. 199 m² (unit 2.3).
Parkeren
Voor de aangeboden kantoorruimte zijn parkeerplaatsen beschikbaar welke zijn gelegen op het eigen parkeerterrein achter het gebouw. De parkeerplaatsen zijn beschikbaar op basis van een parkeernorm van 1 plaats per ca. 30 m² gehuurde kantoorruimte.
Opleveringsniveau
Het gebouw c.q. de kantoorruimte is onder meer voorzien van:
- representatieve ruime entree;
- lift en ruime trap;
- systeemplafonds met inbouw-verlichtingsarmaturen;
- verwarming door middel van radiatoren;
- luchtbehandelingsinstallatie met topkoeling;
- te openen ramen;
- kabelgoten;
- automatisch bedienbare zonwering aan de buitenzijde;
- dubbele sanitaire faciliteiten per verdieping;
- pantry per verdieping.
Het pand heeft een glasvezelverbinding, waarbij huurder zelf zorg dient te dragen voor het afsluiten van een abonnement met een leverancier.
Het gebouw is voorzien van energielabel C.
Huurprijs
De huurprijs voor de kantoorruimte bedraagt € 100,-- per m² per jaar te vermeerderen met BTW en servicekosten.
De huurprijs voor de parkeerplaatsen bedraagt € 1.000,-- per plaats per jaar te vermeerderen met BTW.
Bij het vaststellen van de huurprijs is uitgangspunt dat huurder het gehuurde voor ten minste het bij de wet vastgestelde of nader vast te stellen minimum percentage blijvend zal gebruiken voor prestaties die recht geven op aftrek van BTW, zodanig dat kan worden geopteerd voor een belaste verhuur.
Servicekosten
De servicekosten bedragen € 40,- per m² per jaar te vermeerderen met BTW op basis van een voorschot met jaarlijkse nacalculatie.
Aanvaarding
Op korte termijn.
Alle door BT Makelaars verstrekte informatie is met zorg samengesteld. Aan de juistheid van de vrijblijvend verstrekte informatie kunnen echter geen rechten worden ontleend.
Kenmerken
Overdracht
- Huurprijs
- € 100 per vierkante meter per jaar
- Servicekosten
- Geen servicekosten bekend
- Aangeboden sinds
-
- Status
- Beschikbaar
- Aanvaarding
- Per direct beschikbaar
Bouw
- Hoofdfunctie
- Kantoor
- Soort bouw
- Bestaande bouw
- Bouwperiode
- 1991-2000
Oppervlakten
- Oppervlakte
- 470 m² (in units vanaf 199 m²)
Indeling
- Aantal bouwlagen
- 2 bouwlagen
Energie
- Energielabel
- C
Foto's