Kruisweg 478 2132 LA Hoofddorp
€ 130 /m²/jaar
Omschrijving
OBJECT
Kantoorgebouw ‘KROMHOUT’ is gelegen op een prominente zichtlocatie langs de druk bereden N201, direct bij de op- en afrit van de A4 in kantorenpark Beukenhorst-Oost te Hoofddorp. Op de tweede verdieping van het gebouw komt binnenkort een kantoorvloer van ca. 350 m² beschikbaar. Deze verdieping beschikt over een ruim dakterras van ca. 100 m² met vrij uitzicht over het polderlandschap. Dankzij de nabijheid van Schiphol en de uitstekende bereikbaarheid via de A4, A5 en N201 is dit een interessante vestigingslocatie voor diverse typen ondernemingen. Met ruime parkeergelegenheid, goede OV-verbindingen (bus en trein), het Hyatt Place Hotel tegenover het gebouw en een uitgebreide tankshop onder het kantoorgebouw is dit een laagdrempelige en praktische locatie.
BESTEMMINGSPLAN
Kantoor conform bestemmingsplan ‘Haarlemmermeer 2014’.
ENERGIELABEL
Het object beschikt over energielabel C (geldig tot 05-04-2029).
VLOEROPPERVLAKTE
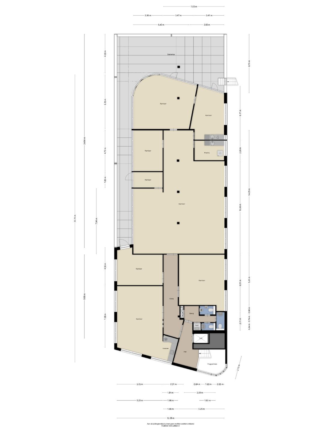
Voor de verhuur is circa 346 m² kantoorruimte op de 2e verdieping beschikbaar.
Oppervlakten volgens NEN 2580. Genoemd metrage is inclusief een beperkte toeslag voor het gebruik van gemeenschappelijke ruimten.
PARKEREN
Het gebouw beschikt over een ruim eigen parkeerterrein. De parkeernorm is circa 1:25 m² kantoorruimte, derhalve kunnen er 12 parkeerplaatsen worden gehuurd.
VOORZIENINGEN
• Overdekte entree met intercom en beltableau
• Personenlift en trappenhuis
• Toiletgroep (M/V)
• Diverse vloerafwerkingen
• Kabelgoten voor elektra en data
• Verwarming middels radiatoren
• Te openen ramen (zonwerende beglazing)
• Pantry’s
• Systeemplafonds met ledverlichting
• Luchtbehandeling d.m.v. mechanische ventilatie met topkoeling
• Brandveiligheidsvoorzieningen
• Dakterras
HUURPRIJS
• Kantoorruimte: € 130 per m² per jaar te vermeerderen met servicekosten en BTW
• Parkeren: € 600,- per plaats per jaar te vermeerderen met BTW
NUTSVOORZIENINGEN
Het object beschikt over aansluitingen voor gas, water en elektra. In het gebouw is een glasvezelaansluiting aanwezig via IP Visie. Een huurder dient een eigen (individueel) internetabonnement af te sluiten.
SERVICEKOSTEN
€ 45,00 per m² per jaar te vermeerderen met BTW.
Het betreft een vaste, niet verrekenbare vergoeding voor onder andere verbruik gas, water en elektra, onderhoud van installaties en schoonmaak van gemeenschappelijke ruimten. Deze vergoeding zal jaarlijks, op gelijke wijze en voorwaarden als de huurprijs, worden geïndexeerd.
HUURVOORWAARDEN
• Huurtermijn: 3 jaar met telkens een verlengingsmogelijkheid. Langere huurperioden zijn bespreekbaar.
• Opzegtermijn: nader overeen te komen.
• Betalingen: per maand vooruit.
• BTW: de verhuurder opteert voor BTW-belaste verhuur.
• Zekerheidsstelling: bankgarantie of waarborgsom ter grootte van drie maanden huur inclusief servicekosten en BTW.
• Huurprijsaanpassing: jaarlijks, voor het eerst één jaar na de huuringangsdatum, op basis van de wijziging van het maandprijsindexcijfer volgens de consumentenprijsindex (CPI) reeks alle huishoudens (2015=100), gepubliceerd door het Centraal Bureau voor de Statistiek (CBS).
• Huurovereenkomst: gebaseerd op het model zoals in 2025 is vastgesteld door de Raad voor Onroerende Zaken (ROZ).
• Aanvaarding/oplevering: op korte termijn beschikbaar.
VOORBEHOUD
Definitieve goedkeuring en gunning door verhuurder.
DISCLAIMER
De vermelde informatie is van algemene aard en is niet meer dan een uitnodiging om in onderhandeling te treden. Bezichtigingen vinden uitsluitend op afspraak plaats. Aan de inhoud van deze zorgvuldig samengestelde informatie kunnen geen rechten worden ontleend.
Kantoorgebouw ‘KROMHOUT’ is gelegen op een prominente zichtlocatie langs de druk bereden N201, direct bij de op- en afrit van de A4 in kantorenpark Beukenhorst-Oost te Hoofddorp. Op de tweede verdieping van het gebouw komt binnenkort een kantoorvloer van ca. 350 m² beschikbaar. Deze verdieping beschikt over een ruim dakterras van ca. 100 m² met vrij uitzicht over het polderlandschap. Dankzij de nabijheid van Schiphol en de uitstekende bereikbaarheid via de A4, A5 en N201 is dit een interessante vestigingslocatie voor diverse typen ondernemingen. Met ruime parkeergelegenheid, goede OV-verbindingen (bus en trein), het Hyatt Place Hotel tegenover het gebouw en een uitgebreide tankshop onder het kantoorgebouw is dit een laagdrempelige en praktische locatie.
BESTEMMINGSPLAN
Kantoor conform bestemmingsplan ‘Haarlemmermeer 2014’.
ENERGIELABEL
Het object beschikt over energielabel C (geldig tot 05-04-2029).
VLOEROPPERVLAKTE
Voor de verhuur is circa 346 m² kantoorruimte op de 2e verdieping beschikbaar.
Oppervlakten volgens NEN 2580. Genoemd metrage is inclusief een beperkte toeslag voor het gebruik van gemeenschappelijke ruimten.
PARKEREN
Het gebouw beschikt over een ruim eigen parkeerterrein. De parkeernorm is circa 1:25 m² kantoorruimte, derhalve kunnen er 12 parkeerplaatsen worden gehuurd.
VOORZIENINGEN
• Overdekte entree met intercom en beltableau
• Personenlift en trappenhuis
• Toiletgroep (M/V)
• Diverse vloerafwerkingen
• Kabelgoten voor elektra en data
• Verwarming middels radiatoren
• Te openen ramen (zonwerende beglazing)
• Pantry’s
• Systeemplafonds met ledverlichting
• Luchtbehandeling d.m.v. mechanische ventilatie met topkoeling
• Brandveiligheidsvoorzieningen
• Dakterras
HUURPRIJS
• Kantoorruimte: € 130 per m² per jaar te vermeerderen met servicekosten en BTW
• Parkeren: € 600,- per plaats per jaar te vermeerderen met BTW
NUTSVOORZIENINGEN
Het object beschikt over aansluitingen voor gas, water en elektra. In het gebouw is een glasvezelaansluiting aanwezig via IP Visie. Een huurder dient een eigen (individueel) internetabonnement af te sluiten.
SERVICEKOSTEN
€ 45,00 per m² per jaar te vermeerderen met BTW.
Het betreft een vaste, niet verrekenbare vergoeding voor onder andere verbruik gas, water en elektra, onderhoud van installaties en schoonmaak van gemeenschappelijke ruimten. Deze vergoeding zal jaarlijks, op gelijke wijze en voorwaarden als de huurprijs, worden geïndexeerd.
HUURVOORWAARDEN
• Huurtermijn: 3 jaar met telkens een verlengingsmogelijkheid. Langere huurperioden zijn bespreekbaar.
• Opzegtermijn: nader overeen te komen.
• Betalingen: per maand vooruit.
• BTW: de verhuurder opteert voor BTW-belaste verhuur.
• Zekerheidsstelling: bankgarantie of waarborgsom ter grootte van drie maanden huur inclusief servicekosten en BTW.
• Huurprijsaanpassing: jaarlijks, voor het eerst één jaar na de huuringangsdatum, op basis van de wijziging van het maandprijsindexcijfer volgens de consumentenprijsindex (CPI) reeks alle huishoudens (2015=100), gepubliceerd door het Centraal Bureau voor de Statistiek (CBS).
• Huurovereenkomst: gebaseerd op het model zoals in 2025 is vastgesteld door de Raad voor Onroerende Zaken (ROZ).
• Aanvaarding/oplevering: op korte termijn beschikbaar.
VOORBEHOUD
Definitieve goedkeuring en gunning door verhuurder.
DISCLAIMER
De vermelde informatie is van algemene aard en is niet meer dan een uitnodiging om in onderhandeling te treden. Bezichtigingen vinden uitsluitend op afspraak plaats. Aan de inhoud van deze zorgvuldig samengestelde informatie kunnen geen rechten worden ontleend.
Kenmerken
Overdracht
- Huurprijs
- € 130 per vierkante meter per jaar
- Servicekosten
- € 45 per vierkante meter per jaar (21% BTW van toepassing)
- Aangeboden sinds
-
- Status
- Beschikbaar
- Aanvaarding
- In overleg
Bouw
- Hoofdfunctie
- Kantoor
- Soort bouw
- Bestaande bouw
- Bouwjaar
- 1991
Oppervlakten
- Oppervlakte
- 346 m²
Indeling
- Aantal bouwlagen
- 1 bouwlaag
- Voorzieningen
- Mechanische ventilatie, inbouwarmaturen, te openen ramen, kabelgoten, systeemplafond, toilet, pantry, verwarming en kamerindeling
Energie
- Energielabel
- C
Omgeving
- Ligging
- Bedrijventerrein
Parkeergelegenheid
- Parkeerplaatsen
- 12 niet-overdekte parkeerplaatsen
Foto's
Plattegrond
Tweede Verdieping