Waardwei 9 8754 HB Makkum

€ 840.000 k.k.
Blikvanger Representatief pand met ca. 319 m² werkplaats en ruim 400 m² kantoor

Omschrijving

Goed onderhouden en volledig geïsoleerd bedrijfspand met bedrijfsruimte en kantoren en voorzien van een A-label. Het pand is omstreeks 2009 gebouwd, rond 2013 vergroot en is in 2021 voorzien van 106 zonnepanelen (op jaarbasis ongeveer 16.000 - 18.000 kwh). Dit bedrijfspand is gelegen op bedrijventerrein Zuidwaard op totaal 1.190 m² eigen grond.

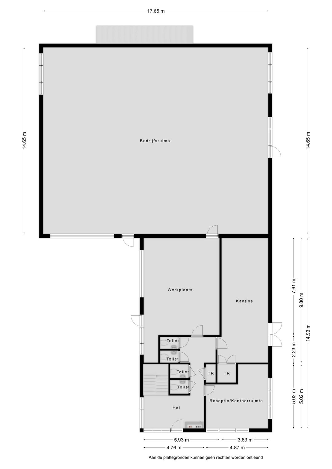
De totale oppervlakte op de begane grond bedraagt circa 413 m² waarvan ongeveer 319 m² werkplaats/bedrijfsruimte. De verdieping heeft een oppervlakte van circa 396 m².

Het volledig geïsoleerde pand is o.a. voorzien van warmtepomp, vloerverwarming, 106 zonnepanelen, luchtbehandeling (zonder koeling), brandalarm en inbraakalarm. De kantoorruimten beschikken over systeemplafonds met (basis)verlichting, kabelgoten, databekabeling (CAT6) en screens. In de kantine is een bar aanwezig en in de bedrijfsruimte zit krachtstroom. In het gehele pand hangen/staan diverse brandblussers en bij de voorgevel ligt de glasvezelkabel.

Op de begane grond zijn onder meer een entree/hal met meterkast en serverruimte, toiletgroep (3 hangende toiletten en een urinoir), receptie/kantoorruimte (ca. 22,3 m²), kantine (ca. 36,4 m²) met dubbele buitendeuren en een techniekruimte, werkplaats (ca. 49,1 m², hoogte ca. 3.00 m) met buitendeur en overheaddeur (breedte ± 3.75 m en hoogte ± 2.60) en een bedrijfsruimte (ca. 270 m²) met 2x een buitendeur en een overheaddeur (breedte ± 5.00 m en hoogte ± 4.20 m, elektrisch bedienbaar). De gehele begane grond (inclusief werkplaats en bedrijfsruimte) is voorzien van vloerverwarming.

De verdieping is volledig als kantoor ingericht en beschikt over onder andere een kantoortuin (ca. 87,5 m²) aan de voorzijde, kantoorruimte (ca. 24,7 m²), reproruimte (ca. 23,9 m²), grote kantoortuin aan de achterzijde (ca. 134,8 m²) met vergaderruimte (ca. 24,1 m²), kantoorruimte (ca. 37,3 m²) met zgn. frans balkon en nog een kantoorruimte (ca. 51,7 m²). Ook op de gehele verdieping ligt vloerverwarming.

De oppervlakten zijn op basis van bouwtekeningen.

De maximale vloerbelasting bedraagt:
werkplaats begane grond: maximaal 500 kg/m²
bedrijfsruimte begane grond: maximaal 1.000 kg/m²
kantoorruimte begane grond: maximaal 300 kg/m²
kantoorruimte verdieping: maximaal 300 kg/m²

De bestemming is "Bedrijventerrein" met de functie-aanduiding "bedrijf tot en met categorie 3.2".

Deze informatie is door ons met de nodige zorgvuldigheid samengesteld, veelal aan de hand van de door verkoper aan ons ter hand gestelde gegevens en tekeningen. Onzerzijds wordt echter geen enkele aansprakelijkheid aanvaard voor enige onvolledigheid, onjuistheid of anderszins, dan wel de gevolgen daarvan. Dit geldt voor onder meer de opgegeven maten, oppervlakten, isolatie en ouderdom van technische installaties.

Kenmerken

Overdracht

Vraagprijs
€ 840.000 kosten koper
Aangeboden sinds
Status
Beschikbaar
Aanvaarding
In overleg

Bouw

Hoofdfunctie
Bedrijfshal
Mogelijke functie(s)
Kantoorruimte
Soort bouw
Bestaande bouw
Bouwjaar
2009

Oppervlakten

Oppervlakte
490 m²
Perceel
1.190 m²

Indeling

Aantal bouwlagen
2 bouwlagen
Voorzieningen
Mechanische ventilatie, overheaddeuren, krachtstroom en betonvloer

Energie

Energielabel
A 0,84

Omgeving

Ligging
Bedrijventerrein
Bereikbaarheid
Bushalte op 500 m tot 1000 m en snelwegafrit op 4000 m tot 5000 m

Kaart

Kaart laden...

Kadastrale grens Bebouwing

Reistijd

Krijg inzicht in de bereikbaarheid van dit object vanuit bijvoorbeeld een openbaar vervoer station of vanuit een adres.

Waardwei 9

€ 840.000 k.k.