Hoornseweg 17 1775 RB Middenmeer
€ 625 /mnd
Omschrijving
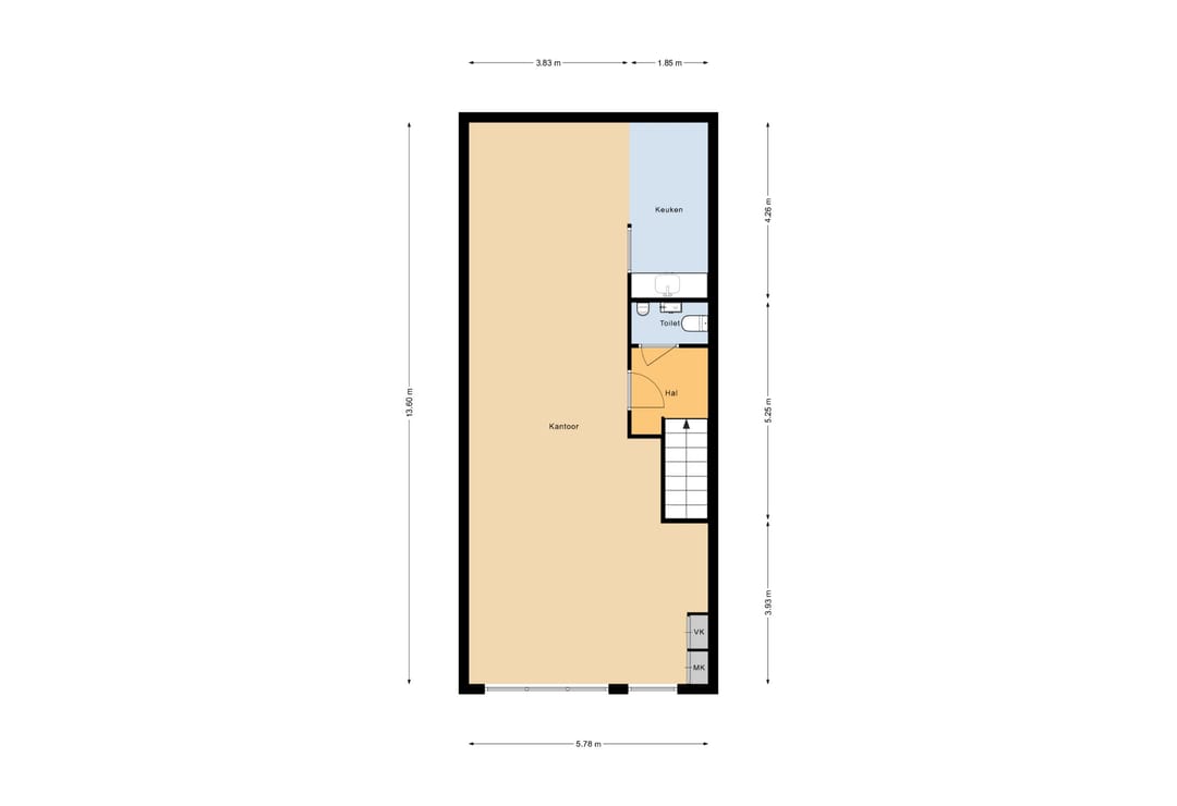
Op zoek naar een veelzijdige kantoor- en praktijkruimte met een efficiënte indeling en goede voorzieningen? Deze representatieve ruimte is gelegen nabij de afrit A7 Middenmeer en instapklaar. Deze 1e etage van 80 m² biedt alles wat u nodig heeft voor een professionele werkomgeving. Met een totale lengte van 13,60 meter en een breedte van 5,80 meter beschikt de etage over een royale kantoorruimte, luxe sanitaire voorzieningen, een keuken en parkeerplaatsen.
Via de voordeur komt u binnen in een nette hal, die toegang biedt tot de trapopgang (de begane grond wordt geheel gebruikt voor opslag). Boven komt u in de hal met garderobe en het toilet met urinoir. De kantoorruimte is voorzien van grote raampartijen aan de voorzijde welke zorgen voor veel daglicht. Aan de achterzijde is de keuken. De open kantoorruimte is ruim van opzet en biedt talloze indelingsmogelijkheden voor flexibele werkplekken, vergaderhoeken of vaste bureaus.
Het kantoor is voorzien van (in 2025) een WTW-installatie met verwarming, een geïsoleerd duurzaam plafond van 3,2 meter hoog met een professioneel LED-lichtplan, een PVC-plankenvloer, licht afgewerkte wanden (stuc), en een eigen meterkast met elektra-, water-, en glasvezelaansluiting (Data-Fiber van Delta). De keuken is voorzien van een spoelbak met warm en koud water, een combimagnetron en een koelkast. Het kantoor en de keuken worden gescheiden door een bar.
De etage behoort tot de unit op de kop van een in 2024 opgeleverd blok van 16 units met hoogwaardige isolatie en buitengevelmetselwerk. Er is voldoende openbare parkeergelegenheid beschikbaar nabij de unit en in de omliggende straten. Het betreft gratis parkeren, 7 dagen per week. Dit maakt het pand uitstekend bereikbaar voor zowel personeel als bezoekers. Openbaar vervoer binnen 3 minuten lopen. Directe ligging ook nabij N242 (richting Alkmaar).
Verhuurvoorwaarden:
- Huurprijs € 625,- p/mnd, geen btw.
- Per direct beschikbaar;
- Waarborgsom 3 maanden huur;
- Huurtermijn vanaf 1 jaar.
BOUWJAAR
2024 bouwjaar pand.
ENERGIELABEL
Het Energielabel voor dit object is vermoedelijk A, opgeleverd in 2024.
AANVAARDING
Aanvaarding is per direct.
Via de voordeur komt u binnen in een nette hal, die toegang biedt tot de trapopgang (de begane grond wordt geheel gebruikt voor opslag). Boven komt u in de hal met garderobe en het toilet met urinoir. De kantoorruimte is voorzien van grote raampartijen aan de voorzijde welke zorgen voor veel daglicht. Aan de achterzijde is de keuken. De open kantoorruimte is ruim van opzet en biedt talloze indelingsmogelijkheden voor flexibele werkplekken, vergaderhoeken of vaste bureaus.
Het kantoor is voorzien van (in 2025) een WTW-installatie met verwarming, een geïsoleerd duurzaam plafond van 3,2 meter hoog met een professioneel LED-lichtplan, een PVC-plankenvloer, licht afgewerkte wanden (stuc), en een eigen meterkast met elektra-, water-, en glasvezelaansluiting (Data-Fiber van Delta). De keuken is voorzien van een spoelbak met warm en koud water, een combimagnetron en een koelkast. Het kantoor en de keuken worden gescheiden door een bar.
De etage behoort tot de unit op de kop van een in 2024 opgeleverd blok van 16 units met hoogwaardige isolatie en buitengevelmetselwerk. Er is voldoende openbare parkeergelegenheid beschikbaar nabij de unit en in de omliggende straten. Het betreft gratis parkeren, 7 dagen per week. Dit maakt het pand uitstekend bereikbaar voor zowel personeel als bezoekers. Openbaar vervoer binnen 3 minuten lopen. Directe ligging ook nabij N242 (richting Alkmaar).
Verhuurvoorwaarden:
- Huurprijs € 625,- p/mnd, geen btw.
- Per direct beschikbaar;
- Waarborgsom 3 maanden huur;
- Huurtermijn vanaf 1 jaar.
BOUWJAAR
2024 bouwjaar pand.
ENERGIELABEL
Het Energielabel voor dit object is vermoedelijk A, opgeleverd in 2024.
AANVAARDING
Aanvaarding is per direct.
Kenmerken
Overdracht
- Huurprijs
- € 625 per maand
- Servicekosten
- Geen servicekosten bekend
- Aangeboden sinds
-
- Status
- Beschikbaar
- Aanvaarding
- Per direct beschikbaar
Bouw
- Hoofdfunctie
- Kantoorruimte
- Soort bouw
- Bestaande bouw
- Bouwjaar
- 2024
Oppervlakten
- Oppervlakte
- 84 m²
Indeling
- Aantal bouwlagen
- 1 bouwlaag
- Voorzieningen
- Mechanische ventilatie, inbouwarmaturen, te openen ramen, toilet, pantry en verwarming
Energie
- Energielabel
- Niet verplicht
Omgeving
- Ligging
- Bedrijventerrein
- Bereikbaarheid
- Bushalte op 500 m tot 1000 m, busknooppunt op 500 m tot 1000 m en snelwegafrit op 500 m tot 1000 m
- Lokale voorzieningen
- Restaurant op 500 m tot 1000 m en winkel op 500 m tot 1000 m
Parkeergelegenheid
- Parkeerplaatsen
- 2 niet-overdekte parkeerplaatsen
Foto's
Plattegrond
Ingang
Kantoor