Middelweg 10-b 6584 AH Molenhoek

€ 890 /mnd

Omschrijving

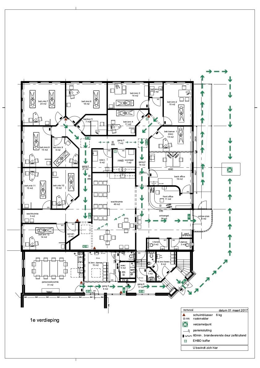
Te huur in totaal 3 praktijkruimten van respectievelijk 23 m2, 15 m2 en 9 m2 in het fraaie pand van Result care aan de Middelweg in Molenhoek.

Result Care is een fysiotherapie - en chiropractie praktijk met een eigen sportschool in het souterrain.

De voorkeur gaat dan ook uit naar een huurder welke ook een link/connectie heeft met een medisch vakgebied.

Het in 1992 nieuw gebouwde moderne pand is rustig gelegen in het hart van Molenhoek beschikt over een tweetal verdiepingen van respectievelijk plm. 407 m2 (begane grond) en 470 m2 (souterrain). Tevens is er op eigen terrein zeer ruime parkeergelegenheid beschikbaar.

Ligging:
Solitair gelegen in het hart van Molenhoek, direct nabij bus- en treinverbindingen. De aansluitingen naar de A 73-77 zijn op zeer korte afstand gelegen waardoor er een perfecte verbinding is met het landelijk snelwegennet.

Indeling
Bij binnenkomst treft u een receptie en centrale ontvangstruimte aan waarna u via de gang de beschikbare ruimten bereikt.

Deelverhuur is ook mogelijk voor respectievelijk € 435,- (ruimte van 23 m2) en € 455,- per maand (ruimten van 15 en 9 m2).

Parkeren:
Er bevinden zich ca. 20 algemene parkeerplaatsen op eigen terrein en er is voldoende ruimte voor fietsen stalling aanwezig.

Voorzieningen:
- Systeemplafonds met verlichtingsarmaturen;
- Hygiënische vloerbedekking
- Airco;
- Mechanische ventilatie;
- Toiletgroepen;

Kenmerken

Overdracht

Huurprijs
€ 890 per maand
Servicekosten
Geen servicekosten bekend
Aangeboden sinds
Status
Beschikbaar
Aanvaarding
In overleg

Bouw

Hoofdfunctie
Kantoor
Soort bouw
Bestaande bouw
Bouwjaar
1992

Oppervlakten

Oppervlakte
47 m² (in units vanaf 23 m²)
Perceel
1.990 m²

Indeling

Aantal bouwlagen
2 bouwlagen
Voorzieningen
Airconditioning, inbouwarmaturen, te openen ramen, systeemplafond, toilet, pantry, verwarming en kamerindeling

Energie

Energielabel
A

Omgeving

Ligging
In woonwijk
Bereikbaarheid
Bushalte op 1000 m tot 1500 m, NS Intercitystation op 500 m tot 1000 m en snelwegafrit op 2000 m tot 3000 m

Parkeergelegenheid

Parkeerplaatsen
20 niet-overdekte parkeerplaatsen

Kaart

Kaart laden...

Kadastrale grens Bebouwing

Reistijd

Krijg inzicht in de bereikbaarheid van dit object vanuit bijvoorbeeld een openbaar vervoer station of vanuit een adres.

Middelweg 10-b

€ 890 /mnd