Watergoorweg 104-a 3861 MA Nijkerk
€ 1.931 /mnd
Omschrijving
Instapklare kantoorruimte op prominente zichtlocatie – direct beschikbaar
Wilt u uw onderneming vestigen in een hoogwaardig kantoor met een professionele uitstraling? Dan is deze kantoorruimte op bedrijventerrein Watergoor ideaal. Gelegen op een zichtlocatie langs een drukke toegangsweg en omringd door bekende retailers zoals Boni, Karwei en Praxis, combineert deze ruimte zichtbaarheid, bereikbaarheid en comfort.
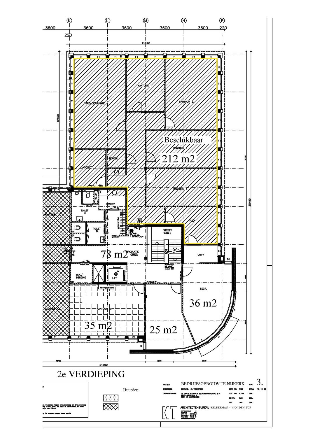
De kantoorruimte van circa 244 m² bevindt zich op de tweede verdieping en is instapklaar, afgewerkt met moderne voorzieningen. Huurders kunnen direct aan de slag, al dient inrichting en meubilair zelf te worden verzorgd. Daarnaast beschikt u over een aanmerkelijk aandeel van circa 50 m² in de gezamenlijke ruimtes, waardoor ontvangst en ontmoeting met klanten en medewerkers goed mogelijk is.
Dankzij de hoogwaardige afwerking en representatieve uitstraling is dit kantoor een professioneel visitekaartje voor uw onderneming.
Oppervlakte
- Circa 244 m² kantoorruimte (tweede verdieping)
- Circa 50 m² aandeel in de gezamenlijke ruimtes
Bereikbaarheid
De locatie is uitstekend bereikbaar. Binnen enkele minuten bent u op de A28, waardoor omliggende steden zoals Amersfoort snel bereikbaar zijn. Ook het openbaar vervoer is goed geregeld: een bushalte ligt op loopafstand van het pand, waardoor medewerkers en bezoekers eenvoudig kunnen komen en gaan. Deze combinatie van goede auto- en OV-verbindingen maakt het dagelijks reizen naar en van het kantoor zeer prettig en efficiënt.
Parkeren
Bij de huur zijn 5 parkeerplaatsen op eigen terrein inbegrepen, zodat medewerkers en gasten altijd een parkeerplek hebben. Daarnaast biedt de directe omgeving extra parkeermogelijkheden, waardoor er geen zorgen zijn over bezoekers of piekmomenten.
Waarom deze kantoorruimte?
Deze kantoorruimte is volledig instapklaar en direct te gebruiken, met een moderne afwerking en verzorgde gezamenlijke ruimtes. Dankzij de representatieve uitstraling vormt het kantoor een professioneel visitekaartje voor uw bedrijf. De combinatie van een prominente zichtlocatie, hoogwaardige afwerking en praktische voorzieningen zorgt ervoor dat u hier meteen comfortabel en efficiënt kunt werken.
Opleveringsniveau
De kantoorruimte (inclusief algemene ruimte) zal worden opgeleverd in de huidige staat, ondermeer voorzien van:
- vloerbedekking;
- scheidingswanden;
- systeemplafond met verlichtingsarmaturen;
- lamellen / luxaflex / gordijnen / vitrage;
- mechanisch ventilatiesysteem;
- topkoeling;
- rookmelders;
- databekabeling (systeem);
- plint -/ kabelgoten;
- brandmeldcentrale (BMC);
- brandmeldpaneel;
- noodverlichting;
- bewegwijzering bij nood;
- toiletruimte(n);
- wastafel(s) / fonteintje(s);
- handdoekmachine / handdroger;
- spiegel(s);
- stortbak;
- prullenbak(ken);
- pantry voorzien van een koelkast, vaatwasmachine en close-in boiler;
- Liftinstallatie;
- TL-verlichting;
- buitenlamp / lantaarnpalen;
- bestrating;
- beplanting / erfafscheidingen;
- bord(en) voor naamsaanduiding.
Tenzij huurder en verhuurder anders met elkaar overeenkomen, geschiedt verhuur van de bedrijfsruimte onder de hierna genoemde voorwaarden:
Huurprijs
€ 95,- per m² per jaar, te vermeerderen met de wettelijk verschuldigde omzetbelasting.
Servicekosten:
€ 31,- per m² per jaar voor de onderstaande door verhuurder te verzorgen leveringen en diensten:
- terreinonderhoud;
- tuinonderhoud;
- glasbewassing;
- liftonderhoud;
- onderhoud E en W installaties;
- levering van gas, water en elektra;
- onderhoud en keuringen van blusmiddelen;
- dakinspectie;
- schoonmaak trappenhuis.
Internet:
Het is mogelijk om aangesloten te worden op glasvezel voor €75,- ex BTW per maand. Dit staat dus los van de hierboven genoemde servicekosten.
Huurtermijn
In overleg.
Opzegtermijn
Beëindiging van deze overeenkomst vindt plaats door opzegging tegen het einde van een huurperiode en is afhankelijk van de huurtermijn. Opzegging van deze huurovereenkomst dient te geschieden bij deurwaardersexploot of per aangetekend schrijven.
Huurbetaling
De huur(penningen) inclusief eventuele servicekosten en BTW(-compensatie) dienen aan huurder per maand bij vooruitbetaling overgemaakt te worden.
BTW
Huurder verklaart dat hij voor tenminste 90% met omzetbelasting belaste prestaties verricht. Indien huurder op enig moment niet meer aan dit criterium voldoet, zal er van rechtswege sprake zijn van omzetbelasting vrijgestelde verhuur. Alsdan wordt de overeengekomen huurprijs, exclusief omzetbelasting, zodanig verhoogd dat het voor verhuurder ontstane financiële nadeel wordt gecompenseerd.
Aanvaarding
Per direct beschikbaar.
Overig / Disclaimer
Alle informatie is geheel vrijblijvend. Alle gegevens zijn met zorg samengesteld. Ten aanzien van de juistheid kunnen wij geen aansprakelijkheid aanvaarden.
Aanvullend verwijzen wij u naar de (algemene) verhuurvoorwaarden welke zijn opgenomen in deze brochure.
Interesse
Heeft u interesse? Neem dan contact op via (085) 06 700 70 of
Wilt u uw onderneming vestigen in een hoogwaardig kantoor met een professionele uitstraling? Dan is deze kantoorruimte op bedrijventerrein Watergoor ideaal. Gelegen op een zichtlocatie langs een drukke toegangsweg en omringd door bekende retailers zoals Boni, Karwei en Praxis, combineert deze ruimte zichtbaarheid, bereikbaarheid en comfort.
De kantoorruimte van circa 244 m² bevindt zich op de tweede verdieping en is instapklaar, afgewerkt met moderne voorzieningen. Huurders kunnen direct aan de slag, al dient inrichting en meubilair zelf te worden verzorgd. Daarnaast beschikt u over een aanmerkelijk aandeel van circa 50 m² in de gezamenlijke ruimtes, waardoor ontvangst en ontmoeting met klanten en medewerkers goed mogelijk is.
Dankzij de hoogwaardige afwerking en representatieve uitstraling is dit kantoor een professioneel visitekaartje voor uw onderneming.
Oppervlakte
- Circa 244 m² kantoorruimte (tweede verdieping)
- Circa 50 m² aandeel in de gezamenlijke ruimtes
Bereikbaarheid
De locatie is uitstekend bereikbaar. Binnen enkele minuten bent u op de A28, waardoor omliggende steden zoals Amersfoort snel bereikbaar zijn. Ook het openbaar vervoer is goed geregeld: een bushalte ligt op loopafstand van het pand, waardoor medewerkers en bezoekers eenvoudig kunnen komen en gaan. Deze combinatie van goede auto- en OV-verbindingen maakt het dagelijks reizen naar en van het kantoor zeer prettig en efficiënt.
Parkeren
Bij de huur zijn 5 parkeerplaatsen op eigen terrein inbegrepen, zodat medewerkers en gasten altijd een parkeerplek hebben. Daarnaast biedt de directe omgeving extra parkeermogelijkheden, waardoor er geen zorgen zijn over bezoekers of piekmomenten.
Waarom deze kantoorruimte?
Deze kantoorruimte is volledig instapklaar en direct te gebruiken, met een moderne afwerking en verzorgde gezamenlijke ruimtes. Dankzij de representatieve uitstraling vormt het kantoor een professioneel visitekaartje voor uw bedrijf. De combinatie van een prominente zichtlocatie, hoogwaardige afwerking en praktische voorzieningen zorgt ervoor dat u hier meteen comfortabel en efficiënt kunt werken.
Opleveringsniveau
De kantoorruimte (inclusief algemene ruimte) zal worden opgeleverd in de huidige staat, ondermeer voorzien van:
- vloerbedekking;
- scheidingswanden;
- systeemplafond met verlichtingsarmaturen;
- lamellen / luxaflex / gordijnen / vitrage;
- mechanisch ventilatiesysteem;
- topkoeling;
- rookmelders;
- databekabeling (systeem);
- plint -/ kabelgoten;
- brandmeldcentrale (BMC);
- brandmeldpaneel;
- noodverlichting;
- bewegwijzering bij nood;
- toiletruimte(n);
- wastafel(s) / fonteintje(s);
- handdoekmachine / handdroger;
- spiegel(s);
- stortbak;
- prullenbak(ken);
- pantry voorzien van een koelkast, vaatwasmachine en close-in boiler;
- Liftinstallatie;
- TL-verlichting;
- buitenlamp / lantaarnpalen;
- bestrating;
- beplanting / erfafscheidingen;
- bord(en) voor naamsaanduiding.
Tenzij huurder en verhuurder anders met elkaar overeenkomen, geschiedt verhuur van de bedrijfsruimte onder de hierna genoemde voorwaarden:
Huurprijs
€ 95,- per m² per jaar, te vermeerderen met de wettelijk verschuldigde omzetbelasting.
Servicekosten:
€ 31,- per m² per jaar voor de onderstaande door verhuurder te verzorgen leveringen en diensten:
- terreinonderhoud;
- tuinonderhoud;
- glasbewassing;
- liftonderhoud;
- onderhoud E en W installaties;
- levering van gas, water en elektra;
- onderhoud en keuringen van blusmiddelen;
- dakinspectie;
- schoonmaak trappenhuis.
Internet:
Het is mogelijk om aangesloten te worden op glasvezel voor €75,- ex BTW per maand. Dit staat dus los van de hierboven genoemde servicekosten.
Huurtermijn
In overleg.
Opzegtermijn
Beëindiging van deze overeenkomst vindt plaats door opzegging tegen het einde van een huurperiode en is afhankelijk van de huurtermijn. Opzegging van deze huurovereenkomst dient te geschieden bij deurwaardersexploot of per aangetekend schrijven.
Huurbetaling
De huur(penningen) inclusief eventuele servicekosten en BTW(-compensatie) dienen aan huurder per maand bij vooruitbetaling overgemaakt te worden.
BTW
Huurder verklaart dat hij voor tenminste 90% met omzetbelasting belaste prestaties verricht. Indien huurder op enig moment niet meer aan dit criterium voldoet, zal er van rechtswege sprake zijn van omzetbelasting vrijgestelde verhuur. Alsdan wordt de overeengekomen huurprijs, exclusief omzetbelasting, zodanig verhoogd dat het voor verhuurder ontstane financiële nadeel wordt gecompenseerd.
Aanvaarding
Per direct beschikbaar.
Overig / Disclaimer
Alle informatie is geheel vrijblijvend. Alle gegevens zijn met zorg samengesteld. Ten aanzien van de juistheid kunnen wij geen aansprakelijkheid aanvaarden.
Aanvullend verwijzen wij u naar de (algemene) verhuurvoorwaarden welke zijn opgenomen in deze brochure.
Interesse
Heeft u interesse? Neem dan contact op via (085) 06 700 70 of
Kenmerken
Overdracht
- Huurprijs
- € 1.931 per maand
- Servicekosten
- € 31 per vierkante meter per jaar (21% BTW van toepassing)
- Aangeboden sinds
-
- Status
- Beschikbaar
- Aanvaarding
- Per direct beschikbaar
Bouw
- Hoofdfunctie
- Kantoor
- Soort bouw
- Bestaande bouw
- Bouwjaar
- 2002
Oppervlakten
- Oppervlakte
- 244 m²
Indeling
- Aantal bouwlagen
- 1 bouwlaag
- Voorzieningen
- Mechanische ventilatie, topkoeling, inbouwarmaturen, te openen ramen, kabelgoten, systeemplafond, pantry, verwarming en kamerindeling
Energie
- Energielabel
- A
Omgeving
- Ligging
- Bedrijventerrein
- Bereikbaarheid
- Bushalte op minder dan 500 m, NS Intercitystation op 2000 m tot 3000 m en snelwegafrit op 1500 m tot 2000 m
Parkeergelegenheid
- Parkeerplaatsen
- 5 niet-overdekte parkeerplaatsen
Foto's