Omschrijving
Locatie:
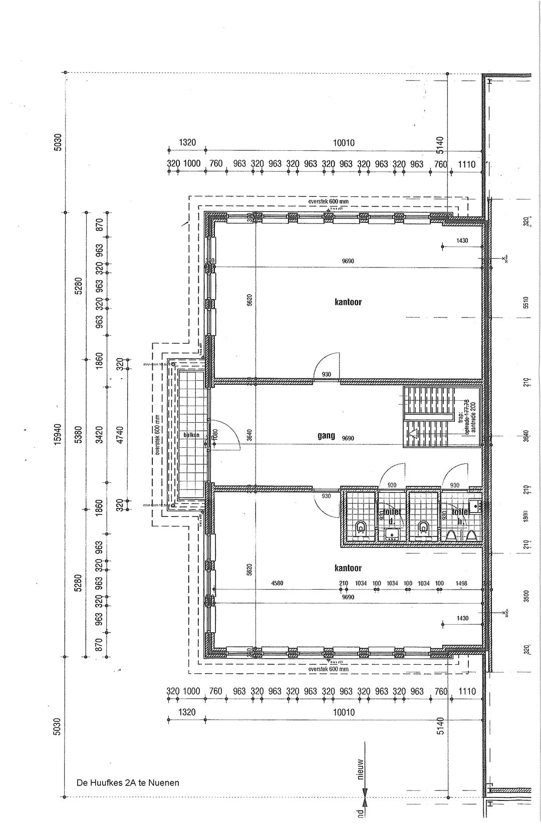
De te huur aangeboden kantoorruimte is gelegen op de 1e verdieping in die kantoorgebouw aan De Huufkes 2A te Nuenen op het Bedrijventerrein Eeneind II dichtbij de doorgaande weg Collse Hoefdijk. Het Bedrijventerrein Eeeneind II biedt ruimte aan met name regionaal en lokaal georiënteerde industriële en groothandelsbedrijven. In de directe omgeving zijn ondermeer gevestigd: Friesland Campina, Destil, BKL Engineering en BAN Bouw.
Bereikbaarheid:
Deze kantoorruimte aan De Huufkes 2A op Bedrijventerrein Eeneind II te Nuenen is gelegen ten zuiden van de bebouwde kom aan de weg naar Geldrop en nabij de snelweg A270 (Eindhoven-Helmond). Een bushalte is op circa 5 minuten loopafstand van het kantoorpand gelegen.
OBJECTGEGEVENS
Beschikbare oppervlakte voor de verhuur:
Circa 140 m² kantoor - 1e verdieping
Parkeergelegenheid:
4 parkeerplaatsen beschikbaar, gelegen op eigen parkeerterrein aan de voorzijde van het kantoorgebouw aan De Huufkes 2A te Nuenen.
Opleveringsniveau kantoorruimte:
• systeemplafonds
• verlichting middels TL-inbouwarmaturen
• te openen ramen middels draai- / kiep systeem
• aluminium raamkozijnen voorzien van dubbele beglazing
• deels vloerstoffering en tegelvloer
• alarminstallatie
• brandblusvoorzieningen
• gescheiden dames- en heren toiletgroep met voorportaal voorzien van fonteintje
• pantry
• verwarming middels CV-installatie met radiatoren
• glasvezel
• airconditioning
Gemeenschappelijk met andere huurders:
• entree
Aanvaarding:
In overleg
Energielabel:
Het kantoorgebouw beschikt over het zeer gunstige energielabel C. Welke geldig is tot 08-01-2030.
Hiermee voldoet het kantoorpand reeds ruimschoots aan de overheidsdoelstellingen waarbij vanaf 2023 alle utiliteitsgebouwen minimaal een energielabel C dienen te hebben.
Kadastrale gegevens De Huufkes 2A te Nuenen:
Gemeente: Nuenen
Sectie: C
Perceelnummer: 4093
Oppervlakte: 1.822 m² (gedeeltelijk perceel)
Bestemmingsplan:
Het bestemmingsplan van dit kantoorgebouw aan De Huufkes 2A te Nuenen op Bedrijventerrein Eeneind II is op te vragen via één van onze bedrijfsmakelaars bij Bossers & Fitters Bedrijfshuisvesting B.V. en/of via de website van het omgevingsloket.
Bouwjaar:
2009
HUURGEGEVENS
Aanvangshuurprijs:
€ 18.000 per jaar te vermeerderen met de geldende B.T.W.
Voorschot servicekosten:
€ 500,00 per maand te vermeerderen met de geldende B.T.W.
Servicekosten hebben betrekking op (onder meer) onderstaande levering en diensten:
• voorschot verbruik gas, water en elektra
• jaarlijks onderhoud op de CV-installatie
• jaarlijks onderhoud op de airconditioning
• jaarlijks onderhoud alarminstallatie
• jaarlijkse keuring brandblussers
• groenonderhoud
Huurtermijn:
Minimaal vijf (5) jaar.
Verlengingstermijn:
Minimaal vijf (5) jaar.
Opzegtermijn:
Twaalf (12) maanden voorafgaand aan de expiratiedatum.
Huurindexering:
De huurprijs van dit kantoorpand aan De Huufkes 2A te Nuenen op Bedrijventerrein Eeneind ll zal jaarlijks worden geïndexeerd, voor het eerst één jaar na huuringangsdatum, op basis van het maandprijsindexcijfer volgens de consumentenprijsindex CPI-alle huishoudens (2015=100), dan wel meest recente tijdsbasis, gepubliceerd door het Centraal Bureau voor de statistiek (CBS).
Zekerheidsstelling:
Bankgarantie of waarborgsom ter grootte van drie (3) maanden huur inclusief eventuele servicekosten en B.T.W.
Huurbetaling:
Per maand vooruit te voldoen middels automatische incasso.
B.T.W.:
Indien huurder niet aan het “90% criterium” (aandeel belaste prestaties) voldoet, zal er van rechtswege sprake zijn van omzetbelasting vrijgestelde verhuur. Als dan wordt de overeengekomen kale huurprijs, exclusief omzetbelasting, zodanig verhoogd, dat het voor verhuurder ontstane financiële nadeel wordt gecompenseerd.
Huurcontract:
R.O.Z.-model, huurovereenkomst kantoorruimte en andere bedrijfsruimte in de zin van artikel 7:230a BW met de benodigde aanvullingen.
Meer informatie De Huufkes 2A te Nuenen:
Wenst u meer informatie over de beschikbare kantoorruimte in het kantoorgebouw welke te huur is aan De Huufkes 2A te Nuenen, neem dan vrijblijvend contact op met één van de bedrijfsmakelaars bij Bossers & Fitters Bedrijfshuisvesting B.V.
Onze bedrijfsmakelaar de heer Gijs van Lotringen is van alle beschikbare informatie op de hoogte betreffende de verhuur van de kantoorruimte in het kantoorpand aan De Huufkes 2A te Nuenen.
De te huur aangeboden kantoorruimte is gelegen op de 1e verdieping in die kantoorgebouw aan De Huufkes 2A te Nuenen op het Bedrijventerrein Eeneind II dichtbij de doorgaande weg Collse Hoefdijk. Het Bedrijventerrein Eeeneind II biedt ruimte aan met name regionaal en lokaal georiënteerde industriële en groothandelsbedrijven. In de directe omgeving zijn ondermeer gevestigd: Friesland Campina, Destil, BKL Engineering en BAN Bouw.
Bereikbaarheid:
Deze kantoorruimte aan De Huufkes 2A op Bedrijventerrein Eeneind II te Nuenen is gelegen ten zuiden van de bebouwde kom aan de weg naar Geldrop en nabij de snelweg A270 (Eindhoven-Helmond). Een bushalte is op circa 5 minuten loopafstand van het kantoorpand gelegen.
OBJECTGEGEVENS
Beschikbare oppervlakte voor de verhuur:
Circa 140 m² kantoor - 1e verdieping
Parkeergelegenheid:
4 parkeerplaatsen beschikbaar, gelegen op eigen parkeerterrein aan de voorzijde van het kantoorgebouw aan De Huufkes 2A te Nuenen.
Opleveringsniveau kantoorruimte:
• systeemplafonds
• verlichting middels TL-inbouwarmaturen
• te openen ramen middels draai- / kiep systeem
• aluminium raamkozijnen voorzien van dubbele beglazing
• deels vloerstoffering en tegelvloer
• alarminstallatie
• brandblusvoorzieningen
• gescheiden dames- en heren toiletgroep met voorportaal voorzien van fonteintje
• pantry
• verwarming middels CV-installatie met radiatoren
• glasvezel
• airconditioning
Gemeenschappelijk met andere huurders:
• entree
Aanvaarding:
In overleg
Energielabel:
Het kantoorgebouw beschikt over het zeer gunstige energielabel C. Welke geldig is tot 08-01-2030.
Hiermee voldoet het kantoorpand reeds ruimschoots aan de overheidsdoelstellingen waarbij vanaf 2023 alle utiliteitsgebouwen minimaal een energielabel C dienen te hebben.
Kadastrale gegevens De Huufkes 2A te Nuenen:
Gemeente: Nuenen
Sectie: C
Perceelnummer: 4093
Oppervlakte: 1.822 m² (gedeeltelijk perceel)
Bestemmingsplan:
Het bestemmingsplan van dit kantoorgebouw aan De Huufkes 2A te Nuenen op Bedrijventerrein Eeneind II is op te vragen via één van onze bedrijfsmakelaars bij Bossers & Fitters Bedrijfshuisvesting B.V. en/of via de website van het omgevingsloket.
Bouwjaar:
2009
HUURGEGEVENS
Aanvangshuurprijs:
€ 18.000 per jaar te vermeerderen met de geldende B.T.W.
Voorschot servicekosten:
€ 500,00 per maand te vermeerderen met de geldende B.T.W.
Servicekosten hebben betrekking op (onder meer) onderstaande levering en diensten:
• voorschot verbruik gas, water en elektra
• jaarlijks onderhoud op de CV-installatie
• jaarlijks onderhoud op de airconditioning
• jaarlijks onderhoud alarminstallatie
• jaarlijkse keuring brandblussers
• groenonderhoud
Huurtermijn:
Minimaal vijf (5) jaar.
Verlengingstermijn:
Minimaal vijf (5) jaar.
Opzegtermijn:
Twaalf (12) maanden voorafgaand aan de expiratiedatum.
Huurindexering:
De huurprijs van dit kantoorpand aan De Huufkes 2A te Nuenen op Bedrijventerrein Eeneind ll zal jaarlijks worden geïndexeerd, voor het eerst één jaar na huuringangsdatum, op basis van het maandprijsindexcijfer volgens de consumentenprijsindex CPI-alle huishoudens (2015=100), dan wel meest recente tijdsbasis, gepubliceerd door het Centraal Bureau voor de statistiek (CBS).
Zekerheidsstelling:
Bankgarantie of waarborgsom ter grootte van drie (3) maanden huur inclusief eventuele servicekosten en B.T.W.
Huurbetaling:
Per maand vooruit te voldoen middels automatische incasso.
B.T.W.:
Indien huurder niet aan het “90% criterium” (aandeel belaste prestaties) voldoet, zal er van rechtswege sprake zijn van omzetbelasting vrijgestelde verhuur. Als dan wordt de overeengekomen kale huurprijs, exclusief omzetbelasting, zodanig verhoogd, dat het voor verhuurder ontstane financiële nadeel wordt gecompenseerd.
Huurcontract:
R.O.Z.-model, huurovereenkomst kantoorruimte en andere bedrijfsruimte in de zin van artikel 7:230a BW met de benodigde aanvullingen.
Meer informatie De Huufkes 2A te Nuenen:
Wenst u meer informatie over de beschikbare kantoorruimte in het kantoorgebouw welke te huur is aan De Huufkes 2A te Nuenen, neem dan vrijblijvend contact op met één van de bedrijfsmakelaars bij Bossers & Fitters Bedrijfshuisvesting B.V.
Onze bedrijfsmakelaar de heer Gijs van Lotringen is van alle beschikbare informatie op de hoogte betreffende de verhuur van de kantoorruimte in het kantoorpand aan De Huufkes 2A te Nuenen.
Kaart
Kaart laden...
Kadastrale grens
Bebouwing
Reistijd
Krijg inzicht in de bereikbaarheid van dit object vanuit bijvoorbeeld een openbaar vervoer station of vanuit een adres.