Kattestaart 15 3355 PP Papendrecht
€ 1.450 /mnd
Omschrijving
Algemeen
Beschikbaar voor verhuur is een mooie unit, gelegen in een functioneel en verzorgd kantoorgebouw. De beschikbare kantoorruimte biedt een efficiënte indeling en is geschikt voor uiteenlopende kantooractiviteiten, waardoor het een uitstekende keuze vormt voor zowel groeiende als gevestigde organisaties die op zoek zijn naar een representatieve en praktische kantoorruimte.
Bereikbaarheid
Het object is gesitueerd op een zichtlocatie nabij de hoofdontsluiting van Papendrecht, direct bij de open afritten van de Randweg N3. Daarnaast is het complex is zéér goed bereikbaar vanaf de Rijksweg A15 (Rotterdam/ Nijmegen) en de Randweg N3, die de A15 verbindt met de A16 (Rotterdam/ Antwerpen).
Kadastrale aanduiding
Gemeente Papendrecht, sectie E, nummer 3543
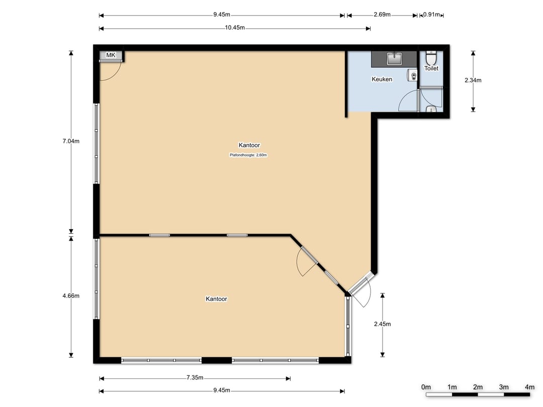
Indeling
Ca. 127,20 m² kantoorruimte gelegen op de eerste verdieping.
Voormelde oppervlakten zijn zo zorgvuldig mogelijk vastgesteld aan de hand van opname ter plaatse en aan de hand van informatie verkregen via Kadaster en Basisadministratie Adressen en Gebouwen (BAG-Viewer), doch mogen niet worden aangemerkt als verhuurbare oppervlakte volgens de NEN 2580 normering.
Parkeerplaatsen
2 gemarkeerde parkeerplaatsen.
Voorzieningen
Het object zal vrij van huur en gebruik (schoon en ontruimd) worden opgeleverd in de huidige staat met onder andere de navolgende voorzieningen:
- Verwarming via gasgestookte cv-installatie met radiatoren (individuele ketel Nefit Ecomline HR, geplaatst in de unit);
- Mechanische ventilatie in het plafond van het directiekantoor (panasonic);
- Een tweede koelunit met meerdere uitblaasopeningen in de kantoortuin (Mitsubish Electric);
- Verlaagde systeemplafonds met ingebouwde armaturen;
- Verticale binnen zonwering (lamellen);
- Plintgoten met databekabeling;
- Houten kozijnen met isolerende beglazing;
- Warm watervoorziening via close-in boiler (daalderdop 10 liter);
- Toiletruimte met voorportaal, betegeld tot het plafond;
- Pantry voorzien van drie onderkastjes;
- Brandslanghaspel;
- Noodverlichting (alleen in gemeenschappelijke delen);
- Mogelijkheid tot reclamevoering op de voorgevel in een lichtbak.
Huurprijs
Kantoorruimte:
€ 1.450,00 per maand exclusief BTW en servicekosten.
Parkeerplaatsen:
€ 350,00 per parkeerplaats per jaar, exclusief BTW.
Huurtermijn
Vijf jaar met een verleningsperiode van vijf jaar.
Opleveringsniveau
In de huidige staat.
Zekerheidsinstelling
Een waarborgsom of bankgarantie ter grootte van een betalingsverplichting van drie maanden, inclusief BTW en servicekosten.
Indexering
Jaarlijks, voor het eerst één jaar na datum huuringang.
Servicekosten
Bovenop en gelijktijdig met de periodiek verschuldigde huurprijs zal door verhuurder een verekenbaar voorschot in rekening worden gebracht van € 40,00 per maand, excl. BTW voor de navolgende leveringen en diensten:
- Glasbewassing buitenzijde;
- Glasverzekering;
- Onderhoud groenvoorziening;
- Onderhoud parkeervoorziening;
- Energiekosten gemeenschappelijke ruimte (centrale entree);
- Schoonmaak gemeenschappelijke ruimte (centrale entree).
Betalingen
Per maand of per kwartaal vooruit.
Datum oplevering
In overleg.
Energielabel
De kantoorruimte beschikt over een energielabel B.
Omzetbelasting
Ingevolge artikel 11, lid 1, sub B van de Wet Nadrukkelijk is vermeld dat deze Omzetbelasting zullen verhuurder en huurder in de huurovereenkomst een verklaring ondertekenen op grond waarvan zij opteren voor belaste verhuur.
Uitgangspunt is dat huurder het gehuurde voor tenminste het bij Wet vastgestelde of nader vast te stellen minimumpercentage zal of blijvend zal gebruiken voor prestaties die recht geven op aftrek van omzetbelasting, zodanig dat kan worden geopteerd voor belaste (ver-)huur. Huurder zal zich zoveel als in zijn vermogen ligt inspannen om ervoor te zorgen dat niet van dit uitgangspunt wordt afgeweken.
Indien huurder niet of niet meer aan dit uitgangspunt kan voldoen, zal de huurprijs worden verhoogd, zodanig dat verhuurder wordt gecompenseerd voor de gevolgen van het vervallen van de mogelijkheid om te opteren voor met omzetbelasting belaste huur.
Bijkomende kosten
Bovenop en gelijktijdig met de periodiek verschuldigde huurprijs zal door verhuurder een verekenbaar voorschot in rekening worden gebracht van € 30,00 per m² per jaar, excl. BTW voor de nader te bepalen leveringen en diensten.
Huurovereenkomst
Standaard huurovereenkomst kantoorruimte en andere bedrijfsruimte in de zin van artikel 7:230a BW, vastgesteld door de Raad voor Onroerende zaken ROZ in februari 2015.
Bestemmingsplan
Bij de gemeente Papendrecht valt de onderhavige onroerende zaak in het vigerende bestemmingsplan: “Beheersverordening Woongebied" dat werd vastgesteld bij Raadsbesluit van 21 maart 2013. Op grond van artikel 4 van de bestemmingsplanvoorschriften is de bestemming van het object: “Bedrijf (B)” met nadere aanduiding (o.a. kantoorfunctie mogelijk)
De voor 'Bedrijf' aangewezen gronden zijn bestemd:
a. bedrijven van categorie 1 en 2, die zijn opgenomen in de Staat van bedrijfsactiviteiten die als bijlage 1 bij de bestemmingsregels is gevoegd, met inbegrip van bedrijfsgebonden kantoren en met uitzondering van:
1. geluidzoneringplichtige inrichtingen en
2. risicovolle inrichtingen;
b. zelfstandige kantoren en / of dienstverlening uitsluitend ter plaatse van de aanduiding “kantoor” met inachtneming van het bepaalde in artikel 4.3.2.
Ter plaatse van de aanduiding “kantoor” zijn zelfstandige kantoren toegestaan tot een maximum van 500 m² bedrijfsvloeroppervlakte per vestiging en mits een openbaarvervoerontsluiting (opstapplaats bus) aanwezig is binnen een afstand van maximaal 800 meter, gemeten over het openbaar toegankelijke gebied.
Gebruik
Huurder is te allen tijde zelf volledig verantwoordelijk voor het aanvragen van de eventueel benodigde goedkeuringen en/of vergunningen van het bevoegd gezag om zich op locatie te mogen vestigen. Indien na ondertekening van de huurovereenkomst blijkt dat het gebruik van Huurder strijdig is met de ter plaatse geldende publiekrechtelijke of privaatrechtelijke bestemming, kan Huurder de Verhuurder daar nimmer voor aansprakelijk stellen. Het toetsen of het beoogde gebruik publiek- of privaatrechtelijk is toegestaan, betreft volledig de verantwoordelijkheid van Huurder.
Disclaimer
Nadrukkelijk is vermeld dat deze informatieverstrekking niet als een aanbieding of offerte mag worden beschouwd. Aan deze gegevens kunne geen rechten worden ontleend.
Beschikbaar voor verhuur is een mooie unit, gelegen in een functioneel en verzorgd kantoorgebouw. De beschikbare kantoorruimte biedt een efficiënte indeling en is geschikt voor uiteenlopende kantooractiviteiten, waardoor het een uitstekende keuze vormt voor zowel groeiende als gevestigde organisaties die op zoek zijn naar een representatieve en praktische kantoorruimte.
Bereikbaarheid
Het object is gesitueerd op een zichtlocatie nabij de hoofdontsluiting van Papendrecht, direct bij de open afritten van de Randweg N3. Daarnaast is het complex is zéér goed bereikbaar vanaf de Rijksweg A15 (Rotterdam/ Nijmegen) en de Randweg N3, die de A15 verbindt met de A16 (Rotterdam/ Antwerpen).
Kadastrale aanduiding
Gemeente Papendrecht, sectie E, nummer 3543
Indeling
Ca. 127,20 m² kantoorruimte gelegen op de eerste verdieping.
Voormelde oppervlakten zijn zo zorgvuldig mogelijk vastgesteld aan de hand van opname ter plaatse en aan de hand van informatie verkregen via Kadaster en Basisadministratie Adressen en Gebouwen (BAG-Viewer), doch mogen niet worden aangemerkt als verhuurbare oppervlakte volgens de NEN 2580 normering.
Parkeerplaatsen
2 gemarkeerde parkeerplaatsen.
Voorzieningen
Het object zal vrij van huur en gebruik (schoon en ontruimd) worden opgeleverd in de huidige staat met onder andere de navolgende voorzieningen:
- Verwarming via gasgestookte cv-installatie met radiatoren (individuele ketel Nefit Ecomline HR, geplaatst in de unit);
- Mechanische ventilatie in het plafond van het directiekantoor (panasonic);
- Een tweede koelunit met meerdere uitblaasopeningen in de kantoortuin (Mitsubish Electric);
- Verlaagde systeemplafonds met ingebouwde armaturen;
- Verticale binnen zonwering (lamellen);
- Plintgoten met databekabeling;
- Houten kozijnen met isolerende beglazing;
- Warm watervoorziening via close-in boiler (daalderdop 10 liter);
- Toiletruimte met voorportaal, betegeld tot het plafond;
- Pantry voorzien van drie onderkastjes;
- Brandslanghaspel;
- Noodverlichting (alleen in gemeenschappelijke delen);
- Mogelijkheid tot reclamevoering op de voorgevel in een lichtbak.
Huurprijs
Kantoorruimte:
€ 1.450,00 per maand exclusief BTW en servicekosten.
Parkeerplaatsen:
€ 350,00 per parkeerplaats per jaar, exclusief BTW.
Huurtermijn
Vijf jaar met een verleningsperiode van vijf jaar.
Opleveringsniveau
In de huidige staat.
Zekerheidsinstelling
Een waarborgsom of bankgarantie ter grootte van een betalingsverplichting van drie maanden, inclusief BTW en servicekosten.
Indexering
Jaarlijks, voor het eerst één jaar na datum huuringang.
Servicekosten
Bovenop en gelijktijdig met de periodiek verschuldigde huurprijs zal door verhuurder een verekenbaar voorschot in rekening worden gebracht van € 40,00 per maand, excl. BTW voor de navolgende leveringen en diensten:
- Glasbewassing buitenzijde;
- Glasverzekering;
- Onderhoud groenvoorziening;
- Onderhoud parkeervoorziening;
- Energiekosten gemeenschappelijke ruimte (centrale entree);
- Schoonmaak gemeenschappelijke ruimte (centrale entree).
Betalingen
Per maand of per kwartaal vooruit.
Datum oplevering
In overleg.
Energielabel
De kantoorruimte beschikt over een energielabel B.
Omzetbelasting
Ingevolge artikel 11, lid 1, sub B van de Wet Nadrukkelijk is vermeld dat deze Omzetbelasting zullen verhuurder en huurder in de huurovereenkomst een verklaring ondertekenen op grond waarvan zij opteren voor belaste verhuur.
Uitgangspunt is dat huurder het gehuurde voor tenminste het bij Wet vastgestelde of nader vast te stellen minimumpercentage zal of blijvend zal gebruiken voor prestaties die recht geven op aftrek van omzetbelasting, zodanig dat kan worden geopteerd voor belaste (ver-)huur. Huurder zal zich zoveel als in zijn vermogen ligt inspannen om ervoor te zorgen dat niet van dit uitgangspunt wordt afgeweken.
Indien huurder niet of niet meer aan dit uitgangspunt kan voldoen, zal de huurprijs worden verhoogd, zodanig dat verhuurder wordt gecompenseerd voor de gevolgen van het vervallen van de mogelijkheid om te opteren voor met omzetbelasting belaste huur.
Bijkomende kosten
Bovenop en gelijktijdig met de periodiek verschuldigde huurprijs zal door verhuurder een verekenbaar voorschot in rekening worden gebracht van € 30,00 per m² per jaar, excl. BTW voor de nader te bepalen leveringen en diensten.
Huurovereenkomst
Standaard huurovereenkomst kantoorruimte en andere bedrijfsruimte in de zin van artikel 7:230a BW, vastgesteld door de Raad voor Onroerende zaken ROZ in februari 2015.
Bestemmingsplan
Bij de gemeente Papendrecht valt de onderhavige onroerende zaak in het vigerende bestemmingsplan: “Beheersverordening Woongebied" dat werd vastgesteld bij Raadsbesluit van 21 maart 2013. Op grond van artikel 4 van de bestemmingsplanvoorschriften is de bestemming van het object: “Bedrijf (B)” met nadere aanduiding (o.a. kantoorfunctie mogelijk)
De voor 'Bedrijf' aangewezen gronden zijn bestemd:
a. bedrijven van categorie 1 en 2, die zijn opgenomen in de Staat van bedrijfsactiviteiten die als bijlage 1 bij de bestemmingsregels is gevoegd, met inbegrip van bedrijfsgebonden kantoren en met uitzondering van:
1. geluidzoneringplichtige inrichtingen en
2. risicovolle inrichtingen;
b. zelfstandige kantoren en / of dienstverlening uitsluitend ter plaatse van de aanduiding “kantoor” met inachtneming van het bepaalde in artikel 4.3.2.
Ter plaatse van de aanduiding “kantoor” zijn zelfstandige kantoren toegestaan tot een maximum van 500 m² bedrijfsvloeroppervlakte per vestiging en mits een openbaarvervoerontsluiting (opstapplaats bus) aanwezig is binnen een afstand van maximaal 800 meter, gemeten over het openbaar toegankelijke gebied.
Gebruik
Huurder is te allen tijde zelf volledig verantwoordelijk voor het aanvragen van de eventueel benodigde goedkeuringen en/of vergunningen van het bevoegd gezag om zich op locatie te mogen vestigen. Indien na ondertekening van de huurovereenkomst blijkt dat het gebruik van Huurder strijdig is met de ter plaatse geldende publiekrechtelijke of privaatrechtelijke bestemming, kan Huurder de Verhuurder daar nimmer voor aansprakelijk stellen. Het toetsen of het beoogde gebruik publiek- of privaatrechtelijk is toegestaan, betreft volledig de verantwoordelijkheid van Huurder.
Disclaimer
Nadrukkelijk is vermeld dat deze informatieverstrekking niet als een aanbieding of offerte mag worden beschouwd. Aan deze gegevens kunne geen rechten worden ontleend.
Kenmerken
Overdracht
- Huurprijs
- € 1.450 per maand
- Servicekosten
- € 40 per maand (21% BTW van toepassing)
- Aangeboden sinds
-
- Status
- Beschikbaar
- Aanvaarding
- Per direct beschikbaar
Bouw
- Hoofdfunctie
- Kantoor
- Soort bouw
- Bestaande bouw
- Bouwjaar
- 1998
Oppervlakten
- Oppervlakte
- 127 m²
Indeling
- Aantal bouwlagen
- 1 bouwlaag
- Voorzieningen
- Mechanische ventilatie, te openen ramen, systeemplafond, toilet, pantry en verwarming
Energie
- Energielabel
- B
Foto's