Omschrijving
Keurige kantoorruimte van ca. 188 m² gelegen op de verdieping van een vrijstaand kantoorgebouw in twee bouwlagen welke herkenbaar gelegen is op de hoek van de Keurmeesterstraat / Dokwerkerstraat op bedrijventerrein Donkersloot-Noord in Ridderkerk.
De kantoorruimte op de verdieping heeft energielabel A, is ingedeeld in enkele compartimenten en is o.a. voorzien van airco, tapijt, alsmede een eigen pantry en toiletgroep.
Locatie:
Bedrijventerrein Donkersloot-Noord biedt via de Rotterdamseweg uitstekende verbindingen van en naar de rijkswegen A15 (Europoort-Rotterdam-Gorinchem) en A16 (Rotterdam-Dordrecht-Breda).
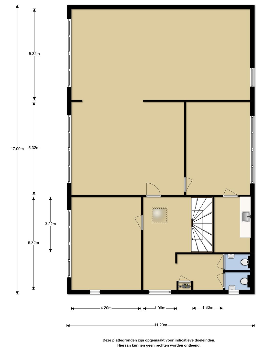
Afmeting:
Ca. 188 m² kantoorruimte (verdieping).
Parkeren:
Voldoende openbare parkeergelegenheid in de directe omgeving.
De parkeerplaatsen voor en naast het kantoor worden op basis 50/50 gebruikt door de huurder van de begane grond en de huurder op de verdieping.
Bestemming:
Bedrijfsdoeleinden.
Energielabel:
A, geldig tot en met 28 augustus 2028.
Bouwaard/algemeen:
- onderheide betonfundering;
- betonvloer;
- metselwerk gevels;
- hardhouten kozijnen met isolerende beglazing;
- binnenwanden metselwerk;
- geïsoleerd betondak voorzien van bitumineuze dakbedekking;
- meterkast met aansluitingen voor elektra, gas, water en telefoon;
- brandblusmiddelen.
Voorzieningen/specificaties:
- indeling: gezamenlijk entree begane grond, trapopgang, overloop, toiletgroep, 3 kantoorcompartimenten en een pantry;
- gespoten plafond met opbouwverlichting;
- tapijt;
- verwarming door middel van c.v.-installatie en radiatoren;
- koeling door middel van airco-units;
- lamellen;
- eigen toiletgroep;
- eigen pantry.
Reclamevoering:
Uitsluitend in overleg met en na goedkeuring van eigenaar/verhuurder.
Huurprijs:
€ 1.550,- per maand exclusief servicekosten exclusief BTW.
Servicekosten:
Er wordt een voorschot van € 30,- per m² per jaar exclusief BTW in rekening gebracht voor onderstaande leveringen en diensten:
- levering elektra, gas en water;
- periodiek onderhoud verwarmingsinstallatie;
- periodieke dakinspectie;
- periodiek onderhoud airco-units;
- periodiek onderhoud groenvoorziening;
- periodiek onderhoud brandblusmiddelen;
- periodieke glasbewassing (4x per jaar).
Ondernemersfonds:
De gemeente Ridderkerk heeft per 1 januari 2026 een ondernemersfonds opgericht. De ondernemers die in het gebied gevestigd zijn bepalen gezamenlijk op welke manieren het fonds zal worden ingezet. Het fonds kan onder andere worden gebruikt om de leefbaarheid, veiligheid en/of uitstraling van het bedrijventerrein te verbeteren.
De kosten van dit ondernemersfonds bedragen per 1 januari 2026 € 35,- per € 100.000,- WOZ-waarde per jaar. Vanuit de Gemeente worden deze kosten bij de verhuurder in rekening gebracht. De kosten worden door verhuurder doorbelast aan huurder.
Huurperiode:
In nader overleg.
Huurbetaling:
Per maand vooruit door middel van automatische overboeking of automatische incasso.
Huurverhoging:
Jaarlijks, voor het eerst 1 jaar na huuringangsdatum, conform de wijziging van het maandprijsindexcijfer volgens de Consumentenprijsindex (CPI), reeks CPI-alle huishoudens (2015 = 100), gepubliceerd door het Centraal Bureau voor de Statistiek (CBS).
Huurovereenkomst:
De te sluiten huurovereenkomst zal worden opgemaakt op basis van het ROZ-model (Raad van Onroerende Zaken) kantoorruimte en andere bedrijfsruimte in de zin van artikel 7:230a BW, vastgesteld 30-01-2015 met bijbehorende Algemene Bepalingen gedeponeerd bij de griffie van de Rechtbank te Den Haag en op 17-02-2015 aldaar ingeschreven onder nummer 15/21.
Zekerheidstelling:
Bankgarantie of waarborgsom ter grootte van een kwartaalverplichting huur inclusief servicekosten inclusief BTW.
Omzetbelasting:
De huurprijs wordt belast met de geldende omzetbelasting. Huurder en verhuurder opteren voor een BTW-belaste verhuur. Indien op basis van de nieuwe BTW-wetgevingsvoorstelling huurder niet meer aan het criterium meer dan 90% BTW-belaste prestaties verricht voldoet, en zodoende het verzoek om BTW-belaste verhuur niet geaccepteerd wordt, dan zal de huurprijs worden verhoogd met een nader door verhuurder vast te stellen percentage.
Oplevering:
Naar verwachting omstreeks september 2026.
Deze informatie is door ons met de nodige zorgvuldigheid samengesteld. Onzerzijds wordt echter geen enkele aansprakelijkheid aanvaard voor enige onvolledigheid, onjuistheid of anderszins, dan wel de gevolgen daarvan. Alle opgegeven maten en oppervlakten zijn indicatief.
De kantoorruimte op de verdieping heeft energielabel A, is ingedeeld in enkele compartimenten en is o.a. voorzien van airco, tapijt, alsmede een eigen pantry en toiletgroep.
Locatie:
Bedrijventerrein Donkersloot-Noord biedt via de Rotterdamseweg uitstekende verbindingen van en naar de rijkswegen A15 (Europoort-Rotterdam-Gorinchem) en A16 (Rotterdam-Dordrecht-Breda).
Afmeting:
Ca. 188 m² kantoorruimte (verdieping).
Parkeren:
Voldoende openbare parkeergelegenheid in de directe omgeving.
De parkeerplaatsen voor en naast het kantoor worden op basis 50/50 gebruikt door de huurder van de begane grond en de huurder op de verdieping.
Bestemming:
Bedrijfsdoeleinden.
Energielabel:
A, geldig tot en met 28 augustus 2028.
Bouwaard/algemeen:
- onderheide betonfundering;
- betonvloer;
- metselwerk gevels;
- hardhouten kozijnen met isolerende beglazing;
- binnenwanden metselwerk;
- geïsoleerd betondak voorzien van bitumineuze dakbedekking;
- meterkast met aansluitingen voor elektra, gas, water en telefoon;
- brandblusmiddelen.
Voorzieningen/specificaties:
- indeling: gezamenlijk entree begane grond, trapopgang, overloop, toiletgroep, 3 kantoorcompartimenten en een pantry;
- gespoten plafond met opbouwverlichting;
- tapijt;
- verwarming door middel van c.v.-installatie en radiatoren;
- koeling door middel van airco-units;
- lamellen;
- eigen toiletgroep;
- eigen pantry.
Reclamevoering:
Uitsluitend in overleg met en na goedkeuring van eigenaar/verhuurder.
Huurprijs:
€ 1.550,- per maand exclusief servicekosten exclusief BTW.
Servicekosten:
Er wordt een voorschot van € 30,- per m² per jaar exclusief BTW in rekening gebracht voor onderstaande leveringen en diensten:
- levering elektra, gas en water;
- periodiek onderhoud verwarmingsinstallatie;
- periodieke dakinspectie;
- periodiek onderhoud airco-units;
- periodiek onderhoud groenvoorziening;
- periodiek onderhoud brandblusmiddelen;
- periodieke glasbewassing (4x per jaar).
Ondernemersfonds:
De gemeente Ridderkerk heeft per 1 januari 2026 een ondernemersfonds opgericht. De ondernemers die in het gebied gevestigd zijn bepalen gezamenlijk op welke manieren het fonds zal worden ingezet. Het fonds kan onder andere worden gebruikt om de leefbaarheid, veiligheid en/of uitstraling van het bedrijventerrein te verbeteren.
De kosten van dit ondernemersfonds bedragen per 1 januari 2026 € 35,- per € 100.000,- WOZ-waarde per jaar. Vanuit de Gemeente worden deze kosten bij de verhuurder in rekening gebracht. De kosten worden door verhuurder doorbelast aan huurder.
Huurperiode:
In nader overleg.
Huurbetaling:
Per maand vooruit door middel van automatische overboeking of automatische incasso.
Huurverhoging:
Jaarlijks, voor het eerst 1 jaar na huuringangsdatum, conform de wijziging van het maandprijsindexcijfer volgens de Consumentenprijsindex (CPI), reeks CPI-alle huishoudens (2015 = 100), gepubliceerd door het Centraal Bureau voor de Statistiek (CBS).
Huurovereenkomst:
De te sluiten huurovereenkomst zal worden opgemaakt op basis van het ROZ-model (Raad van Onroerende Zaken) kantoorruimte en andere bedrijfsruimte in de zin van artikel 7:230a BW, vastgesteld 30-01-2015 met bijbehorende Algemene Bepalingen gedeponeerd bij de griffie van de Rechtbank te Den Haag en op 17-02-2015 aldaar ingeschreven onder nummer 15/21.
Zekerheidstelling:
Bankgarantie of waarborgsom ter grootte van een kwartaalverplichting huur inclusief servicekosten inclusief BTW.
Omzetbelasting:
De huurprijs wordt belast met de geldende omzetbelasting. Huurder en verhuurder opteren voor een BTW-belaste verhuur. Indien op basis van de nieuwe BTW-wetgevingsvoorstelling huurder niet meer aan het criterium meer dan 90% BTW-belaste prestaties verricht voldoet, en zodoende het verzoek om BTW-belaste verhuur niet geaccepteerd wordt, dan zal de huurprijs worden verhoogd met een nader door verhuurder vast te stellen percentage.
Oplevering:
Naar verwachting omstreeks september 2026.
Deze informatie is door ons met de nodige zorgvuldigheid samengesteld. Onzerzijds wordt echter geen enkele aansprakelijkheid aanvaard voor enige onvolledigheid, onjuistheid of anderszins, dan wel de gevolgen daarvan. Alle opgegeven maten en oppervlakten zijn indicatief.
Kaart
Kaart laden...
Kadastrale grens
Bebouwing
Reistijd
Krijg inzicht in de bereikbaarheid van dit object vanuit bijvoorbeeld een openbaar vervoer station of vanuit een adres.