Omschrijving
BEDRIJFSRUIMTE / KANTOORRUIMTE MET ZEER GUNSTIGE VOORWAARDEN!
Op een goed bereikbare en zichtbare locatie aan de Strevelsweg in Rotterdam-Zuid biedt Fransen Vastgoed deze functionele bedrijfs-/kantoorruimte te huur aan!
HUURPERIODE:
- Minimale huurperiode van(af) 1 JAAR;
- Na 1 jaar verlenging huurperiode met minimaal 1 jaar;
- Andere termijnen zijn in overleg bespreekbaar.
De ruimte is gelegen op een goed bereikbare plek in Rotterdam-Zuid en maakt deel uit van een grootschalig bedrijfs- en winkelcomplex. Dankzij de centrale ligging, uitstekende infrastructuur en flexibele indelingsmogelijkheden is dit object uitermate geschikt voor diverse zakelijke toepassingen zoals kantoor, dienstverlening, praktijkruimte of showroom. De bedrijfsruimte is gelegen op de derde verdieping.
OPPERVLAKTE
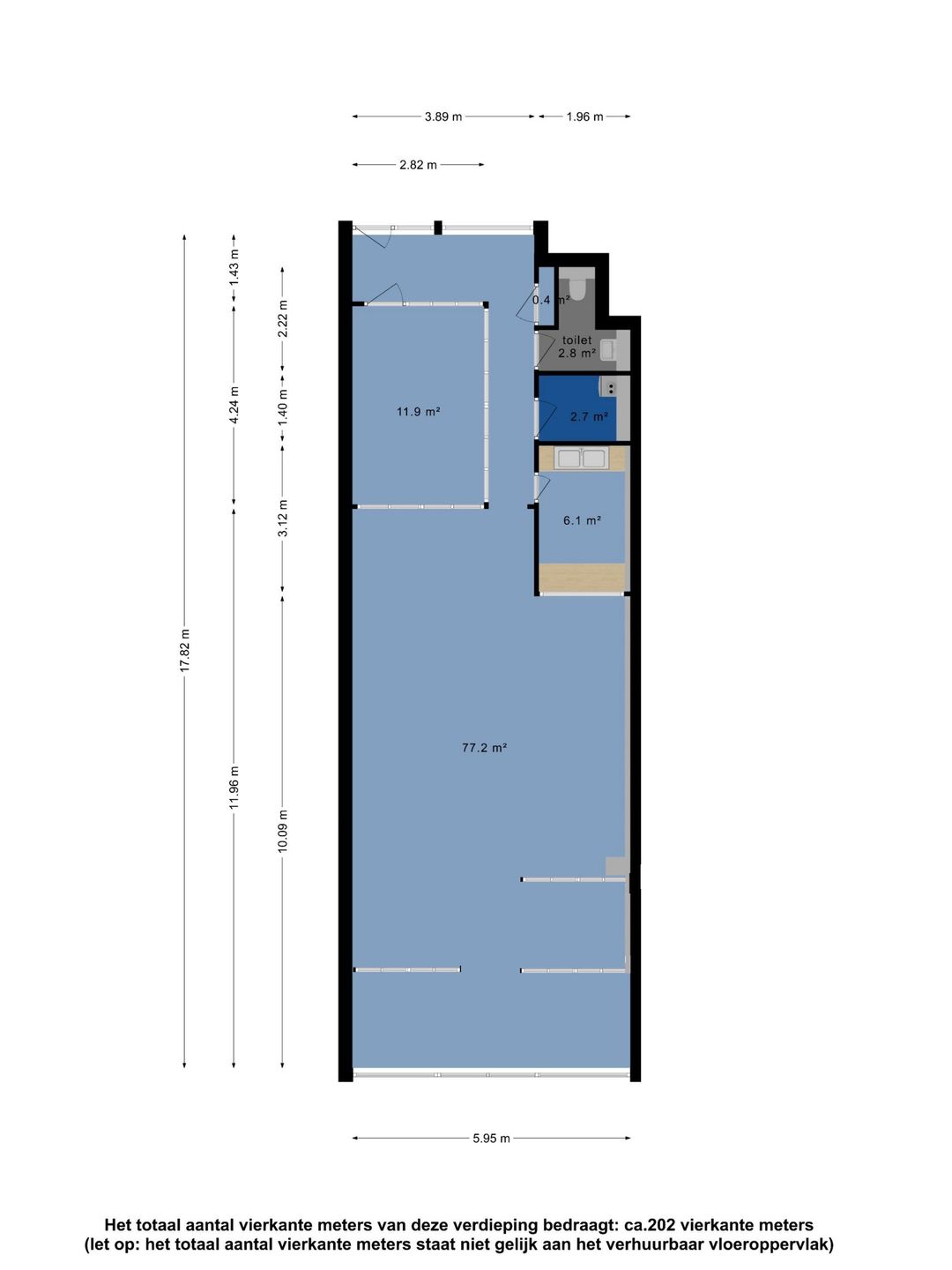
De beschikbare vloeroppervlakte bedraagt circa 100 m².
HUURPRIJS PER MAAND
€ 1.292,08 kale huur p.m.
€ 51,64 voorschot stookkosten p.m.
€ 301,28 servicekosten p.m.
INDELING
De ruimte beschikt over een praktische indeling en bestaat onder andere uit:
- Een ruime open bedrijfs-/kantoorruimte;
- Een afzonderlijke kantoor-/spreek-/behandelkamer(s);
- Pantry;
- Toilet;
- Zie ook de plattegrond.
Dankzij de open opzet en rechthoekige vormen is de ruimte efficiënt in te richten en flexibel te gebruiken.
De aanwezige raampartijen zorgen voor een prettige lichtinval en een aangename werkomgeving.
AFWERKING
De ruimte is netjes afgewerkt en voorzien van:
- Laminaatvloer;
- Systeemplafond met verlichtingsarmaturen;
- Blokverwarming.
AIRCO'S
De drie aanwezige airco's maken geen deel uit van het gehuurde, maar zijn aanwezig op basis van 'as is'.
LIGGING & BEREIKBAARHEID
Het object is gelegen aan de Strevelsweg, een belangrijke doorgaande weg in Rotterdam-Zuid. De locatie is goed bereikbaar met zowel eigen vervoer als openbaar vervoer. Uitvalswegen richting de A15 en A16 bevinden zich op korte afstand. In de directe omgeving zijn diverse winkels, bedrijven en voorzieningen aanwezig.
PARKEREN
Parkeergelegenheid is aanwezig in de directe omgeving, betaald parkeren.
BESTEMMINGSMOGELIJKHEDEN
Geschikt voor onder andere:
- Kantoorruimte;
- Dienstverlening;
- Praktijkruimte.
BESCHIKBAAR
Per direct.
OPLEVERINGSNIVEAU
De ruimte wordt in de casco staat opgeleverd.
HUURPERIODE
- Minimale huurperiode van 1 jaar;
- Na 1 jaar verlenging met minimaal 1 jaar;
- Andere termijnen zijn in overleg bespreekbaar.
HUURBETALINGEN
Per maand vooruit te voldoen.
HUURPRIJSINDEXERING
Jaarlijks voor het eerst 1 jaar na huuringangsdatum, op basis van de consumentenprijsindex (CPI), reeks “CPI-Alle huishoudens – laag (2015=100).
BTW
Verhuurder wenst NIET te opteren voor een met BTW belaste verhuur. BTW is niet van toepassing.
HUUROVEREENKOMST
Op basis van de standaard huurovereenkomst op basis van het ROZ-model:
Winkelruimte en overige bedrijfsruimte in de zin van 7:290 BW
Kantoorruimte en overige bedrijfsruimte in de zin van 7:230 BW.
WAARBORGSOM / BANKGARANTIE
Een waarborgsom of bankgarantie gelijk aan 3 maanden bruto huurverplichting.
INTERESSE?
Mocht je meer willen weten over dit pand of een bezichtiging willen inplannen, neem dan contact op met Fransen Vastgoed!
Fransen Vastgoed werkt bij dit pand als verhuurmakelaar voor de eigenaar. Heeft u uw vorige pand opgezegd of gaat u dit doen? Tip ons uw vorige verhuurder en als Fransen Vastgoed daar als verhuurmakelaar mag optreden, ontvangt u als dank € 50,-.
De teksten en impressies zijn bedoeld om een goede indruk te geven van het object. Aan de inhoud ervan is de grootst mogelijke zorg besteed. Desondanks is alle informatie nadrukkelijk onder voorbehoud. Hieraan kunnen geen rechten worden ontleend.
Op een goed bereikbare en zichtbare locatie aan de Strevelsweg in Rotterdam-Zuid biedt Fransen Vastgoed deze functionele bedrijfs-/kantoorruimte te huur aan!
HUURPERIODE:
- Minimale huurperiode van(af) 1 JAAR;
- Na 1 jaar verlenging huurperiode met minimaal 1 jaar;
- Andere termijnen zijn in overleg bespreekbaar.
De ruimte is gelegen op een goed bereikbare plek in Rotterdam-Zuid en maakt deel uit van een grootschalig bedrijfs- en winkelcomplex. Dankzij de centrale ligging, uitstekende infrastructuur en flexibele indelingsmogelijkheden is dit object uitermate geschikt voor diverse zakelijke toepassingen zoals kantoor, dienstverlening, praktijkruimte of showroom. De bedrijfsruimte is gelegen op de derde verdieping.
OPPERVLAKTE
De beschikbare vloeroppervlakte bedraagt circa 100 m².
HUURPRIJS PER MAAND
€ 1.292,08 kale huur p.m.
€ 51,64 voorschot stookkosten p.m.
€ 301,28 servicekosten p.m.
INDELING
De ruimte beschikt over een praktische indeling en bestaat onder andere uit:
- Een ruime open bedrijfs-/kantoorruimte;
- Een afzonderlijke kantoor-/spreek-/behandelkamer(s);
- Pantry;
- Toilet;
- Zie ook de plattegrond.
Dankzij de open opzet en rechthoekige vormen is de ruimte efficiënt in te richten en flexibel te gebruiken.
De aanwezige raampartijen zorgen voor een prettige lichtinval en een aangename werkomgeving.
AFWERKING
De ruimte is netjes afgewerkt en voorzien van:
- Laminaatvloer;
- Systeemplafond met verlichtingsarmaturen;
- Blokverwarming.
AIRCO'S
De drie aanwezige airco's maken geen deel uit van het gehuurde, maar zijn aanwezig op basis van 'as is'.
LIGGING & BEREIKBAARHEID
Het object is gelegen aan de Strevelsweg, een belangrijke doorgaande weg in Rotterdam-Zuid. De locatie is goed bereikbaar met zowel eigen vervoer als openbaar vervoer. Uitvalswegen richting de A15 en A16 bevinden zich op korte afstand. In de directe omgeving zijn diverse winkels, bedrijven en voorzieningen aanwezig.
PARKEREN
Parkeergelegenheid is aanwezig in de directe omgeving, betaald parkeren.
BESTEMMINGSMOGELIJKHEDEN
Geschikt voor onder andere:
- Kantoorruimte;
- Dienstverlening;
- Praktijkruimte.
BESCHIKBAAR
Per direct.
OPLEVERINGSNIVEAU
De ruimte wordt in de casco staat opgeleverd.
HUURPERIODE
- Minimale huurperiode van 1 jaar;
- Na 1 jaar verlenging met minimaal 1 jaar;
- Andere termijnen zijn in overleg bespreekbaar.
HUURBETALINGEN
Per maand vooruit te voldoen.
HUURPRIJSINDEXERING
Jaarlijks voor het eerst 1 jaar na huuringangsdatum, op basis van de consumentenprijsindex (CPI), reeks “CPI-Alle huishoudens – laag (2015=100).
BTW
Verhuurder wenst NIET te opteren voor een met BTW belaste verhuur. BTW is niet van toepassing.
HUUROVEREENKOMST
Op basis van de standaard huurovereenkomst op basis van het ROZ-model:
Winkelruimte en overige bedrijfsruimte in de zin van 7:290 BW
Kantoorruimte en overige bedrijfsruimte in de zin van 7:230 BW.
WAARBORGSOM / BANKGARANTIE
Een waarborgsom of bankgarantie gelijk aan 3 maanden bruto huurverplichting.
INTERESSE?
Mocht je meer willen weten over dit pand of een bezichtiging willen inplannen, neem dan contact op met Fransen Vastgoed!
Fransen Vastgoed werkt bij dit pand als verhuurmakelaar voor de eigenaar. Heeft u uw vorige pand opgezegd of gaat u dit doen? Tip ons uw vorige verhuurder en als Fransen Vastgoed daar als verhuurmakelaar mag optreden, ontvangt u als dank € 50,-.
De teksten en impressies zijn bedoeld om een goede indruk te geven van het object. Aan de inhoud ervan is de grootst mogelijke zorg besteed. Desondanks is alle informatie nadrukkelijk onder voorbehoud. Hieraan kunnen geen rechten worden ontleend.
Kaart
Kaart laden...
Kadastrale grens
Bebouwing
Reistijd
Krijg inzicht in de bereikbaarheid van dit object vanuit bijvoorbeeld een openbaar vervoer station of vanuit een adres.