Industriekade 36 2172 HW Sassenheim
€ 35.000 /jr
Omschrijving
ALGEMENE INFORMATIE
Op een uitstekende zichtlocatie aan de Industriekade 36 in Sassenheim bieden wij deze representatieve kantoor- en/of showroomruimte aan. Dankzij de prominente ligging is dit object uitermate geschikt voor ondernemingen die waarde hechten aan uitstraling, bereikbaarheid en zichtbaarheid.
LOCATIE
Het object is gunstig gelegen nabij de toe- en afrit van de Rijksweg A44 (afslag Sassenheim). De bereikbaarheid per auto is uitstekend en de locatie biedt optimale exposure vanaf de doorgaande weg.
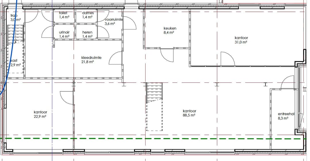
OPPERVLAKTE
Circa 165 m² kantoor-/showroomruimte, gelegen op de begane grond.
VOORZIENINGEN
De ruimte wordt opgeleverd in nette, turn-key staat en is onder andere voorzien van:
Verlichtingsarmaturen
Airconditioning in iedere ruimte
Vloerverwarming over de gehele begane grond
Royale, zelfstandige entree
Ruime keuken met vaatwasser
Toiletgroep
Dankzij de combinatie van airconditioning en vloerverwarming is het binnenklimaat het gehele jaar door comfortabel en goed regelbaar.
TERREIN EN BEVEILIGING
Het volledige terrein is afgesloten middels een eigen elektrisch toegangshek. Daarnaast is het object voorzien van een camerasysteem.
PARKEREN
Parkeergelegenheid op eigen terrein aan de voorzijde van het pand.
Daarnaast zijn er in de directe omgeving aanvullende parkeermogelijkheden beschikbaar.
BESTEMMING
Volgens het geldende bestemmingsplan van de gemeente Sassenheim/Teylingen heeft het object de bestemming (K) Kantoren.
KADASTRALE GEGEVENS
Kadastrale gemeente: Sassenheim
Sectie: A
Perceelnummer: 5068
AANVAARDING
Per direct beschikbaar.
OPLEVERINGSNIVEAU
Oplevering in de huidige, turn-key staat.
HUURCONDITIES
Huurovereenkomst conform het standaardmodel kantoorruimte van de R.O.Z. (Raad voor Onroerende Zaken)
Huurtermijn: 5 jaar met aansluitend 5 optiejaren (afwijkende termijnen in overleg bespreekbaar)
Waarborgsom ter grootte van drie maanden huur, vermeerderd met 21% btw
Huurbetaling per kwartaal vooruit (afwijkende afspraken in overleg mogelijk)
Verhuur onder voorbehoud van gunning en goedkeuring door eigenaar/verhuurder
GAS, WATER EN ELEKTRA
Het verbruik van gas, water en elektra wordt verrekend op basis van het gehuurde aantal vierkante meters.
Hetzelfde geldt voor het huurdersaandeel in gemeentelijke belastingen en overige heffingen.
BIJZONDERHEDEN
De kantoor-/showroomruimte maakt onderdeel uit van het complex van Jachthaven Jonkman, waar in de aangrenzende bedrijfsruimte een botenhotel is gevestigd.
Het kantoorgedeelte van Jachthaven Jonkman bevindt zich op de verdieping en is bereikbaar via de bedrijfsruimte. De aangeboden ruimte op de begane grond is volledig zelfstandig en separaat toegankelijk, waardoor privacy en onafhankelijk gebruik zijn gewaarborgd.
HUURPRIJS
€ 35.000,- per jaar, exclusief btw.
Disclaimer
Deze informatie is met zorg samengesteld en gebaseerd op gegevens uit betrouwbare bron. Aan de inhoud kunnen echter geen rechten worden ontleend.
Op een uitstekende zichtlocatie aan de Industriekade 36 in Sassenheim bieden wij deze representatieve kantoor- en/of showroomruimte aan. Dankzij de prominente ligging is dit object uitermate geschikt voor ondernemingen die waarde hechten aan uitstraling, bereikbaarheid en zichtbaarheid.
LOCATIE
Het object is gunstig gelegen nabij de toe- en afrit van de Rijksweg A44 (afslag Sassenheim). De bereikbaarheid per auto is uitstekend en de locatie biedt optimale exposure vanaf de doorgaande weg.
OPPERVLAKTE
Circa 165 m² kantoor-/showroomruimte, gelegen op de begane grond.
VOORZIENINGEN
De ruimte wordt opgeleverd in nette, turn-key staat en is onder andere voorzien van:
Verlichtingsarmaturen
Airconditioning in iedere ruimte
Vloerverwarming over de gehele begane grond
Royale, zelfstandige entree
Ruime keuken met vaatwasser
Toiletgroep
Dankzij de combinatie van airconditioning en vloerverwarming is het binnenklimaat het gehele jaar door comfortabel en goed regelbaar.
TERREIN EN BEVEILIGING
Het volledige terrein is afgesloten middels een eigen elektrisch toegangshek. Daarnaast is het object voorzien van een camerasysteem.
PARKEREN
Parkeergelegenheid op eigen terrein aan de voorzijde van het pand.
Daarnaast zijn er in de directe omgeving aanvullende parkeermogelijkheden beschikbaar.
BESTEMMING
Volgens het geldende bestemmingsplan van de gemeente Sassenheim/Teylingen heeft het object de bestemming (K) Kantoren.
KADASTRALE GEGEVENS
Kadastrale gemeente: Sassenheim
Sectie: A
Perceelnummer: 5068
AANVAARDING
Per direct beschikbaar.
OPLEVERINGSNIVEAU
Oplevering in de huidige, turn-key staat.
HUURCONDITIES
Huurovereenkomst conform het standaardmodel kantoorruimte van de R.O.Z. (Raad voor Onroerende Zaken)
Huurtermijn: 5 jaar met aansluitend 5 optiejaren (afwijkende termijnen in overleg bespreekbaar)
Waarborgsom ter grootte van drie maanden huur, vermeerderd met 21% btw
Huurbetaling per kwartaal vooruit (afwijkende afspraken in overleg mogelijk)
Verhuur onder voorbehoud van gunning en goedkeuring door eigenaar/verhuurder
GAS, WATER EN ELEKTRA
Het verbruik van gas, water en elektra wordt verrekend op basis van het gehuurde aantal vierkante meters.
Hetzelfde geldt voor het huurdersaandeel in gemeentelijke belastingen en overige heffingen.
BIJZONDERHEDEN
De kantoor-/showroomruimte maakt onderdeel uit van het complex van Jachthaven Jonkman, waar in de aangrenzende bedrijfsruimte een botenhotel is gevestigd.
Het kantoorgedeelte van Jachthaven Jonkman bevindt zich op de verdieping en is bereikbaar via de bedrijfsruimte. De aangeboden ruimte op de begane grond is volledig zelfstandig en separaat toegankelijk, waardoor privacy en onafhankelijk gebruik zijn gewaarborgd.
HUURPRIJS
€ 35.000,- per jaar, exclusief btw.
Disclaimer
Deze informatie is met zorg samengesteld en gebaseerd op gegevens uit betrouwbare bron. Aan de inhoud kunnen echter geen rechten worden ontleend.
Kenmerken
Overdracht
- Huurprijs
- € 35.000 per jaar
- Servicekosten
- Geen servicekosten bekend
- Aangeboden sinds
-
- Status
- Beschikbaar
- Aanvaarding
- Per direct beschikbaar
Bouw
- Hoofdfunctie
- Kantoor
- Soort bouw
- Bestaande bouw
- Bouwjaar
- 1966
Oppervlakten
- Oppervlakte
- 165 m²
Indeling
- Aantal bouwlagen
- 1 bouwlaag
- Voorzieningen
- Airconditioning, mechanische ventilatie, inbouwarmaturen, te openen ramen, kabelgoten, systeemplafond, toilet, pantry, verwarming en kamerindeling
Energie
- Energielabel
- Niet beschikbaar
Omgeving
- Ligging
- Bedrijventerrein en kantorenpark
Foto's