Kapitein Grantstraat 27 5015 BA Tilburg
€ 497 /mnd
Omschrijving
Omschrijving:
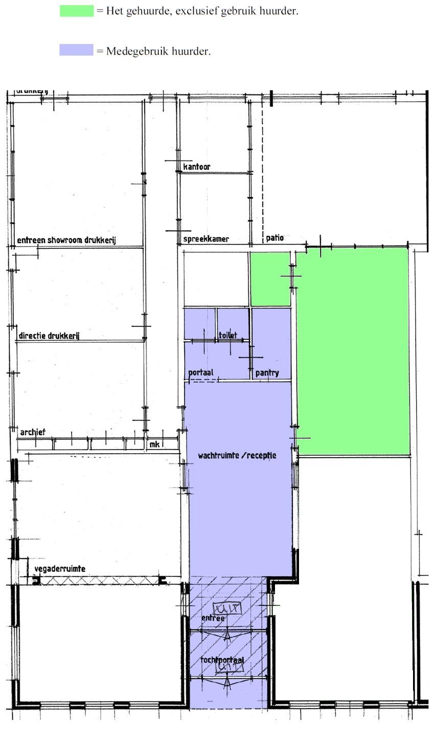
Keurige kantoorruimte, gelegen op de begane grond van een representatief bedrijvencomplex, onder andere bestaande uit; diverse kantoorunits (voor exclusief gebruik), met keuken, toiletgroep dames/heren en ontvangstruimte (voor gezamenlijk gebruik).
Adres:
Kapitein Grantstraat 27, 5015 BA Tilburg.
Bouwkundige staat:
Goed (geheel gerenoveerd).
Ligging:
Het object is gelegen op bedrijven terrein Loven, nabij belangrijke ontsluitingswegen.
Bereikbaarheid:
De bereikbaarheid van het object met eigen vervoer is uitstekend. De afstand van het object tot het centrum is ca. 2½ kilometer. Het object is o.a. gelegen kortbij navolgende ontsluitingswegen;
- Noord / Oost Tangent (verbindingsweg tussen de Rijkswegen A58 en A261),
- Rijksweg A58 (Breda - Eindhoven - ‘s-Hertogenbosch),
- Rijksweg A261 (Tilburg - Waalwijk),
- Ringbaan Oost / Bosscheweg.
De bereikbaarheid met openbaar vervoer is goed. Op slechts enkele minuten loopafstand is een bushalte aanwezig (halte Bosscheweg).
Parkeren:
Het object beschikt over een groot aantal openbare parkeerplaatsen direct voor de deur.
Bestemming:
De bestemming is “bedrijven”.
Doelgroep:
Het object is met name bedoeld voor kantoorgebruik.
Voorzieningen:
- Centrale verwarmingsinstallatie met radiatoren,
- Gezamenlijk gebruik van kitchenette/pantry en sanitair,
- Alarminstallatie,
- Systeemplafond met geïntegreerde lichtarmaturen,
- Zonwering middels lamellen, en
- Vloerafwerking middels laminaat/tapijt.
Huurovereenkomst:
Huurovereenkomst kantoorruimte en andere bedrijfsruimte in de zin van artikel 7:230a BW, conform ROZ model (Raad voor Onroerende Zaken).
Huurtermijn:
In overleg, echter minimaal 2 jaar.
Zekerheidsstelling:
Bankgarantie ter hoogte van drie maanden huur (te vermeerderen met de verschuldigde BTW).
Indexering:
Jaarlijkse indexering voor het eerst een jaar na huuringangsdatum op basis van de CPI index samengesteld door het Centraal Bureau voor de Statistiek.
Omzetbelasting:
Indien huurder niet aan het 90% criterium voldoet, zal ervan rechtswege sprake zijn van omzetbelasting vrijgestelde verhuur. Alsdan wordt de overeengekomen kale huurprijs exclusief omzetbelasting, zodanig verhoogd dat het voor verhuurder ontstane financiële nadeel wordt gecompenseerd.
Aanvaarding:
Aanvaarding in overleg en onder voorbehoud goedkeuring verhuurder.
Keurige kantoorruimte, gelegen op de begane grond van een representatief bedrijvencomplex, onder andere bestaande uit; diverse kantoorunits (voor exclusief gebruik), met keuken, toiletgroep dames/heren en ontvangstruimte (voor gezamenlijk gebruik).
Adres:
Kapitein Grantstraat 27, 5015 BA Tilburg.
Bouwkundige staat:
Goed (geheel gerenoveerd).
Ligging:
Het object is gelegen op bedrijven terrein Loven, nabij belangrijke ontsluitingswegen.
Bereikbaarheid:
De bereikbaarheid van het object met eigen vervoer is uitstekend. De afstand van het object tot het centrum is ca. 2½ kilometer. Het object is o.a. gelegen kortbij navolgende ontsluitingswegen;
- Noord / Oost Tangent (verbindingsweg tussen de Rijkswegen A58 en A261),
- Rijksweg A58 (Breda - Eindhoven - ‘s-Hertogenbosch),
- Rijksweg A261 (Tilburg - Waalwijk),
- Ringbaan Oost / Bosscheweg.
De bereikbaarheid met openbaar vervoer is goed. Op slechts enkele minuten loopafstand is een bushalte aanwezig (halte Bosscheweg).
Parkeren:
Het object beschikt over een groot aantal openbare parkeerplaatsen direct voor de deur.
Bestemming:
De bestemming is “bedrijven”.
Doelgroep:
Het object is met name bedoeld voor kantoorgebruik.
Voorzieningen:
- Centrale verwarmingsinstallatie met radiatoren,
- Gezamenlijk gebruik van kitchenette/pantry en sanitair,
- Alarminstallatie,
- Systeemplafond met geïntegreerde lichtarmaturen,
- Zonwering middels lamellen, en
- Vloerafwerking middels laminaat/tapijt.
Huurovereenkomst:
Huurovereenkomst kantoorruimte en andere bedrijfsruimte in de zin van artikel 7:230a BW, conform ROZ model (Raad voor Onroerende Zaken).
Huurtermijn:
In overleg, echter minimaal 2 jaar.
Zekerheidsstelling:
Bankgarantie ter hoogte van drie maanden huur (te vermeerderen met de verschuldigde BTW).
Indexering:
Jaarlijkse indexering voor het eerst een jaar na huuringangsdatum op basis van de CPI index samengesteld door het Centraal Bureau voor de Statistiek.
Omzetbelasting:
Indien huurder niet aan het 90% criterium voldoet, zal ervan rechtswege sprake zijn van omzetbelasting vrijgestelde verhuur. Alsdan wordt de overeengekomen kale huurprijs exclusief omzetbelasting, zodanig verhoogd dat het voor verhuurder ontstane financiële nadeel wordt gecompenseerd.
Aanvaarding:
Aanvaarding in overleg en onder voorbehoud goedkeuring verhuurder.
Kenmerken
Overdracht
- Huurprijs
- € 497 per maand
- Servicekosten
- € 102 per maand (21% BTW van toepassing)
- Aangeboden sinds
-
- Status
- Beschikbaar
- Aanvaarding
- In overleg
Bouw
- Hoofdfunctie
- Kantoor
- Soort bouw
- Bestaande bouw
- Bouwperiode
- 2001-2010
Oppervlakten
- Oppervlakte
- 212 m² (in units vanaf 32 m²)
Indeling
- Aantal bouwlagen
- 1 bouwlaag
- Voorzieningen
- Airconditioning, mechanische ventilatie, inbouwarmaturen, kabelgoten, systeemplafond, toilet, pantry en verwarming
Energie
- Energielabel
- A
Omgeving
- Ligging
- Bedrijventerrein
Foto's