Steinhagenseweg 2-M 3446 GP Woerden
€ 580 /mnd
Omschrijving
WAAROM STEINHAGENSEWEG VOOR U DE IDEALE PLEK IS
1. Kleine „turn key“ kantoorkamers vanaf 29 m²
2. Goede bereikbaarheid
3. Eigen parkeergelegenheid tegen betaling
4. Representatief gebouw met hoogwaardig opleveringsniveau en lift
5. Energielabel A+
ADRES
Steinhagenseweg 2M te Woerden (3446 GP)
ALGEMEEN
Kantoorgebouw “Arcade” ligt in het woongebied Snel en Polanen. Het betreft een modern, multifunctioneel en onder architectuur ontworpen solitair kantoorgebouw van in totaal vier bouwlagen met afzonderlijke kantoorvleugels.
Eén van deze kantoorvleugels op de eerste verdieping is “turn key” beschikbaar in kleine kantoorkamers vanaf 20 m² met een kortere huurperiode.
Op de begane grond bevindt zich een royale gemeenschappelijke entree met open natuurstenen trap en lift. De gemeenschappelijke entree wordt binnenkort compleet gemoderniseerd. Het gebouw met kantoorkamers heeft een zeer hoogwaardig afwerkings- en opleverniveau.
LIGGING EN BEREIKBAARHEID
Door de centrale ligging van kantoorgebouw “Arcade” is hier sprake van een zichtlocatie. Het gebouw grenst aan het wijkwinkelcentrum Snel & Polanen dat een verzorgende functie heeft voor de ca. 7.500 personen die in deze wijk wonen. Aangrenzend wordt de nieuwe duurzame wijk Snellerpoort () gerealiseerd met circa 900 woningen die dit deel van Woerden nog aantrekkelijker maakt voor werken, wonen en ontspannen.
In het gebouw zijn gevestigd Gezondheidscentrum Woerden, Apotheek Peleane Hof, Meurs Geluid en Chinski gevestigd.
Het gebied Snel en Polanen bestrijkt een gebied van 112 hectare, waarvan 5 hectare aan meren, sloten en andere wateren.
Vanaf de rijksweg A12 is het gebouw binnen enkele minuten met eigen vervoer te bereiken.
Het NS-station Woerden bevindt zich op loopafstand van het gebouw.
OPPERVLAKTE
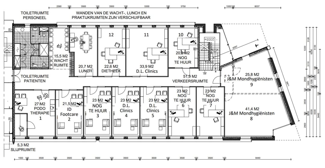
De kamernummers 6, 7 en 10 op de 1e verdieping zijn te huur voor € 200,- per m² excl. BTW per jaar, vermeerderd met € 40,- servicekosten per m² excl. BTW per jaar.
• Kamer 6, 33 m², € 710,60 incl. BTW per maand incl. voorschot servicekosten;
• Kamer 7, 33 m², € 710,60 incl. BTW per maand incl. voorschot servicekosten;
• Kamer 10, 29 m², € 624,47 incl. BTW per maand incl. voorschot servicekosten.
Kamers 1, 2, 3, 4, 5, 8, 9, 11 en 12 zijn verhuurd.
ENERGIELABEL
A+.
BASIS OPLEVERINGSNIVEAU
De algemene ruimten worden in een “turn key” staat opgeleverd inclusief o.a.:
· representatieve gezamenlijke entree aan voor- en achterzijde met royale luxe trappartij;
· gezamenlijke lift voor maximaal 13 personen of 1.000 kg;
· verwarming, koeling en luchtbevochtiging middels een luchtbehandelingskast;
· brandmeldinstallatie, ontruimingsinstallatie en brandhaspels;
· videoinformatiescherm.
De kantoorvleugel en kantoorkamers worden in een “turn key” staat opgeleverd inclusief o.a.:
· deels te openen aluminium draai-/kiepramen;
· ruwbouwtimmerwerk;
· systeemplafond;
· klimaatinstallaties;
· toiletruimten;
· LED verlichting;
· binnen-/ kozijnen-/ramen-/deuren-/hang- en sluitwerk c.q. beglazing;
· stukadoorwerk;
· systeemwanden;
· afbouwtimmerwerk;
· schilderwerk;
· pantry in de lunchruimte inclusief installaties;
· vloerbedekking;
· basis ICT (Wifi internet);
· alle overige werkzaamheden om de kantoorvleugel en kantoorkamers worden “turn key” opgeleverd.
PARKEREN
• Parkeerdek: € 600,-- per parkeerplaats per jaar te vermeerderen met de wettelijke verschuldigde omzetbelasting, per kwartaal vooruit te voldoen.
• Parkeerhof (maaiveld): € 700,-- per parkeerplaats per jaar te vermeerderen met de wettelijke verschuldigde omzetbelasting, per kwartaal vooruit te voldoen.
GEBRUIKERSMOGELIJKHEDEN
Bestemmingsplan “Snel en Polanen”, bestemming “Gemengd-1”; kantoren, dienstverlening en bedrijfsgebonden kantoren ondergeschikt aan de bedrijfsfunctie zijn toegestaan.
SERVICEKOSTEN
Een voorschotbijdrage van € 40,- per m² per jaar te vermeerderen met de wettelijke verschuldigde omzetbelasting, per kwartaal vooruit te voldoen, als verrekenbaar voorschot op de kosten van onder andere de volgende leveringen en diensten:
• gas-, water- en elektriciteitsverbruik inclusief vastrecht ten behoeve van de installaties en de verlichting van de gemeenschappelijke ruimten alsmede de individueel gehuurde ruimte;
• onderhoud en periodieke controle van verwarmings-, luchtbehandelings-/topkoelinstallatie(s), liftinstallatie, hydrofoorinstallatie, brandmelder-, gebouwbewakings-, storingsmelder-automatische deureninstallatie(s), brandhaspels, slagboominstallatie;
• schoonmaakkosten van de algemene- en gemeenschappelijke ruimten, liften, beglazing buitenzijde, beglazing algemene- en gemeenschappelijke ruimten, terrassen en buitenterrein;
• onderhoud bestrating, onkruidbestrijding en dakbedekking;
• telefoonkosten ten behoeve van de liften en gebouwbeheersysteem;
• assurantiepremie buitenbeglazing;
• administratiekosten ad. 5% over de hierboven genoemde leveringen en diensten.
Verrekening vindt jaarlijks achteraf plaats op basis van werkelijke kosten.
ZONNEPANELEN
Verhuurder is voornemens zonnepanelen te plaatsen op het dak. De daaruit voortvloeiende kosten worden door Verhuurder betaald. Huurder zal vanaf moment van oplevering zonnepanelen de huur per m² zien toenemen en de servicekosten per m² zien afnemen.
ONDERMAAT/OVERMAAT
Indien de opgegeven grootte (ondermaat/overmaat) van de onroerende zaak niet juist is, ontleent geen van partijen daaraan rechten.
HUURTERMIJN
1 (één) jaar met een verlengingsperiode van 1 (één) jaar.
OPZEGTERMIJN
Uiterlijk 12 (twaalf) maanden voor het aflopen van een huurtermijn.
AANVAARDING
Kan snel.
HUURPRIJSINDEXERING
Jaarlijks, op basis van de wijziging van het maandprijsindexcijfer volgens de consumentenprijsindex (CPI) reeks Alle huishoudens (2015 = 100), gepubliceerd door het Centraal Bureau voor de Statistiek (CBS).
ZEKERHEIDSSTELLING
Bankgarantie of waarborgsom ter grootte van een kwartaalverplichting huur plus servicekosten vermeerderd met BTW.
B.T.W.
Uitgangspunt is BTW- belaste verhuur. Indien huurder niet aan het 90% criterium voldoet, zal er van rechtswege sprake zijn van omzetbelasting vrijgestelde verhuur. Alsdan wordt de overeengekomen kale huurprijs, exclusief omzetbelasting, zodanig verhoogd dat het voor verhuurder ontstane nadeel volledig wordt gecompenseerd.
HUUROVEREENKOMST
Gebaseerd op het model huurovereenkomst kantoorruimte en andere bedrijfsruimte in de zin van artikel 7:230a BW, zoals is vastgesteld door de Raad voor Onroerende Zaken (ROZ) in 2015. Van deze overeenkomst maken deel uit de bijhorende “Algemene bepalingen huurovereenkomst kantoorruimte en andere bedrijfsruimte in de zin van artikel 7:230A BW”.
BIJZONDERHEDEN
Deze objectinformatie is geheel vrijblijvend en mag niet worden beschouwd als een aanbieding of offerte en wordt verstrekt onder voorbehoud van goedkeuring door verhuurder c.q. verkoper. Aan de in deze brochure vermelde teksten, tekeningen en opgegeven metrages kunnen geen rechten worden ontleend. Ten aanzien van de juistheid van de door ons samengestelde gegevens ervan kunnen wij echter geen aansprakelijkheid aanvaarden. In het geval dat onze beroepsaansprakelijkheidsverzekering aanspraak op uitkering geeft, is aansprakelijkheid beperkt tot het bedrag dat in voorkomend geval onder deze verzekering voor uitkering in aanmerking komt. Alle informatie is geheel vrijblijvend en uitsluitend voor geadresseerde bestemd. Alle gegevens zijn met zorg samengesteld en uit ons inziens betrouwbare bron afkomstig.
1. Kleine „turn key“ kantoorkamers vanaf 29 m²
2. Goede bereikbaarheid
3. Eigen parkeergelegenheid tegen betaling
4. Representatief gebouw met hoogwaardig opleveringsniveau en lift
5. Energielabel A+
ADRES
Steinhagenseweg 2M te Woerden (3446 GP)
ALGEMEEN
Kantoorgebouw “Arcade” ligt in het woongebied Snel en Polanen. Het betreft een modern, multifunctioneel en onder architectuur ontworpen solitair kantoorgebouw van in totaal vier bouwlagen met afzonderlijke kantoorvleugels.
Eén van deze kantoorvleugels op de eerste verdieping is “turn key” beschikbaar in kleine kantoorkamers vanaf 20 m² met een kortere huurperiode.
Op de begane grond bevindt zich een royale gemeenschappelijke entree met open natuurstenen trap en lift. De gemeenschappelijke entree wordt binnenkort compleet gemoderniseerd. Het gebouw met kantoorkamers heeft een zeer hoogwaardig afwerkings- en opleverniveau.
LIGGING EN BEREIKBAARHEID
Door de centrale ligging van kantoorgebouw “Arcade” is hier sprake van een zichtlocatie. Het gebouw grenst aan het wijkwinkelcentrum Snel & Polanen dat een verzorgende functie heeft voor de ca. 7.500 personen die in deze wijk wonen. Aangrenzend wordt de nieuwe duurzame wijk Snellerpoort () gerealiseerd met circa 900 woningen die dit deel van Woerden nog aantrekkelijker maakt voor werken, wonen en ontspannen.
In het gebouw zijn gevestigd Gezondheidscentrum Woerden, Apotheek Peleane Hof, Meurs Geluid en Chinski gevestigd.
Het gebied Snel en Polanen bestrijkt een gebied van 112 hectare, waarvan 5 hectare aan meren, sloten en andere wateren.
Vanaf de rijksweg A12 is het gebouw binnen enkele minuten met eigen vervoer te bereiken.
Het NS-station Woerden bevindt zich op loopafstand van het gebouw.
OPPERVLAKTE
De kamernummers 6, 7 en 10 op de 1e verdieping zijn te huur voor € 200,- per m² excl. BTW per jaar, vermeerderd met € 40,- servicekosten per m² excl. BTW per jaar.
• Kamer 6, 33 m², € 710,60 incl. BTW per maand incl. voorschot servicekosten;
• Kamer 7, 33 m², € 710,60 incl. BTW per maand incl. voorschot servicekosten;
• Kamer 10, 29 m², € 624,47 incl. BTW per maand incl. voorschot servicekosten.
Kamers 1, 2, 3, 4, 5, 8, 9, 11 en 12 zijn verhuurd.
ENERGIELABEL
A+.
BASIS OPLEVERINGSNIVEAU
De algemene ruimten worden in een “turn key” staat opgeleverd inclusief o.a.:
· representatieve gezamenlijke entree aan voor- en achterzijde met royale luxe trappartij;
· gezamenlijke lift voor maximaal 13 personen of 1.000 kg;
· verwarming, koeling en luchtbevochtiging middels een luchtbehandelingskast;
· brandmeldinstallatie, ontruimingsinstallatie en brandhaspels;
· videoinformatiescherm.
De kantoorvleugel en kantoorkamers worden in een “turn key” staat opgeleverd inclusief o.a.:
· deels te openen aluminium draai-/kiepramen;
· ruwbouwtimmerwerk;
· systeemplafond;
· klimaatinstallaties;
· toiletruimten;
· LED verlichting;
· binnen-/ kozijnen-/ramen-/deuren-/hang- en sluitwerk c.q. beglazing;
· stukadoorwerk;
· systeemwanden;
· afbouwtimmerwerk;
· schilderwerk;
· pantry in de lunchruimte inclusief installaties;
· vloerbedekking;
· basis ICT (Wifi internet);
· alle overige werkzaamheden om de kantoorvleugel en kantoorkamers worden “turn key” opgeleverd.
PARKEREN
• Parkeerdek: € 600,-- per parkeerplaats per jaar te vermeerderen met de wettelijke verschuldigde omzetbelasting, per kwartaal vooruit te voldoen.
• Parkeerhof (maaiveld): € 700,-- per parkeerplaats per jaar te vermeerderen met de wettelijke verschuldigde omzetbelasting, per kwartaal vooruit te voldoen.
GEBRUIKERSMOGELIJKHEDEN
Bestemmingsplan “Snel en Polanen”, bestemming “Gemengd-1”; kantoren, dienstverlening en bedrijfsgebonden kantoren ondergeschikt aan de bedrijfsfunctie zijn toegestaan.
SERVICEKOSTEN
Een voorschotbijdrage van € 40,- per m² per jaar te vermeerderen met de wettelijke verschuldigde omzetbelasting, per kwartaal vooruit te voldoen, als verrekenbaar voorschot op de kosten van onder andere de volgende leveringen en diensten:
• gas-, water- en elektriciteitsverbruik inclusief vastrecht ten behoeve van de installaties en de verlichting van de gemeenschappelijke ruimten alsmede de individueel gehuurde ruimte;
• onderhoud en periodieke controle van verwarmings-, luchtbehandelings-/topkoelinstallatie(s), liftinstallatie, hydrofoorinstallatie, brandmelder-, gebouwbewakings-, storingsmelder-automatische deureninstallatie(s), brandhaspels, slagboominstallatie;
• schoonmaakkosten van de algemene- en gemeenschappelijke ruimten, liften, beglazing buitenzijde, beglazing algemene- en gemeenschappelijke ruimten, terrassen en buitenterrein;
• onderhoud bestrating, onkruidbestrijding en dakbedekking;
• telefoonkosten ten behoeve van de liften en gebouwbeheersysteem;
• assurantiepremie buitenbeglazing;
• administratiekosten ad. 5% over de hierboven genoemde leveringen en diensten.
Verrekening vindt jaarlijks achteraf plaats op basis van werkelijke kosten.
ZONNEPANELEN
Verhuurder is voornemens zonnepanelen te plaatsen op het dak. De daaruit voortvloeiende kosten worden door Verhuurder betaald. Huurder zal vanaf moment van oplevering zonnepanelen de huur per m² zien toenemen en de servicekosten per m² zien afnemen.
ONDERMAAT/OVERMAAT
Indien de opgegeven grootte (ondermaat/overmaat) van de onroerende zaak niet juist is, ontleent geen van partijen daaraan rechten.
HUURTERMIJN
1 (één) jaar met een verlengingsperiode van 1 (één) jaar.
OPZEGTERMIJN
Uiterlijk 12 (twaalf) maanden voor het aflopen van een huurtermijn.
AANVAARDING
Kan snel.
HUURPRIJSINDEXERING
Jaarlijks, op basis van de wijziging van het maandprijsindexcijfer volgens de consumentenprijsindex (CPI) reeks Alle huishoudens (2015 = 100), gepubliceerd door het Centraal Bureau voor de Statistiek (CBS).
ZEKERHEIDSSTELLING
Bankgarantie of waarborgsom ter grootte van een kwartaalverplichting huur plus servicekosten vermeerderd met BTW.
B.T.W.
Uitgangspunt is BTW- belaste verhuur. Indien huurder niet aan het 90% criterium voldoet, zal er van rechtswege sprake zijn van omzetbelasting vrijgestelde verhuur. Alsdan wordt de overeengekomen kale huurprijs, exclusief omzetbelasting, zodanig verhoogd dat het voor verhuurder ontstane nadeel volledig wordt gecompenseerd.
HUUROVEREENKOMST
Gebaseerd op het model huurovereenkomst kantoorruimte en andere bedrijfsruimte in de zin van artikel 7:230a BW, zoals is vastgesteld door de Raad voor Onroerende Zaken (ROZ) in 2015. Van deze overeenkomst maken deel uit de bijhorende “Algemene bepalingen huurovereenkomst kantoorruimte en andere bedrijfsruimte in de zin van artikel 7:230A BW”.
BIJZONDERHEDEN
Deze objectinformatie is geheel vrijblijvend en mag niet worden beschouwd als een aanbieding of offerte en wordt verstrekt onder voorbehoud van goedkeuring door verhuurder c.q. verkoper. Aan de in deze brochure vermelde teksten, tekeningen en opgegeven metrages kunnen geen rechten worden ontleend. Ten aanzien van de juistheid van de door ons samengestelde gegevens ervan kunnen wij echter geen aansprakelijkheid aanvaarden. In het geval dat onze beroepsaansprakelijkheidsverzekering aanspraak op uitkering geeft, is aansprakelijkheid beperkt tot het bedrag dat in voorkomend geval onder deze verzekering voor uitkering in aanmerking komt. Alle informatie is geheel vrijblijvend en uitsluitend voor geadresseerde bestemd. Alle gegevens zijn met zorg samengesteld en uit ons inziens betrouwbare bron afkomstig.
Kenmerken
Overdracht
- Huurprijs
- € 580 per maand
- Oorspronkelijke huurprijs
- € 600 per maand
- Servicekosten
- € 40 per vierkante meter per jaar (21% BTW van toepassing)
- Aangeboden sinds
-
- Status
- Beschikbaar
- Aanvaarding
- In overleg
Bouw
- Hoofdfunctie
- Kantoor
- Soort bouw
- Bestaande bouw
- Bouwjaar
- 2000
Oppervlakten
- Oppervlakte
- 128 m² (in units vanaf 29 m²)
Indeling
- Aantal bouwlagen
- 1 bouwlaag
- Voorzieningen
- Mechanische ventilatie, inbouwarmaturen, liften, te openen ramen, kabelgoten, systeemplafond, toilet, pantry en verwarming
Energie
- Energielabel
- A+
Omgeving
- Ligging
- In woonwijk
Parkeergelegenheid
- Parkeerplaatsen
- 8 niet-overdekte parkeerplaatsen
- Parkeerkosten
- Vanaf € 600,- per parkeerplaats per jaar (21% BTW van toepassing)
Foto's