Omschrijving
ALGEMEEN
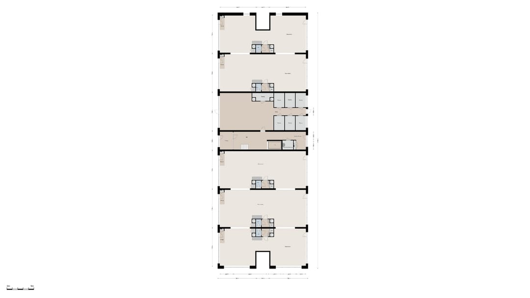
Aan de Klokkengieterlaan te Zwolle is recent een gebouw opgeleverd, waar in de plint op de begane grond 5 commerciële ruimtes zijn gerealiseerd.
De 5 volledig zelfstandige units variëren van 108 m² tot 116 m² groot. De ruimtes zijn alle voorzien van een eigen entree, meterkast, pantry, toilet, balans ventilatiesysteem en een multi-split airco (koelen en verwarmen) alsmede een basis elektrasysteem. De units zijn tevens voorzien van zonwerend glas en zonwering. U bent dus gegarandeerd van een prettig klimaat in uw nieuwe kantoor of bedrijfsruimte!
De verdere indeling is in overleg met de verhuurder te bepalen.
De units zijn bij uitstek geschikt voor maatschappelijke doeleinden of als kantoorruimte.
LOCATIE
Het gebouw is gelegen op een zeer goed bereikbare locatie aan de Klokkengieterlaan, nabij de entree naar Stadshagen vanuit de Aa-landen.
In de directe omgeving zijn het jongerencentrum, de basisschool 'de Sprankel' en woonhuizen gelegen.
Het winkelcentrum "Stadshagen" met alle voorzieningen is zeer goed bereikbaar. De locatie is uitstekend te bereiken gezien de ligging nabij de ringweg van Zwolle (Zwartewaterallee) waardoor het pand zowel vanaf de A28, alsmede vanuit het centrum goed te bereiken is.
OPPERVLAKTE
Unit 1.1: ca. 108 m²
Unit 1.2: ca. 116 m² VERHUURD
Unit 1.3: ca. 116 m² VERHUURD
Unit 1.4: ca. 116 m²
Unit 1.5: ca. 108 m² VERHUURD
OPLEVERINGSNIVEAU
- Meterkast;
- Zonwering (buitenzijde);
- Toiletvoorziening;
- Pantry;
- Basis elektra installatie;
- Balansventilatie;
- Multi-split airco (verwarmen en koelen);
- HR ++ Glas met zonwerende tint;
BESTEMMINGSPLAN
Op deze locatie geldt het bestemmingsplan "Stadshagen 1" en voor dit gebouw geldt de bestemming "Gemengd -4". Kantoren, maatschappelijke voorzieningen en sport behoren tot de mogelijkheden. Voor het complete bestemmingsplan verwijzen wij u naar het omgevingsloket
ENERGIELABEL
Het pand beschikt over een energielabel A++
PARKEREN
Er worden parkeerplaatsen direct voor het gebouw gerealiseerd. Tevens is er gratis parkeren in de directe omgeving van het gebouw
HUURPRIJS
€ 150,- per m² per jaar, te vermeerderen met BTW
SERVICEKOSTEN
€ 70,- per maand, te vermeerderen met BTW.
BETALINGEN
Huur, BTW per maand vooruit.
HUURTERMIJN
Verhuurder opteert voor een vijfjarige huurtermijn.
HUURPRIJSAANPASSING
Jaarlijks, voor het eerst per 1 jaar na ingangsdatum, conform de Consumentenprijsindex reeks Alle Huishoudens (2015=100) gepubliceerd door het Centraal Bureau voor de Statistiek.
HUUROVEREENKOMST
Volgens het model kantoorruimte en andere bedrijfsruimte in de zin van artikel 7:230a BW, vastgesteld in januari 2015 door de Raad van Onroerende Zaken (ROZ), met bijbehorende Algemene Bepalingen welke op 17 februari 2015 zijn gedeponeerd bij de griffie van de Rechtbank te Den Haag onder nummer 15/21.
ZEKERHEIDSSTELLING
Waarborgsom ter grootte van 3 maanden betalingsverplichting.
OVERIGE CONDITIES
Voorbehoud goedkeuring huurder door eigenaar.
AANVAARDING
In overleg.
Voor nadere informatie en/of bezichtiging kunt u contact opnemen met:
Rodenburg Bedrijfsmakelaars
Aagje Dekenstraat 51
8023 BZ Zwolle
Tel: 038-422 22 22
Aan de Klokkengieterlaan te Zwolle is recent een gebouw opgeleverd, waar in de plint op de begane grond 5 commerciële ruimtes zijn gerealiseerd.
De 5 volledig zelfstandige units variëren van 108 m² tot 116 m² groot. De ruimtes zijn alle voorzien van een eigen entree, meterkast, pantry, toilet, balans ventilatiesysteem en een multi-split airco (koelen en verwarmen) alsmede een basis elektrasysteem. De units zijn tevens voorzien van zonwerend glas en zonwering. U bent dus gegarandeerd van een prettig klimaat in uw nieuwe kantoor of bedrijfsruimte!
De verdere indeling is in overleg met de verhuurder te bepalen.
De units zijn bij uitstek geschikt voor maatschappelijke doeleinden of als kantoorruimte.
LOCATIE
Het gebouw is gelegen op een zeer goed bereikbare locatie aan de Klokkengieterlaan, nabij de entree naar Stadshagen vanuit de Aa-landen.
In de directe omgeving zijn het jongerencentrum, de basisschool 'de Sprankel' en woonhuizen gelegen.
Het winkelcentrum "Stadshagen" met alle voorzieningen is zeer goed bereikbaar. De locatie is uitstekend te bereiken gezien de ligging nabij de ringweg van Zwolle (Zwartewaterallee) waardoor het pand zowel vanaf de A28, alsmede vanuit het centrum goed te bereiken is.
OPPERVLAKTE
Unit 1.1: ca. 108 m²
Unit 1.2: ca. 116 m² VERHUURD
Unit 1.3: ca. 116 m² VERHUURD
Unit 1.4: ca. 116 m²
Unit 1.5: ca. 108 m² VERHUURD
OPLEVERINGSNIVEAU
- Meterkast;
- Zonwering (buitenzijde);
- Toiletvoorziening;
- Pantry;
- Basis elektra installatie;
- Balansventilatie;
- Multi-split airco (verwarmen en koelen);
- HR ++ Glas met zonwerende tint;
BESTEMMINGSPLAN
Op deze locatie geldt het bestemmingsplan "Stadshagen 1" en voor dit gebouw geldt de bestemming "Gemengd -4". Kantoren, maatschappelijke voorzieningen en sport behoren tot de mogelijkheden. Voor het complete bestemmingsplan verwijzen wij u naar het omgevingsloket
ENERGIELABEL
Het pand beschikt over een energielabel A++
PARKEREN
Er worden parkeerplaatsen direct voor het gebouw gerealiseerd. Tevens is er gratis parkeren in de directe omgeving van het gebouw
HUURPRIJS
€ 150,- per m² per jaar, te vermeerderen met BTW
SERVICEKOSTEN
€ 70,- per maand, te vermeerderen met BTW.
BETALINGEN
Huur, BTW per maand vooruit.
HUURTERMIJN
Verhuurder opteert voor een vijfjarige huurtermijn.
HUURPRIJSAANPASSING
Jaarlijks, voor het eerst per 1 jaar na ingangsdatum, conform de Consumentenprijsindex reeks Alle Huishoudens (2015=100) gepubliceerd door het Centraal Bureau voor de Statistiek.
HUUROVEREENKOMST
Volgens het model kantoorruimte en andere bedrijfsruimte in de zin van artikel 7:230a BW, vastgesteld in januari 2015 door de Raad van Onroerende Zaken (ROZ), met bijbehorende Algemene Bepalingen welke op 17 februari 2015 zijn gedeponeerd bij de griffie van de Rechtbank te Den Haag onder nummer 15/21.
ZEKERHEIDSSTELLING
Waarborgsom ter grootte van 3 maanden betalingsverplichting.
OVERIGE CONDITIES
Voorbehoud goedkeuring huurder door eigenaar.
AANVAARDING
In overleg.
Voor nadere informatie en/of bezichtiging kunt u contact opnemen met:
Rodenburg Bedrijfsmakelaars
Aagje Dekenstraat 51
8023 BZ Zwolle
Tel: 038-422 22 22
Kaart
Kaart laden...
Kadastrale grens
Bebouwing
Reistijd
Krijg inzicht in de bereikbaarheid van dit object vanuit bijvoorbeeld een openbaar vervoer station of vanuit een adres.