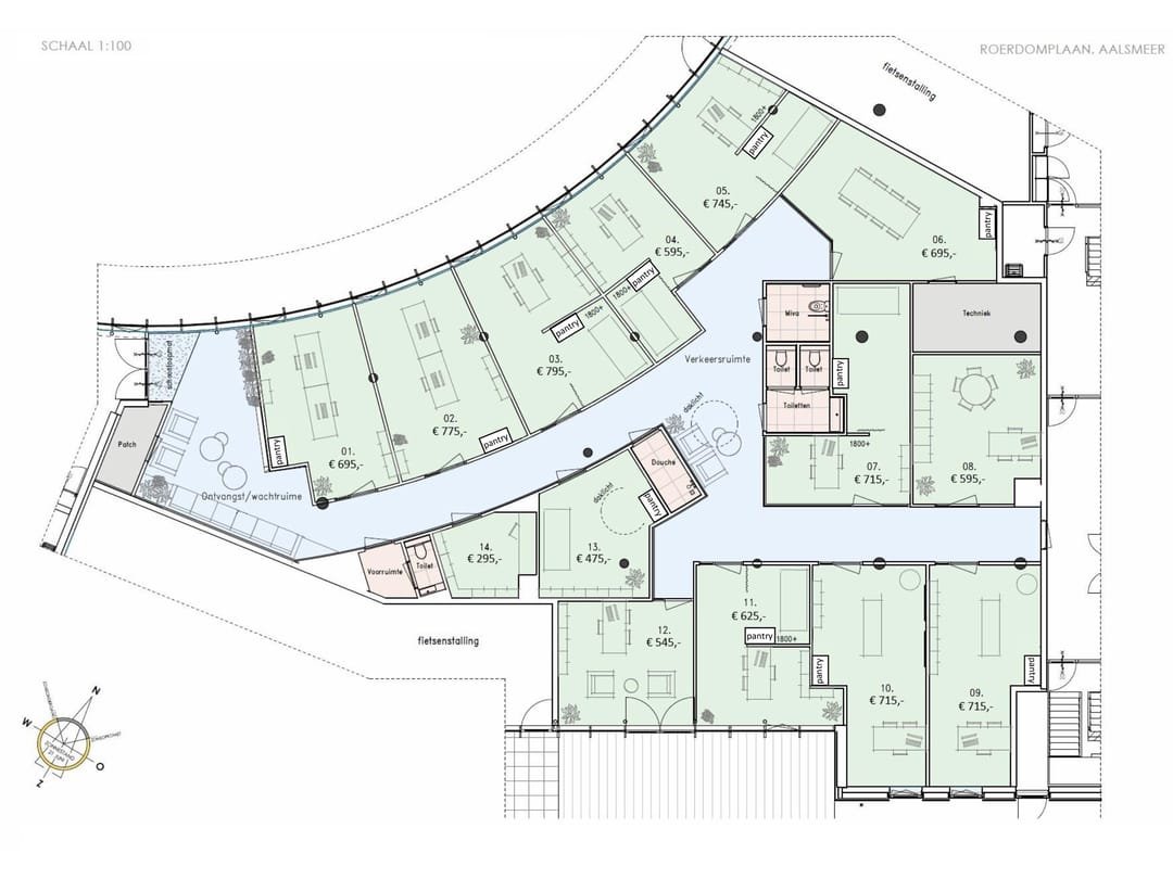
Omschrijving
Unit 10.
Ca. 36 m²
€ 715,- per maand incl. BTW compensatie en excl. servicekosten.
Een unieke mogelijkheid om te huren in een ‘state of the art’ gezondheidscentrum midden in Aalsmeer!
Er zijn in totaal 14 units beschikbaar, welke individueel of gecombineerd gehuurd kunnen worden. Elke unit wordt turn-key opgeleverd met vloerbedekking, pantry, verlichting en meer!
Het gebouw kenmerkt zich door de grote glazen gevel, meerdere dakkoepels waardoor de units veel licht binnen krijgen en voorzien is van alle hedendaagse faciliteiten. Daarnaast is er een gemeenschappelijk wachtruimte aanwezig en tevens sanitaire- en douchevoorzieningen.
Kortom: hier bevinden zich ideale ruimtes voor zorgprofessionals zoals huisartsen, tandartsen, fysiotherapeuten, apothekers, maatschappelijk werkers of wijkverpleegkundigen.
Bent u op zoek naar een ruimte voor uw bedrijf, in een state-of-the art gezondheidscentrum, dichtbij de kenmerkende watertoren in Aalsmeer? Neem dan contact met ons op voor meer informatie!
Voor meer informatie kunt u de website van het project bezoeken op: roerdomplaan . nl
Ca. 36 m²
€ 715,- per maand incl. BTW compensatie en excl. servicekosten.
Een unieke mogelijkheid om te huren in een ‘state of the art’ gezondheidscentrum midden in Aalsmeer!
Er zijn in totaal 14 units beschikbaar, welke individueel of gecombineerd gehuurd kunnen worden. Elke unit wordt turn-key opgeleverd met vloerbedekking, pantry, verlichting en meer!
Het gebouw kenmerkt zich door de grote glazen gevel, meerdere dakkoepels waardoor de units veel licht binnen krijgen en voorzien is van alle hedendaagse faciliteiten. Daarnaast is er een gemeenschappelijk wachtruimte aanwezig en tevens sanitaire- en douchevoorzieningen.
Kortom: hier bevinden zich ideale ruimtes voor zorgprofessionals zoals huisartsen, tandartsen, fysiotherapeuten, apothekers, maatschappelijk werkers of wijkverpleegkundigen.
Bent u op zoek naar een ruimte voor uw bedrijf, in een state-of-the art gezondheidscentrum, dichtbij de kenmerkende watertoren in Aalsmeer? Neem dan contact met ons op voor meer informatie!
Voor meer informatie kunt u de website van het project bezoeken op: roerdomplaan . nl
Kaart
Kaart laden...
Kadastrale grens
Bebouwing
Reistijd
Krijg inzicht in de bereikbaarheid van dit object vanuit bijvoorbeeld een openbaar vervoer station of vanuit een adres.