Herenhof 58-60 2402 DN Alphen aan den Rijn
€ 45.000 /jr
Omschrijving
REPRESENTATIEVE WINKELRUIMTE OP ZICHTLOCATIE MIDDEN IN WINKELCENTRUM “DE HERENHOF”
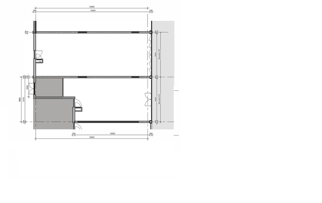
- Oppervlakte circa 162 m² BVO, 155 m² VVO
- Frontbreedte van ca. 12 meter
- Gratis parkeergelegenheid in de directe omgeving van het pand
- Gelegen op zichtlocatie midden in winkelcentrum “De Herenhof”
- Indien wenselijk zijn de ruimtes ook separaat van elkaar te huur
ALGEMEEN
Het betreft hier een winkelruimte gelegen op een zichtlocatie in de overdekte passage van winkelcentrum “De Herenhof”. De omgeving biedt een hoog voorzieningsniveau, onder andere de Albert Heijn, Gall & Gall, Jumbo, Hema, DA Drogist, Kruidvat, Zeeman en Pearle opticiens zijn gevestigd in dit winkelcentrum.
BEREIKBAARHEID
De ruimte is gesitueerd nabij de doorgaande weg Eisenhowerlaan, goede uitvalswegen zorgen voor een uitstekende verbindingen met bijvoorbeeld Schiphol, Utrecht en Amsterdam.
Parkeren is mogelijk op de twee grote parkeerterreinen van winkelcentrum “De Herenhof”.
Per openbaar vervoer is het object goed te bereiken, dankzij de op enkele minuten loopafstand gelegen bushalten van waaruit het NS station van Alphen goed bereikbaar is. Tevens biedt het busnet goede aansluitingen met bijvoorbeeld Schiphol Airport en de in de nabijheid gelegen plaatsen als Leiden, Leimuiden, Woubrugge en Bodegraven.
GEBRUIKSMOGELIJKHEDEN
Zie bijgaand bestemmingsplan.
OPPERVLAKTE
De totale oppervlakte bedraagt 162 m² BVO, 155 m² VVO
Herenhof 58 bedraagt 96 m² BVO, 92 m² VVO
Herenhof 60 bedraagt 66 m² BVO, 62 m² VVO
SERVICEKOSTEN
Voorschot servicekosten bedraagt € 2.003,64 per jaar excl. btw, prijspeil 2025
PROMOTIEBIJDRAGE
De promotiebijdrage bedraagt € 1.343,64 per jaar excl. btw, prijspeil 2025.
SEPARATE VERHUUR
Indien wenselijk zijn de panden ook afzonderlijk van elkaar te huur tegen onderstaande conditities:
Herenhof 58:
Huurprijs : € 27.500,- per jaar excl. btw
Servicekosten : € 1.186,03 per jaar excl. btw
Promotiekosten : € 795,35 per jaar excl. btw
Herenhof 60:
Huurprijs : € 19.500,- per jaar excl. btw
Servicekosten : € 817,61 per jaar excl. btw
Promotiekosten : € 548,29 per jaar excl. btw
HUURPRIJSHERZIENING
Jaarlijks, op 01 november, op basis van de wijziging van het maandindexcijfer volgens de consumentenprijsindex (CPI) reeks “alle huishoudens” (2015=100), gepubliceerd door het Centraal Bureau voor de Statistiek (CBS).
OPLEVERING
In overleg.
ZEKERHEIDSTELLING
Overeenkomstig het model opgesteld door de Raad voor Onroerende Zaken in samenwerking met de Nederlandse Vereniging van Banken. Voor bestaande ondernemers (met positieve cijfers over de afgelopen jaren) een bankgarantie ter grootte van een betalingsverplichting van 3 maanden. Voor startende ondernemers een bankgarantie ter grootte van een betalingsverplichting van 6 maanden en een positieve beoordeling van het ondernemersplan.
OPLEVERINGSNIVEAU
In beginsel wordt het pand casco aangeboden. Indien wenselijk kunnen de aanwezige zaken bovenop het casco worden overgenomen van de huidige huurder.
HUUROVEREENKOMST
Huurovereenkomst volgens standaard model van de Raad voor Onroerende Zaken (ROZ) met bijbehorende algemene bepalingen, zoals gehanteerd door eigenaresse op basis van het model.
BTW
Huurder garandeert aan verhuurder dat hij het huurobject per datum van ingang van de huurovereenkomst voor tenminste het bij de wet vastgestelde minimumpercentage blijvend zal gebruiken voor doeleinden die recht geven op aftrek van btw.
Huurder zal op eerste verzoek van verhuurder per ommegaande een onherroepelijke volmacht aan verhuurder en zijn eventuele rechtsopvolger(s) verlenen om mede namens hem een optieverzoek tot belaste verhuur in te dienen.
Indien huurder echter niet (meer) voldoet aan de wettelijke criteria voor belaste verhuur of een optieverzoek tot belaste verhuur niet (meer) door de inspecteur der belastingen wordt gehonoreerd, dan zal huurder het gehele daardoor financieel te lijden nadeel voor verhuurder aan verhuurder vergoeden, overeenkomstig de ter zake op te nemen bijzondere bepalingen van de huurovereenkomst.
HUURTERMIJN
5 jaar met aansluitend een optietermijn van 5 jaar, of anders in overleg.
HUURPRIJSBETALING
De betaling van de huur, servicekosten, promotiekosten en de verschuldigde omzetbelasting per maand vooruit te voldoen.
BIJZONDERHEDEN
Elke transactie behoeft de nadrukkelijke goedkeuring van eigenaar.
- Oppervlakte circa 162 m² BVO, 155 m² VVO
- Frontbreedte van ca. 12 meter
- Gratis parkeergelegenheid in de directe omgeving van het pand
- Gelegen op zichtlocatie midden in winkelcentrum “De Herenhof”
- Indien wenselijk zijn de ruimtes ook separaat van elkaar te huur
ALGEMEEN
Het betreft hier een winkelruimte gelegen op een zichtlocatie in de overdekte passage van winkelcentrum “De Herenhof”. De omgeving biedt een hoog voorzieningsniveau, onder andere de Albert Heijn, Gall & Gall, Jumbo, Hema, DA Drogist, Kruidvat, Zeeman en Pearle opticiens zijn gevestigd in dit winkelcentrum.
BEREIKBAARHEID
De ruimte is gesitueerd nabij de doorgaande weg Eisenhowerlaan, goede uitvalswegen zorgen voor een uitstekende verbindingen met bijvoorbeeld Schiphol, Utrecht en Amsterdam.
Parkeren is mogelijk op de twee grote parkeerterreinen van winkelcentrum “De Herenhof”.
Per openbaar vervoer is het object goed te bereiken, dankzij de op enkele minuten loopafstand gelegen bushalten van waaruit het NS station van Alphen goed bereikbaar is. Tevens biedt het busnet goede aansluitingen met bijvoorbeeld Schiphol Airport en de in de nabijheid gelegen plaatsen als Leiden, Leimuiden, Woubrugge en Bodegraven.
GEBRUIKSMOGELIJKHEDEN
Zie bijgaand bestemmingsplan.
OPPERVLAKTE
De totale oppervlakte bedraagt 162 m² BVO, 155 m² VVO
Herenhof 58 bedraagt 96 m² BVO, 92 m² VVO
Herenhof 60 bedraagt 66 m² BVO, 62 m² VVO
SERVICEKOSTEN
Voorschot servicekosten bedraagt € 2.003,64 per jaar excl. btw, prijspeil 2025
PROMOTIEBIJDRAGE
De promotiebijdrage bedraagt € 1.343,64 per jaar excl. btw, prijspeil 2025.
SEPARATE VERHUUR
Indien wenselijk zijn de panden ook afzonderlijk van elkaar te huur tegen onderstaande conditities:
Herenhof 58:
Huurprijs : € 27.500,- per jaar excl. btw
Servicekosten : € 1.186,03 per jaar excl. btw
Promotiekosten : € 795,35 per jaar excl. btw
Herenhof 60:
Huurprijs : € 19.500,- per jaar excl. btw
Servicekosten : € 817,61 per jaar excl. btw
Promotiekosten : € 548,29 per jaar excl. btw
HUURPRIJSHERZIENING
Jaarlijks, op 01 november, op basis van de wijziging van het maandindexcijfer volgens de consumentenprijsindex (CPI) reeks “alle huishoudens” (2015=100), gepubliceerd door het Centraal Bureau voor de Statistiek (CBS).
OPLEVERING
In overleg.
ZEKERHEIDSTELLING
Overeenkomstig het model opgesteld door de Raad voor Onroerende Zaken in samenwerking met de Nederlandse Vereniging van Banken. Voor bestaande ondernemers (met positieve cijfers over de afgelopen jaren) een bankgarantie ter grootte van een betalingsverplichting van 3 maanden. Voor startende ondernemers een bankgarantie ter grootte van een betalingsverplichting van 6 maanden en een positieve beoordeling van het ondernemersplan.
OPLEVERINGSNIVEAU
In beginsel wordt het pand casco aangeboden. Indien wenselijk kunnen de aanwezige zaken bovenop het casco worden overgenomen van de huidige huurder.
HUUROVEREENKOMST
Huurovereenkomst volgens standaard model van de Raad voor Onroerende Zaken (ROZ) met bijbehorende algemene bepalingen, zoals gehanteerd door eigenaresse op basis van het model.
BTW
Huurder garandeert aan verhuurder dat hij het huurobject per datum van ingang van de huurovereenkomst voor tenminste het bij de wet vastgestelde minimumpercentage blijvend zal gebruiken voor doeleinden die recht geven op aftrek van btw.
Huurder zal op eerste verzoek van verhuurder per ommegaande een onherroepelijke volmacht aan verhuurder en zijn eventuele rechtsopvolger(s) verlenen om mede namens hem een optieverzoek tot belaste verhuur in te dienen.
Indien huurder echter niet (meer) voldoet aan de wettelijke criteria voor belaste verhuur of een optieverzoek tot belaste verhuur niet (meer) door de inspecteur der belastingen wordt gehonoreerd, dan zal huurder het gehele daardoor financieel te lijden nadeel voor verhuurder aan verhuurder vergoeden, overeenkomstig de ter zake op te nemen bijzondere bepalingen van de huurovereenkomst.
HUURTERMIJN
5 jaar met aansluitend een optietermijn van 5 jaar, of anders in overleg.
HUURPRIJSBETALING
De betaling van de huur, servicekosten, promotiekosten en de verschuldigde omzetbelasting per maand vooruit te voldoen.
BIJZONDERHEDEN
Elke transactie behoeft de nadrukkelijke goedkeuring van eigenaar.
Kenmerken
Overdracht
- Huurprijs
- € 45.000 per jaar
- Servicekosten
- € 2.003 per maand (21% BTW van toepassing)
- Aangeboden sinds
-
- Status
- Beschikbaar
- Aanvaarding
- In overleg
Bouw
- Hoofdfunctie
- Winkel
- Soort bouw
- Bestaande bouw
- Bouwperiode
- 1981-1990
Oppervlakten
- Oppervlakte
- 162 m² (in units vanaf 66 m²)
- Verkoopvloeroppervlakte
- 155 m²
- Breedte gevel
- 12 m
Indeling
- Aantal bouwlagen
- 1 bouwlaag
Energie
- Energielabel
- A++
Omgeving
- Ligging
- Winkelcentrum en in woonwijk
- Bereikbaarheid
- Bushalte op minder dan 500 m, NS Intercitystation op 2000 m tot 3000 m en snelwegafrit op 4000 m tot 5000 m
- Bijdrage winkeliersvereniging
- Ja
- Welstandsklasse
- A2
NVM makelaar
Foto's