Utrechtsestraat 43 3811 LA Amersfoort

€ 55.000 /jr

Omschrijving

LOCATIE

Gelegen in de sfeervolle binnenstad van Amersfoort ligt de Utrechtsestraat 43 aan één van de drukste en meest karaktervolle winkelstraten van de stad. De Utrechtsestraat vormt al eeuwenlang de verbinding tussen het station en het historische centrum en trekt dagelijks een constante stroom voorbijgangers.

De straat wordt gekenmerkt door een aantrekkelijke mix van boetieks, speciaalzaken en gezellige horecagelegenheden.

Winkels als Omoda, Costes, Douglas Hema en MC Donalds zorgen voor vaste bezoekers in de straat. De straat wordt gekenmerkt voor haar prettige, levendige sfeer. Dankzij de looproute richting onder andere de Onze Lieve Vrouwetoren profiteert deze locatie van veel zichtbaarheid en natuurlijke aanloop.

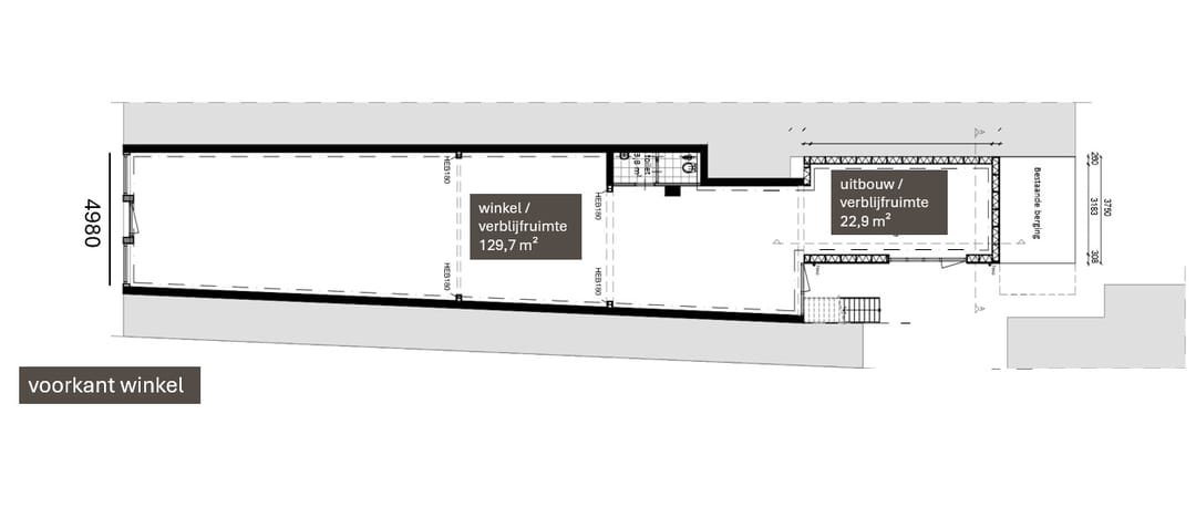
METRAGE

Begane grond winkelruimte ca. 130 m² b.v.o. - begane grond secundair ca. 23 m² b.v.o. - totaal ca. 153 m² b.v.o.

HUURGEGEVENS

Huurprijs: €55.000,-- per jaar, te vermeerderen met BTW.
Datum aanvaarding: per direct.
Huurperiode: 10 jaar plus 2 x 5 verlengingsjaren.
Huurbetaling: per maand vooruit.
Indexering: jaarlijks conform CPI reeks “Alle Huishoudens” (2025=100) / het meest recente basisjaar.
Huurovereenkomst: ROZ Model 2022, aangevuld met (complex specifieke) bepalingen van verhuurder.
Zekerheidsstelling: bankgarantie/waarborgsom ten bedrage van 3 maanden huur, te vermeerderen met de geldende BTW.
Staat van oplevering: het gehuurde wordt door verhuurder aan huurder in principe in casco staat, inclusief nieuwe pui, ontdaan van handelsvoorraden, losse interieurdelen; voor het overige leeg en bezemschoon opgeleverd.
Bijzonderheid: het gehuurde is een monument.
Voorbehouden: definitieve goedkeuring van verhuurder.

Kenmerken

Overdracht

Huurprijs
€ 55.000 per jaar
Aangeboden sinds
Status
Beschikbaar
Aanvaarding
In overleg

Bouw

Hoofdfunctie
Winkel met showroom
Soort bouw
Bestaande bouw
Bouwjaar
1905

Oppervlakten

Oppervlakte
153 m²
Verkoopvloeroppervlakte
153 m²
Breedte gevel
5 m

Indeling

Aantal bouwlagen
1 bouwlaag

Energie

Energielabel
Niet beschikbaar

Omgeving

Bijdrage winkeliersvereniging
Nee

Kaart

Kaart laden...

Kadastrale grens Bebouwing

Reistijd

Krijg inzicht in de bereikbaarheid van dit object vanuit bijvoorbeeld een openbaar vervoer station of vanuit een adres.

Utrechtsestraat 43

€ 55.000 /jr