Sint Jacobsstraat 22-A 1012 NC Amsterdam
€ 449.500 k.k.
Omschrijving
Veelzijdige ruimte in Amsterdam Centrum!
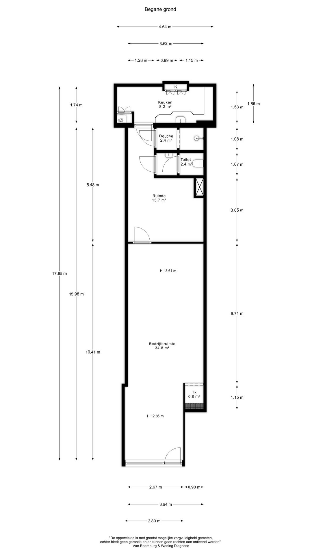
Tussen de wereldberoemde Nieuwezijds Voorburgwal en de Nieuwendijk in, ligt de Sint Jacobsstraat: een karakteristiek straatje met beschermd stadsgezicht. De ruimte die aangeboden wordt, betreft ca. 64m² VVO, op de begane grond van een pand uit het jaar 1774. Deze ruimte is lang in gebruik geweest als winkel en wacht nu op een nieuw leven, met legio aan mogelijkheden. Zo beschikt de ruimte over een diepte van bijna 18 meter, een vrije hoogte van maar liefst 3,61 meter, een grote etalageruit én een zeer breed bestemmingsplan.
Op eigen grond (géén erfpacht!) en op 5 minuten lopen van Amsterdam Centraal, ligt deze kans op zijn nieuwe eigenaar te wachten.
VOORZIENINGEN/BIJZONDERHEDEN
- Eigen grond, oftewel: géén erfpacht
- Energielabel: A++
- Grote etalageruit van 2,74 meter breed
- Vrije hoogte van maar liefst 3,61 meter
- Keuken
- Toilet
- Douche aansluiting
- Cv-installatie (cv-ketel te vervangen)
BESTEMMING
- Wonen (na verkrijgen vergunning en toestemming VvE)
- Kantoren met of zonder baliefunctie
- Galeries
- Detailhandel, m.u.v. souvenirwinkels, minisupermarkten, smart-, head-, seed- en growshops
- Consumentverzorgende dienstverlening, m.u.v. massagesalons, geldwisselkantoren en telefoneerinrichtingen
- Bedrijven die vallen binnen milieuhindercategorie 1 of 2 van de 'Staat van Inrichtingen'
- Voorzieningen, m.u.v. automatenhallen
- Inpandige fietsenstallingen
LOCATIE EN BEREIKBAARHEID
De Sint Jacobsstraat ligt op een geweldige locatie in het historische centrum van Amsterdam, op 5 minuten lopen van station Amsterdam Centraal. Het betreft een zijstraat van de wereldberoemde Nieuwezijds Voorburgwal en de Nieuwendijk, waar het wemelt van de leuke winkels en gezellige horeca. In de directe omgeving van het pand vind je onder andere een geprezen Italiaans restaurant, een Only en een Jamin.
PARKEREN
In de buurt zijn diverse parkeergarages te vinden, met als dichtstbijzijnde garage Q-park Nieuwendijk, op 1 minuut lopen.
VRAAGPRIJS
€ 449.500,- k.k.
BIJDRAGE VVE
Nader vast te stellen (momenteel inactieve VvE, met 1 andere eigenaar).
AANVAARDING/OPLEVERING
Per direct mogelijk.
KADASTRALE INFORMATIE
Gemeente Amsterdam, sectie F, nummer 7426 A1.
De op deze website getoonde vrijblijvende informatie is met zorg door ons samengesteld op basis van gegevens van de verkoper (en/of derden). Wij staan niet in voor de juistheid of volledigheid daarvan. Wij adviseren u en/of uw makelaar om contact met ons op te nemen bij interesse in een van onze bedrijfspanden.
Wij zijn niet verantwoordelijk voor de inhoud van de websites waarnaar verwezen wordt.
Tussen de wereldberoemde Nieuwezijds Voorburgwal en de Nieuwendijk in, ligt de Sint Jacobsstraat: een karakteristiek straatje met beschermd stadsgezicht. De ruimte die aangeboden wordt, betreft ca. 64m² VVO, op de begane grond van een pand uit het jaar 1774. Deze ruimte is lang in gebruik geweest als winkel en wacht nu op een nieuw leven, met legio aan mogelijkheden. Zo beschikt de ruimte over een diepte van bijna 18 meter, een vrije hoogte van maar liefst 3,61 meter, een grote etalageruit én een zeer breed bestemmingsplan.
Op eigen grond (géén erfpacht!) en op 5 minuten lopen van Amsterdam Centraal, ligt deze kans op zijn nieuwe eigenaar te wachten.
VOORZIENINGEN/BIJZONDERHEDEN
- Eigen grond, oftewel: géén erfpacht
- Energielabel: A++
- Grote etalageruit van 2,74 meter breed
- Vrije hoogte van maar liefst 3,61 meter
- Keuken
- Toilet
- Douche aansluiting
- Cv-installatie (cv-ketel te vervangen)
BESTEMMING
- Wonen (na verkrijgen vergunning en toestemming VvE)
- Kantoren met of zonder baliefunctie
- Galeries
- Detailhandel, m.u.v. souvenirwinkels, minisupermarkten, smart-, head-, seed- en growshops
- Consumentverzorgende dienstverlening, m.u.v. massagesalons, geldwisselkantoren en telefoneerinrichtingen
- Bedrijven die vallen binnen milieuhindercategorie 1 of 2 van de 'Staat van Inrichtingen'
- Voorzieningen, m.u.v. automatenhallen
- Inpandige fietsenstallingen
LOCATIE EN BEREIKBAARHEID
De Sint Jacobsstraat ligt op een geweldige locatie in het historische centrum van Amsterdam, op 5 minuten lopen van station Amsterdam Centraal. Het betreft een zijstraat van de wereldberoemde Nieuwezijds Voorburgwal en de Nieuwendijk, waar het wemelt van de leuke winkels en gezellige horeca. In de directe omgeving van het pand vind je onder andere een geprezen Italiaans restaurant, een Only en een Jamin.
PARKEREN
In de buurt zijn diverse parkeergarages te vinden, met als dichtstbijzijnde garage Q-park Nieuwendijk, op 1 minuut lopen.
VRAAGPRIJS
€ 449.500,- k.k.
BIJDRAGE VVE
Nader vast te stellen (momenteel inactieve VvE, met 1 andere eigenaar).
AANVAARDING/OPLEVERING
Per direct mogelijk.
KADASTRALE INFORMATIE
Gemeente Amsterdam, sectie F, nummer 7426 A1.
De op deze website getoonde vrijblijvende informatie is met zorg door ons samengesteld op basis van gegevens van de verkoper (en/of derden). Wij staan niet in voor de juistheid of volledigheid daarvan. Wij adviseren u en/of uw makelaar om contact met ons op te nemen bij interesse in een van onze bedrijfspanden.
Wij zijn niet verantwoordelijk voor de inhoud van de websites waarnaar verwezen wordt.
Kenmerken
Overdracht
- Vraagprijs
- € 449.500 kosten koper
- Oorspronkelijke vraagprijs
- € 499.500 kosten koper
- Aangeboden sinds
-
- Status
- Beschikbaar
- Aanvaarding
- Per direct beschikbaar
Bouw
- Hoofdfunctie
- Winkel met showroom
- Mogelijke functie(s)
- Kantoorruimte en culturele instelling
- Soort bouw
- Bestaande bouw
- Bouwjaar
- 1774
Oppervlakten
- Oppervlakte
- 73 m²
- Verkoopvloeroppervlakte
- 64 m²
Indeling
- Aantal bouwlagen
- 1 bouwlaag
Energie
- Energielabel
- A++
Omgeving
- Ligging
- Stadscentrum/dorpskern, in woonwijk en stationslocatie
- Bereikbaarheid
- Bushalte op minder dan 500 m, metrohalte op minder dan 500 m, NS Intercitystation op minder dan 500 m, snelwegafrit op 5000 m of meer en Tramhalte op minder dan 500 m
- Bijdrage winkeliersvereniging
- Nee
- Welstandsklasse
- A2
Foto's
Plattegrond
Begane grond
Vliering