Omschrijving
OBJECT
Het pand is gelegen aan de Ferdinand Bolstraat in Amsterdam.
Detailhandel in De Pijp wordt gekenmerkt door een unieke mix van lokale, onafhankelijke winkels, moderne conceptstores en bekende retailmerken. Langs de belangrijkste winkelstraten en in de directe omgeving van de beroemde Albert Cuypmarkt vinden bezoekers alles, van ambachtelijke bedrijven tot innovatieve retail-start-ups. Dit diverse aanbod trekt een breed publiek, waaronder lokale bewoners, dagjesmensen en internationale toeristen.
In de directe omgeving vind je andere retailers zoals America Today, HEMA, EyeWish, Pearle, Rituals, Jumbo, Søstrene Grene, Joe & The Juice, Hunkemöller en nog veel meer.
RUIMTE
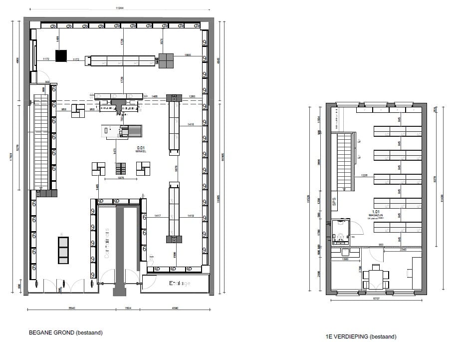
Totale oppervlakte: ca. 231 m² BVO
Begane grond: ca. 176 m² BVO
Eerste verdieping: ca. 55 m² BVO
VOORWAARDEN
Huurprijs: € 145.000 exclusief btw
Huurperiode: 10 jaar + 2 x 5 jaar verlengingsopties
Opleverdatum: In overleg
Betaling: Per kwartaal, vooruit
Huurovereenkomst: Gebaseerd op het ROZ-model 2012 inclusief bijzondere bepalingen van verhuurder
Zekerheidstelling: Bankgarantie of waarborgsom ter grootte van drie maanden huur, te verhogen met btw, afhankelijk van de financiële solvabiliteit van huurder
Indexering: Jaarlijks, volgens CBS/CPI alle huishoudens 2015=100, voor het eerst één jaar na ingangsdatum
Opleveringsstaat: In overleg. Verhuurder verhuurt uitsluitend de casco-ruimte
Voorbehoud: Onder voorbehoud van goedkeuring verhuurder
Courtage: Insight Real Estate treedt op voor de verhuur van dit object. Bij een succesvolle transactie wordt geen courtage in rekening gebracht
Het pand is gelegen aan de Ferdinand Bolstraat in Amsterdam.
Detailhandel in De Pijp wordt gekenmerkt door een unieke mix van lokale, onafhankelijke winkels, moderne conceptstores en bekende retailmerken. Langs de belangrijkste winkelstraten en in de directe omgeving van de beroemde Albert Cuypmarkt vinden bezoekers alles, van ambachtelijke bedrijven tot innovatieve retail-start-ups. Dit diverse aanbod trekt een breed publiek, waaronder lokale bewoners, dagjesmensen en internationale toeristen.
In de directe omgeving vind je andere retailers zoals America Today, HEMA, EyeWish, Pearle, Rituals, Jumbo, Søstrene Grene, Joe & The Juice, Hunkemöller en nog veel meer.
RUIMTE
Totale oppervlakte: ca. 231 m² BVO
Begane grond: ca. 176 m² BVO
Eerste verdieping: ca. 55 m² BVO
VOORWAARDEN
Huurprijs: € 145.000 exclusief btw
Huurperiode: 10 jaar + 2 x 5 jaar verlengingsopties
Opleverdatum: In overleg
Betaling: Per kwartaal, vooruit
Huurovereenkomst: Gebaseerd op het ROZ-model 2012 inclusief bijzondere bepalingen van verhuurder
Zekerheidstelling: Bankgarantie of waarborgsom ter grootte van drie maanden huur, te verhogen met btw, afhankelijk van de financiële solvabiliteit van huurder
Indexering: Jaarlijks, volgens CBS/CPI alle huishoudens 2015=100, voor het eerst één jaar na ingangsdatum
Opleveringsstaat: In overleg. Verhuurder verhuurt uitsluitend de casco-ruimte
Voorbehoud: Onder voorbehoud van goedkeuring verhuurder
Courtage: Insight Real Estate treedt op voor de verhuur van dit object. Bij een succesvolle transactie wordt geen courtage in rekening gebracht
Kaart
Kaart laden...
Kadastrale grens
Bebouwing
Reistijd
Krijg inzicht in de bereikbaarheid van dit object vanuit bijvoorbeeld een openbaar vervoer station of vanuit een adres.