Omschrijving
Representatieve turnkey beauty & wellness ruimte op levendige locatie in Amsterdam Oud-West
Gelegen aan de dynamische en drukbezochte Bilderdijkstraat, bevindt zich deze volledig ingerichte en recent gerenoveerde commerciële ruimte. De Bilderdijkstraat vormt één van de belangrijkste winkel- en horecastraten van Amsterdam Oud-West en kenmerkt zich door een sterke mix van lokale ondernemers, landelijke retailers en hoogwaardige horecaconcepten zoals Albert Heijn, Decathlon, Coolblue, Intertoys en Karavaan. De continue passantenstroom en de nabijheid van onder andere de Ten Katemarkt en de Kinkerstraat maken dit tot een uitstekende vestigingslocatie.
OBJECT
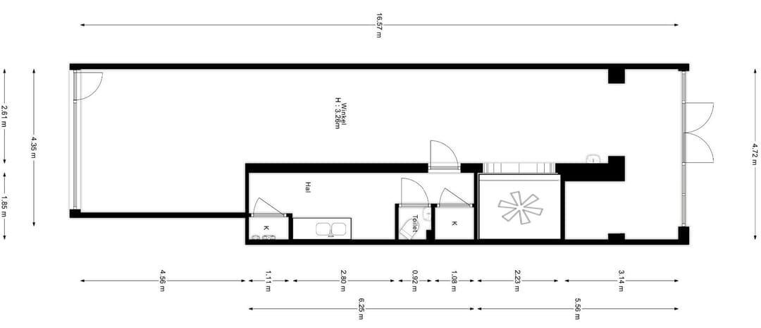
Het betreft een commerciële ruimte op de begane grond met een totaal vloeroppervlak van circa 72 m² VVO. Het object is begin 2024 volledig gerenoveerd en momenteel ingericht als hoogwaardige beauty- en wellnesslocatie. Dankzij de complete afwerking en aanwezige voorzieningen is sprake van een turnkey opleveringsniveau, waardoor een nieuwe gebruiker direct kan starten.
De ruimte beschikt onder andere over:
* Sauna-zoutkamer en Finse sauna
* Volledig uitgeruste trimsalon
* Pedicure- en manicurefaciliteiten
* Wenkbrauw- en kapperswerkplekken
* Behandelkamers voor schoonheids- en massagetherapie
* Volledig ingerichte keuken
Deze indeling maakt het object uitermate geschikt voor beauty-, wellness- of aanverwante dienstverlenende concepten.
LOCATIE
De Bilderdijkstraat is een gevestigde retail- en horecastraat in Amsterdam Oud-West, met een sterke lokale en regionale aantrekkingskracht. In de directe omgeving bevinden zich diverse winkels, speciaalzaken en horecagelegenheden, wat zorgt voor een levendig straatbeeld en een stabiele bezoekersstroom gedurende de gehele week.
HUURGEGEVENS
* Huidige huurprijs: € 37.446,84 per jaar, te vermeerderen met BTW
* Sleutelgeld: € 55.000,- te vermeerderen met BTW
* Huurtermijn: 5 jaar + 5 optiejaren
* Ingangsdatum: In overleg
* Betaling: Per maand, vooruit
* Zekerheidstelling: Waarborgsom ter grootte van 3 maanden huur + BTW
* Indexatie: Jaarlijks op basis van CPI (2015=100)
* Huurovereenkomst: ROZ-model 2012, met aanvullende verhuurdersvoorwaarden.
OPLEVERINGSNIVEAU
Het object wordt opgeleverd in de huidige staat, inclusief de aanwezige inventaris en inrichting. Hierdoor is sprake van een direct operationele ruimte met minimale aanvangsinvestering.
BIJZONDERHEDEN
* Volledig gerenoveerd (2024)
* Turnkey beauty & wellness concept
* Gelegen op drukke winkelstraat in Oud-West
* Goede zichtbaarheid en passantenstroom
* Overname van hoogwaardige inventaris
VOORBEHOUD
Verhuur geschiedt onder voorbehoud van goedkeuring door verhuurder en huidige huurder.
Gelegen aan de dynamische en drukbezochte Bilderdijkstraat, bevindt zich deze volledig ingerichte en recent gerenoveerde commerciële ruimte. De Bilderdijkstraat vormt één van de belangrijkste winkel- en horecastraten van Amsterdam Oud-West en kenmerkt zich door een sterke mix van lokale ondernemers, landelijke retailers en hoogwaardige horecaconcepten zoals Albert Heijn, Decathlon, Coolblue, Intertoys en Karavaan. De continue passantenstroom en de nabijheid van onder andere de Ten Katemarkt en de Kinkerstraat maken dit tot een uitstekende vestigingslocatie.
OBJECT
Het betreft een commerciële ruimte op de begane grond met een totaal vloeroppervlak van circa 72 m² VVO. Het object is begin 2024 volledig gerenoveerd en momenteel ingericht als hoogwaardige beauty- en wellnesslocatie. Dankzij de complete afwerking en aanwezige voorzieningen is sprake van een turnkey opleveringsniveau, waardoor een nieuwe gebruiker direct kan starten.
De ruimte beschikt onder andere over:
* Sauna-zoutkamer en Finse sauna
* Volledig uitgeruste trimsalon
* Pedicure- en manicurefaciliteiten
* Wenkbrauw- en kapperswerkplekken
* Behandelkamers voor schoonheids- en massagetherapie
* Volledig ingerichte keuken
Deze indeling maakt het object uitermate geschikt voor beauty-, wellness- of aanverwante dienstverlenende concepten.
LOCATIE
De Bilderdijkstraat is een gevestigde retail- en horecastraat in Amsterdam Oud-West, met een sterke lokale en regionale aantrekkingskracht. In de directe omgeving bevinden zich diverse winkels, speciaalzaken en horecagelegenheden, wat zorgt voor een levendig straatbeeld en een stabiele bezoekersstroom gedurende de gehele week.
HUURGEGEVENS
* Huidige huurprijs: € 37.446,84 per jaar, te vermeerderen met BTW
* Sleutelgeld: € 55.000,- te vermeerderen met BTW
* Huurtermijn: 5 jaar + 5 optiejaren
* Ingangsdatum: In overleg
* Betaling: Per maand, vooruit
* Zekerheidstelling: Waarborgsom ter grootte van 3 maanden huur + BTW
* Indexatie: Jaarlijks op basis van CPI (2015=100)
* Huurovereenkomst: ROZ-model 2012, met aanvullende verhuurdersvoorwaarden.
OPLEVERINGSNIVEAU
Het object wordt opgeleverd in de huidige staat, inclusief de aanwezige inventaris en inrichting. Hierdoor is sprake van een direct operationele ruimte met minimale aanvangsinvestering.
BIJZONDERHEDEN
* Volledig gerenoveerd (2024)
* Turnkey beauty & wellness concept
* Gelegen op drukke winkelstraat in Oud-West
* Goede zichtbaarheid en passantenstroom
* Overname van hoogwaardige inventaris
VOORBEHOUD
Verhuur geschiedt onder voorbehoud van goedkeuring door verhuurder en huidige huurder.
Kaart
Kaart laden...
Kadastrale grens
Bebouwing
Reistijd
Krijg inzicht in de bereikbaarheid van dit object vanuit bijvoorbeeld een openbaar vervoer station of vanuit een adres.