Molengang 230-238 1761 BW Anna Paulowna
€ 2.950 /mnd
Omschrijving
Uniek in het winkelcentrum van Anna Paulowna.
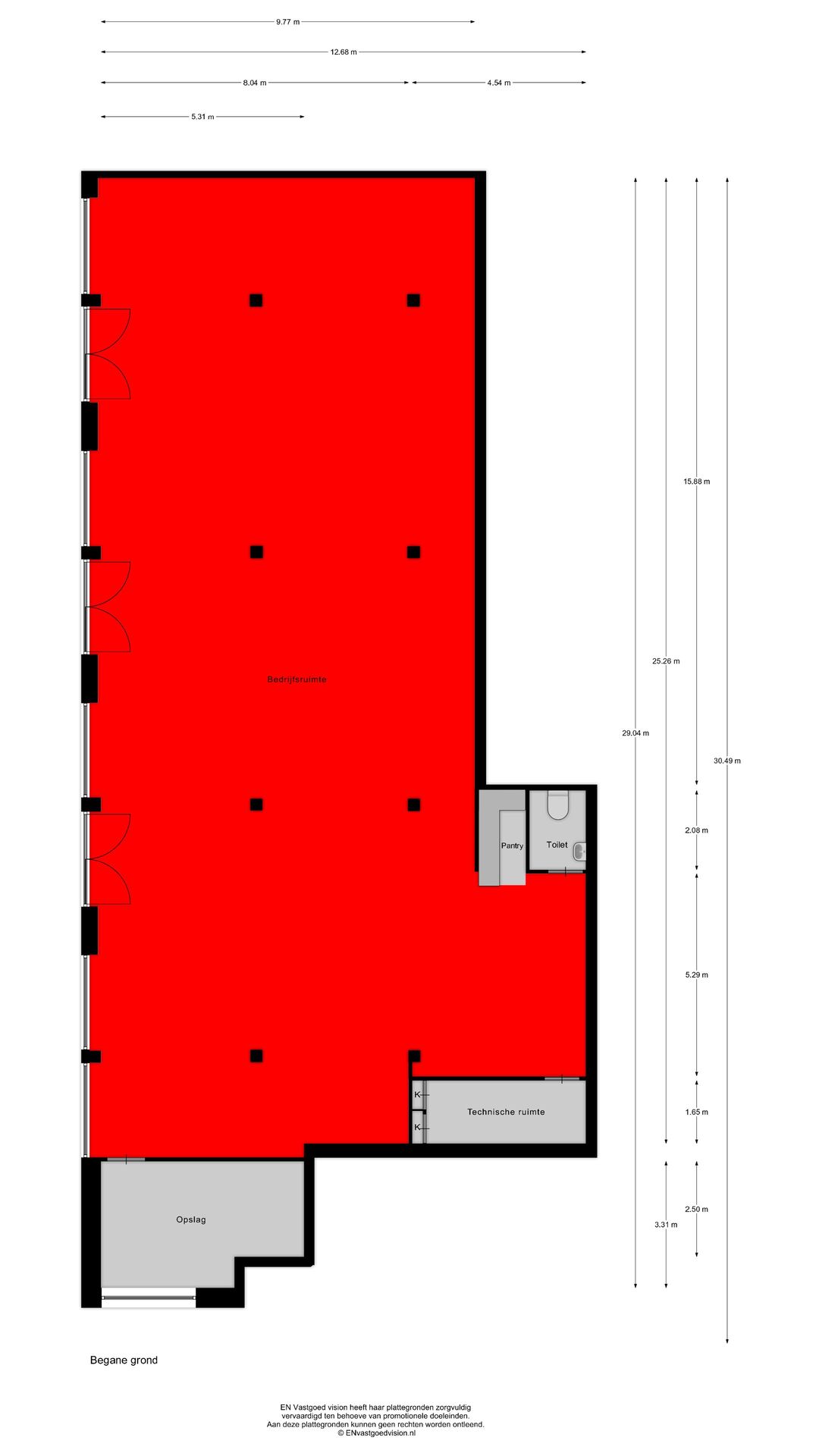
Een winkelruimte van ca. 310 m² BVO gelegen in winkelcentrum “Molensluis” met een zeer riante frontbreedte van maar liefst ca. 26 meter! Voor het object zijn voldoende gratis parkeerplekken gelegen.
De winkelruimte is voorzien van een fraai afbouwpakket en voorzien van alle voorzieningen zoals vloerverwarming, koeling en maar liefst drie toegangsdeuren!
Winkelcentrum Molensluis is razend populair bij de inwoners van Anna Paulowna en de omringende dorpen. Dit is o.a. terug te zien in het huidige winkelaanbod bestaande uit winkelketens zoals Vomar, Albert Heijn, Action, HEMA, JUMBO, LIDL, Pearle, Intercity Boutiques, Kruidvat en DA Drogisterij, maar ook regionale winkels zoals een slager, Poolse supermarkt, kaaswinkel en diverse kledingwinkels.
De drie grote supermarkten (Jumbo, Vomar en Lidl) zijn in 2023 zelfs uitgebreid om nog meer consumenten in hun behoefte te kunnen voorzien. De uitbreiding van de supermarkten zal een positieve bijdrage leveren aan de stijging van de bezoekersaantallen en omzet van de winkeliers in het winkelcentrum.
De winkelruimte is eventueel in kleinere metrages te huren. Informeer bij de makelaar naar de mogelijkheden.
Huurprijs
€ 2.950,- per maand, excl. BTW.
Servicekosten
De servicekosten bedragen € 100,- excl. BTW per maand op basis van een verrekenbaar voorschot met nacalculatie t.b.v. bijdrage VVE. Tevens wordt Huurder zelf contribuant van de Nutsleveranciers.
Opleveringsniveau
Het object wordt in de huidige staat opgeleverd, doch als casco verhuurd. Alle aanwezige installaties/voorzieningen behoren niet tot het gehuurde.
Installaties
- Gas, water en elektra aansluitingen;
- PVC vloer;
- Verlichting;
- Vloerverwarming;
- Koeling;
- Pantry v.v. inbouwkoelkast;
- Toilet met fonteintje;
- Alarminstallatie;
- Brandblusvoorzieningen;
- 3 toegangsdeuren.
Parkeren
Gratis parkeren op het parkeerterrein direct voor de winkel. Tevens bevinden zich nog twee parkeerterrein rondom de winkel met voldoende parkeerplaatsen.
Bereikbaarheid
De winkelruimte is zowel met de auto, als met het openbaar vervoer en de fiets goed te bereiken. Via de N249 zijn de N9 (Den Helder – Alkmaar) en de N99 (Den Helder – Den Oever) eenvoudig te bereiken. De dichtstbijzijnde bushalte bevindt zich op circa 250 meter loopafstand.
Kadastrale gegevens
Gemeente: Anna Paulowna.
Sectie: L.
Nummer: 6235 A-3 t/m A-10.
Bouwjaar
2013, conform de BAG viewer van het Kadaster.
Energielabel
Van het aangeboden object is energielabel “A+++” beschikbaar.
Bestemming
Bij de gemeente Hollands Kroon valt het perceel binnen het bestemmingsplan “Anna Paulowna”. Dit houdt in dat het perceel bestemd is voor “Centrum-1”. Bij twijfel over het toestaan van uw bedrijfsvoering adviseren wij u zelf contact op te nemen met de Gemeente Hollands Kroon of via het Omgevingsloket.
Model overeenkomst
Model door de Raad voor Onroerende Zaken (ROZ) in april 2025 vastgesteld.
Zekerheidstelling
Een bankgarantie of waarborgsom ter grootte van drie maanden huurverplichting (inclusief de verschuldigde BTW en servicekosten en de daarover verschuldigde BTW*).
*De BTW is uitsluitend bedoeld om de hoogte van de zekerheidsstelling te bepalen en kan niet in de BTW administratie worden opgenomen.
Huurtermijn
Uitgangspunt is 5 + 5 jaar, afwijkende termijn in overleg.
Aanvaarding
Kan per direct.
BTW
De huurprijs is gebaseerd op het feit dat de huurder het gehuurde blijvend gebruikt of blijvend laat gebruiken voor doeleinden waarvoor een volledig of minimaal een in de Wet op de Omzetbelasting 1968 genoemd percentage recht op aftrek van de omzetbelasting op de voet van artikel 15 van de Wet op de Omzetbelasting 1968.
Indexering
Jaarlijks, voor het eerst een jaar na huuringangsdatum, conform de reeks consumentenprijsindexcijfers (CPI Alle Huishoudens), zoals gepubliceerd door het Centraal Bureau voor de Statistiek op basis van het meest recente prijsindexcijfer (thans 2015=100).
Huurprijsbetaling
In maandtermijnen bij vooruitbetaling te voldoen.
Voorbehoud
Goedkeuring en gunning eigenaar.
Alle informatie is geheel vrijblijvend en houdt enkel in een uitnodiging tot het doen van een bieding. Alle gegevens zijn met zorg samengesteld en uit ons inziens betrouwbare bron afkomstig. Ten aanzien van de juistheid ervan kunnen wij echter geen aansprakelijkheid aanvaarden.
Een winkelruimte van ca. 310 m² BVO gelegen in winkelcentrum “Molensluis” met een zeer riante frontbreedte van maar liefst ca. 26 meter! Voor het object zijn voldoende gratis parkeerplekken gelegen.
De winkelruimte is voorzien van een fraai afbouwpakket en voorzien van alle voorzieningen zoals vloerverwarming, koeling en maar liefst drie toegangsdeuren!
Winkelcentrum Molensluis is razend populair bij de inwoners van Anna Paulowna en de omringende dorpen. Dit is o.a. terug te zien in het huidige winkelaanbod bestaande uit winkelketens zoals Vomar, Albert Heijn, Action, HEMA, JUMBO, LIDL, Pearle, Intercity Boutiques, Kruidvat en DA Drogisterij, maar ook regionale winkels zoals een slager, Poolse supermarkt, kaaswinkel en diverse kledingwinkels.
De drie grote supermarkten (Jumbo, Vomar en Lidl) zijn in 2023 zelfs uitgebreid om nog meer consumenten in hun behoefte te kunnen voorzien. De uitbreiding van de supermarkten zal een positieve bijdrage leveren aan de stijging van de bezoekersaantallen en omzet van de winkeliers in het winkelcentrum.
De winkelruimte is eventueel in kleinere metrages te huren. Informeer bij de makelaar naar de mogelijkheden.
Huurprijs
€ 2.950,- per maand, excl. BTW.
Servicekosten
De servicekosten bedragen € 100,- excl. BTW per maand op basis van een verrekenbaar voorschot met nacalculatie t.b.v. bijdrage VVE. Tevens wordt Huurder zelf contribuant van de Nutsleveranciers.
Opleveringsniveau
Het object wordt in de huidige staat opgeleverd, doch als casco verhuurd. Alle aanwezige installaties/voorzieningen behoren niet tot het gehuurde.
Installaties
- Gas, water en elektra aansluitingen;
- PVC vloer;
- Verlichting;
- Vloerverwarming;
- Koeling;
- Pantry v.v. inbouwkoelkast;
- Toilet met fonteintje;
- Alarminstallatie;
- Brandblusvoorzieningen;
- 3 toegangsdeuren.
Parkeren
Gratis parkeren op het parkeerterrein direct voor de winkel. Tevens bevinden zich nog twee parkeerterrein rondom de winkel met voldoende parkeerplaatsen.
Bereikbaarheid
De winkelruimte is zowel met de auto, als met het openbaar vervoer en de fiets goed te bereiken. Via de N249 zijn de N9 (Den Helder – Alkmaar) en de N99 (Den Helder – Den Oever) eenvoudig te bereiken. De dichtstbijzijnde bushalte bevindt zich op circa 250 meter loopafstand.
Kadastrale gegevens
Gemeente: Anna Paulowna.
Sectie: L.
Nummer: 6235 A-3 t/m A-10.
Bouwjaar
2013, conform de BAG viewer van het Kadaster.
Energielabel
Van het aangeboden object is energielabel “A+++” beschikbaar.
Bestemming
Bij de gemeente Hollands Kroon valt het perceel binnen het bestemmingsplan “Anna Paulowna”. Dit houdt in dat het perceel bestemd is voor “Centrum-1”. Bij twijfel over het toestaan van uw bedrijfsvoering adviseren wij u zelf contact op te nemen met de Gemeente Hollands Kroon of via het Omgevingsloket.
Model overeenkomst
Model door de Raad voor Onroerende Zaken (ROZ) in april 2025 vastgesteld.
Zekerheidstelling
Een bankgarantie of waarborgsom ter grootte van drie maanden huurverplichting (inclusief de verschuldigde BTW en servicekosten en de daarover verschuldigde BTW*).
*De BTW is uitsluitend bedoeld om de hoogte van de zekerheidsstelling te bepalen en kan niet in de BTW administratie worden opgenomen.
Huurtermijn
Uitgangspunt is 5 + 5 jaar, afwijkende termijn in overleg.
Aanvaarding
Kan per direct.
BTW
De huurprijs is gebaseerd op het feit dat de huurder het gehuurde blijvend gebruikt of blijvend laat gebruiken voor doeleinden waarvoor een volledig of minimaal een in de Wet op de Omzetbelasting 1968 genoemd percentage recht op aftrek van de omzetbelasting op de voet van artikel 15 van de Wet op de Omzetbelasting 1968.
Indexering
Jaarlijks, voor het eerst een jaar na huuringangsdatum, conform de reeks consumentenprijsindexcijfers (CPI Alle Huishoudens), zoals gepubliceerd door het Centraal Bureau voor de Statistiek op basis van het meest recente prijsindexcijfer (thans 2015=100).
Huurprijsbetaling
In maandtermijnen bij vooruitbetaling te voldoen.
Voorbehoud
Goedkeuring en gunning eigenaar.
Alle informatie is geheel vrijblijvend en houdt enkel in een uitnodiging tot het doen van een bieding. Alle gegevens zijn met zorg samengesteld en uit ons inziens betrouwbare bron afkomstig. Ten aanzien van de juistheid ervan kunnen wij echter geen aansprakelijkheid aanvaarden.
Kenmerken
Overdracht
- Huurprijs
- € 2.950 per maand
- Servicekosten
- € 100 per maand (21% BTW van toepassing)
- Aangeboden sinds
-
- Status
- Beschikbaar
- Aanvaarding
- In overleg
Bouw
- Hoofdfunctie
- Winkel met showroom
- Soort bouw
- Bestaande bouw
- Bouwjaar
- 2013
Oppervlakten
- Oppervlakte
- 310 m²
- Verkoopvloeroppervlakte
- 310 m²
- Breedte gevel
- 26 m
Indeling
- Aantal bouwlagen
- 1 bouwlaag
Energie
- Energielabel
- A+++
Omgeving
- Ligging
- Winkelcentrum
- Bijdrage winkeliersvereniging
- Nee
Foto's