Hinthamerstraat 224 5211 MX Den Bosch

€ 21.500 /jr

Omschrijving

TE HUUR
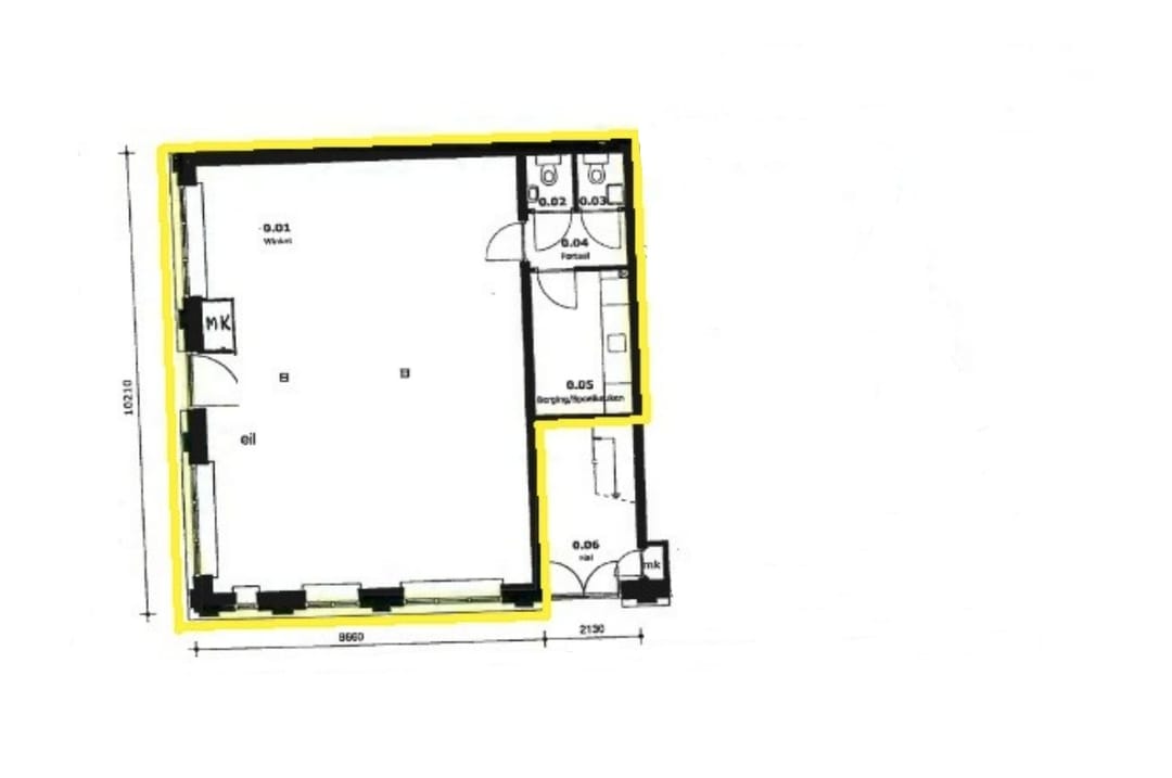
Circa 87 m² commerciële ruimte

Het object is gelegen aan de Hinthamerstraat 224, op een uitstekende zichtlocatie aan de aanlooproute naar het historische stadscentrum en kent een continue stroom van voetgangers, fietsers en lokaal verkeer.

In de directe omgeving bevinden zich diverse speciaalzaken waaronder Choco Loca, Optiek Vogel, Multivlaai Den Bosch, horeca, culturele voorzieningen en parkeergelegenheden.

Het betreft een karakteristiek en representatief winkelpand met een totale oppervlakte van circa 87 m² op de begane grond.

Het object is geschikt voor diverse vormen van dienstverlening of detailhandel.

Kenmerken
- Grote etalageramen rondom het object
- Tegelvloer
- Systeemplafond met TL-verlichting
- Airco
- Toilet
- Pantry

Parkeren
Parkeren in de directe omgeving is mogelijk tegen betaling. Tevens zijn Parkeergarage Sint Josephstraat en Parkeergarage Sint Jan op loopafstand van het object gelegen. Ook is er een mogelijkheid tot het aanvragen van een parkeervergunning.

Bereikbaarheid
Het object is met zowel eigen vervoer als openbaar vervoer goed te bereiken. Het NS Centraal Station 's-Hertogenbosch is gesitueerd op circa 20 minuten loopafstand en tevens rijden er diverse stadsbussen. De Rijkswegen A2 en A59 zijn eveneens goed te bereiken.

Saris en Partners Makelaars
Tel: 073 – 623 33 11

Kenmerken

Overdracht

Huurprijs
€ 21.500 per jaar
Aangeboden sinds
Status
Beschikbaar
Aanvaarding
In overleg

Bouw

Hoofdfunctie
Winkel
Soort bouw
Bestaande bouw
Bouwjaar
1890

Oppervlakten

Oppervlakte
87 m²
Verkoopvloeroppervlakte
87 m²
Breedte gevel
60 m

Indeling

Aantal bouwlagen
1 bouwlaag

Energie

Energielabel
Niet beschikbaar

Omgeving

Ligging
Stadscentrum/dorpskern
Bereikbaarheid
Bushalte op minder dan 500 m, NS Intercitystation op 1500 m tot 2000 m en snelwegafrit op 2000 m tot 3000 m
Bijdrage winkeliersvereniging
Nee
Welstandsklasse
B1

Kaart

Kaart laden...

Kadastrale grens Bebouwing

Reistijd

Krijg inzicht in de bereikbaarheid van dit object vanuit bijvoorbeeld een openbaar vervoer station of vanuit een adres.

Hinthamerstraat 224

€ 21.500 /jr