Appelstraat 232 2564 EL Den Haag
€ 2.250 /mnd
Omschrijving
Adres
Appelstraat 232, 2564 EL Den Haag.
Object
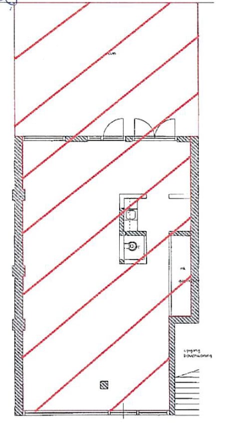
Het betreft een winkelruimte van totaal ca. 90 m² met een frontbreedte van ca. 6,5 m1 en een achtertuin van totaal ca. 60 m².
Locatie
De winkel is gelegen in de gezellige Haagse "Vruchtenbuurt", op het breedste stuk van de Appelstraat tussen de Mient en de Thorbeckelaan.
Aan dit gedeelte van de Appelstraat zijn zowel winkels, kantoren en horeca gelegenheden te vinden.
In de directe omgeving is ook de Vlierboomstraat en het Savornin Lohmanplein te vinden.
Bereikbaarheid
De bereikbaarheid is met eigen- en openbaarvervoer goed te noemen.
Voor de deur bevindt zich de halteplaats voor bus 21 en op loopafstand zijn ook nog halteplaatsen voor andere bus- en tramlijnen.
Parkeergelegenheid
Aan de openbare weg is in ruime mate parkeren aanwezig (betaald tussen 18:00 en 00:00 uur).
Oppervlakte
Het betreft een winkelruimte van ca. 90 m².
Gebruik
Het gehuurde mag worden gebruikt als winkelruimte in de zin van artikel 7:290 BW en als kantoorruimte en andere bedrijfsruimte in de zin van artikel 7:230a BW.
Bestemming
Volgens het vigerende bestemmingsplan ‘Vruchten- en Heesterbuurt 2020’ luid de bestemmingsomschrijving: 'Gemengd - 1'.
De voor 'Gemengd - 1' aangewezen gronden zijn bestemd voor:
- detailhandel;
- dienstverlening;
- horeca in de categorie licht van de bij dit bestemmingsplan behorende Staat van horeca-categorieën als opgenomen in bijlage 1 van de regels;
- welzijnsvoorzieningen;
Voor het gehele bestemmingsplan verwijzen wij u naar
De winkelruimte zal worden opgeleverd in casco staat. Desondanks beschikt het gehuurde over:
- cv-ketel met radiatoren;
- basis elektrische installatie;
- eigen nutsvoorzieningen;
- toilet;
- verharde achtertuin.
Onderhoud en-/of vervanging van deze ‘om niet’ ter beschikking gestelde zaken zijn voor rekening van huurder. Bij het einde van de huur dient het gehuurde in de staat te worden opgeleverd waarin het bij aanvang verkeerde, tenzij anders door partijen schriftelijk is overeengekomen.
Huurprijs
€ 2.250,= per maand te vermeerderen met BTW.
Servicekosten
Niet van toepassing. Huurder dient voor eigen rekening en risico, overeenkomsten te sluiten met de desbetreffende (nuts)bedrijven.
Aanvaarding
Per direct.
Huurtermijn
5 jaar met verlengingsperiodes van telkens 5 jaar.
Opzegtermijn
12 maanden.
Huurprijsbetaling
Per maand vooruit.
Huurprijsaanpassing
Jaarlijks, op basis van de wijziging van het maand-prijsindexcijfer volgens de consumentenprijsindex (CPI) reeks CPI-alle huishoudens (2015=100), gepubliceerd door het Centraal Bureau voor de Statistiek (CBS).
Zekerheidsstelling
Bij ondertekening van de huurovereenkomst zal huurder een bankgarantie stellen of waarborgsom storten ter grootte van een bruto kwartaalverplichting. (huur en BTW).
N.B. afhankelijk van de gegoedheid huurder kan verhuurder ten aanzien van de zekerheidstelling aanvullende voorwaarden stellen.
Huurovereenkomst
Huurovereenkomst winkelruimte of kantoorruimte, e.e.a. conform het model door de Raad voor Onroerende Zaken (ROZ), alsmede de daarbij behorende algemene bepalingen en bijzondere bepalingen van verhuurder.
BTW-status
Verhuurder wenst te opteren voor een BTW belaste verhuur.
Huurder dient voor tenminste 90% met omzetbelasting belaste prestaties te verrichten. Indien huurder niet aan dit criterium voldoet, zal van rechtswege sprake zijn van een van omzetbelasting vrijgestelde verhuur. In dit geval wordt de overeengekomen kale huurprijs, zonder de omzetbelasting, dusdanig verhoogd dat het voor de verhuurder ontstane financiële nadeel wordt gecompenseerd.
Voorbehoud
Positief kredietinformatierapport ter beoordeling en goedkeuring van verhuurder.
Honorarium
Mocht door bemiddeling van WMK Vastgoed een transactie tot stand worden gebracht, dan zult u ons hiervoor geen honorarium verschuldigd zijn.
Inlichtingen
WMK Vastgoed
070 - 21 21 9 21
Bovenstaande informatie is met zorg samengesteld en uit betrouwbare bron afkomstig. Ten aanzien van de juistheid ervan kunnen wij echter geen aansprakelijkheid aanvaarden. Deze informatie is uitsluitend bestemd voor geadresseerde. De informatie is geheel vrijblijvend en geldt slechts als uitnodiging om in onderhandeling te treden.
Appelstraat 232, 2564 EL Den Haag.
Object
Het betreft een winkelruimte van totaal ca. 90 m² met een frontbreedte van ca. 6,5 m1 en een achtertuin van totaal ca. 60 m².
Locatie
De winkel is gelegen in de gezellige Haagse "Vruchtenbuurt", op het breedste stuk van de Appelstraat tussen de Mient en de Thorbeckelaan.
Aan dit gedeelte van de Appelstraat zijn zowel winkels, kantoren en horeca gelegenheden te vinden.
In de directe omgeving is ook de Vlierboomstraat en het Savornin Lohmanplein te vinden.
Bereikbaarheid
De bereikbaarheid is met eigen- en openbaarvervoer goed te noemen.
Voor de deur bevindt zich de halteplaats voor bus 21 en op loopafstand zijn ook nog halteplaatsen voor andere bus- en tramlijnen.
Parkeergelegenheid
Aan de openbare weg is in ruime mate parkeren aanwezig (betaald tussen 18:00 en 00:00 uur).
Oppervlakte
Het betreft een winkelruimte van ca. 90 m².
Gebruik
Het gehuurde mag worden gebruikt als winkelruimte in de zin van artikel 7:290 BW en als kantoorruimte en andere bedrijfsruimte in de zin van artikel 7:230a BW.
Bestemming
Volgens het vigerende bestemmingsplan ‘Vruchten- en Heesterbuurt 2020’ luid de bestemmingsomschrijving: 'Gemengd - 1'.
De voor 'Gemengd - 1' aangewezen gronden zijn bestemd voor:
- detailhandel;
- dienstverlening;
- horeca in de categorie licht van de bij dit bestemmingsplan behorende Staat van horeca-categorieën als opgenomen in bijlage 1 van de regels;
- welzijnsvoorzieningen;
Voor het gehele bestemmingsplan verwijzen wij u naar
De winkelruimte zal worden opgeleverd in casco staat. Desondanks beschikt het gehuurde over:
- cv-ketel met radiatoren;
- basis elektrische installatie;
- eigen nutsvoorzieningen;
- toilet;
- verharde achtertuin.
Onderhoud en-/of vervanging van deze ‘om niet’ ter beschikking gestelde zaken zijn voor rekening van huurder. Bij het einde van de huur dient het gehuurde in de staat te worden opgeleverd waarin het bij aanvang verkeerde, tenzij anders door partijen schriftelijk is overeengekomen.
Huurprijs
€ 2.250,= per maand te vermeerderen met BTW.
Servicekosten
Niet van toepassing. Huurder dient voor eigen rekening en risico, overeenkomsten te sluiten met de desbetreffende (nuts)bedrijven.
Aanvaarding
Per direct.
Huurtermijn
5 jaar met verlengingsperiodes van telkens 5 jaar.
Opzegtermijn
12 maanden.
Huurprijsbetaling
Per maand vooruit.
Huurprijsaanpassing
Jaarlijks, op basis van de wijziging van het maand-prijsindexcijfer volgens de consumentenprijsindex (CPI) reeks CPI-alle huishoudens (2015=100), gepubliceerd door het Centraal Bureau voor de Statistiek (CBS).
Zekerheidsstelling
Bij ondertekening van de huurovereenkomst zal huurder een bankgarantie stellen of waarborgsom storten ter grootte van een bruto kwartaalverplichting. (huur en BTW).
N.B. afhankelijk van de gegoedheid huurder kan verhuurder ten aanzien van de zekerheidstelling aanvullende voorwaarden stellen.
Huurovereenkomst
Huurovereenkomst winkelruimte of kantoorruimte, e.e.a. conform het model door de Raad voor Onroerende Zaken (ROZ), alsmede de daarbij behorende algemene bepalingen en bijzondere bepalingen van verhuurder.
BTW-status
Verhuurder wenst te opteren voor een BTW belaste verhuur.
Huurder dient voor tenminste 90% met omzetbelasting belaste prestaties te verrichten. Indien huurder niet aan dit criterium voldoet, zal van rechtswege sprake zijn van een van omzetbelasting vrijgestelde verhuur. In dit geval wordt de overeengekomen kale huurprijs, zonder de omzetbelasting, dusdanig verhoogd dat het voor de verhuurder ontstane financiële nadeel wordt gecompenseerd.
Voorbehoud
Positief kredietinformatierapport ter beoordeling en goedkeuring van verhuurder.
Honorarium
Mocht door bemiddeling van WMK Vastgoed een transactie tot stand worden gebracht, dan zult u ons hiervoor geen honorarium verschuldigd zijn.
Inlichtingen
WMK Vastgoed
070 - 21 21 9 21
Bovenstaande informatie is met zorg samengesteld en uit betrouwbare bron afkomstig. Ten aanzien van de juistheid ervan kunnen wij echter geen aansprakelijkheid aanvaarden. Deze informatie is uitsluitend bestemd voor geadresseerde. De informatie is geheel vrijblijvend en geldt slechts als uitnodiging om in onderhandeling te treden.
Kenmerken
Overdracht
- Huurprijs
- € 2.250 per maand
- Aangeboden sinds
-
- Status
- Beschikbaar
- Aanvaarding
- Per direct beschikbaar
Bouw
- Hoofdfunctie
- Winkel met showroom
- Soort bouw
- Bestaande bouw
- Bouwjaar
- 1935
Oppervlakten
- Oppervlakte
- 90 m²
- Verkoopvloeroppervlakte
- 90 m²
- Breedte gevel
- 6,5 m
Indeling
- Aantal bouwlagen
- 1 bouwlaag
Energie
- Energielabel
- Niet beschikbaar
Omgeving
- Ligging
- Winkelcentrum
- Bereikbaarheid
- Bushalte op minder dan 500 m en Tramhalte op minder dan 500 m
- Bijdrage winkeliersvereniging
- Nee
Foto's