Omschrijving
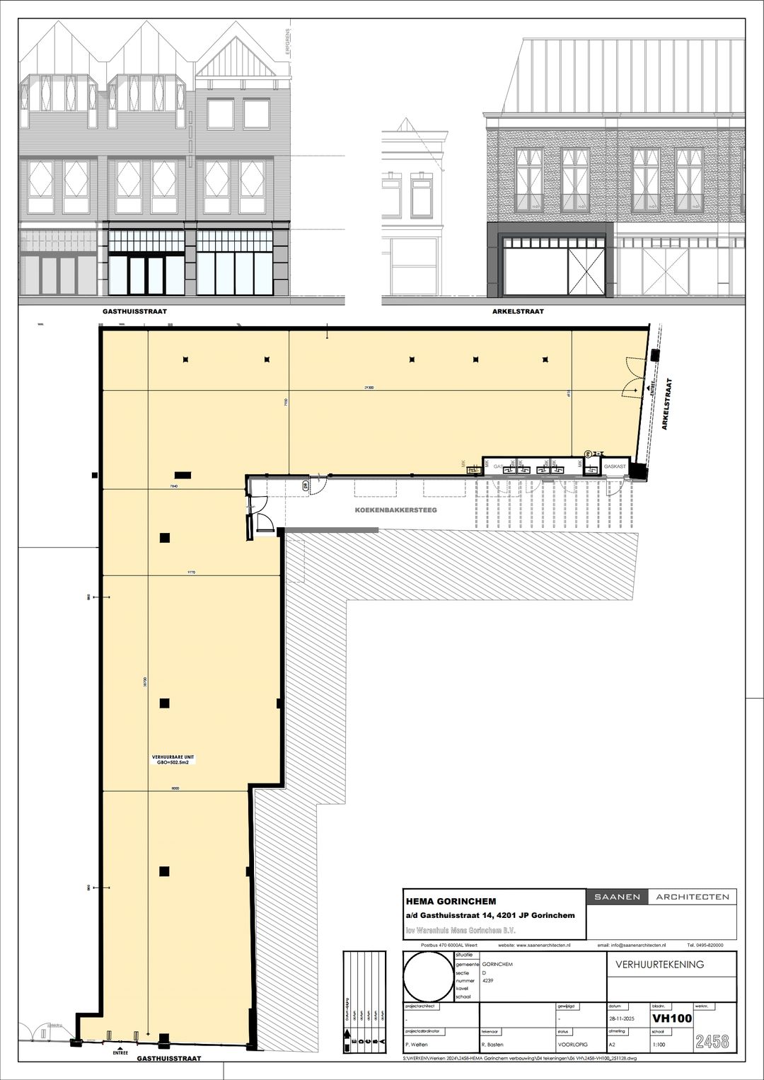
Op een zeer goede locatie in het A1 winkelgebied van Gorinchem bieden wij een winkelruimte van ca. 502 m² te huur aan! De winkelruimte is gelegen op de begane grond en wordt casco te huur aangeboden. De ruimte is gelegen aan de Gasthuisstraat, direct naast de HEMA en eveneens aan de Arkelstraat. De entree van de winkelruimte bevindt zich aan de Gasthuisstraat, maar er is tevens een entree aan de zijde van de Arkelstraat. De winkelruimte is hiermee zeer goed toegankelijk voor winkelend publiek. De winkelruimte ligt in het gezellige en drukbezochte winkelgebied van Gorinchem, tussen de landelijk bekende ketens zoals HEMA, Rituals, Van Uffelen Mode, Douglas, Primera en Only.
Deelverhuur is bespreekbaar vanaf ca. 165 m².
Locatie
De winkelruimte heeft een uitstekende ligging te midden van het historische centrum van vestingstad Gorinchem. In de directe omgeving van het pand zijn de landelijke ketens gevestigd, o.a.: HEMA, ONLY, Primera, Van Uffelen Mode, Xenos, Rituals, Hans Anders etc. Het object ligt in één van de drukste winkelstraten van het Gorinchemse centrum op absolute toplocatie! In 2021 is Gorinchem door de ANWB verkozen tot mooiste vestingstad van het jaar! Ook heeft de vesting van Gorinchem sinds 2021 een beschermde status binnen het UNESCO Werelderfgoedprogramma.
Bouwjaar
1960. In de latere jaren is het object gemoderniseerd en onder andere voorzien van een nieuwe entree pui (bron: BAG-viewer).
Kadastraal
Gemeente Gorinchem, sectie D, nummer 4239 gedeeltelijk
Oppervlakten
Begane grond
• Winkelruimte circa 502 m²
# deelverhuur is mogelijk vanaf ca. 165 m²
• Frontbreedte Gasthuisstraat circa 9.00 meter
• Frontbreedte Arkelstraat circa 7,25 meter
Totale oppervlakte circa 502 m²
Oppervlakte is circa.
Parkeren
De Gasthuisstraat en Arkelstraat zijn autoloze straten. Er is openbare parkeergelegenheid (betaald en voor vergunninghouders) in de nabije omgeving. Parkeerplein Groenmarkt en parkeergarages Kweeklust en Kazerneplein liggen op korte (loop)afstand van het pand. Laden en lossen is vóór en na de winkeltijden mogelijk direct voor het pand.
Bestemmingsplan
Ter plaatse is het bestemmingsplan “Binnenstad e.o.” van kracht. In dit bestemmingsplan heeft het onderhavige object de bestemming ‘Centrum 1’ met o.a. de dubbelbestemming ‘waarde – beschermd stadsgezicht’. De voor ‘Centrum 1’ aangewezen gronden zijn bestemd voor: detailhandel, winkel- ondersteunende horeca en persoonlijke dienstverlening. Meer informatie vindt u in het bestemmingsplan ‘Binnenstad e.o.’ via
• Elektriciteitsaansluiting;
• Gasaansluiting;
• Wateraansluiting;
• Betonnen vloer
• Automatische schuifdeuren zowel aan de Gasthuisstraat als de Arkelstraat
NB: de winkelruimte wordt overgedragen in de huidige staat, leeg en bezemschoon, maar door verhuurder verhuurd op basis van casco.
Huurprijs
€ 155.000 per jaar, excl. btw
Deelverhuur is bespreekbaar van ca. 165 m².
Service-/energiekosten
In overleg te bepalen.
Huurtermijn
5 jaar met telkens 5 jaar verlenging
Betalingstermijn
Per maand vooraf.
Zekerheidstelling
Bij verhuur stelt de huurder bij ondertekening van de huurovereenkomst een bankgarantie of waarborgsom ter grootte van 3 maanden huur inclusief servicekosten en inclusief btw.
Nadere informatie
Indien u nadere belangstelling heeft dan kunt u voor een bezichtiging contact met ons opnemen via telefoonnummer (0183) 30 40 50 of mail naar
Deelverhuur is bespreekbaar vanaf ca. 165 m².
Locatie
De winkelruimte heeft een uitstekende ligging te midden van het historische centrum van vestingstad Gorinchem. In de directe omgeving van het pand zijn de landelijke ketens gevestigd, o.a.: HEMA, ONLY, Primera, Van Uffelen Mode, Xenos, Rituals, Hans Anders etc. Het object ligt in één van de drukste winkelstraten van het Gorinchemse centrum op absolute toplocatie! In 2021 is Gorinchem door de ANWB verkozen tot mooiste vestingstad van het jaar! Ook heeft de vesting van Gorinchem sinds 2021 een beschermde status binnen het UNESCO Werelderfgoedprogramma.
Bouwjaar
1960. In de latere jaren is het object gemoderniseerd en onder andere voorzien van een nieuwe entree pui (bron: BAG-viewer).
Kadastraal
Gemeente Gorinchem, sectie D, nummer 4239 gedeeltelijk
Oppervlakten
Begane grond
• Winkelruimte circa 502 m²
# deelverhuur is mogelijk vanaf ca. 165 m²
• Frontbreedte Gasthuisstraat circa 9.00 meter
• Frontbreedte Arkelstraat circa 7,25 meter
Totale oppervlakte circa 502 m²
Oppervlakte is circa.
Parkeren
De Gasthuisstraat en Arkelstraat zijn autoloze straten. Er is openbare parkeergelegenheid (betaald en voor vergunninghouders) in de nabije omgeving. Parkeerplein Groenmarkt en parkeergarages Kweeklust en Kazerneplein liggen op korte (loop)afstand van het pand. Laden en lossen is vóór en na de winkeltijden mogelijk direct voor het pand.
Bestemmingsplan
Ter plaatse is het bestemmingsplan “Binnenstad e.o.” van kracht. In dit bestemmingsplan heeft het onderhavige object de bestemming ‘Centrum 1’ met o.a. de dubbelbestemming ‘waarde – beschermd stadsgezicht’. De voor ‘Centrum 1’ aangewezen gronden zijn bestemd voor: detailhandel, winkel- ondersteunende horeca en persoonlijke dienstverlening. Meer informatie vindt u in het bestemmingsplan ‘Binnenstad e.o.’ via
• Elektriciteitsaansluiting;
• Gasaansluiting;
• Wateraansluiting;
• Betonnen vloer
• Automatische schuifdeuren zowel aan de Gasthuisstraat als de Arkelstraat
NB: de winkelruimte wordt overgedragen in de huidige staat, leeg en bezemschoon, maar door verhuurder verhuurd op basis van casco.
Huurprijs
€ 155.000 per jaar, excl. btw
Deelverhuur is bespreekbaar van ca. 165 m².
Service-/energiekosten
In overleg te bepalen.
Huurtermijn
5 jaar met telkens 5 jaar verlenging
Betalingstermijn
Per maand vooraf.
Zekerheidstelling
Bij verhuur stelt de huurder bij ondertekening van de huurovereenkomst een bankgarantie of waarborgsom ter grootte van 3 maanden huur inclusief servicekosten en inclusief btw.
Nadere informatie
Indien u nadere belangstelling heeft dan kunt u voor een bezichtiging contact met ons opnemen via telefoonnummer (0183) 30 40 50 of mail naar
Kaart
Kaart laden...
Kadastrale grens
Bebouwing
Reistijd
Krijg inzicht in de bereikbaarheid van dit object vanuit bijvoorbeeld een openbaar vervoer station of vanuit een adres.