Verwulft 1 2011 GJ Haarlem
€ 975.000 k.k.
Omschrijving
Karakteristiek winkelpand met bovenwoning op iconische locatie in hartje Haarlem
Op een van de meest aantrekkelijke en levendige locaties van Haarlem bevindt zich dit bijzondere woon-winkelpand: Verwulft 1. Gelegen op een prominente hoek aan een van de drukst bezochte stadspleinen, biedt dit pand een unieke combinatie van zichtbaarheid, historie en veelzijdigheid.
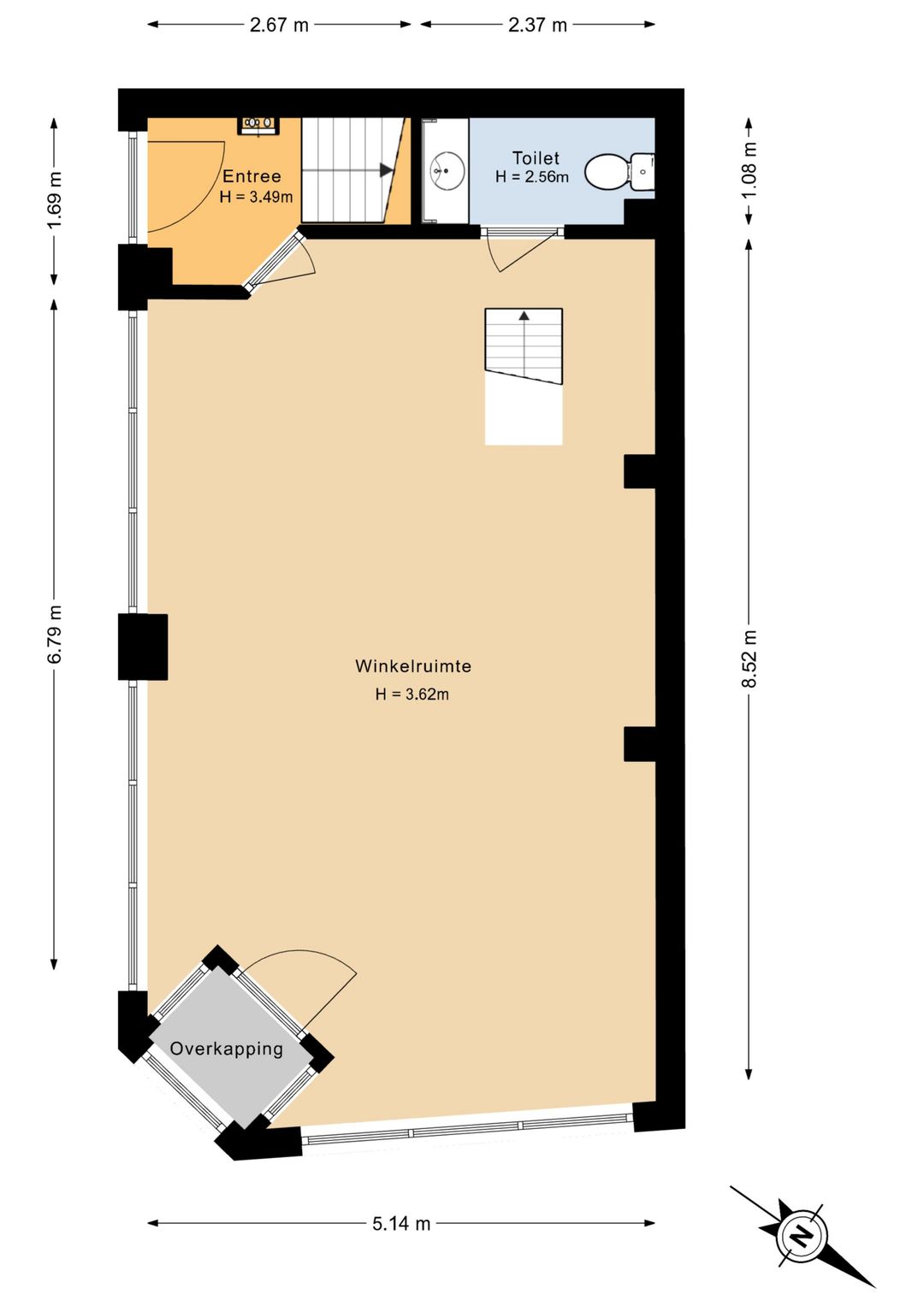
De begane grond vormt een ideale winkelruimte en beschikt over een fraaie pui met grote raampartijen/etalages, die zorgen voor optimale exposure.
Volgens het bestemmingsplan is het volgende toegestaan op de begane grond: detailhandel met bijbehorende horeca (maximaal 30% bruto vloeroppervlak), zonder terras en zonder het schenken van alcohol. Kantoor met loketfunctie.
Je mag niet wonen op de begane grond.
De bovenwoning met woonbestemming heeft een eigen, separate entree aan de Koningstraat.
Het pand bestaat in totaal uit:
- een kelder (ca. 43 m² gebruiksoppervlakte)
- de begane grond met winkelbestemming (ca. 50 m² gebruiksoppervlakte)
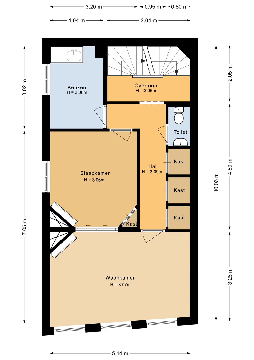
De bovenwoning, verdeeld over:
- 1e etage: ca. 52 m² gebruiksoppervlakte
- 2e etage: ca. 52 m² gebruiksoppervlakte
- 3e etage: ca. 42 m² gebruiksoppervlakte
LOCATIE & UITERLIJK
Het Verwulft is een belangrijk kruispunt waar onder andere de Grote Houtstraat, Gedempte Oude Gracht, Gierstraat en Koningstraat samenkomen. De naam ‘Verwulft’ verwijst naar de Oude Gracht die hier ooit onderdoor liep.
Hoewel de omgeving door de eeuwen heen sterk is veranderd, ademt deze plek nog altijd historie. Waar vroeger trap- en klokgevels het straatbeeld bepaalden, ontstond rond 1890 het huidige plein met zijn stedelijke dynamiek. De gevel aan het Verwulft is uitgevoerd als een elegante eclectische lijstgevel uit de late 19e eeuw. De winkelpui werd in 1924 aangepast en voorzien van karakteristieke grote raampartijen met houten omlijsting.
Dankzij de prominente ligging, de hoge passantenstroom en de karakteristieke architectuur is dit pand bij uitstek geschikt voor een commerciële invulling op de begane grond, in combinatie met wonen op de verdiepingen.
Een zeldzame kans voor wie op zoek is naar een representatief object op een iconische locatie in de Haarlemse binnenstad.
DETAILS:
- Bouwjaar: 1890;
- Energielabel G;
- Bouwkundig rapport op te vragen bij de verkopend makelaar;
- Beschermd stadsgezicht en Orde 2;
- Wordt hoogstwaarschijnlijk een Gemeentelijk Monument;
- Totaal ca. 146 m² GO bovenwoning;
- Totaal ca. 50 m² GO winkelruimte;
- Winkelruimte op de begane grond;
- Wonen is niet toegestaan op de begane grond;
- Wonen is wel toegestaan op 1e, 2e en 3e etage;
- Verkoper behoudt zich het recht van gunning;
- Notariskeuze verkoper;
- Overdracht kan op korte termijn.
Op een van de meest aantrekkelijke en levendige locaties van Haarlem bevindt zich dit bijzondere woon-winkelpand: Verwulft 1. Gelegen op een prominente hoek aan een van de drukst bezochte stadspleinen, biedt dit pand een unieke combinatie van zichtbaarheid, historie en veelzijdigheid.
De begane grond vormt een ideale winkelruimte en beschikt over een fraaie pui met grote raampartijen/etalages, die zorgen voor optimale exposure.
Volgens het bestemmingsplan is het volgende toegestaan op de begane grond: detailhandel met bijbehorende horeca (maximaal 30% bruto vloeroppervlak), zonder terras en zonder het schenken van alcohol. Kantoor met loketfunctie.
Je mag niet wonen op de begane grond.
De bovenwoning met woonbestemming heeft een eigen, separate entree aan de Koningstraat.
Het pand bestaat in totaal uit:
- een kelder (ca. 43 m² gebruiksoppervlakte)
- de begane grond met winkelbestemming (ca. 50 m² gebruiksoppervlakte)
De bovenwoning, verdeeld over:
- 1e etage: ca. 52 m² gebruiksoppervlakte
- 2e etage: ca. 52 m² gebruiksoppervlakte
- 3e etage: ca. 42 m² gebruiksoppervlakte
LOCATIE & UITERLIJK
Het Verwulft is een belangrijk kruispunt waar onder andere de Grote Houtstraat, Gedempte Oude Gracht, Gierstraat en Koningstraat samenkomen. De naam ‘Verwulft’ verwijst naar de Oude Gracht die hier ooit onderdoor liep.
Hoewel de omgeving door de eeuwen heen sterk is veranderd, ademt deze plek nog altijd historie. Waar vroeger trap- en klokgevels het straatbeeld bepaalden, ontstond rond 1890 het huidige plein met zijn stedelijke dynamiek. De gevel aan het Verwulft is uitgevoerd als een elegante eclectische lijstgevel uit de late 19e eeuw. De winkelpui werd in 1924 aangepast en voorzien van karakteristieke grote raampartijen met houten omlijsting.
Dankzij de prominente ligging, de hoge passantenstroom en de karakteristieke architectuur is dit pand bij uitstek geschikt voor een commerciële invulling op de begane grond, in combinatie met wonen op de verdiepingen.
Een zeldzame kans voor wie op zoek is naar een representatief object op een iconische locatie in de Haarlemse binnenstad.
DETAILS:
- Bouwjaar: 1890;
- Energielabel G;
- Bouwkundig rapport op te vragen bij de verkopend makelaar;
- Beschermd stadsgezicht en Orde 2;
- Wordt hoogstwaarschijnlijk een Gemeentelijk Monument;
- Totaal ca. 146 m² GO bovenwoning;
- Totaal ca. 50 m² GO winkelruimte;
- Winkelruimte op de begane grond;
- Wonen is niet toegestaan op de begane grond;
- Wonen is wel toegestaan op 1e, 2e en 3e etage;
- Verkoper behoudt zich het recht van gunning;
- Notariskeuze verkoper;
- Overdracht kan op korte termijn.
Kenmerken
Overdracht
- Vraagprijs
- € 975.000 kosten koper
- Aangeboden sinds
-
- Status
- Beschikbaar
- Aanvaarding
- In overleg
Bouw
- Hoofdfunctie
- Winkel
- Soort bouw
- Bestaande bouw
- Bouwjaar
- 1890
Oppervlakten
- Oppervlakte
- 50 m²
- Verkoopvloeroppervlakte
- 50 m²
- Breedte gevel
- 5,1 m
- Perceel
- 63 m²
Indeling
- Aantal bouwlagen
- 1 bouwlaag
- Woonruimte
- Aanwezig (inpandig, 146 m²)
Energie
- Energielabel
- G
Omgeving
- Ligging
- Stadscentrum/dorpskern
- Bijdrage winkeliersvereniging
- Nee
- Welstandsklasse
- B1
NVM makelaar
Foto's