Leeuwenstraat 68 1211 EW Hilversum
€ 55.000 /jr
Omschrijving
Gelegen in een sfeervolle winkelstraat, biedt deze winkelruimte met een frontbreedte van meer dan 8 meter een unieke kans om jouw dromen werkelijkheid te laten worden. De winkelruimte is gelegen aan de Leeuwenstraat, dé verbindingsstraat tussen het Stationshart en het centrum van Hilversum met o.a. de Groest alwaar zich de vele gezellige restaurants en terrassen bevinden maar ook diverse winkelketens.
LOCATIE
Gelegen in het hart van Hilversum, profiteer je van een constante stroom van voorbijgangers van zowel locals als dagjesmensen. De Leeuwenstraat kent een zeer divers en aantrekkelijk winkelaanbod, waaronder enkele speciaalzaken en heren- en damesmode zaken. Op steenworp afstand bevinden zich diverse parkeergarages en het NS Station Hilversum.
OBJECT
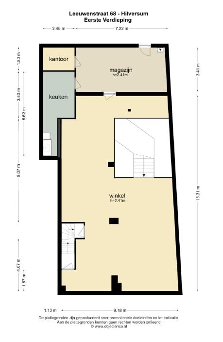
Op goede winkelstand in het kernwinkelgebied van Hilversum een winkelruimte van in totaal ca. 528 m² v.v.o., inclusief magazijn, keuken en toiletgroep.
VLOEROPPERVLAKTE
De winkel heeft een verhuurbaar vloeroppervlak van ca. 528 m², verdeeld over:
- begane grond ca. 265 m² v.v.o.
- 1e verdieping ca. 148 m² v.v.o.
- kelder ca. 115 m² v.v.o.
De winkel heeft een frontbreedte van meer dan 8 meter. Van het complex is een NEN 2580 meetrapport beschikbaar.
OPLEVERINGSNIVEAU
Het gehuurde wordt in de huidige goede staat "as is" opgeleverd, inclusief de navolgende aanwezige voorzieningen.
Begane grond:
- huidig inbouwpakket*;
- warmtegordijn*;
- entree met schuifdeuren*;
- airco plafondunit*;
- systeemplafond met inbouwspots*;
- huidige vloerafwerking;
- camera-ogen*;
- alarm*;
- internetaansluiting*;
- geluidinstallatie in plafond*;
- toilet met voorportaal.
Verdieping:
- huidig inbouwpakket*;
- brandslanghaspel;
- magazijn met cv-ketelopstelling*;
- kantoor;
- kantine met keukenblok*;
- losse brandblusser*.
Kelder:
- magazijnruimte;
- losse brandblusser*.
* genoemde zaken worden ‘om niet’ beschikbaar gesteld. De kosten van onderhoud, vervanging en/of vernieuwing komen voor rekening van huurder.
BESTEMMING
Het vigerende bestemmingsplan (Binnenstad 2013) van de Gemeente Hilversum geeft aan dat de gronden bestemd zijn voor het gebruik als centrumgebied (Cgb), derhalve is deze ruimte uitermate geschikt voor het gebruik t.b.v. detailhandel.
Huurder dient zelf zijn exploitatie te toetsen aan het vigerende bestemmingsplan.
AANVANGSHUURPRIJS
De aanvangshuurprijs bedraagt € 55.000,-- op jaarbasis, exclusief BTW.
BTW CLAUSULE
De in deze documentatie genoemde bedragen zijn exclusief BTW, uitgaande van het feit dat huurder (blijvend) voldoet aan de criteria welke gesteld zijn of worden voor een belaste verhuur ex. Artikel 11, lid 1 letter b, sub 5, Wet op de omzetbelasting 1968.
HUURPRIJSAANPASSING
Jaarlijks op basis van de Consumentenprijsindex, reeks CPI Alle Huishoudens (2015=100) zoals gepubliceerd door het Centraal Bureau voor de Statistiek (CBS).
ZEKERHEIDSTELLING
Ter meerdere zekerheid van de nakoming van de verplichtingen uit de huurovereenkomst dient een bankgarantie te worden verstrekt gelijk aan 3 (drie) maanden (bruto) huurprijs te verhogen met de verschuldigde omzetbelasting.
SERVICEKOSTEN
Huurder dient zelf zorg te dragen voor het afsluiten van toeleveringscontracten ten behoeve van o.m. gas, water, elektra en de communicatieve diensten, alsmede diverse onderhoudscontracten t.b.v. de technische installaties.
HUURPERIODE
5 jaar met 5 optiejaren, waarbij in overleg tussen partijen afwijkende termijnen bespreekbaar zijn.
OPZEGGING
Beëindiging van de huurovereenkomst geschiedt door opzegging tegen het einde van een huurtermijn, met in achtneming van een opzegtermijn van ten minste 12 maanden.
ENERGIELABEL
Energielabel A.
AANVAARDING
In overleg, kan snel.
HUUROVEREENKOMST
Op basis van het standaard model huurovereenkomst volgens de Raad voor Onroerende Zaken (ROZ september 2012) voor bedrijfsruimte in de zin van artikel 7:290 BW, zoals gehanteerd wordt door de Nederlandse Vereniging van Makelaars in onroerend goed (NVM). Verhuurder zal gebruik maken van standaard verhuurderaanpassingen.
VOORBEHOUD
Deze informatie wordt u verstrekt onder het voorbehoud van het verkrijgen van de finale goedkeuring en instemming van onze opdrachtgever.
LOCATIE
Gelegen in het hart van Hilversum, profiteer je van een constante stroom van voorbijgangers van zowel locals als dagjesmensen. De Leeuwenstraat kent een zeer divers en aantrekkelijk winkelaanbod, waaronder enkele speciaalzaken en heren- en damesmode zaken. Op steenworp afstand bevinden zich diverse parkeergarages en het NS Station Hilversum.
OBJECT
Op goede winkelstand in het kernwinkelgebied van Hilversum een winkelruimte van in totaal ca. 528 m² v.v.o., inclusief magazijn, keuken en toiletgroep.
VLOEROPPERVLAKTE
De winkel heeft een verhuurbaar vloeroppervlak van ca. 528 m², verdeeld over:
- begane grond ca. 265 m² v.v.o.
- 1e verdieping ca. 148 m² v.v.o.
- kelder ca. 115 m² v.v.o.
De winkel heeft een frontbreedte van meer dan 8 meter. Van het complex is een NEN 2580 meetrapport beschikbaar.
OPLEVERINGSNIVEAU
Het gehuurde wordt in de huidige goede staat "as is" opgeleverd, inclusief de navolgende aanwezige voorzieningen.
Begane grond:
- huidig inbouwpakket*;
- warmtegordijn*;
- entree met schuifdeuren*;
- airco plafondunit*;
- systeemplafond met inbouwspots*;
- huidige vloerafwerking;
- camera-ogen*;
- alarm*;
- internetaansluiting*;
- geluidinstallatie in plafond*;
- toilet met voorportaal.
Verdieping:
- huidig inbouwpakket*;
- brandslanghaspel;
- magazijn met cv-ketelopstelling*;
- kantoor;
- kantine met keukenblok*;
- losse brandblusser*.
Kelder:
- magazijnruimte;
- losse brandblusser*.
* genoemde zaken worden ‘om niet’ beschikbaar gesteld. De kosten van onderhoud, vervanging en/of vernieuwing komen voor rekening van huurder.
BESTEMMING
Het vigerende bestemmingsplan (Binnenstad 2013) van de Gemeente Hilversum geeft aan dat de gronden bestemd zijn voor het gebruik als centrumgebied (Cgb), derhalve is deze ruimte uitermate geschikt voor het gebruik t.b.v. detailhandel.
Huurder dient zelf zijn exploitatie te toetsen aan het vigerende bestemmingsplan.
AANVANGSHUURPRIJS
De aanvangshuurprijs bedraagt € 55.000,-- op jaarbasis, exclusief BTW.
BTW CLAUSULE
De in deze documentatie genoemde bedragen zijn exclusief BTW, uitgaande van het feit dat huurder (blijvend) voldoet aan de criteria welke gesteld zijn of worden voor een belaste verhuur ex. Artikel 11, lid 1 letter b, sub 5, Wet op de omzetbelasting 1968.
HUURPRIJSAANPASSING
Jaarlijks op basis van de Consumentenprijsindex, reeks CPI Alle Huishoudens (2015=100) zoals gepubliceerd door het Centraal Bureau voor de Statistiek (CBS).
ZEKERHEIDSTELLING
Ter meerdere zekerheid van de nakoming van de verplichtingen uit de huurovereenkomst dient een bankgarantie te worden verstrekt gelijk aan 3 (drie) maanden (bruto) huurprijs te verhogen met de verschuldigde omzetbelasting.
SERVICEKOSTEN
Huurder dient zelf zorg te dragen voor het afsluiten van toeleveringscontracten ten behoeve van o.m. gas, water, elektra en de communicatieve diensten, alsmede diverse onderhoudscontracten t.b.v. de technische installaties.
HUURPERIODE
5 jaar met 5 optiejaren, waarbij in overleg tussen partijen afwijkende termijnen bespreekbaar zijn.
OPZEGGING
Beëindiging van de huurovereenkomst geschiedt door opzegging tegen het einde van een huurtermijn, met in achtneming van een opzegtermijn van ten minste 12 maanden.
ENERGIELABEL
Energielabel A.
AANVAARDING
In overleg, kan snel.
HUUROVEREENKOMST
Op basis van het standaard model huurovereenkomst volgens de Raad voor Onroerende Zaken (ROZ september 2012) voor bedrijfsruimte in de zin van artikel 7:290 BW, zoals gehanteerd wordt door de Nederlandse Vereniging van Makelaars in onroerend goed (NVM). Verhuurder zal gebruik maken van standaard verhuurderaanpassingen.
VOORBEHOUD
Deze informatie wordt u verstrekt onder het voorbehoud van het verkrijgen van de finale goedkeuring en instemming van onze opdrachtgever.
Kenmerken
Overdracht
- Huurprijs
- € 55.000 per jaar
- Aangeboden sinds
-
- Status
- Beschikbaar
- Aanvaarding
- In overleg
Bouw
- Hoofdfunctie
- Winkel
- Soort bouw
- Bestaande bouw
- Bouwjaar
- 1901
Oppervlakten
- Oppervlakte
- 528 m²
- Verkoopvloeroppervlakte
- 363 m²
- Breedte gevel
- 8,2 m
Indeling
- Aantal bouwlagen
- 3 bouwlagen
Energie
- Energielabel
- A
Omgeving
- Ligging
- Stadscentrum/dorpskern
- Bereikbaarheid
- Bushalte op minder dan 500 m, busknooppunt op minder dan 500 m, NS Intercitystation op minder dan 500 m en snelwegafrit op 1500 m tot 2000 m
- Bijdrage winkeliersvereniging
- Nee
- Welstandsklasse
- A2
NVM makelaar
Foto's