Omschrijving
De afgelopen jaren heeft de gemeente Hilversum het stationsgebied ingrijpend veranderd, heringericht en opgewaardeerd tot de entree van Hilversum. In het bijzonder heeft het stationsplein een metamorfose ondergaan, waarbij nieuwe functies zijn toegevoegd (horeca, winkels en wonen) en de openbare ruimte is opgewaardeerd (terrassen en nieuwe groenvoorzieningen). Door de ligging in het hart van Hilversum, biedt deze locatie een levendige werkomgeving met een breed scala aan faciliteiten in de directe omgeving. Winkels, restaurants, cafés en sportfaciliteiten liggen letterlijk om de hoek.
Object
De winkelruimte is gelegen in het NS-station Hilversum. Hiermee is de bereikbaarheid met openbaar vervoer uitstekend te noemen. De winkelruimte is gelegen tussen AH-to-go, Starbucks en Smullers.
Vloeroppervlak
Van de winkelruimte is geen NEN 2580 meetrapport beschikbaar.
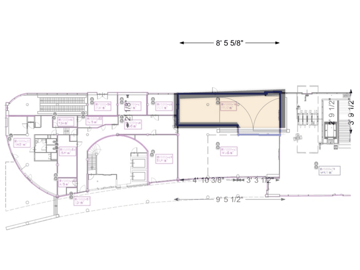
De winkelruimte kent aan de begane grond een vloeroppervlak van ca. 117 m² en een personeelsruimte van ca. 23 m².
De winkelruimte kent een frontbreedte van circa 23 m¹, verdeeld aan de spoorzijde van ca. 17,5 meter en ca. 5,5 meter in de hal.
Opleveringsniveau
De winkel wordt in de huidige casco staat verhuurd inclusief de navolgende voorzieningen:
- lichtstraat met verlichting.
Parkeergelegenheid
Q-park parkeergarages bij het station en de Hilvertshof, parkeergarages Gooische Brink en City Parking welke zich op korte loopafstand bevinden.
Aanvangshuurprijs
De aanvangshuurprijs bedraagt € 30.000,- per jaar, excl. BTW.
Huurbetaling
De huurbetalingsverplichting dient per maand vooruit betaald te worden door middel van een automatische incasso.
Servicekosten
Huurder dient de meters betreffende gas, water en elektra op haar naam te doen stellen en het verbruik rechtstreeks te voldoen aan de desbetreffende openbare nutsbedrijven.
Huurtermijn
5 jaar met 5 optiejaren, waarbij een opzegtermijn wordt gehanteerd van 12 maanden. Een kortere huurperiode is bespreekbaar.
Aanvaarding
Het object is in overleg tussen partijen te aanvaarden.
Zekerheidsstelling
Bij ondertekening van de huurovereenkomst wordt een bankgarantie of waarborgsom verlangd ter grootte van drie maanden huurbetalingsverplichting inclusief de verschuldigde BTW over het gehele bedrag.
Huurprijsindexering
Jaarlijks, voor het eerst één jaar na de huuringangsdatum, wordt de laatst geldende huurprijs verhoogd op basis van het maandprijsindexcijfer volgens de consumentenprijsindex (CPI) reeks alle huishoudens (2015 = 100), gepubliceerd door het Centraal Bureau voor de Statistiek (CBS). De huurprijs zal géén daling ondergaan.
Huurovereenkomst
De op te stellen huurovereenkomst is conform de overeenkomst die door de Raad voor Onroerende Zaken in december 2022 is vastgesteld en zoals gehanteerd door de Nederlandse Vereniging van Makelaars (NVM) met de bijbehorende algemene bepalingen.
Bestemming
Het vigerende bestemmingsplan van de Gemeente Hilversum geeft aan dat de winkelruimte uitermate geschikt is voor het gebruik voor:
•detailhandel;
•dienstverlening;
•kantoren;
•maatschappelijke activiteiten.
Geen horeca gerelateerde invulling mogelijk!
Object
De winkelruimte is gelegen in het NS-station Hilversum. Hiermee is de bereikbaarheid met openbaar vervoer uitstekend te noemen. De winkelruimte is gelegen tussen AH-to-go, Starbucks en Smullers.
Vloeroppervlak
Van de winkelruimte is geen NEN 2580 meetrapport beschikbaar.
De winkelruimte kent aan de begane grond een vloeroppervlak van ca. 117 m² en een personeelsruimte van ca. 23 m².
De winkelruimte kent een frontbreedte van circa 23 m¹, verdeeld aan de spoorzijde van ca. 17,5 meter en ca. 5,5 meter in de hal.
Opleveringsniveau
De winkel wordt in de huidige casco staat verhuurd inclusief de navolgende voorzieningen:
- lichtstraat met verlichting.
Parkeergelegenheid
Q-park parkeergarages bij het station en de Hilvertshof, parkeergarages Gooische Brink en City Parking welke zich op korte loopafstand bevinden.
Aanvangshuurprijs
De aanvangshuurprijs bedraagt € 30.000,- per jaar, excl. BTW.
Huurbetaling
De huurbetalingsverplichting dient per maand vooruit betaald te worden door middel van een automatische incasso.
Servicekosten
Huurder dient de meters betreffende gas, water en elektra op haar naam te doen stellen en het verbruik rechtstreeks te voldoen aan de desbetreffende openbare nutsbedrijven.
Huurtermijn
5 jaar met 5 optiejaren, waarbij een opzegtermijn wordt gehanteerd van 12 maanden. Een kortere huurperiode is bespreekbaar.
Aanvaarding
Het object is in overleg tussen partijen te aanvaarden.
Zekerheidsstelling
Bij ondertekening van de huurovereenkomst wordt een bankgarantie of waarborgsom verlangd ter grootte van drie maanden huurbetalingsverplichting inclusief de verschuldigde BTW over het gehele bedrag.
Huurprijsindexering
Jaarlijks, voor het eerst één jaar na de huuringangsdatum, wordt de laatst geldende huurprijs verhoogd op basis van het maandprijsindexcijfer volgens de consumentenprijsindex (CPI) reeks alle huishoudens (2015 = 100), gepubliceerd door het Centraal Bureau voor de Statistiek (CBS). De huurprijs zal géén daling ondergaan.
Huurovereenkomst
De op te stellen huurovereenkomst is conform de overeenkomst die door de Raad voor Onroerende Zaken in december 2022 is vastgesteld en zoals gehanteerd door de Nederlandse Vereniging van Makelaars (NVM) met de bijbehorende algemene bepalingen.
Bestemming
Het vigerende bestemmingsplan van de Gemeente Hilversum geeft aan dat de winkelruimte uitermate geschikt is voor het gebruik voor:
•detailhandel;
•dienstverlening;
•kantoren;
•maatschappelijke activiteiten.
Geen horeca gerelateerde invulling mogelijk!
Kaart
Kaart laden...
Kadastrale grens
Bebouwing
Reistijd
Krijg inzicht in de bereikbaarheid van dit object vanuit bijvoorbeeld een openbaar vervoer station of vanuit een adres.