• Onder optie

Nieuweweg 5 1251 LG Laren (NH)

€ 4.250 /mnd

Omschrijving

Overview
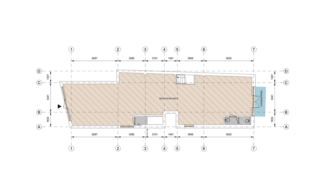
Winkel : Circa 141 m2 b.v.o.
Parkeren : Openbaar
Verdieping : Begane grond met kelder
Locatie : Laren centrum

Object
De winkel is gelegen op een toplocatie aan het begin van de Nieuweweg, nabij de kruising met de Brink, midden in het kernwinkelgebied van Laren.
Deze ligging biedt een hoge zichtbaarheid en een sterke passantenstroom.

Het hele pand is recent gerenoveerd en beschikt over een energielabel A++. Daarnaast beschikt de winkel over een achtertuin en een zij ingang. In de directe omgeving zijn onder meer Pauw, Mr. Marvis, Profuomo, Douglas, Rituals, My Jewellery, HEMA, Kruidvat en Expert gevestigd, wat bijdraagt aan een uitstekende commerciële positionering.

Locatie
Laren behoort tot de top drie welvarendste gemeenten van Nederland en vormt het levendige hart van een groot verzorgingsgebied. Het winkelgebied bestaat uit meer dan 100 winkels. Naast een hoogwaardig en divers winkelaanbod beschikt het centrum van Laren over een uitgebreid en kwalitatief sterk horeca-aanbod, variërend van sfeervolle lunchrooms en koffiezaken tot gerenommeerde restaurants en terrassen.

Deze combinatie van retail & horeca zorgt voor een dynamisch winkelgebied met een zeer aangename sfeer en een constante aan- en doorloop van divers publiek.

Te huur
Circa 141 m² b.v.o. winkelruimte gelegen op de op de begane grond inclusief een kelderruimte.

Huurprijs
€4.250,- per maand te vermeerderen met BTW.

Beschikbaar
In overleg.

Parkeren
In de directe omgeving is voldoende parkeergelegenheid aanwezig in de blauwe zone, waar gratis parkeren tot maximaal twee uur mogelijk is op straat en in parkeervakken.

Huurindexering
Jaarlijks, op basis van het prijsindexcijfer volgens de consumentenprijsindex (CPI) reeks CPI Alle Huishoudens (2015=100) gepubliceerd door het Centraal Bureau voor de Statistiek (CBS).

BTW
Uitgangspunt is dat de huurprijs belast wordt met BTW.

Servicekosten
Huurder dient de meters voor gas, elektra en water op eigen naam te stellen en het verbruik rechtstreeks te voldoen aan de betreffende nutsbedrijven.

Opleveringsniveau
De winkel wordt casco verhuurd en opgeleverd in huidige staat.

Huurtermijn
5 jaar met verleningen van telkens 5 jaar.

Bestemming
Conform het omgevingsloket is de bestemming ‘Centrum’ uit het bestemmingsplan ‘Centrum Laren 2018’. Onder andere Detailhandel en Dienstverlening vallen hieronder. Huurder dient zelf zijn exploitatie te toetsen aan het vigerende bestemmingsplan.

Huurprijsbetaling
Per maand bij vooruitbetaling te voldoen.

Energielabel
A++

Zekerheidsstelling
Een bankgarantie of waarborgsom ter grootte van minimaal 3 maanden huur, inclusief het voorschot servicekosten en BTW.

Huurovereenkomst
De huurovereenkomst is gebaseerd op het model winkelruimte en andere bedrijfsruimte in de zin van artikel 7:290 BW, zoals vastgesteld door de Raad van Onroerende Zaken (ROZ, model 2025) inclusief de daarbij behorende Algemene Bepalingen.

Voorbehoud
Deze vrijblijvende informatie mag niet als een aanbieding of offerte worden aangemerkt en hieraan mogen geen rechten worden ontleend. Hoewel aan deze informatie de uiterste zorg is besteed, wordt een voorbehoud gemaakt voor afwijkingen en/of onjuiste informatie. De vermelde informatie is van algemene aard en is niet meer dan een uitnodiging om in onderhandeling te treden.

Gunning
Verhuurder behoudt zich het recht van gunning voor.

Kenmerken

Overdracht

Huurprijs
€ 4.250 per maand
Aangeboden sinds
Status
Onder optie
Aanvaarding
In overleg

Bouw

Hoofdfunctie
Winkel
Soort bouw
Bestaande bouw
Bouwjaar
1917

Oppervlakten

Oppervlakte
141 m²
Verkoopvloeroppervlakte
141 m²
Breedte gevel
50 m

Indeling

Aantal bouwlagen
1 bouwlaag

Energie

Energielabel
A++

Omgeving

Ligging
Stadscentrum/dorpskern, winkelcentrum en in woonwijk
Bereikbaarheid
Bushalte op minder dan 500 m en snelwegafrit op 500 m tot 1000 m
Bijdrage winkeliersvereniging
Nee
Welstandsklasse
A1

Kaart

Kaart laden...

Kadastrale grens Bebouwing

Reistijd

Krijg inzicht in de bereikbaarheid van dit object vanuit bijvoorbeeld een openbaar vervoer station of vanuit een adres.

Nieuweweg 5

€ 4.250 /mnd