Omschrijving
ALGEMEEN
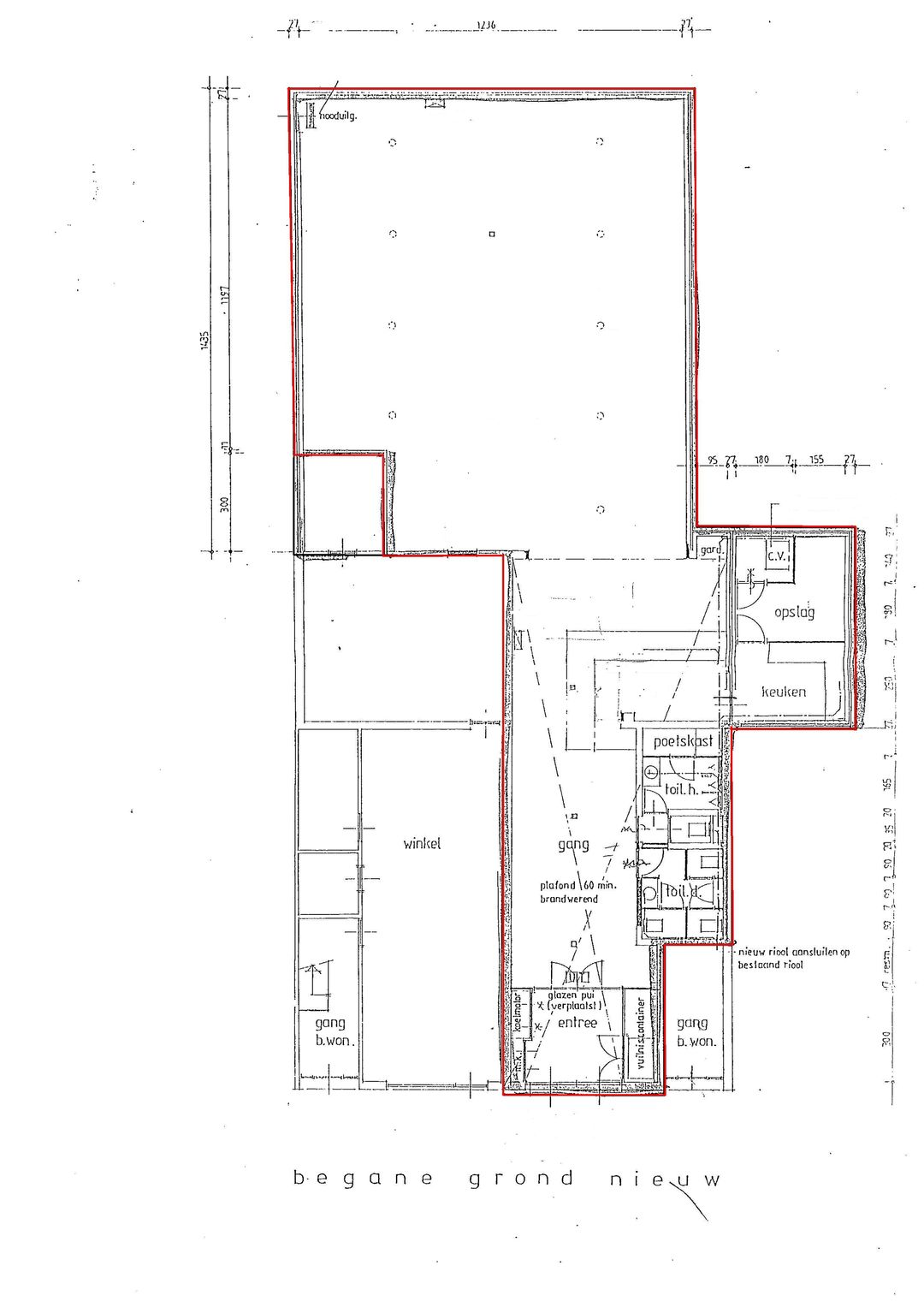
Aan het Raadhuisplein in Maastricht-Heer ligt deze winkelruimte van circa 275 m². De ruimte bevindt zich direct aan het plein, waar gratis parkeergelegenheid beschikbaar is direct voor de deur, en ligt op steenworp afstand van winkelcentrum De Leim. De bedrijfsruimte heeft een royale entree die toegang geeft tot een brede en diepe winkelvloer. Aan de rechterzijde bevinden zich een pantry, twee toiletgroepen en een kleine kantoor- of opslagruimte. Het plafond is voorzien van een systeemplafond, maar kan desgewenst worden verhoogd om extra ruimtelijkheid te creëren.
LOCATIE
Het Raadhuisplein is gelegen in het stadsdeel Heer in Maastricht, een levendige en goed bereikbare woon- en werkomgeving in het zuidoosten van de stad. Deze locatie bevindt zich nabij de Akersteenweg, een belangrijke uitvalsweg richting het centrum van Maastricht en omliggende gemeenten. De wijk kenmerkt zich door een functionele mix van wonen en werken. In de directe omgeving zijn diverse voorzieningen aanwezig waaronder Albert Heijn supermarkt, speciaalzaken, horeca, scholen en zorgfaciliteiten. Zowel met de auto als met het openbaar vervoer is de locatie goed ontsloten. Binnen enkele minuten zijn de A2 en A79 bereikbaar en bushaltes bevinden zich op loopafstand. Ook het centrum van Maastricht is snel te bereiken per fiets of auto.
BESTEMMING
De enkelbestemming van het gehuurde is ‘Centrum’. Meer informatie is te vinden op de website van Omgevingsloket.
BTW
Uitgangspunt is een met BTW belaste huurprijs. Indien een huurder niet voldoet aan de voor belaste verhuur gestelde criteria zal de huurprijs zodanig worden verhoogd dat het voor verhuurder ontstane financiële nadeel volledig wordt gecompenseerd.
SERVICEKOSTEN
Niet van toepassing.
Huurder dient voor eigen rekening en risico contracten met nutsbedrijven af te sluiten voor de levering en het verbruik van gas, water en elektra.
ZEKERHEIDSSTELLING
Een waarborgsom ter grootte van drie maanden huurverplichting, te vermeerderen met de geldende BTW.
HUURINDEXATIE
De huurprijs zal jaarlijks worden verhoogd op basis van de consumentenprijsindex (CPI) zoals wordt gepubliceerd door het Centraal Bureau voor de Statistiek (CBS).
HUUROVEREENKOMST
De huurovereenkomst zal zijn gebaseerd op het recente model zoals is vastgesteld door de Raad voor Onroerende Zaken (ROZ), inclusief de algemene bepalingen.
AANVAARDING
In overleg.
Aan het Raadhuisplein in Maastricht-Heer ligt deze winkelruimte van circa 275 m². De ruimte bevindt zich direct aan het plein, waar gratis parkeergelegenheid beschikbaar is direct voor de deur, en ligt op steenworp afstand van winkelcentrum De Leim. De bedrijfsruimte heeft een royale entree die toegang geeft tot een brede en diepe winkelvloer. Aan de rechterzijde bevinden zich een pantry, twee toiletgroepen en een kleine kantoor- of opslagruimte. Het plafond is voorzien van een systeemplafond, maar kan desgewenst worden verhoogd om extra ruimtelijkheid te creëren.
LOCATIE
Het Raadhuisplein is gelegen in het stadsdeel Heer in Maastricht, een levendige en goed bereikbare woon- en werkomgeving in het zuidoosten van de stad. Deze locatie bevindt zich nabij de Akersteenweg, een belangrijke uitvalsweg richting het centrum van Maastricht en omliggende gemeenten. De wijk kenmerkt zich door een functionele mix van wonen en werken. In de directe omgeving zijn diverse voorzieningen aanwezig waaronder Albert Heijn supermarkt, speciaalzaken, horeca, scholen en zorgfaciliteiten. Zowel met de auto als met het openbaar vervoer is de locatie goed ontsloten. Binnen enkele minuten zijn de A2 en A79 bereikbaar en bushaltes bevinden zich op loopafstand. Ook het centrum van Maastricht is snel te bereiken per fiets of auto.
BESTEMMING
De enkelbestemming van het gehuurde is ‘Centrum’. Meer informatie is te vinden op de website van Omgevingsloket.
BTW
Uitgangspunt is een met BTW belaste huurprijs. Indien een huurder niet voldoet aan de voor belaste verhuur gestelde criteria zal de huurprijs zodanig worden verhoogd dat het voor verhuurder ontstane financiële nadeel volledig wordt gecompenseerd.
SERVICEKOSTEN
Niet van toepassing.
Huurder dient voor eigen rekening en risico contracten met nutsbedrijven af te sluiten voor de levering en het verbruik van gas, water en elektra.
ZEKERHEIDSSTELLING
Een waarborgsom ter grootte van drie maanden huurverplichting, te vermeerderen met de geldende BTW.
HUURINDEXATIE
De huurprijs zal jaarlijks worden verhoogd op basis van de consumentenprijsindex (CPI) zoals wordt gepubliceerd door het Centraal Bureau voor de Statistiek (CBS).
HUUROVEREENKOMST
De huurovereenkomst zal zijn gebaseerd op het recente model zoals is vastgesteld door de Raad voor Onroerende Zaken (ROZ), inclusief de algemene bepalingen.
AANVAARDING
In overleg.
Kaart
Kaart laden...
Kadastrale grens
Bebouwing
Reistijd
Krijg inzicht in de bereikbaarheid van dit object vanuit bijvoorbeeld een openbaar vervoer station of vanuit een adres.