Omschrijving
Geweldige kans in historisch Monnickendam!
Dit charmante pand op het bekende Noordeinde in Monnickendam, is onlangs gerenoveerd en klaar voor een nieuwe eigenaar of huurder. Het betreft hier de begane grond, bestemd voor horeca, detailhandel of publieksgerichte dienstverlening. De ligging in het historische centrum, op loopafstand van de oude haven en de jachthavens, is zeer gunstig. De haven is in de zomer een trekpleister voor toeristen en in de directe omgeving van het pand bevinden zich meerdere hotels, een museum en een historische kerk.
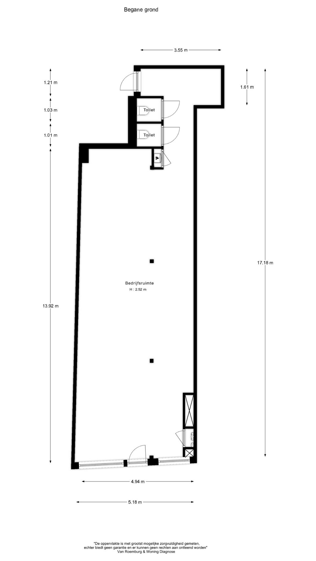
De ruimte is ca. 80m² VVO en heeft een rechthoekige vorm, met aan de voorkant grote ramen, met charmante kozijnen. Achterin de ruimte bevinden zich 2 toiletten. De ruimte wordt casco opgeleverd, maar inclusief toiletten en cv-installatie.
VOORZIENINGEN/BIJZONDERHEDEN
- Energielabel A+
- Grote ramen
- Cv-installatie
- 2 Toiletten
- Volgens het geluidsrapport is deze ruimte dichtgetimmerd. Alle elektra en lichtpunten moeten daarom uitsluitend opbouw zijn. Het realiseren van inbouw is verboden.
BESTEMMING
Horeca, detailhandel, publieksgerichte dienstverlening.
LOCATIE EN BEREIKBAARHEID
De ligging in het historische centrum, op loopafstand van de oude haven en de jachthavens, is zeer gunstig. De haven is in de zomer een trekpleister voor toeristen en in de directe omgeving van het pand bevinden zich meerdere hotels, een museum en een historische kerk. Geniet van de fantastische sfeer, met vele monumentale gebouwen en huizen in smalle steegjes en straatjes. De bushalte is op loopafstand, van waaruit je kunt reizen richting Amsterdam, Purmerend en Hoorn. Monnickendam heeft een uitstekende ligging op ongeveer 20 autominuten van Amsterdam en het is ongeveer 15 minuten met de bus naar de halte van de Noord-Zuidlijn (station Noord).
PARKEREN
Gratis openbaar parkeren.
VRAAGPRIJS
Koop: € 275.000,- k.k., excl. BTW
Huur: € 1.950,- excl. BTW per maand
SERVICEKOSTEN
Koop: VvE bijdrage à € 185,- per maand.
Huur: Geen. Huurder sluit zelf contracten voor nutsvoorzieningen af.
WAARBORGSOM
Koop: 10% Van de koopsom
Huur: 3 Maanden huur incl. BTW
AANVAARDING/OPLEVERING
In overleg.
KADASTRALE GEGEVENS
Gemeente Monnickendam, sectie A, nummer 4012 A1.
De op deze website getoonde vrijblijvende informatie is met zorg door ons samengesteld op basis van gegevens van de verkoper/verhuurder (en/of derden). Wij staan niet in voor de juistheid of volledigheid daarvan. Wij adviseren u en/of uw makelaar om contact met ons op te nemen bij interesse in een van onze bedrijfspanden.
Wij zijn niet verantwoordelijk voor de inhoud van de websites waarnaar verwezen wordt.
Dit charmante pand op het bekende Noordeinde in Monnickendam, is onlangs gerenoveerd en klaar voor een nieuwe eigenaar of huurder. Het betreft hier de begane grond, bestemd voor horeca, detailhandel of publieksgerichte dienstverlening. De ligging in het historische centrum, op loopafstand van de oude haven en de jachthavens, is zeer gunstig. De haven is in de zomer een trekpleister voor toeristen en in de directe omgeving van het pand bevinden zich meerdere hotels, een museum en een historische kerk.
De ruimte is ca. 80m² VVO en heeft een rechthoekige vorm, met aan de voorkant grote ramen, met charmante kozijnen. Achterin de ruimte bevinden zich 2 toiletten. De ruimte wordt casco opgeleverd, maar inclusief toiletten en cv-installatie.
VOORZIENINGEN/BIJZONDERHEDEN
- Energielabel A+
- Grote ramen
- Cv-installatie
- 2 Toiletten
- Volgens het geluidsrapport is deze ruimte dichtgetimmerd. Alle elektra en lichtpunten moeten daarom uitsluitend opbouw zijn. Het realiseren van inbouw is verboden.
BESTEMMING
Horeca, detailhandel, publieksgerichte dienstverlening.
LOCATIE EN BEREIKBAARHEID
De ligging in het historische centrum, op loopafstand van de oude haven en de jachthavens, is zeer gunstig. De haven is in de zomer een trekpleister voor toeristen en in de directe omgeving van het pand bevinden zich meerdere hotels, een museum en een historische kerk. Geniet van de fantastische sfeer, met vele monumentale gebouwen en huizen in smalle steegjes en straatjes. De bushalte is op loopafstand, van waaruit je kunt reizen richting Amsterdam, Purmerend en Hoorn. Monnickendam heeft een uitstekende ligging op ongeveer 20 autominuten van Amsterdam en het is ongeveer 15 minuten met de bus naar de halte van de Noord-Zuidlijn (station Noord).
PARKEREN
Gratis openbaar parkeren.
VRAAGPRIJS
Koop: € 275.000,- k.k., excl. BTW
Huur: € 1.950,- excl. BTW per maand
SERVICEKOSTEN
Koop: VvE bijdrage à € 185,- per maand.
Huur: Geen. Huurder sluit zelf contracten voor nutsvoorzieningen af.
WAARBORGSOM
Koop: 10% Van de koopsom
Huur: 3 Maanden huur incl. BTW
AANVAARDING/OPLEVERING
In overleg.
KADASTRALE GEGEVENS
Gemeente Monnickendam, sectie A, nummer 4012 A1.
De op deze website getoonde vrijblijvende informatie is met zorg door ons samengesteld op basis van gegevens van de verkoper/verhuurder (en/of derden). Wij staan niet in voor de juistheid of volledigheid daarvan. Wij adviseren u en/of uw makelaar om contact met ons op te nemen bij interesse in een van onze bedrijfspanden.
Wij zijn niet verantwoordelijk voor de inhoud van de websites waarnaar verwezen wordt.
Kaart
Kaart laden...
Kadastrale grens
Bebouwing
Reistijd
Krijg inzicht in de bereikbaarheid van dit object vanuit bijvoorbeeld een openbaar vervoer station of vanuit een adres.