Omschrijving
ARENDSTRAAT 34, 4901 JK OOSTERHOUT
Object:
De winkelruimte is gelegen op een A1-locatie in de Arendstraat, nabij het overdekte winkelcentrum Arendshof.
De Arendstraat is de hoofdwinkelstraat in het centrum van Oosterhout, een middelgrote stad met ruim 58.000 inwoners. De Arendstraat biedt een gevarieerd aanbod aan winkels, van grote ketens als ICI Paris, Kruidvat, Douglas, Nelson, Holland & Barret, Etos, Jeans Centre, Norah en Intertoys tot speciaalzaken zoals Boekhandel Het Verboden Rijk, Het Bonte Schaep, Segers Juweliers, Rodeo Drive en De Zuivelhoeve.
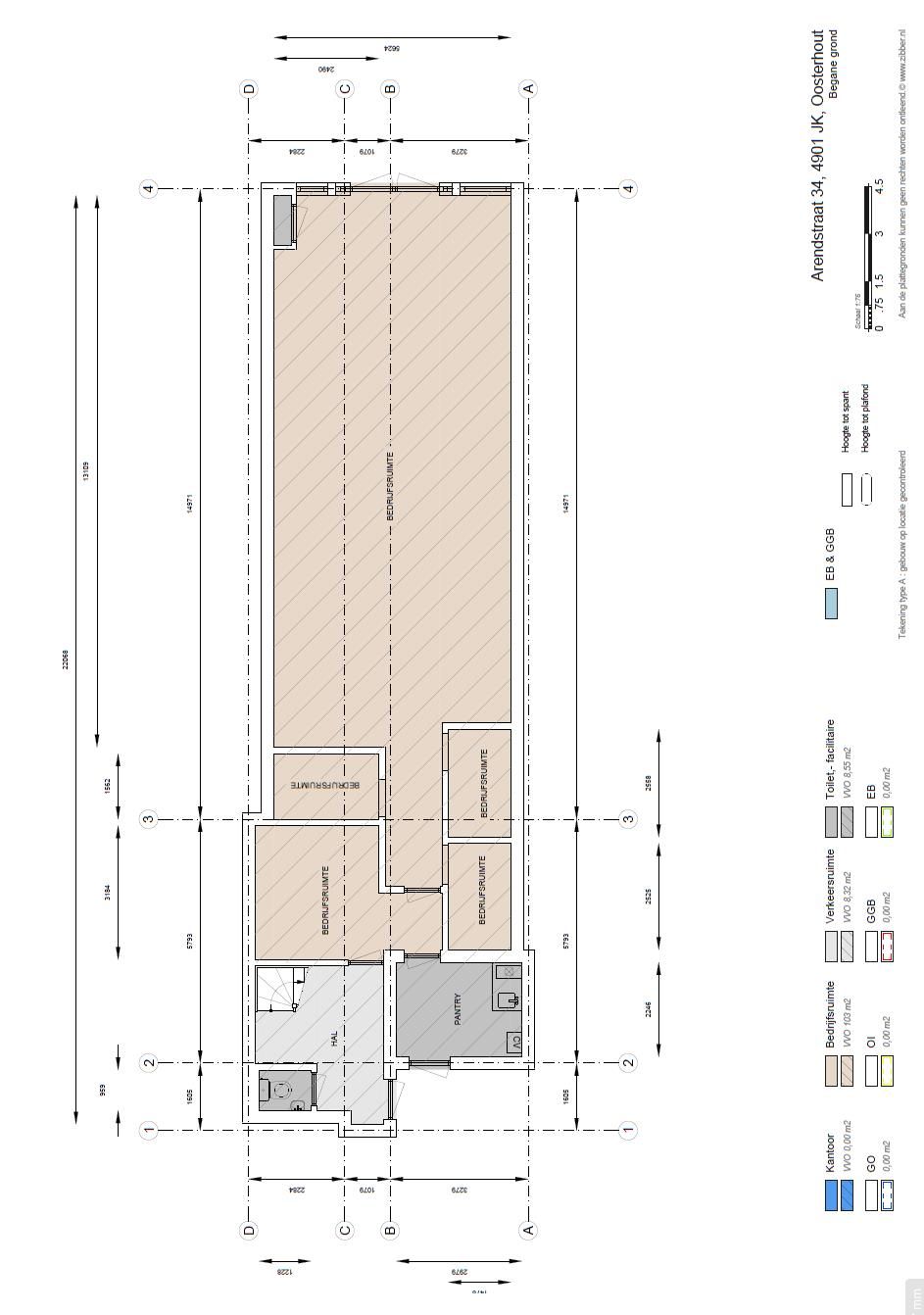
Oppervlakte:
Het object omvat ca. 112 m² winkelruimte en ca. 16,5 m² opslag- en secundaire ruimte en beschikt over een A++ energielabel.
Parkeren:
Er bevinden zich twee parkeerplaatsen op eigen terrein aan de achterzijde, dat middels een schuifpoort kan worden afgesloten.
Huurprijs:
De huurprijs bedraagt € 30.000,-- per jaar exclusief BTW.
Indexering:
Jaarlijkse indexering voor het eerst één jaar na huuringangsdatum op basis van de Consumenten Prijs Index (CPI) Alle Huishoudens (2015=100) samengesteld door het Centraal Bureau voor de Statistiek.
Servicekosten:
De kosten van gas, water en elektra zijn niet bij de huurprijs inbegrepen. Deze kosten dienen door huurder rechtstreeks aan de desbetreffende nutsinstellingen te worden voldaan.
Opleveringsdatum:
De oplevering geschiedt in onderling overleg.
De huurovereenkomst met de huidige huurder loopt tot en met 31 januari 2027.
Huurperiode:
De huurperiode bedraagt 5 jaar plus verlenging met telkens 5 jaar.
Contract:
Standaard R.O.Z. contract.
Voorzieningen:
Het object wordt casco verhuurd, maar beschikt onder andere over de navolgende voorzieningen:
- gestuct plafond;
- centrale verwarming;
- airconditioning
- toiletruimte;
- pantry;
- achteruitgang naar parkeerplaatsen op afsluitbaar terrein.
Het lichtplan is aangebracht door de huidige huurder en wordt ter overname aangeboden.
Zekerheidsstelling:
Waarborgsom ter hoogte van drie maanden huur inclusief BTW.
Huurbetaling:
Huurbetaling per maand vooruit.
Voorbehoud:
Een en ander geschiedt onder aanvaarding en uitdrukkelijk voorbehoud goedkeuring eigenaar.
BTW:
Indien huurder niet aan het 90% criterium voldoet, zal er van rechtswege sprake zijn van omzetbelasting vrijgestelde verhuur. Alsdan wordt de overeengekomen kale huurprijs exclusief omzetbelasting, zodanig verhoogd dat het voor verhuurder ontstane financiële nadeel wordt gecompenseerd.
Alle door ons verstrekte informatie is geheel vrijblijvend en uitsluitend bestemd voor geadresseerde. Alle gegevens zijn met zorg samengesteld en uit ons inziens betrouwbare bron afkomstig. Ten aanzien van de juistheid ervan kunnen wij echter geen aansprakelijkheid aanvaarden.
Object:
De winkelruimte is gelegen op een A1-locatie in de Arendstraat, nabij het overdekte winkelcentrum Arendshof.
De Arendstraat is de hoofdwinkelstraat in het centrum van Oosterhout, een middelgrote stad met ruim 58.000 inwoners. De Arendstraat biedt een gevarieerd aanbod aan winkels, van grote ketens als ICI Paris, Kruidvat, Douglas, Nelson, Holland & Barret, Etos, Jeans Centre, Norah en Intertoys tot speciaalzaken zoals Boekhandel Het Verboden Rijk, Het Bonte Schaep, Segers Juweliers, Rodeo Drive en De Zuivelhoeve.
Oppervlakte:
Het object omvat ca. 112 m² winkelruimte en ca. 16,5 m² opslag- en secundaire ruimte en beschikt over een A++ energielabel.
Parkeren:
Er bevinden zich twee parkeerplaatsen op eigen terrein aan de achterzijde, dat middels een schuifpoort kan worden afgesloten.
Huurprijs:
De huurprijs bedraagt € 30.000,-- per jaar exclusief BTW.
Indexering:
Jaarlijkse indexering voor het eerst één jaar na huuringangsdatum op basis van de Consumenten Prijs Index (CPI) Alle Huishoudens (2015=100) samengesteld door het Centraal Bureau voor de Statistiek.
Servicekosten:
De kosten van gas, water en elektra zijn niet bij de huurprijs inbegrepen. Deze kosten dienen door huurder rechtstreeks aan de desbetreffende nutsinstellingen te worden voldaan.
Opleveringsdatum:
De oplevering geschiedt in onderling overleg.
De huurovereenkomst met de huidige huurder loopt tot en met 31 januari 2027.
Huurperiode:
De huurperiode bedraagt 5 jaar plus verlenging met telkens 5 jaar.
Contract:
Standaard R.O.Z. contract.
Voorzieningen:
Het object wordt casco verhuurd, maar beschikt onder andere over de navolgende voorzieningen:
- gestuct plafond;
- centrale verwarming;
- airconditioning
- toiletruimte;
- pantry;
- achteruitgang naar parkeerplaatsen op afsluitbaar terrein.
Het lichtplan is aangebracht door de huidige huurder en wordt ter overname aangeboden.
Zekerheidsstelling:
Waarborgsom ter hoogte van drie maanden huur inclusief BTW.
Huurbetaling:
Huurbetaling per maand vooruit.
Voorbehoud:
Een en ander geschiedt onder aanvaarding en uitdrukkelijk voorbehoud goedkeuring eigenaar.
BTW:
Indien huurder niet aan het 90% criterium voldoet, zal er van rechtswege sprake zijn van omzetbelasting vrijgestelde verhuur. Alsdan wordt de overeengekomen kale huurprijs exclusief omzetbelasting, zodanig verhoogd dat het voor verhuurder ontstane financiële nadeel wordt gecompenseerd.
Alle door ons verstrekte informatie is geheel vrijblijvend en uitsluitend bestemd voor geadresseerde. Alle gegevens zijn met zorg samengesteld en uit ons inziens betrouwbare bron afkomstig. Ten aanzien van de juistheid ervan kunnen wij echter geen aansprakelijkheid aanvaarden.
Kaart
Kaart laden...
Kadastrale grens
Bebouwing
Reistijd
Krijg inzicht in de bereikbaarheid van dit object vanuit bijvoorbeeld een openbaar vervoer station of vanuit een adres.