Oude Binnenweg 89-A 3012 JA Rotterdam
€ 16.400 /mnd
Omschrijving
Algemeen:
Het gaat om een casco horecaruimte en winkelruimte op de begane grond met de mogelijkheid voor het realiseren van een hotel met 11 kamers op de 1e tot en met de 3e verdieping in het centrum van Rotterdam.
Adres:
Oude Binnenweg 89
3012 JA Rotterdam
Kadastrale gegevens:
Gemeente: Rotterdam
Sectie: AF
Perceelnummers: 378
Groot : 115 m²
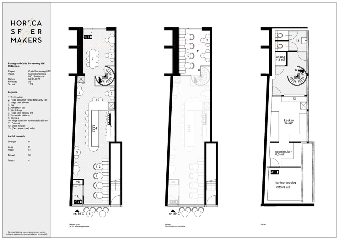
Indeling:
Horeca bg + kelder - Ca.100 m²
Winkelruimte bg + kelder - Ca.77 m²
Begane grond fietsenstalling - Ca.10 m²
1e verdieping - Ca.89 m²
2e verdieping - Ca.89 m²
3e kapverdieping - Ca.70 m²
Totaal - Ca.435 m²
Voorzieningen:
De bedrijfsruimte wordt casco opgeleverd voorzien van:
• Ruwe vloer en plafonds met zicht op de houtenbalk laag
• Niet afwerkte wanden
• Nutsvoorzieningen tot aan de meterkast
• Aansluiting op riool
Servicekosten:
Nader overeen te komen
Huurtermijn:
5 jaar + 5 jaar
Huurbetaling:
Huurbetaling, servicekosten en BTW per maand vooruit te voldoen.
Huurprijsindexering:
Jaarlijks, voor het eerst één jaar na datum huuringang, op basis van de wijziging van het prijsindexcijfer volgens de consumentenprijsindex (CPI) reeks CPI-Alle Huishoudens(2015=100) gepubliceerd door CBS.
Omzetbelasting:
Huurder verklaart het gehuurde gedurende de volledige duur van de huurovereenkomst blijvend voor tenminste het bij de wet vastgestelde minimum percentage te gebruiken voor doeleinden die recht geven op aftrek van BTW.
Indien Huurder niet (meer) voldoet aan de criteria voor een met BTW belaste huurprijs of het optieverzoek door de inspecteur der belastingen niet wordt
ingewilligd of wordt ingetrokken zal het gehele door Verhuurder te lijden financiële nadeel door Huurder worden gecompenseerd, overeenkomstig ter zake in de huurovereenkomst op te nemen bijzondere bepalingen.
Zekerheidstelling:
Een bankgarantie ter grootte van een betalingsverplichting van drie maanden, inclusief servicekosten en BTW.
Datum van oplevering:
In overleg.
Huurovereenkomst:
De te sluiten huurovereenkomst wordt opgemaakt conform het Model Huurovereenkomst Kantoorruimte en andere bedrijfsruimte in de zin van artikel 7 : 290 BW door de Raad van Onroerende Zaken (ROZ) op 17 september 2012 vastgesteld en op 2 oktober 2012 met de bijbehorende Algemene Bepalingen gedeponeerd bij de griffie van de rechtbank te ’s-Gravenhage op 2 oktober 2012 en aldaar ingeschreven onder nummer 59/2012 tevens gepubliceerd op de website
Voor het hotel is een omgevingsvergunning afgegeven voor de afbouw van het hotel.
Bereikbaarheid:
Het gebouw is op de volgende manieren te bereiken:
• Met de auto is het gebouw redelijk te bereiken. Het Hostel is zeer centraal gelegen in de stad waardoor het ongeveer 15 minuten kost om vanaf de locatie bij de snelwegen A16 en A20 te komen. Daarnaast is het aantal parkeerplekken bij het gebouw beperkt.
• Met het openbaar vervoer is het gebouw zeer goed te bereiken. Het gebouw is op loopafstand gelegen van het bus- en metrostation Eendrachtsplein waar meerdere bus- en metrolijnen stoppen. Zo is station Eendrachtsplein onder andere direct verbonden met Rotterdam Centraal Station dat direct verbonden is met de grote steden in het land, waaronder Den Haag, Utrecht en Amsterdam.
Daarnaast is Rotterdam Centraal Station ook een van de tussenstops voor de Thalys, Eurostar en IC. Hierdoor is Rotterdam direct verbonden met internationale steden zoals Brussel, Parijs, Londen en Hannover.
• Voor buitenlandse gasten die via Amsterdam Airport Schiphol of Rotterdam The Hague Airport reizen, is het gebouw goed bereikbaar. De reistijd vanaf Rotterdam The Hague Airport is ongeveer 20 minuten met de auto en 45 minuten met het openbaar vervoer. De reistijd vanaf Amsterdam Airport Schiphol is ongeveer 45 minuten met de auto en 43 minuten met het openbaar vervoer.
Parkeren:
Betaald parkeren in centrum Rotterdam
Bestemmingsplan:
Bestemmingsplan Cool vastgesteld op 19 april 2023 – geheel onheroepelijk in werking.
De voor 'Centrum - 4' aangewezen gronden zijn bestemd voor:
a. detailhandel, uitsluitend op de begane grond;
b. horeca, uitsluitend op de begane grond waarbij:
1. ter plaatse van de aanduiding "specifieke vorm van horeca - 2" maximaal veertig horecavestigingen zijn toegestaan, met dien verstande dat het gezamenlijk bruto vloeroppervlak maximaal 5.000 m2 bedraagt;
2. ter plaatse van de aanduiding "specifieke vorm van horeca - 3" maximaal tien horecavestigingen zijn toegestaan;
3. ter plaatse van de aanduiding "specifieke vorm van horeca - 4" maximaal negentien horecavestigingen zijn toegestaan;
4. ter plaatse van de aanduiding "specifieke vorm van horeca - 5" maximaal zeven horecavestigingen zijn toegestaan;
5. in afwijking van het hiervoor bepaalde, horeca op de verdiepingen is toegestaan als dit gebruik op het moment waarop het ontwerpbestemmingsplan ter inzage is gelegd, aanwezig is.
c. hotels, zowel op de begane grond als op de verdiepingen;
d. maatschappelijke voorzieningen die niet vallen onder de geluidsgevoelige objecten in de zin van artikel 1.33 van deze regels, uitsluitend op de begane grond;
e. wonen, uitsluitend op de verdiepingen, met dien verstande dat ter plaatse van de aanduiding "wonen" tevens wonen op de begane grond is toegestaan;
f. ter plaatse van de aanduiding "onderdoorgang" tevens voor een onderdoorgang.
Het gaat om een casco horecaruimte en winkelruimte op de begane grond met de mogelijkheid voor het realiseren van een hotel met 11 kamers op de 1e tot en met de 3e verdieping in het centrum van Rotterdam.
Adres:
Oude Binnenweg 89
3012 JA Rotterdam
Kadastrale gegevens:
Gemeente: Rotterdam
Sectie: AF
Perceelnummers: 378
Groot : 115 m²
Indeling:
Horeca bg + kelder - Ca.100 m²
Winkelruimte bg + kelder - Ca.77 m²
Begane grond fietsenstalling - Ca.10 m²
1e verdieping - Ca.89 m²
2e verdieping - Ca.89 m²
3e kapverdieping - Ca.70 m²
Totaal - Ca.435 m²
Voorzieningen:
De bedrijfsruimte wordt casco opgeleverd voorzien van:
• Ruwe vloer en plafonds met zicht op de houtenbalk laag
• Niet afwerkte wanden
• Nutsvoorzieningen tot aan de meterkast
• Aansluiting op riool
Servicekosten:
Nader overeen te komen
Huurtermijn:
5 jaar + 5 jaar
Huurbetaling:
Huurbetaling, servicekosten en BTW per maand vooruit te voldoen.
Huurprijsindexering:
Jaarlijks, voor het eerst één jaar na datum huuringang, op basis van de wijziging van het prijsindexcijfer volgens de consumentenprijsindex (CPI) reeks CPI-Alle Huishoudens(2015=100) gepubliceerd door CBS.
Omzetbelasting:
Huurder verklaart het gehuurde gedurende de volledige duur van de huurovereenkomst blijvend voor tenminste het bij de wet vastgestelde minimum percentage te gebruiken voor doeleinden die recht geven op aftrek van BTW.
Indien Huurder niet (meer) voldoet aan de criteria voor een met BTW belaste huurprijs of het optieverzoek door de inspecteur der belastingen niet wordt
ingewilligd of wordt ingetrokken zal het gehele door Verhuurder te lijden financiële nadeel door Huurder worden gecompenseerd, overeenkomstig ter zake in de huurovereenkomst op te nemen bijzondere bepalingen.
Zekerheidstelling:
Een bankgarantie ter grootte van een betalingsverplichting van drie maanden, inclusief servicekosten en BTW.
Datum van oplevering:
In overleg.
Huurovereenkomst:
De te sluiten huurovereenkomst wordt opgemaakt conform het Model Huurovereenkomst Kantoorruimte en andere bedrijfsruimte in de zin van artikel 7 : 290 BW door de Raad van Onroerende Zaken (ROZ) op 17 september 2012 vastgesteld en op 2 oktober 2012 met de bijbehorende Algemene Bepalingen gedeponeerd bij de griffie van de rechtbank te ’s-Gravenhage op 2 oktober 2012 en aldaar ingeschreven onder nummer 59/2012 tevens gepubliceerd op de website
Voor het hotel is een omgevingsvergunning afgegeven voor de afbouw van het hotel.
Bereikbaarheid:
Het gebouw is op de volgende manieren te bereiken:
• Met de auto is het gebouw redelijk te bereiken. Het Hostel is zeer centraal gelegen in de stad waardoor het ongeveer 15 minuten kost om vanaf de locatie bij de snelwegen A16 en A20 te komen. Daarnaast is het aantal parkeerplekken bij het gebouw beperkt.
• Met het openbaar vervoer is het gebouw zeer goed te bereiken. Het gebouw is op loopafstand gelegen van het bus- en metrostation Eendrachtsplein waar meerdere bus- en metrolijnen stoppen. Zo is station Eendrachtsplein onder andere direct verbonden met Rotterdam Centraal Station dat direct verbonden is met de grote steden in het land, waaronder Den Haag, Utrecht en Amsterdam.
Daarnaast is Rotterdam Centraal Station ook een van de tussenstops voor de Thalys, Eurostar en IC. Hierdoor is Rotterdam direct verbonden met internationale steden zoals Brussel, Parijs, Londen en Hannover.
• Voor buitenlandse gasten die via Amsterdam Airport Schiphol of Rotterdam The Hague Airport reizen, is het gebouw goed bereikbaar. De reistijd vanaf Rotterdam The Hague Airport is ongeveer 20 minuten met de auto en 45 minuten met het openbaar vervoer. De reistijd vanaf Amsterdam Airport Schiphol is ongeveer 45 minuten met de auto en 43 minuten met het openbaar vervoer.
Parkeren:
Betaald parkeren in centrum Rotterdam
Bestemmingsplan:
Bestemmingsplan Cool vastgesteld op 19 april 2023 – geheel onheroepelijk in werking.
De voor 'Centrum - 4' aangewezen gronden zijn bestemd voor:
a. detailhandel, uitsluitend op de begane grond;
b. horeca, uitsluitend op de begane grond waarbij:
1. ter plaatse van de aanduiding "specifieke vorm van horeca - 2" maximaal veertig horecavestigingen zijn toegestaan, met dien verstande dat het gezamenlijk bruto vloeroppervlak maximaal 5.000 m2 bedraagt;
2. ter plaatse van de aanduiding "specifieke vorm van horeca - 3" maximaal tien horecavestigingen zijn toegestaan;
3. ter plaatse van de aanduiding "specifieke vorm van horeca - 4" maximaal negentien horecavestigingen zijn toegestaan;
4. ter plaatse van de aanduiding "specifieke vorm van horeca - 5" maximaal zeven horecavestigingen zijn toegestaan;
5. in afwijking van het hiervoor bepaalde, horeca op de verdiepingen is toegestaan als dit gebruik op het moment waarop het ontwerpbestemmingsplan ter inzage is gelegd, aanwezig is.
c. hotels, zowel op de begane grond als op de verdiepingen;
d. maatschappelijke voorzieningen die niet vallen onder de geluidsgevoelige objecten in de zin van artikel 1.33 van deze regels, uitsluitend op de begane grond;
e. wonen, uitsluitend op de verdiepingen, met dien verstande dat ter plaatse van de aanduiding "wonen" tevens wonen op de begane grond is toegestaan;
f. ter plaatse van de aanduiding "onderdoorgang" tevens voor een onderdoorgang.
Kenmerken
Overdracht
- Huurprijs
- € 16.400 per maand
- Aangeboden sinds
-
- Status
- Beschikbaar
- Aanvaarding
- Per direct beschikbaar
Bouw
- Hoofdfunctie
- Horeca
- Mogelijke functie(s)
- Winkelruimte
- Soort bouw
- Bestaande bouw
- Bouwjaar
- 1899
Oppervlakten
- Oppervlakte
- 177 m²
- Verkoopvloeroppervlakte
- 177 m²
Indeling
- Aantal bouwlagen
- 4 bouwlagen
Energie
- Energielabel
- A 0,72
Omgeving
- Ligging
- Stadscentrum/dorpskern
Foto's